Mẫu nhà phố 3 tầng mặt tiền 3.8m cực kỳ hiện đại và có chi phí hợp lý | MH05567
| Chủ đầu tư: Chị Đặng Thị Mai | Số tầng: 3 |
| Địa chỉ: Thường Tín, Hà Nội | Diện tích xây dựng: 3,8 x 15,1m |
| Loại hình: Nhà lô phố hiện đại | Tổng diện tích: 160m2 |
Công năng:
|
|
Bộ sưu tập mẫu nhà phố đẹp của Maxhome càng ngày càng đa dạng và phong phú. Trong bài viết này, Maxhome xin được giới thiệu tới bạn mẫu nhà phố 3 tầng mặt tiền 3.8m độc đáo với chi phí hợp lý nằm giữa thành phố Hà Nội.
Ngay khi nhắc đến mẫu thiết kế nhà phố này, nhiều người nghĩ rằng một mặt tiền hẹp như 3.8m sẽ khó để tạo nên vẻ ngoài nổi bật. Nhưng khi bước vào công trình của chị Mai tại Hà Nội do Maxhome thiết kế, bạn sẽ thấy mọi giới hạn được gỡ bỏ. Đây là một ví dụ rõ ràng cho thấy nhà phố 3 tầng mặt tiền 3.8m vẫn có thể hiện đại, tinh tế và hợp lý về chi phí nếu được xử lý khéo léo.

Căn nhà có mặt tiền 3,8m và chiều sâu 15,1m, một bài toán khá khó cho đội ngũ thiết kế khi cần cân đối giữa công năng, thẩm mỹ và sự thoáng đãng. Dạng đất nhà ống luôn là thử thách nhưng lại tạo cơ hội để Maxhome thể hiện trọn vẹn sự sáng tạo của mình. Khi nhìn từ phía ngoài, ngôi nhà mang đến cảm giác gọn gàng và cân đối, không khí đô thị vốn chật hẹp cũng trở nên mềm mại hơn nhờ các đường nét được tính toán kỹ lưỡng. Chính bố cục ngoại thất đã giúp mẫu nhà phố 3 tầng mặt tiền 3.8m này trở thành lựa chọn lý tưởng cho những gia đình yêu thích phong cách hiện đại mà không muốn chi phí bị đội lên quá cao.

Điểm nổi bật đầu tiên ở mặt tiền chính là cách phối màu thông minh. Khối viền xung quanh công trình được sơn xám đậm tạo sự mạnh mẽ và chiều sâu cho tổng thể, ở giữa là lớp sơn trắng sáng trải đều từ tầng 1 lên tầng 3, sắc trắng không chỉ giúp làm nổi bật hệ cửa mà còn mở rộng cảm giác về không gian theo chiều ngang. Đây là yếu tố quan trọng vì nhà phố 3 tầng mặt tiền 3.8m cần tạo cảm giác rộng hơn so với thực tế. Sự kết hợp giữa màu xám và trắng mang đến vẻ hiện đại, nhẹ nhàng nhưng vẫn giữ được sự chắc chắn trong bố cục.

Không chỉ có màu tường, hệ cửa cổng và lan can ban công cũng được sơn cùng tông xám để tạo sự liền mạch. Khi nhìn tổng thể, bạn sẽ thấy các chi tiết chạy xuyên suốt từ dưới lên trên như được kết nối tự nhiên giúp mặt tiềnnhà phố dù hẹp nhưng trông hài hòa và sang hơn. Ngoài ra, còn có một điểm nhấn nhỏ nhưng tạo hiệu ứng thị giác rất tốt là phần gạch nâu giả gỗ chạy ngang giữa tầng 2 và tầng 3. Dù đường viền không quá lớn nhưng nó đủ sức phân tách nhẹ 2 tầng để mặt tiền trông không quá đơn điệu. Đây là kiểu nhấn nhá hợp lý cho những ai thích sự tinh tế nhưng không muốn quá cầu kỳ.
Bước lên tầng 3, mái che được làm bằng hệ khung sắt hộp 50×100 tạo nên hình ảnh hiện đại và khỏe khoắn. Khung sắt vừa đủ thoáng nhưng vẫn tạo ra bóng đổ đẹp mắt mỗi khi mặt trời di chuyển. Từ góc nhìn cao xuống, bạn còn thấy một chi tiết rất thú vị từ mái che có thêm một ô tròn lấy sáng. Đây là điểm sáng tạo giúp ánh sáng tự nhiên len xuống phía dưới đồng thời mang lại nét riêng cho mẫu nhà phố 3 tầng của chị Mai.

Về chiều cao, tầng 1 công trình cao 3.6m, tầng 2 và 3 mỗi tầng cao 3.3m. Tỷ lệ này giúp hình khối mẫu nhà đẹp trông cân bằng mà không bị quá bí hay quá cao. Sàn tầng mái được đổ bê tông dày để chống nóng, hệ mái bằng còn được xây thêm tường cao 400mm và phía sau đặt bồn nước, thái dương năng. Tất cả đều được bố trí gọn để không phá vỡ vẻ đẹp tổng thể nhưng vẫn đảm bảo đầy đủ công năng cho sinh hoạt hàng ngày.

Tấc đất tấc vàng ở thành phố Hà Nội không dễ dàng có, nhìn vào mặt bằng định vị công trình bạn cũng có thể thấy rõ hình ảnh ngôi nhà chị Mai được xây kín khuôn đất nhà phố. Mặt tiền ngôi nhà tiếp giáp trực tiếp với đường giao thông nên cần xây cổng kín để đảm bảo an ninh, bên trong làm cửa kính cách âm để hạn chế tiếng ồn vào nhà.

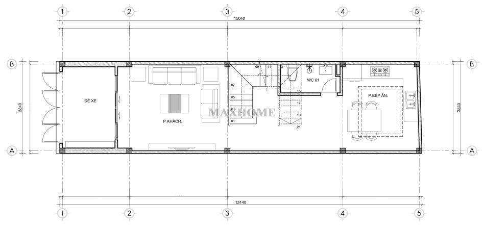
Tầng 1 được bố trí gọn gàng với khu để xe nhỏ ngay phía trước cho tiện việc di chuyển hàng ngày. Bước vào bên trong là phòng khách rộng rãi và sáng nhờ hệ cửa kính lớn ở mặt tiền. Không gian sinh hoạt chung tiếp tục nối liền với phòng bếp và khu ăn tạo cảm giác ấm cúng và thuận tiện khi sử dụng. Dưới gầm cầu thang là 1 nhà vệ sinh chung vừa kín đáo vừa đủ gần để phục vụ sinh hoạt cho cả gia đình và khách ghé chơi.

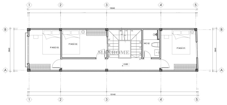
Tầng 2 được tận dụng tối đa diện tích để bố trí 3 phòng ngủ. Ba phòng ngủ được sắp xếp hợp lý dọc theo hành lang tạo sự riêng tư cho từng thành viên. Một nhà vệ sinh chung được đặt ở vị trí trung tâm, cạnh cầu thang để mọi người có thể sử dụng dễ dàng.

Tầng 3 là nơi đặt phòng thờ được bố trí ở vị trí cao ráo và yên tĩnh nhất trong nhà. Không gian này đủ trang trọng và tách biệt khỏi các khu sinh hoạt phía dưới. Phía sau là khu giặt phơi với diện tích vừa phải và thuận tiện cho việc phơi đồ hằng ngày. Nhờ vị trí trên cao, khu vực phơi luôn đón nắng tốt và thoáng, giúp quần áo nhanh khô và không bị ẩm.











