Với những nhà lô phố có mặt tiền hạn chế, thiết kế cao tầng là giải pháp tối ưu để mở rộng không gian sử dụng mà vẫn đảm bảo chi phí đầu tư hợp lý. Công trình nhà phố 3 tầng theo phong cách tân cổ điển gây ấn tượng bởi đường nét thanh lịch, bố cục cân đối và chi tiết trang trí được chăm chút tinh tế. Tất cả tạo nên một không gian sống sang trọng, tiện nghi và khẳng định đẳng cấp của gia chủ.
Mẫu nhà phố 3 tầng tân cổ điển đẹp sang trọng công năng tiện nghi tại Hải Phòng | MH06042
| Chủ đầu tư: Anh Nguyễn Văn Tình | Số tầng: 3 |
| Địa chỉ: Kim Thành, Hải Phòng | Diện tích xây dựng: 5,1 x 14,7m |
| Loại hình: Nhà phố tân cổ điển | Tổng diện tích: 210m2 |
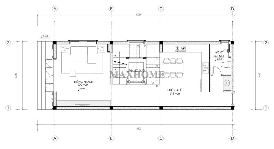
Công năng:
|
|
Mẫu nhà phố tân cổ điển 3 tầng sang trọng do Maxhome thiết kế không chỉ mang đến không gian sống tiện nghi mà còn thể hiện vị thế và gu thẩm mỹ cao cấp của gia đình anh Tình tại Hải Phòng. Công trình này là niềm tự hào của chủ đầu tư, tạo nên một dấu ấn đặc biệt, nổi bật tại khu vực. Kính mời quý bạn đọc cùng khám phá công năng tiện nghi và chiêm ngưỡng phối cảnh 3D tuyệt đẹp của công trình qua bài viết dưới đây.

Ngoại thất của ngôi nhà gợi lên cho người xem nét đẹp xa hoa, đẳng cấp nhưng không kém phần hiện đại. Ngay tại tầng một, mảng tường được ốp bằng lớp sơn giả đá cao cấp tông vàng sang trọng, vừa tôn lên vẻ bề thế cho mặt tiền vừa gia tăng độ bền và thuận tiện trong quá trình sử dụng, bảo dưỡng.

Khu vực ban công được thiết kế rộng rãi, thoáng đãng, nổi bật với lan can sắt mỹ thuật tông vàng đen sang trọng, những đường uốn lượn mềm mại được chế tác tinh xảo như một điểm nhấn nghệ thuật cho mặt tiền. Không chỉ đảm bảo an toàn, chi tiết này còn góp phần tôn lên vẻ kiêu sa và đẳng cấp đặc trưng của phong cách tân cổ điển.

Toàn bộ hệ cửa sử dụng khung nhôm Xingfa kết hợp kính cường lực cao cấp, mang đến độ bền vượt trội và khả năng cách âm, cách nhiệt hiệu quả. Chất liệu kính trong suốt giúp mở rộng tầm nhìn, đón trọn ánh sáng tự nhiên và tạo cảm giác không gian luôn thông thoáng, giao hòa với cảnh quan bên ngoài. Đồng thời, bề mặt kính còn khéo léo phô diễn vẻ đẹp nội thất bên trong, để ánh sáng phản chiếu những chi tiết sang trọng, góp phần hoàn thiện diện mạo lộng lẫy và đầy cuốn hút cho ngôi nhà phố tân cổ điển 3 tầng.

Dù sở hữu mặt tiền chỉ 5,1m, công trình vẫn được chăm chút đưa yếu tố thiên nhiên hiện diện ở từng cao độ, tạo nên sự cân bằng hài hòa giữa kiến trúc và không gian sống. Các ban công được bố trí mảng xanh hợp lý với cây cảnh và tiểu cảnh nhỏ, vừa làm mềm những khối hình vững chãi vừa mang lại cảm giác thư thái, dễ chịu cho gia chủ sau mỗi ngày trở về.
Khoảng sân phía trước được thiết kế gọn gàng, đủ rộng để đỗ xe thuận tiện, lát gạch chống trơn sạch sẽ và bền vững theo thời gian. Không gian đệm này không chỉ tăng tính tiện nghi mà còn góp phần tạo nên diện mạo chỉn chu, sang trọng.


Về vị trí, công trình tọa lạc theo hướng Đông Bắc trên khu đất có kích thước 5,1 x 14,7m, với quy mô xây dựng 3 tầng. Tổng diện tích sàn sử dụng khoảng 210m² được tổ chức khoa học nhằm đảm bảo sự rộng rãi và thông thoáng cho từng khu vực chức năng.

Nhờ lợi thế phát triển theo chiều cao kết hợp cùng sự hỗ trợ của hệ thống thang máy hiện đại, công năng bên trong ngôi nhà được tổ chức khoa học và tối ưu đến từng centimet, mang lại sự thuận tiện tối đa trong quá trình sử dụng hằng ngày. Từ sảnh chính bước vào, không gian phòng khách mở ra rộng thoáng và sang trọng. Qua khu vực sảnh thang đến khu bếp – ăn tiện nghi. Cuối nhà là một nhà vệ sinh chung được sắp xếp hợp lý, đảm bảo sự tiện nghi và thoải mái trong sinh hoạt.

Tại tầng 2, ba phòng ngủ được sắp xếp khoa học, đảm bảo sự riêng tư và yên tĩnh cần thiết cho từng thành viên. Mỗi phòng đều thuận tiện trong việc bố trí nội thất, đồng thời được tính toán hợp lý để đón ánh sáng tự nhiên, mang lại cảm giác thoáng đãng và dễ chịu. Khu vực vệ sinh chung được tổ chức gọn gàng, đặt ở vị trí hợp lý nhằm tối ưu diện tích sử dụng và duy trì sự liền mạch trong sinh hoạt hằng ngày.

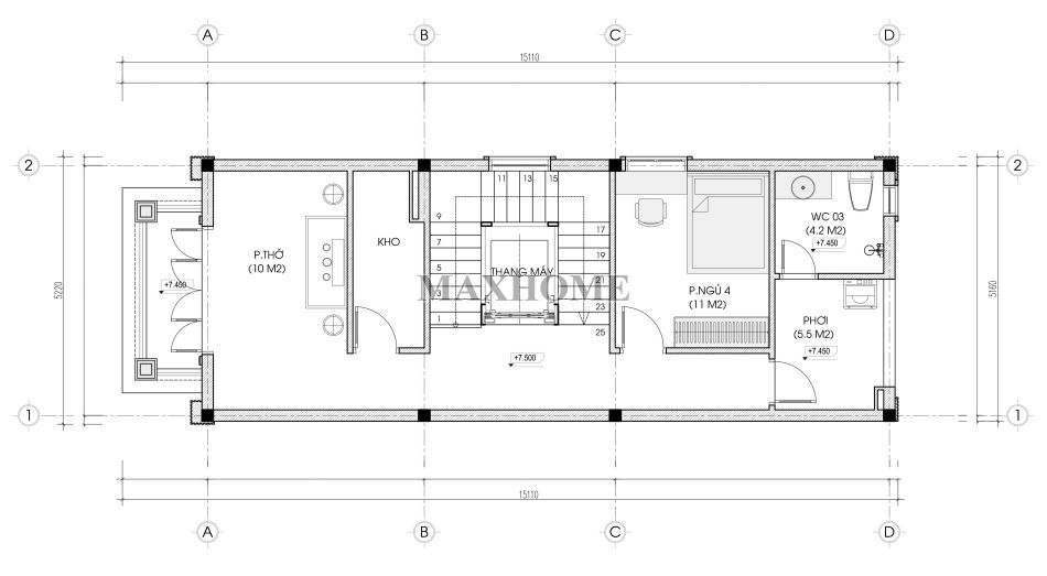
Trên tầng 3, phòng thờ được đặt tại vị trí cao nhất của ngôi nhà, đảm bảo sự trang nghiêm và riêng tư theo đúng nguyên tắc phong thủy. Không gian này sở hữu ban công thoáng rộng, đón gió tự nhiên và ánh sáng hài hòa, góp phần lưu thông sinh khí, mang ý nghĩa thu hút tài lộc và bình an cho gia đình.
Liền kề phòng thờ là khu vực kho được bố trí kín đáo, thuận tiện cho việc lưu trữ mà không ảnh hưởng đến tổng thể thẩm mỹ. Phía cuối tầng là một phòng ngủ yên tĩnh, kết hợp cùng một phòng vệ sinh chung và sân phơi thông thoáng, tạo nên mặt bằng công năng hoàn chỉnh, đáp ứng linh hoạt nhu cầu sử dụng.












