Mẫu nhà phố 4 tầng có nhiều phòng ngủ, phù hợp kinh doanh tại gia | MH05434
| Chủ đầu tư: Chị Trịnh Quế Anh | Số tầng: 4 |
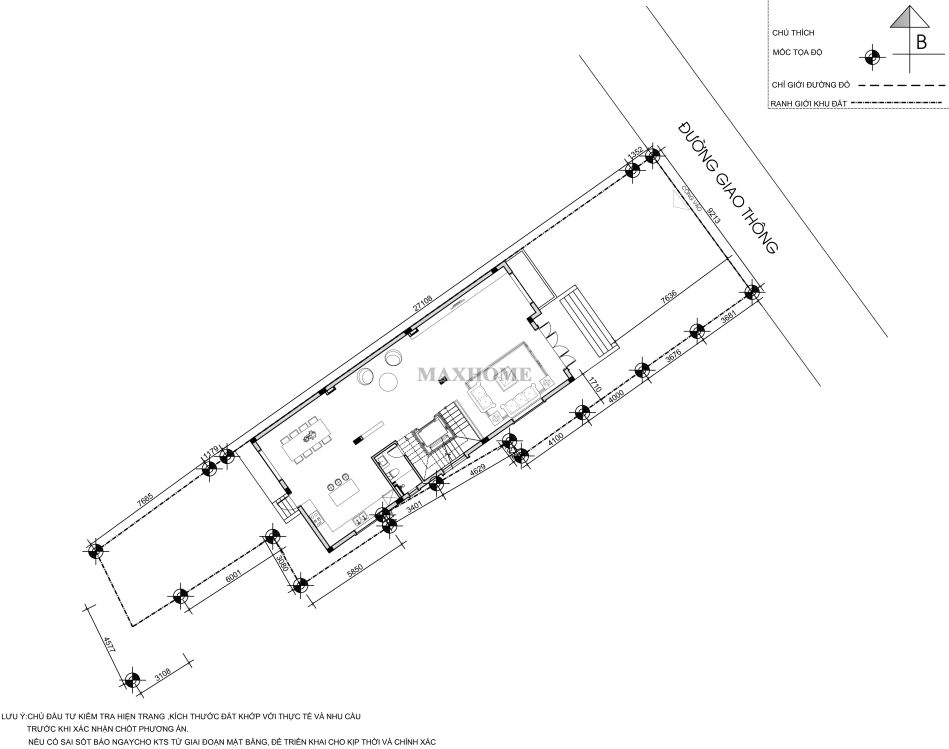
| Địa chỉ: Minh Đức, Đồ Sơn, Hải Phòng | Diện tích xây dựng: 7,5 x 20,4m |
| Loại hình: Nhà phố hiện đại | Tổng diện tích: 608m2 |
Công năng:
(Công trình có sử dụng thang máy) |
|
Dưới đây là mẫu thiết kế nhà phố 4 tầng do Maxhome thực hiện – đơn vị kiến trúc hàng đầu Việt Nam nổi tiếng với những bản vẽ tối ưu diện tích và tạo được dấu ấn riêng cho từng gia chủ. Ngay từ khoảnh khắc đầu nhìn vào, căn nhà phố to lớn mang tới cảm giác sáng, thanh lịch và hiện đại, phù hợp với những gia đình muốn một không gian sống chỉn chu và sang trọng giữa khu phố.
Mẫu nhà phố 4 tầng toạ lạc tại thành phố biển Đồ Sơn, Hải Phòng thuộc sở hữu của gia đình chị Quế Anh. Ngoại thất của mẫu nhà đẹp nổi bật nhờ hình khối vuông vức và bố cục cân đối. Từ xa, mặt tiền gây ấn tượng với thiết kế thông thoáng và nhịp điệu lặp lại ở các tầng tạo nên vẻ đẹp ổn định theo chiều cao.

Điểm nhấn đặc biệt của ngoại thất nằm ở hệ cửa kính lớn kết hợp khung màu tối giúp ánh sáng tự nhiên có thể vào nhà dễ dàng khiến không gian bên trong lúc nào cũng thoáng và sáng. Thêm vào đó, cửa vòm là chi tiết làm mềm mặt tiền mang tới cảm giác sang nhưng vẫn gần gũi, đây là xu hướng đang được nhiều chủ nhà yêu thích vì giúp công trình có thần thái riêng mà không quá rườm rà.

Khi nhìn theo chiều thẳng đứng, các ô cửa và ban công được sắp xếp đồng bộ tạo nên mặt đứng hài hòa, dễ chịu và đúng tinh thần của một nhà phố 4 tầng hiện đại. Ban công của mỗi tầng được làm rộng cùng tay vịn sắt thanh mảnh màu đen, nổi bật trên nền tường trắng, cách phối màu đơn giản mà tinh tế này giúp mặt tiền sáng và sạch sẽ.
Tầng trên cùng còn có khoảng sân thượng nhỏ rất lý tưởng để đặt vài chậu cây hay tạo một góc thư giãn. Ngoài ra, đèn âm trần xuất hiện nhiều ở khu ban công và sảnh chính để đảm bảo ngôi nhà luôn nổi bật khi lên đèn. Với những ai muốn kinh doanh tại gia thì ánh sáng mặt tiền đẹp cũng là một lợi thế vì tạo cảm giác chuyên nghiệp cho khách ghé thăm.

Trong bối cảnh đô thị ngày càng đông, việc có thêm mảng xanh quanh nhà mang lại sự thư giãn và cảm giác sống giữa thiên nhiên, vậy nên căn nhà phố này đã được bao bọc bởi nhiều mảng xanh xung quanh để cân bằng không gian sống. Ngoài ra, tường rào trắng bao quanh gọn và sạch cũng góp phần giữ sự đồng bộ với màu chủ đạo của ngôi nhà.

Mái bằng mang phong cách hiện đại ở trên được bố trí hệ thống bồn nước và năng lượng mặt trời gọn gàng. Nhìn tổng thể, ngôi nhà cân bằng giữa tính thẩm mỹ và sự thực dụng, rất hợp với nhu cầu sử dụng lâu dài của gia đình nhiều thế hệ hoặc những ai muốn kinh doanh ngay tại tầng 1.


Mẫu nhà phố 4 tầng sở hữu mảnh đất rất rộng lớn, sau thiết kế vẫn dư khoảng sân trước và sân sau thoải mái để trồng thêm ít cây xanh hoặc để xe cộ. Mời bạn cùng Maxhome tiến vào bên trong tham quan công năng căn nhà phố có tới 10 phòng ngủ rất đặc biệt, đáp ứng theo đúng như yêu cầu của gia đình chị Quế Anh.

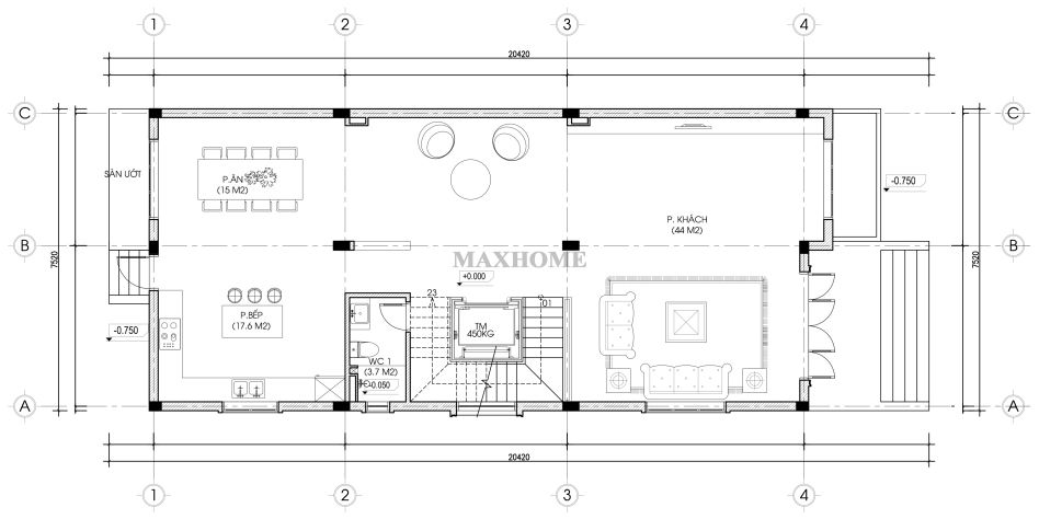
Ngay khi bước vào là phòng khách rộng rãi tới 44m2 để đón tiếp khách và bạn bè tới chơi cùng gia đình. Đi thẳng vào bên trong là phòng bếp và phòng ăn được thiết kế liên thông để giúp việc nấu nướng và dọn dẹp trở nên gọn gàng hơn. Nhờ thiết kế mở, ánh sáng và gió tự nhiên lan tỏa dễ dàng tạo cảm giác thoải mái cho khu vực nấu nướng. Bên cạnh đó còn có 1 nhà vệ sinh chung được đặt hợp lý cạnh cầu thang và phòng bếp để phục vụ nhu cầu sử dụng.
Công trình nhà phố 4 tầng của chị Quế Anh cũng được bố trí thang máy giúp việc di chuyển giữa các tầng nhẹ nhàng hơn và phù hợp cho những người lớn tuổi.

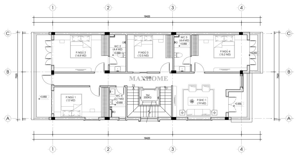
Tầng 2 và tầng 3 được xem là khu vực nghỉ ngơi chính của cả nhà. Cả hai tầng đều có phòng sinh hoạt chung nằm ở vị trí trung tâm nơi các thành viên gặp gỡ, trò chuyện hoặc thư giãn trước khi vào phòng riêng. Bốn phòng ngủ được phân chia đều giúp đảm bảo sự riêng tư và thoải mái cho từng người, từng phòng ngủ đều được thiết kế thông minh giúp mỗi phòng đều có ánh sáng tự nhiên và không khí thoáng. Cuối cùng là ba nhà vệ sinh được bố trí ở các vị trí thuận tiện giúp việc sinh hoạt được tối ưu.

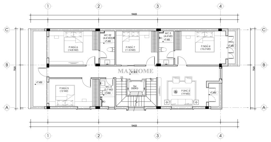
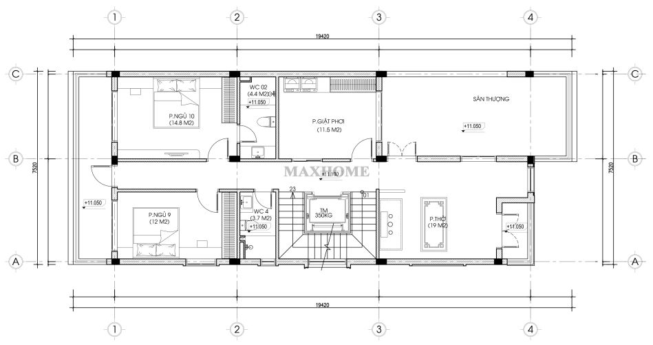
Tầng 4 có 2 phòng ngủ phù hợp cho khách hoặc người thân ở lại mà vẫn giữ được sự dễ chịu nhờ có khoảng không mở ra ban công phía sau. Bên cạnh đó, khu giặt phơi đặt tách biệt giúp việc giặt giũ gọn gàng và sạch sẽ. Hai nhà vệ sinh thì được phân bổ hợp lý để phục vụ sinh hoạt riêng của các phòng. Cuối cùng là sân thượng là không gian thoáng rộng có thể dùng để trồng cây thư giãn hoặc là nơi gia đình tụ họp vào buổi chiều.












