Mẫu nhà phố mặt tiền 6m 3 phòng ngủ rất phù hợp với gia đình trẻ | MH04800
| Chủ đầu tư: Anh Vi Văn Bé Sáu | Số tầng: 2 |
| Địa chỉ: Duyên Hải, Trà Vinh | Diện tích xây dựng: 6 x 16,1m |
| Loại hình: Nhà lô phố hiện đại | Tổng diện tích: 193m2 |
Công năng:
|
|
Ngôi nhà phố mặt tiền 6m có kích thước xây dựng cụ thể 6×16,1m do Maxhome thiết kế dành cho gia đình anh Sáu ở Trà Vinh, đây là lựa chọn lý tưởng cho những gia đình trẻ muốn sở hữu một không gian sống hiện đại, tinh tế và tối ưu diện tích đất phố. Mời bạn tham khảo chi tiết bản vẽ ngay trong bài viết dưới đây nhé!
Ngay từ mặt tiền chính diện, mẫu nhà phố mặt tiền 6m này gây ấn tượng mạnh bởi phong cách kiến trúc hiện địa, tối giản nhưng đầy tinh tế. Tông màu chủ đạo là sự kết hợp giữa trắng tinh khôi, gạch giả gỗ ấm áp và xám đá sang trọng tạo nên tổng thể cân đối và thanh thoát. Phần mặt tiền được thiết kế theo bố cục phi đối xứng tạo cảm giác độc đáo và giúp ngôi nhà trở nên nổi bật giữa khu phố.

Tầng 1 sử dụng đá ốp tường xám vân mây trắng tạo điểm nhấn chắc chắn và sang trọng cho khối đế. Hệ cửa chính bằng kính cường lực khung nhôm màu đen hiện đại giúp không gian bên trong luôn tràn ngập ánh sáng tự nhiên. Phần ban công tầng 2 được bao quanh bằng lan can kính cường lực trong suốt mang đến cảm giác nhẹ nhàng và mở rộng không gian thị giác, đây cũng là một chi tiết đặc trưng thường thấy trong các mẫu nhà phố mặt tiền 6m của Maxhome.

Điểm đặc biệt khiến ngôi nhà anh Sáu trở nên nổi bật chính là phần mái Thái tạo khung chắc chắn và lắp đặt gạch thông gió sáng tạo. Thiết kế này không chỉ tăng tính thẩm mỹ mà còn mang lại sự vững chãi, giúp công trình nhà anh Sáu trở nên khác biệt giữa hàng loạt mẫu nhà phố thông thường. Họa tiết gạch thông gió được bố trí phía sau lớp mái Thái giả tạo ra hiệu ứng ánh sáng và bóng đổ đẹp mắt vừa giúp lưu thông không khí vừa tạo nét duyên dáng cho mặt tiền.

Từ góc nhìn bên hông, ta có thể thấy bố cục của mẫu nhà phố mặt tiền 6m được tối ưu hóa để đón ánh sáng và gió tự nhiên. Các khung cửa sổ được bố trí hợp lý ở các hướng khác nhau để đảm bảo không gian bên trong luôn thoáng đãng và mát mẻ. Phần tường ngoài được sơn trắng sáng, đi kèm chân tường ốp đá tối màu giúp bảo vệ lớp sơn khỏi bụi bẩn và rêu mốc.
Hệ thống chiếu sáng âm trần được bố trí tinh tế ở mái hiên và ban công giúp ngôi nhà trở nên nổi bật cả vào ban đêm. Khi ánh đèn phản chiếu lên bề mặt gạch ốp và kính sẽ giúp nhà phố mặt tiền 6m này như khoác lên mình vẻ sang trọng, hiện đại, toát lên phong cách sống tinh tế của gia chủ.


Cổng và hàng rào của ngôi nhà phố mặt tiền 6m được thiết kế cùng tông với mặt tiền thể hiện rõ sự đồng bộ và tinh tế trong toàn bộ công trình. Hàng rào được làm bằng bê tông kết hợp với gạch thông gió thoáng mát và giúp gió lưu chuyển dễ dàng vào bên trong khuôn viên. Cổng chính được làm bằng sắt sơn tĩnh điện kết hợp sơn giả gỗ mang lại vẻ hiện đại, chắc chắn mà không kém phần sang trọng.

Nhờ vào các mảng khối được xử lý khéo léo, công trình nhà phố 2 tầng này đã mang đến cảm giác năng động và phù hợp với xu hướng thiết kế nhà phố hiện đại ngày nay. Mọi chi tiết đều được Maxhome cân nhắc kỹ lưỡng để vừa đảm bảo công năng vừa thể hiện được gu thẩm mỹ cao của chủ nhà.

Mặt bằng định vị tổng thể của ngôi nhà phố mặt tiền 6m được triển khai trên khu đất khá rộng với phần công trình chính xây dựng 6×16,1m. Khoảng sân bên cạnh rộng rãi đóng vai trò làm chỗ để xe và không gian đệm giúp mặt tiền thoáng đãng và tăng tính thẩm mỹ. Ranh giới khu đất được xác định rõ ràng và tiếp giáp đường giao thôngm phía trước.

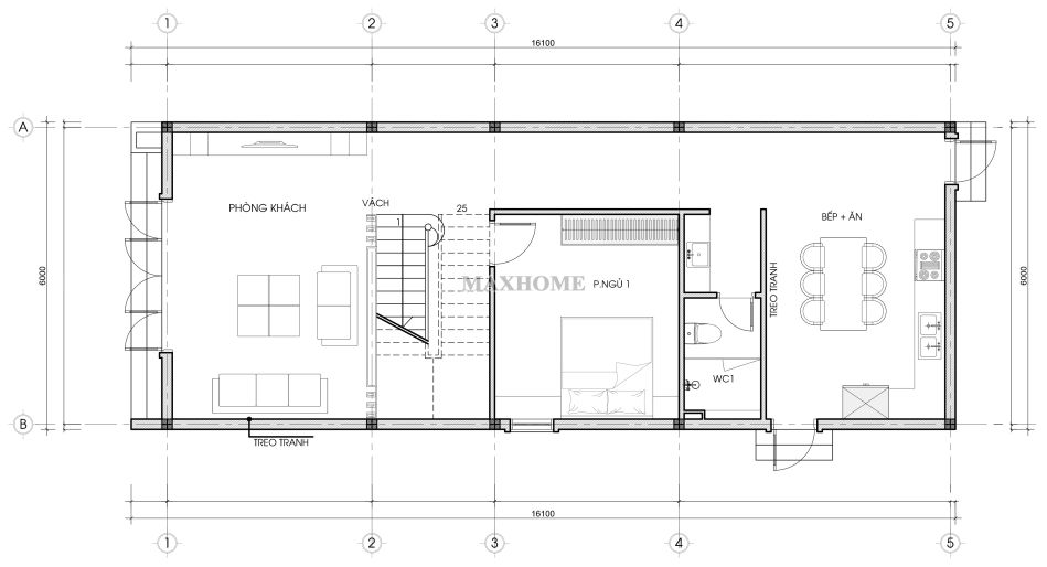
Từ cổng bước vào là sân đậu xe và bước qua sảnh chính là đến với phòng khách rộng thoáng, ngập tràn ánh sáng tự nhiên. Cầu thang chữ U được đặt giữa nhà đóng vai trò phân tách nhẹ giữa không gian sinh hoạt chung và khu vực riêng tư. Ngay cạnh là phòng ngủ nhỏ và khu vực vệ sinh chung, phía cuối là phòng bếp thông thoáng nhờ cửa sau mở ra sân sau, tạo sự lưu thông khí tối ưu trong căn nhà phố hẹp.

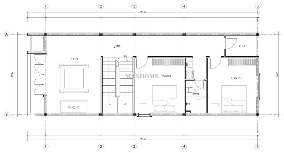
Tầng 2 có phòng thờ, 2 phòng ngủ, 1 vệ sinh chung và khu vực phơi đồ phía sau. Phòng thờ nằm ở vị trí mặt tiền, hướng ra ban công một cách trang trọng và đón sáng tốt. Hai phòng ngủ được sắp xếp khoa học đều có cửa sổ lấy sáng và đón gió tự nhiên, mang lại không gian riêng tư và thoải mái cho các thành viên trong gia đình. Nhìn tổng thể, cách bố trí mặt bằng của nhà anh Sáu ở Trà Vinh do Maxhome thiết kế thể hiện rõ tư duy tối ưu không gian và rất phù hợp với những gia đình trẻ yêu thích phong cách sống tiện nghi, tinh gọn.











