Mẫu nhà phố tân cổ điển 3 tầng 1 lửng đẹp sang trọng, kiêu sa tại Huế | MH05892
| Chủ đầu tư: Anh Phan Chí Cường | Số tầng: 3 tầng 1 lửng |
| Địa chỉ: Phú Bài, Huế | Diện tích xây dựng: 6 x 23,3m |
| Loại hình: Nhà phố tân cổ điển | Tổng diện tích: 430m2 |
Công năng:
|
|
Trong bối cảnh đô thị ngày càng chật hẹp, nhu cầu sở hữu một không gian sống vừa tiện nghi, vừa thể hiện đẳng cấp thẩm mỹ đang trở thành mong muốn chung của nhiều gia chủ. Những mẫu nhà phố tân cổ điển 3 tầng 1 lửng vì thế ngày càng được ưa chuộng, đặc biệt tại các khu dân cư có mật độ xây dựng cao. Không chỉ giải quyết tốt bài toán công năng, phong cách tân cổ điển còn mang đến vẻ đẹp bền vững, sang trọng và khẳng định vị thế gia chủ theo thời gian.
Ngay từ cái nhìn đầu tiên, mẫu nhà phố tân cổ điển 3 tầng 1 lửng mặt tiền 6m của gia đình anh Cường đã tạo ấn tượng mạnh bởi tỷ lệ hình khối chuẩn mực và bố cục mặt đứng đầy cuốn hút. Trên quỹ đất phố không quá rộng, công trình được tổ chức theo trục đối xứng rõ ràng, giúp tổng thể trở nên bề thế, cao ráo nhưng vẫn gọn gàng, thanh thoát. Đây là giải pháp thiết kế thường thấy trong kiến trúc tân cổ điển, đặc biệt phù hợp với nhà phố hẹp ngang, cần tạo chiều sâu thị giác.

Mặt tiền nhà phố tân cổ điển 3 tầng 1 lửng được xử lý tinh tế với hệ cột trụ lớn âm tường chạy xuyên suốt các tầng. Các đường phào chỉ được tiết chế vừa đủ, không quá cầu kỳ nhưng vẫn thể hiện rõ tinh thần tân cổ điển sang trọng.
Từng chi tiết như đầu cột, phù điêu, ban công bán nguyệt đều được kiến trúc sư Maxhome nghiên cứu kỹ lưỡng để đảm bảo sự hài hòa tổng thể, tránh cảm giác nặng nề thường gặp ở những công trình cổ điển truyền thống.

Hệ ban công là một trong những yếu tố tạo nên “linh hồn” cho mặt tiền công trình. Lan can sắt nghệ thuật sơn tĩnh điện màu đen kết hợp hoa văn mạ vàng mang lại cảm giác vừa mạnh mẽ, vừa tinh xảo.
Ban công các tầng được bố trí hợp lý, không chỉ đóng vai trò trang trí mà còn giúp tăng khả năng thông thoáng, đón gió và ánh sáng tự nhiên cho không gian bên trong. Đây là một điểm cộng lớn trong thiết kế nhà phố đô thị, nơi sự bí bách luôn là vấn đề cần được giải quyết.

Công trình sử dụng gam màu trắng kem chủ đạo, kết hợp với đá ốp màu vàng nhạt ở tầng 1, tạo nên sự tương phản nhẹ nhàng nhưng đầy sang trọng. Màu trắng giúp ngôi nhà nổi bật giữa dãy phố, đồng thời mang lại cảm giác sạch sẽ, thanh lịch.
Trong khi đó, vật liệu đá tự nhiên ở tầng 1 không chỉ tăng độ bền cho công trình mà còn tạo cảm giác vững chãi, chắc chắn cho phần đế nhà – yếu tố rất quan trọng trong kiến trúc nhà cao tầng.

Cửa chính và hệ cửa sổ được thiết kế đồng bộ với khung kính lớn, vừa đảm bảo tính thẩm mỹ, vừa giúp không gian nội thất bên trong luôn tràn ngập ánh sáng tự nhiên. Việc sử dụng kính còn giúp “nới rộng” không gian về mặt thị giác, đặc biệt hiệu quả với những căn nhà phố mặt tiền 6m. Sự kết hợp hài hòa giữa vật liệu hiện đại và ngôn ngữ kiến trúc tân cổ điển chính là điểm mạnh trong các thiết kế của Maxhome.

Điều đáng nói ở mẫu nhà phố tân cổ điển 3 tầng 1 lửng này chính là sự chỉn chu trong từng chi tiết thiết kế. Từ tỷ lệ hình khối, cách xử lý mặt đứng, lựa chọn vật liệu cho đến màu sắc tổng thể, tất cả đều được kiến trúc sư Maxhome tính toán kỹ lưỡng nhằm mang lại một công trình không chỉ đẹp ở hiện tại mà còn bền vững theo thời gian. Trên mặt tiền 6m, việc tối ưu không gian theo chiều cao kết hợp phong cách tân cổ điển giúp ngôi nhà vừa sang trọng, vừa đáp ứng đầy đủ công năng sử dụng cho gia đình nhiều thế hệ.

Không gian xanh cũng được chú trọng đưa vào thiết kế một cách khéo léo. Những chậu cây nhỏ bố trí tại ban công các tầng không chỉ giúp mặt tiền trở nên mềm mại hơn mà còn góp phần cải thiện vi khí hậu, mang thiên nhiên đến gần hơn với cuộc sống đô thị. Đây là xu hướng thiết kế nhà ở hiện đại, hướng đến sự cân bằng giữa kiến trúc và môi trường sống.

Sau khi tiếp nhận yêu cầu từ gia đình anh Cường, đội ngũ kiến trúc sư Maxhome đã trực tiếp khảo sát hiện trạng khu đất để đưa ra phương án thiết kế tối ưu. Công trình có mặt tiền hướng Đông Bắc, diện tích xây dựng 6 x 23,3m, tổng diện tích sử dụng lên tới 430m². Thiết kế không chỉ đảm bảo đầy đủ công năng tiện nghi mà còn hài hòa về thẩm mỹ, đáp ứng toàn diện nhu cầu sinh hoạt và gu thẩm mỹ riêng của gia chủ.

Tầng 1 được tổ chức không gian hợp lý, kết hợp hài hòa giữa mục đích kinh doanh và sinh hoạt gia đình. Ngay từ mặt tiền là khu vực kinh doanh kết hợp phòng khách sang trọng với diện tích lên đến 53m², tạo cảm giác rộng rãi và chuyên nghiệp. Đi sâu vào bên trong qua sảnh thang là khu bếp – ăn 29m² thoáng đãng, bố trí gọn gàng, thuận tiện cho sinh hoạt hằng ngày, phía cuối nhà là một nhà vệ sinh chung, đảm bảo sự tiện nghi và kín đáo cho cả gia đình.

Tầng lửng được thiết kế gọn gàng nhưng vẫn đảm bảo sự riêng tư và thông thoáng, gồm một phòng ngủ khép kín bố trí hợp lý, đáp ứng nhu cầu nghỉ ngơi tiện nghi. Bên cạnh đó là khoảng thông tầng thoáng rộng, giúp tăng cường ánh sáng tự nhiên, tạo sự kết nối không gian và mang lại cảm giác thoải mái cho toàn bộ ngôi nhà.

Tầng 2 được bố trí hoàn toàn cho không gian nghỉ ngơi với 3 phòng ngủ khép kín, mang đến sự riêng tư và tiện nghi tối đa cho từng thành viên trong gia đình. Việc bố trí nhà vệ sinh riêng trong từng phòng không chỉ nâng cao chất lượng sinh hoạt mà còn đáp ứng tốt nhu cầu sử dụng của gia đình đông người, đồng thời thể hiện sự đầu tư chỉn chu, tiện nghi trong tổng thể thiết kế nhà phố tân cổ điển.

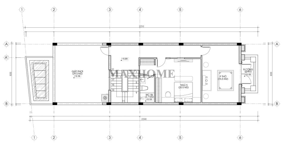
Trên tầng 3, phòng thờ được đặt ở vị trí cao ráo và trang nghiêm, vừa tuân thủ nguyên tắc phong thủy vừa thể hiện lòng thành kính sâu sắc của gia chủ đối với tổ tiên. Theo trục giao thông dọc ngôi nhà là một phòng ngủ khép kín, đáp ứng nhu cầu nghỉ ngơi riêng tư. Cuối cùng là khu vực giặt phơi được sắp xếp gọn gàng, khoa học, đảm bảo thuận tiện trong sinh hoạt hằng ngày mà vẫn giữ được sự ngăn nắp, hài hòa với tổng thể thẩm mỹ của ngôi nhà.











