Mẫu nhà vườn 1 tầng đẹp như biệt thự nghỉ dưỡng ở vùng quê | MH05988
| Chủ đầu tư: Anh Lê Đình Cường | Số tầng: 1 |
| Địa chỉ: Hợp Thành, Triệu Sơn, Thanh Hóa | Diện tích xây dựng: 17,4 x 12,4m |
| Loại hình: Nhà mái Nhật hiện đại | Tổng diện tích: 166m2 |
| Công năng:
Phòng khách, phòng thờ, phòng bếp, 4 phòng ngủ, 5 wc |
|
Không cần quá cao tầng hay đồ sộ, mẫu nhà vườn 1 tầng của anh Cường ở Triệu Sơn, Thanh Hóa hiện lên như một ốc đảo bình yên, mang dáng dấp của một khu nghỉ dưỡng cao cấp giữa lòng vùng quê thanh tịnh. Maxhome rất hân hạnh khi được gia đình anh Sơn tin tưởng và lựa chọn làm đơn vị thiết kế ngôi nhà mơ ước của cả gia đình, mời bạn cùng tham khảo bản vẽ nhà này nhé!
Ngôi nhà gây ấn tượng mạnh bởi sự kết hợp độc đáo giữa nét hiện đại và phong cách mới lạ mà tinh tế. Thay vì những hệ cột vuông hay tròn truyền thống ở sảnh chính, công trình tạo điểm nhấn bằng một cấu trúc vòm bo cong mềm mại ở khu vực lối vào trung tâm. Chi tiết vòm này không chỉ xóa đi sự khô cứng của các khối tường mà còn tạo ra một khung tranh kiến trúc ôm lấy hệ cửa chính, gợi liên tưởng đến những không gian nghỉ dưỡng cao cấp tại các resort hạng sang.

Về tổng thể hình khối, ngôi nhà được thiết kế theo dạng khối hộp hiện đại với mặt tiền rộng 17,4m. Hệ mái Nhật màu xám với độ dốc vừa phải được thiết kế đua rộng ra bốn phía giúp bảo vệ tường nhà khỏi tác động của thời tiết. Đặc biệt, phần dưới mái hiên được ốp gỗ nhựa màu nâu trầm với những đường chỉ kẻ ngang tinh xảo, kết hợp cùng hệ đèn LED hắt sáng âm trần tạo nên một diện mạo vô cùng ấm cúng và sang trọng. Sự phối hợp giữa tông màu trắng sứ của tường, màu nâu của gỗ và màu xám của mái tạo nên một bản giao hưởng màu sắc nhã nhặn, hài hòa tuyệt đối với cảnh quan thiên nhiên xung quanh.

Đi sâu vào chi tiết, mặt tiền của ngôi nhà là một sự sắp đặt đầy nghệ thuật của các mảng vật liệu. Phía bên trái sảnh chính là một mảng tường lớn được sơn giả gỗ màu nâu, tạo điểm tựa thị giác vững chãi, trong khi phía bên phải lại là hệ cửa sổ kính lớn kịch trần cho phép ánh sáng tự nhiên tràn ngập vào không gian nội thất. Điểm độc đáo nằm ở việc sử dụng các thanh nan trang trí ở khu vực cửa sổ và góc sảnh vừa có tác dụng điều tiết ánh sáng vừa tạo sự riêng tư mà vẫn đảm bảo độ thông thoáng.

Hệ cửa chính và cửa sổ đều sử dụng khung nhôm màu đen thanh mảnh tạo độ tương phản sắc nét trên nền tường trắng. Phía dưới, phần chân đế của công trình được tôn cao so với mặt sân bằng hệ bậc ngũ cấp rộng mở, ốp gạch thẻ màu tối sang trọng giúp ngôi nhà vườn 1 tầng đẹp trông thanh thoát và cao ráo hơn. Chạy dọc chân tường là các bồn hoa thấp được xây bằng gạch thẻ xám, nơi chủ nhân có thể trồng những khóm hoa nhỏ hoặc cây bụi để tăng thêm sức sống cho công trình.

Hệ thống chiếu sáng cũng là một điểm cộng lớn cho ngoại thất mẫu nhà cấp 4 này. Thay vì những mẫu đèn chùm cầu kỳ, kiến trúc sư Maxhome đã sử dụng các mẫu đèn gắn tường hiện đại hình khối đơn giản và phát sáng hai đầu. Khi hoàng hôn buông xuống, ánh sáng vàng ấm áp từ các vị trí này kết hợp với ánh đèn từ bên trong hắt ra qua các ô cửa kính lớn sẽ biến ngôi nhà anh Cường thành một tổ ấm lung linh và yên bình. Với sự kết hợp hoàn hảo giữa công năng và thẩm mỹ, mẫu nhà vườn 1 tầng này không chỉ là nơi để ở mà còn là một nơi để trở về, để tận hưởng những phút giây nghỉ ngơi đúng nghĩa sau những bộn bề của cuộc sống.

Hệ thống tường bao của công trình được thiết kế kiên cố nhưng vẫn giữ được sự thanh thoát, đồng bộ hoàn hảo với kiến trúc hiện đại của ngôi nhà chính. Tường rào là sự kết hợp khéo léo giữa các mảng đặc và rỗng từ các trụ cột bê tông vuông vắn, sơn trắng tinh khôi được bố trí cách đều xen kẽ với những khoảng hở lắp nan sắt sơn tĩnh điện đen tuyền để tạo sự thông thoáng và giúp phô diễn vẻ đẹp ngoại thất bên trong.


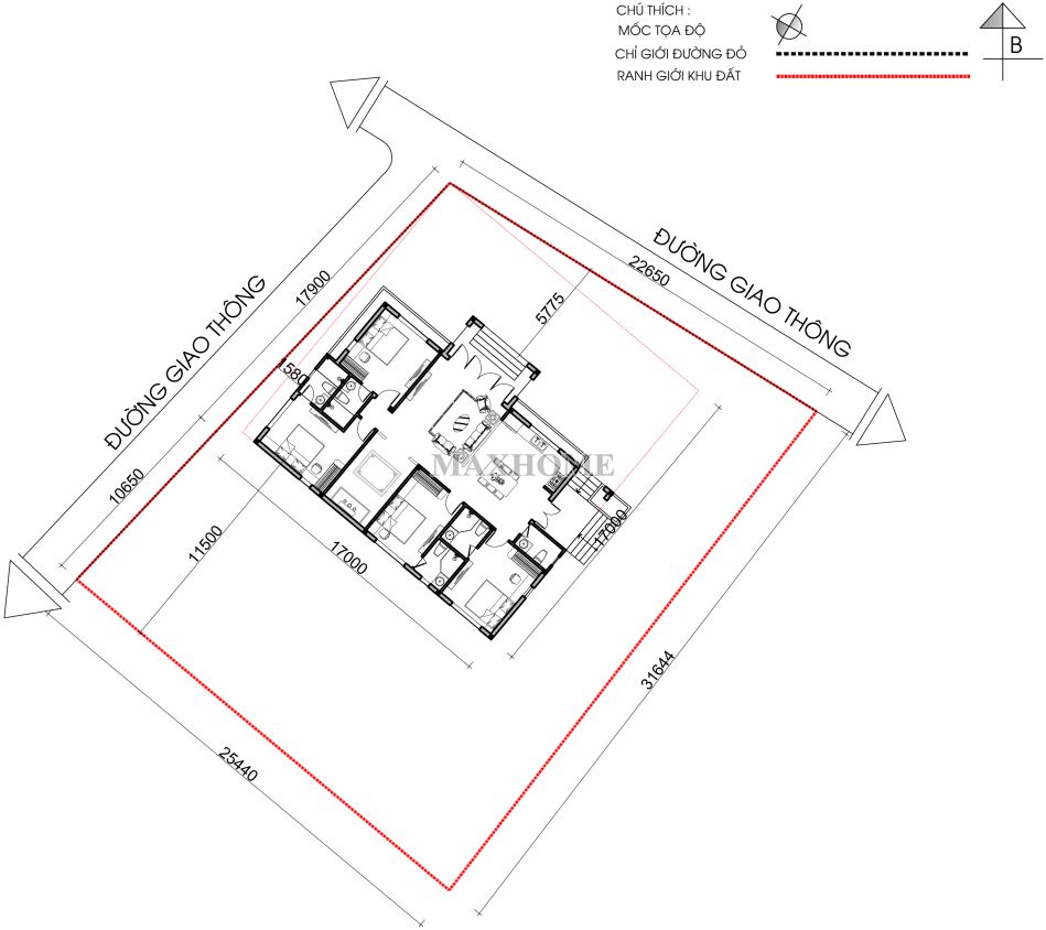
Ngôi nhà vườn 1 tầng đẹp nằm trên một khuôn viên đất rộng lớn tiếp giáp với hai mặt đường giao thông lớn. Ngôi nhà có kích thước xây dựng 17,4×12,4m, kKhoảng sân trước được thiết kế rất rộng tạo không gian đệm lý tưởng để đỗ xe hơi và làm sân chơi. Công trình chính được đặt lùi về phía sau và sang một bên khu đất để tối ưu hóa diện tích làm sân vườn xung quanh, đảm bảo tất cả các mặt của ngôi nhà đều có thể đón ánh sáng và gió tự nhiên.

Bản vẽ mặt bằng nội thất thể hiện sự tối ưu hóa công năng sử dụng cho một gia đình nhiều thế hệ. Không gian trung tâm là phòng khách rộng 24m2 đặt ngay sau sảnh chính và kết nối trực tiếp với khu vực bếp 23m2 tạo thành một không gian sinh hoạt chung xuyên suốt. Ngôi nhà sở hữu 4 phòng ngủ với diện tích dao động từ 13.5m2 đến 14.5m2, trong đó các phòng ngủ đều được bố trí cửa sổ lớn hướng ra sân vườn và đều sở hữu riêng nhà vệ sinh khép kín bên trong, đảm bảo sự tiện nghi tối đa cho các thành viên. Ngoài ra, phòng thờ trang trọng rộng 14.5m2 được đặt ở vị trí yên tĩnh, thể hiện nét văn hóa truyền thống của gia đình Việt.











