Mẫu nhà vườn 1 tầng mái Nhật hiện đại, tiện nghi chuẩn xu hướng | MH05812
| Chủ đầu tư: Chú Đào Văn Loan | Số tầng: 1 |
| Địa chỉ: Bình Lục, Hà Nam | Diện tích xây dựng: 19,3 x 11,3m |
| Loại hình: Nhà vườn mái Nhật hiện đại | Tổng diện tích: 150m2 |
| Công năng:
Phòng khách, phòng thờ, phòng bếp, 4 phòng ngủ, 1 phòng tắm, 2 wc |
|
Mẫu nhà vườn 1 tầng mái Nhật hiện đại luôn là lựa chọn lý tưởng cho những ai yêu thích sự tiện nghi, tinh tế và hòa mình vào thiên nhiên. Trong bài viết hôm nay, Maxhome sẽ giới thiệu thiết kế tuyệt đẹp dành cho gia đình chú Loan tại Hà Nam – một công trình chuẩn xu hướng, đáp ứng trọn vẹn nhu cầu thẩm mỹ lẫn công năng. Với kiến trúc hài hòa, không gian sống rộng thoáng và cách bố trí thông minh, mẫu nhà này hứa hẹn truyền cảm hứng cho những ai đang tìm kiếm tổ ấm lý tưởng.
Ngôi nhà vườn mái Nhật 1 tầng chinh phục người nhìn nhờ vẻ đẹp hài hòa giữa sự đơn giản, thanh lịch và nét sang trọng tinh tế. Ngoại thất được bao quanh bởi khuôn viên sân vườn xanh mát, được chăm chút tỉ mỉ, tạo nên khung cảnh thơ mộng và gần gũi với thiên nhiên. Không gian này không chỉ mang lại cảm giác bình yên, thư thái cho gia chủ mà còn giúp tận hưởng bầu không khí trong lành, dễ chịu, lý tưởng cho một cuộc sống an yên và thoải mái.

Với góc nhìn chính diện, ngôi nhà 1 tầng mái Nhật thu hút bởi hình khối bề thế, đường nét vững chãi và hệ trụ cột vuông chắc chắn được ốp đá xám sang trọng, nổi bật với các đường kẻ trắng tinh tế.
Những mảng tường quanh khu vực cửa sổ được ốp gạch thẻ Inax, tạo cảm giác khỏe khoắn và tăng chiều sâu cho kiến trúc. Điểm nhấn nổi bật là mảng tường sơn xanh nổi lên trên nền trắng chủ đạo, mang đến sự hài hòa nhưng vẫn tạo nét phá cách hiện đại cho toàn bộ công trình.

Lợi thế mặt tiền rộng hơn 19m cùng với việc sử dụng toàn bộ chất liệu nhôm kính Xingfa cho các hệ cửa, giúp không gian bên trong luôn tràn ngập ánh sáng tự nhiên. Nhờ đó, ngôi nhà trở nên thoáng mát, dễ chịu và tiết kiệm đáng kể năng lượng chiếu sáng vào ban ngày.
Bề mặt kính lớn còn mở rộng tầm nhìn, kết nối hài hòa giữa nội thất và cảnh quan sân vườn xung quanh. Sự kết hợp này không chỉ nâng cao tiện nghi mà còn mang lại vẻ đẹp hiện đại, sang trọng cho tổng thể.


Hệ tam cấp gồm 5 bậc với tổng chiều cao 750mm giúp tôn lên dáng vẻ cao ráo và bề thế cho toàn bộ ngôi nhà vườn 1 tầng mái Nhật. Bề mặt sảnh và các bậc được lát bằng gạch granite vân mây sang trọng, mang đến cảm giác sạch sẽ và hiện đại ngay từ bước chân đầu tiên. Phần chân tường được ốp đá chẻ tự nhiên, không chỉ tăng tính thẩm mỹ mà còn bảo vệ công trình bền đẹp theo thời gian.

Thiết kế mái Nhật đặc trưng mang lại sự cân đối và vẻ thanh thoát cho ngôi nhà vườn 1 tầng, đồng thời phù hợp với điều kiện khí hậu Việt Nam. Không gian bên trong được bố trí khoa học, tạo nên môi trường sống tiện nghi và thoải mái cho mọi thành viên trong gia đình.
Hệ thống chiếu sáng, thông gió tự nhiên cùng téc nước và thái dương năng đều được tính toán kỹ lưỡng giúp nâng cao chất lượng sống đồng thời tiết kiệm năng lượng hiệu quả.

Không gian sân vườn trong mẫu thiết kế nhà đẹp này hiện lên như một chốn nghỉ dưỡng thu nhỏ giữa đời thường, nơi mỗi góc nhìn đều toát lên sự an yên và tinh tế. Sân lát gạch chống trơn với gam màu ghi sang trọng, sạch sẽ và bền vững theo thời gian.
Phía xa là chòi nghỉ mái ngói duyên dáng, được bao bọc bởi cây xanh và thảm cỏ mềm mại, trở thành điểm dừng chân lý tưởng để gia đình tận hưởng làn gió mát, hít thở trọn vẹn hương sắc thiên nhiên.

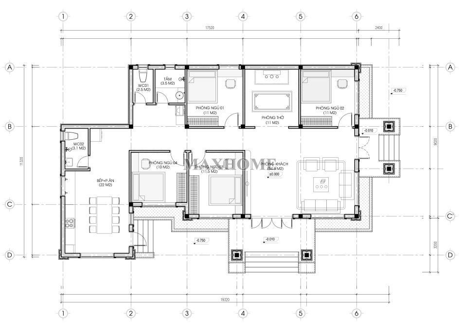
Về mặt vị trí, công trình tọa lạc ở hướng Đông Nam với kích thước xây dựng 19,3 × 11,3m, tạo nên một không gian kiến trúc cân đối và hài hòa với cảnh quan xung quanh. Tổng diện tích sử dụng khoảng 150m² được tính toán tối ưu để đáp ứng đầy đủ nhu cầu sinh hoạt của gia đình.
Sau khi khảo sát hiện trạng khu đất và lắng nghe mong muốn của gia chủ, đội ngũ kiến trúc sư đã nghiên cứu kỹ lưỡng và đề xuất phương án bố trí mặt bằng công năng hợp lý, đảm bảo tiện nghi, khoa học và phù hợp phong thủy.

Bước vào từ sảnh chính, bạn sẽ ấn tượng ngay với không gian phòng khách rộng mở, thoáng đãng, được bố trí nội thất tinh tế, sang trọng, phản ánh gu thẩm mỹ và sự hiếu khách của gia chủ. Liền kề là phòng thờ trang nghiêm, với hướng ban thờ đặt thẳng mặt tiền, mang ý nghĩa phong thủy tốt lành, giúp thu hút vượng khí và tài lộc cho gia đình.
Hệ thống 4 phòng ngủ được sắp xếp bao quanh nhà, tạo cảm giác quây quần, ấm áp, mỗi phòng đều được trang bị đầy đủ nội thất hiện đại, tiện nghi cho từng thành viên. Khu bếp – ăn được bố trí tách biệt và kết nối trực tiếp với sảnh phụ, mang đến sự mát mẻ, thông thoáng và thuận tiện trong quá trình di chuyển hàng ngày. Ngoài ra, ngôi nhà còn có 1 phòng tắm và 2 khu vệ sinh chung, đảm bảo sinh hoạt thoải mái và khoa học cho cả gia đình.











