Mẫu nhà vườn 2 tầng mái Nhật tân cổ điển, không gian sống sang trọng đáng mơ ước | MH06029
| Chủ đầu tư: Cô Nguyễn Thị Chanh | Số tầng: 2 |
| Địa chỉ: Phú Bình, Thái Nguyên | Diện tích xây dựng: 9,9 x 15,9m |
| Loại hình: Nhà mái Nhật tân cổ điển | Tổng diện tích: 250m2 |
Công năng:
|
|
Mẫu nhà vườn 2 tầng mái Nhật tân cổ điển đang trở thành lựa chọn ưu tiên của nhiều gia chủ nhờ vẻ đẹp hài hòa, tinh tế và giá trị thẩm mỹ bền vững theo thời gian. Phương án thiết kế do Maxhome thực hiện cho gia đình cô Chanh tại Thái Nguyên gây ấn tượng bởi bố cục chuẩn chỉnh, công năng tiện nghi và sự chỉn chu trong từng đường nét kiến trúc. Không gian sân vườn được quy hoạch xanh mát, sắp xếp khéo léo quanh công trình, góp phần tôn vinh tổng thể và nâng tầm giá trị sống.
Ngôi nhà vườn 2 tầng mái Nhật gây ấn tượng mạnh với vẻ đẹp tinh tế và khí chất sang trọng, thể hiện rõ gu thẩm mỹ cao cấp của gia chủ. Lợi thế mặt tiền rộng 9,9m giúp công trình phô diễn trọn vẹn tỷ lệ kiến trúc chuẩn mực, mở ra không gian sống thoáng đãng và bề thế, tựa như phong cách biệt thự nghỉ dưỡng. Hệ phào chỉ được tiết chế tinh xảo kết hợp các đường cong mềm mại bố trí hài hòa, mang đến chiều sâu cho mặt đứng và tạo nên diện mạo thanh lịch, đẳng cấp theo tinh thần tân cổ điển đương đại.

Khu vực sảnh trở thành điểm nhấn nổi bật với mái vòm uốn cong tinh tế cùng hệ trụ cột phối hợp hài hòa giữa hình khối vuông vức và đường tròn mềm mại, tạo nên tổng thể cân xứng và giàu tính thẩm mỹ.
Các chi tiết trang trí được tiết chế khéo léo, kết hợp ánh sáng từ đèn chùm pha lê cao cấp, mang đến diện mạo sang trọng nhưng vẫn giữ trọn vẻ vững chãi đặc trưng của kiến trúc tân cổ điển. Hệ bậc tam cấp nâng nền 750mm ốp đá granite cùng bộ cửa gỗ chạm khắc tinh xảo góp phần nâng tầm giá trị công trình, để ngay từ khoảnh khắc bước vào đã cảm nhận rõ sự đẳng cấp và uy nghi.

Hệ cửa sổ được thiết kế đồng bộ với khung nhôm kính Xingfa cao cấp kết hợp kính cường lực, mang đến tầm nhìn rộng mở, đón trọn ánh sáng tự nhiên và luồng gió mát cho toàn bộ không gian sống.
Những ô cửa vòm cùng ban công bán nguyệt tại mặt tiền trở thành điểm nhấn duyên dáng, góp phần làm mềm bố cục kiến trúc và tôn lên tinh thần tân cổ điển thanh lịch. Các đường cong được xử lý tinh tế không chỉ tạo cảm giác công trình cao ráo, khoáng đạt mà còn giúp ánh sáng và không khí phân bổ hài hòa, mang lại trải nghiệm sống rộng rãi, thư thái và đậm chất biệt thự cao cấp.

Lan can ban công sử dụng nhôm đúc nghệ thuật với họa tiết uốn lượn tinh xảo, gam màu ánh kim sang trọng nổi bật trên nền tường trắng thanh lịch. Bên cạnh giá trị thẩm mỹ, vật liệu nhôm đúc cao cấp còn ghi điểm bởi độ bền vượt trội, khả năng chống oxy hóa và giữ màu ổn định, giúp công trình luôn giữ được vẻ đẹp bền vững theo thời gian. Những ban công được tạo hình thanh thoát này không chỉ làm tăng sức hút cho mặt tiền mà còn khẳng định rõ gu thẩm mỹ tinh tế và vị thế đẳng cấp của mẫu nhà vườn 2 tầng mái Nhật tân cổ điển.

Phần chân tường được ốp gạch màu ghi xám với bề mặt chắc khỏe, vừa tạo điểm nhấn vững chãi cho công trình vừa giúp bảo vệ tường khỏi tác động của thời tiết và độ ẩm. Gam màu trung tính được lựa chọn tinh tế, hài hòa với tổng thể kiến trúc tân cổ điển, đồng thời làm nổi bật các mảng tường sáng phía trên. Cách xử lý chân đế này không chỉ gia tăng độ bền theo thời gian mà còn góp phần tôn lên dáng vẻ bề thế, sang trọng và chỉn chu cho toàn bộ mẫu nhà vườn 2 tầng mái Nhật.

Không gian sân vườn được quy hoạch chỉn chu với tiểu cảnh xanh mướt và những bồn hoa điểm xuyết sắc màu, mang đến bầu không khí trong lành cùng cảm giác thư thái ngay từ khoảnh khắc đặt chân về nhà.
Khu vực sân đỗ xe sử dụng gạch lát chống trơn tông xám ghi cao cấp, vừa đảm bảo an toàn trong quá trình di chuyển vừa giữ cho khuôn viên luôn sạch sẽ, gọn gàng. Sự kết hợp hài hòa giữa mảng xanh và vật liệu tinh tế đã tạo nên tổng thể sân vườn sang trọng, đồng bộ, góp phần nâng cao chất lượng sống cho gia đình.

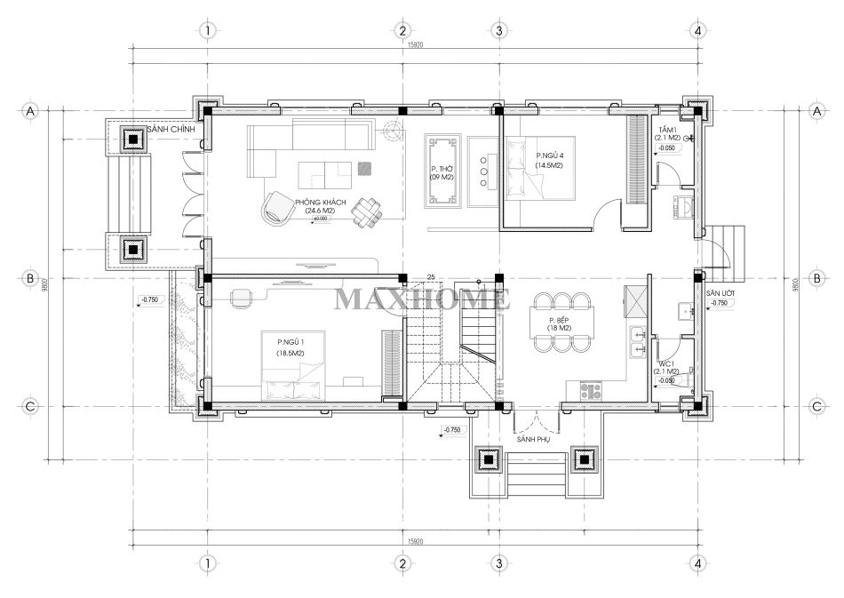
Ngôi nhà vườn 2 tầng mái Nhật tân cổ điển được bố trí trên khu đất hướng Tây Bắc, sở hữu quy mô xây dựng 9,9 x 15,9m với tổng diện tích sử dụng khoảng 250m². Không gian được tổ chức bài bản, tách bạch rõ ràng giữa khu vực sinh hoạt chung và không gian nghỉ ngơi riêng tư, đảm bảo sự riêng tư nhưng vẫn giữ được tính kết nối hài hòa. Cách sắp xếp công năng khoa học này mang đến trải nghiệm sống tiện nghi, mạch lạc và thể hiện rõ giá trị cao cấp trong từng mét vuông sử dụng.

Bước qua sảnh chính, không gian phòng khách mở ra rộng rãi và thoáng đạt, được sắp đặt tinh tế với nội thất hài hòa, vừa thể hiện gu thẩm mỹ của gia chủ vừa mang đến cảm giác trang trọng, thân thiện ngay từ những khoảnh khắc đầu tiên. Khu vực phòng thờ được bố trí trang nghiêm trong tổng thể phòng khách, đảm bảo sự tôn kính mà vẫn giữ được tính kết nối liền mạch.
Tầng 1 được tổ chức công năng hợp lý với hai phòng ngủ tiện nghi, khu vệ sinh chung và phòng tắm riêng biệt, đáp ứng trọn vẹn nhu cầu sinh hoạt hằng ngày. Về cuối nhà, không gian bếp – ăn ấm cúng được thiết kế mở hướng ra sảnh phụ, giúp tăng cường khả năng lấy sáng, đón gió tự nhiên và mang lại sự thông thoáng, dễ chịu cho toàn bộ khu vực sinh hoạt.

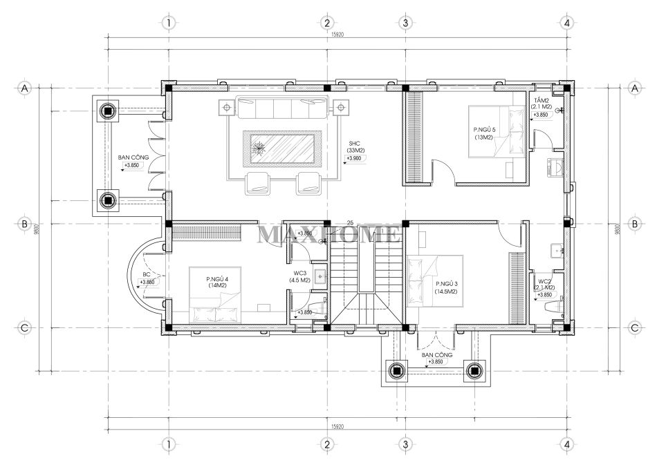
Tầng 2 được bố trí công năng khoa học với phòng sinh hoạt chung đặt tại vị trí trung tâm, trở thành không gian gắn kết và thư giãn lý tưởng cho các thành viên trong gia đình. Khu vực gần cầu thang là hai phòng ngủ được sắp xếp hợp lý, trong đó một phòng ngủ thiết kế khép kín với nhà vệ sinh riêng, đảm bảo sự tiện nghi và riêng tư cần thiết. Phía sau là phòng ngủ 05 kết hợp cùng khu phòng tắm và nhà vệ sinh chung, góp phần tối ưu công năng sử dụng và đáp ứng linh hoạt nhu cầu sinh hoạt hằng ngày.












