Mẫu nhà vườn mái bằng 1 tầng đẹp ấn tượng, xu hướng được tìm kiếm nhiều | MH05843

Chủ đầu tư: Chị Nguyễn Thị Thu Hiền Số tầng: 1
Địa chỉ: Chu Văn An, Hải Phòng Diện tích xây dựng: 17,1 x 14,6m
Loại hình: Nhà vườn mái bằng hiện đại Tổng diện tích: 154m2
Công năng:

Phòng khách, phòng thờ, phòng bếp, phòng ăn, 3 phòng ngủ, 3 wc

Mẫu nhà vườn mái bằng 1 tầng do Maxhome thiết kế cho chị Hiền – gia chủ tại Hải Phòng thu hút sự quan tâm nhờ không gian sống gần gũi thiên nhiên và bố cục khoa học. Công trình được tổ chức hài hòa giữa khối nhà hiện đại và khu sân vườn xanh mát, tạo cảm giác thư thái, thoáng đãng, rất phù hợp với xu hướng sống chậm và nghỉ dưỡng tại gia. Thiết kế không chỉ chú trọng thẩm mỹ mà còn tối ưu công năng, chi phí hợp lý, đáp ứng đúng nhu cầu của nhiều gia đình đang tìm kiếm một mẫu nhà vườn 1 tầng tiện nghi và bền vững.

Ngay từ cái nhìn đầu tiên, ngôi nhà vườn 1 tầng mái bằng gây ấn tượng bởi bố cục kiến trúc mạch lạc, hình khối vuông vắn, khỏe khoắn nhưng không hề thô cứng, nhờ sự xử lý khéo léo các mảng đặc – rỗng và cao độ mái. Ngôi nhà mang phong cách hiện đại, tối giản, nổi bật với hệ mái bằng giật cấp nhẹ nhàng, tạo chiều sâu cho mặt đứng và giúp công trình trở nên thanh thoát. Mái bằng mang lại vẻ đẹp thời thượng, bền vững, có khả năng chống chịu tốt trước điều kiện thời tiết, đồng thời thuận lợi cho việc lắp đặt téc nước, thái dương năng hay cải tạo không gian.

Về màu sắc, ngôi nhà vườn mái bằng 1 tầng sử dụng gam màu trung tính chủ đạo với sắc trắng, ghi và xám nhạt, tạo cảm giác nhẹ nhàng, sang trọng và dễ dàng hòa hợp với cảnh quan sân vườn xung quanh.

Các mảng tường được xử lý phẳng, kết hợp cùng đường chỉ ngang tinh tế giúp mặt tiền thêm gọn gàng và hiện đại. Điểm nhấn nổi bật nằm ở mảng tường ốp đá tự nhiên, mang đến sự chắc chắn, khỏe khoắn và tăng giá trị thẩm mỹ cho ngoại thất.

Vật liệu sử dụng cho ngoại thất được lựa chọn kỹ lưỡng, ưu tiên độ bền và khả năng chống chịu với thời tiết. Sự kết hợp giữa sơn ngoại thất cao cấp, gỗ nhựa, đá ốp tự nhiên, gạch lát sân và hệ cửa nhôm kính giúp công trình giữ được vẻ đẹp lâu dài. Từng chi tiết đều được tính toán cẩn thận để vừa đảm bảo thẩm mỹ vừa tối ưu chi phí bảo trì.

Khu vực hiên nhà và sân trước được mở rộng, thiết kế bậc tam cấp thấp, tạo sự kết nối tự nhiên giữa không gian sống và cảnh quan bên ngoài. Tại đây, gia chủ có thể bố trí bàn trà, ghế thư giãn để tận hưởng không khí trong lành. Đây cũng là điểm cộng lớn về công năng, giúp mẫu nhà vườn mái bằng 1 tầng không chỉ đẹp về hình thức mà còn tiện nghi trong sinh hoạt hằng ngày.

Hệ cửa kính khung nhôm lớn được bố trí xuyên suốt các mặt nhà là một trong những yếu tố tạo nên sức hút cho mẫu nhà vườn mái bằng 1 tầng này. Thiết kế cửa kính rộng giúp không gian nội thất luôn ngập tràn ánh sáng tự nhiên, mở rộng tầm nhìn ra khu vườn xanh mát bên ngoài. Sự kết nối liền mạch giữa trong và ngoài nhà mang lại cảm giác thư thái, thoải mái, đúng chất nghỉ dưỡng tại gia mà nhiều gia chủ mong muốn.

Không gian sân vườn được quy hoạch chỉn chu, bao quanh ngôi nhà như một lớp “áo xanh” mềm mại. Các bồn cây thấp, thảm cỏ và cây xanh được bố trí xen kẽ dọc theo chân tường, lối đi và khu vực hiên, vừa tăng tính thẩm mỹ vừa giúp điều hòa vi khí hậu. Nhờ đó, ngôi nhà luôn giữ được sự mát mẻ, trong lành, tách biệt khỏi sự ồn ào, bụi bặm của đô thị, mang đến cảm giác an yên như đang nghỉ dưỡng tại resort thu nhỏ.

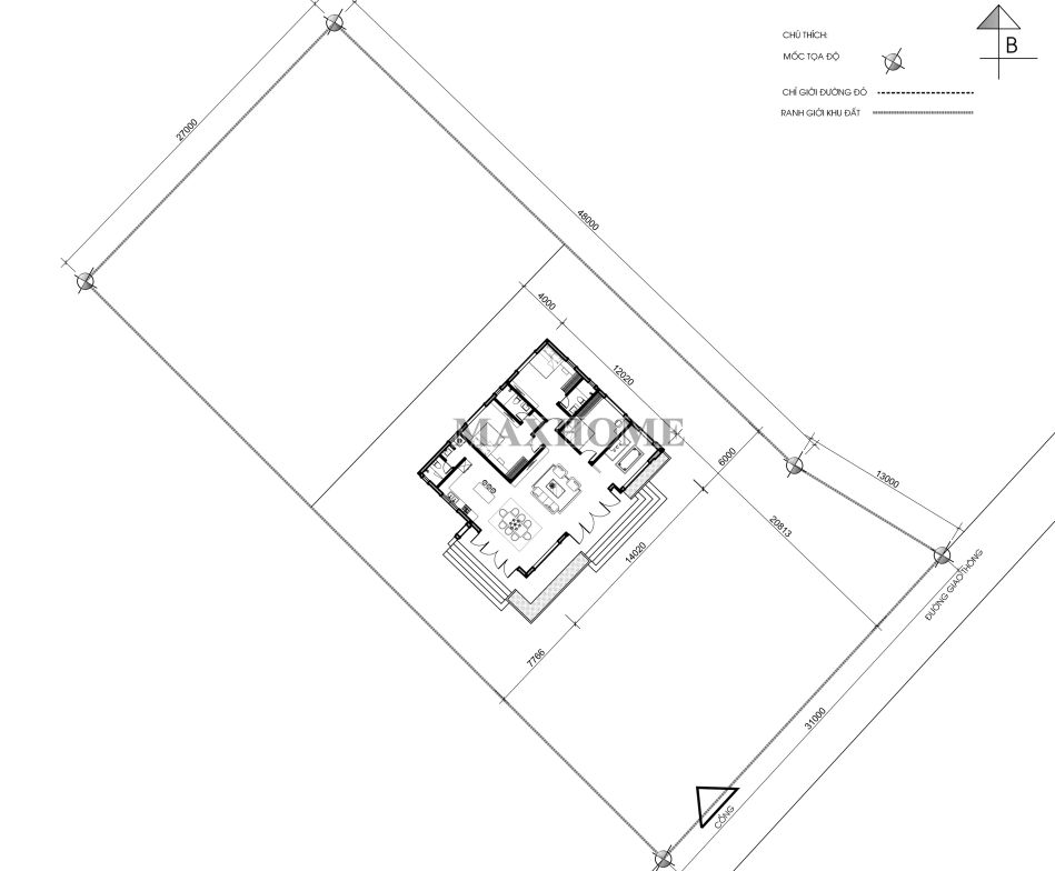
Mặt bằng định vị công trình

Dựa trên mặt bằng định vị, công trình được bố trí cửa chính quay về hướng Đông Nam, đón gió mát và ánh sáng tự nhiên ổn định trong ngày. Khối nhà vuông vức, gọn gàng, được xây dựng với kích thước 17,1 x 14,6m, mang đến tổng diện tích sử dụng khoảng 154m².

Cách tổ chức mặt bằng theo dạng hình khối rõ ràng giúp không gian bên trong dễ phân chia công năng, giao thông mạch lạc và thuận tiện cho sinh hoạt. Đồng thời, tỷ lệ công trình cân đối, phù hợp với khu đất, vừa đảm bảo yếu tố thẩm mỹ, vừa đáp ứng yêu cầu về công năng và sự thông thoáng lâu dài.

Mặt bằng bố trí công năng nhà vườn mái bằng

Ngôi nhà được tổ chức công năng rõ ràng, lấy phòng khách làm trung tâm, kết nối trực tiếp với sảnh chính, tạo cảm giác rộng rãi và trang trọng ngay khi bước vào. Không gian bếp và phòng ăn bố trí liền mạch về một phía, thuận tiện cho sinh hoạt hằng ngày, đồng thời liên thông với sảnh phụ để tăng sự linh hoạt khi sử dụng.

Khu vực nghỉ ngơi gồm 3 phòng ngủ được sắp xếp gọn gàng xung quanh trục giao thông chính, đảm bảo sự riêng tư nhưng vẫn dễ tiếp cận, đi kèm các phòng vệ sinh bố trí hợp lý. Phòng thờ được đặt ở vị trí yên tĩnh, tách khỏi khu sinh hoạt chung, thể hiện sự trang nghiêm và cân bằng hài hòa giữa công năng sử dụng và yếu tố tinh thần trong tổng thể ngôi nhà.

Nhìn tổng thể, mẫu nhà vườn mái bằng 1 tầng này không chỉ đáp ứng nhu cầu về một không gian sống tiện nghi, hiện đại mà còn mang đến giá trị tinh thần lớn cho gia chủ. Sự hài hòa giữa kiến trúc, thiên nhiên và công năng tạo nên một tổ ấm lý tưởng, nơi con người có thể tìm về sự cân bằng sau những bộn bề của cuộc sống. Với thiết kế tinh tế, không gian xanh bao quanh và tính bền vững cao, đây thực sự là một lựa chọn đáng tham khảo cho những ai đang tìm kiếm một mẫu nhà vườn 1 tầng đẹp, chuẩn xu hướng và phù hợp với cuộc sống hiện đại ngày nay.

Yêu cầu tư vấn

    *Vui lòng để lại thông tin, nhân viên tư vấn sẽ liên hệ lại quý khách trong thời gian sớm nhất