Mẫu thiết kế nhà cấp 4 lý tưởng cho tuổi già an yên | MH05994
| Chủ đầu tư: Anh Hoàng Văn Thuận | Số tầng: 1 |
| Địa chỉ: Phát Diệm, Kim Sơn, Ninh Bình | Diện tích xây dựng: 8,5 x 16,4m |
| Loại hình: Nhà mái Nhật hiện đại | Tổng diện tích: 131m2 |
| Công năng:
Phòng khách, phòng thờ, phòng bếp, 3 phòng ngủ, 2 wc |
|
Cuộc sống ngày càng tiến triển nhanh, đôi khi cái đích cuối cùng mà chúng ta hướng tới không phải là những tòa nhà cao tầng lộng lẫy mà chỉ là một mảnh sân nhỏ, một nếp nhà êm đềm để tựa vào lúc xế chiều. Hôm nay, mời bạn ghé thăm một không gian như thế do Maxhome triển khai, một bản vẽ nhà cấp 4 của gia đình anh Thuận tại vùng đất Ninh Bình thơ mộng.
Điểm chạm đầu tiên khiến bất cứ ai cũng phải xao xuyến khi nhìn vào mẫu nhà cấp 4 này chính là sự giao thoa hoàn hảo giữa nét hiện đại và vẻ đẹp thanh lịch của hệ mái Nhật. Khác với những kiểu mái truyền thống, mái Nhật với độ dốc vừa phải sử dụng lớp ngói màu xanh thẫm không chỉ mang lại diện mạo bền vững mà còn giúp điều hòa không khí và giữ cho không gian bên trong luôn mát mẻ.

Căn nhà của anh Thuận được Maxhome khắc họa lên một bức tranh tinh tế, sử dụng màu sơn trắng tuy trông đơn giản nhưng lại làm nổi bật các chi tiết ngoại thất khác khiến cho bản vẽ nhà cấp 4 này càng trở nên đắt giá. Bên cạnh đó là màu sơn xanh dương dịu nhẹ để tạo nên một tổng thể hài hòa giúp ngôi nhà trở nên nổi bật nhưng vẫn giữ được sự gần gũi với cảnh quan xung quanh.

Sự tinh tế của mẫu nhà cấp 4 này không chỉ nằm ở hình khối mà còn thể hiện rõ nét qua cách lựa chọn vật liệu bền bỉ. Ngay tại sảnh chính, hệ cửa thép vân gỗ cao cấp hiện lên đầy sang trọng với sắc màu ấm cúng đã tạo nên điểm nhấn bề thế cho mặt tiền và đảm bảo sự an tâm tuyệt đối về tính an ninh và khả năng chống chịu thời tiết.

Bên cạnh đó, để phá vỡ sự bí bách của những bức tường gạch, các kiến trúc sư Maxhome đã khéo léo sử dụng hệ thống khung nhôm kết hợp kính cường lực cho toàn bộ cửa sổ và cửa phụ. Lối thiết kế này mang đến diện mạo hiện đại cho ngôi nhà cấp 4 và còn biến mỗi ô cửa thành một bức tranh sống động, đưa ánh sáng tự nhiên và gió trời tràn ngập khắp các gian phòng, tạo nên một không gian sống vừa riêng tư lại vừa vô cùng khoáng đạt. Mỗi buổi sáng, gia chủ chỉ cần mở nhẹ cánh cửa là đã có thể hít hà bầu không khí trong lành, cảm nhận nhịp sống chậm rãi và bình yên vốn có của vùng đất cố đô.


Nếu coi ngôi nhà là một tác phẩm nghệ thuật thì hệ mái Nhật chính là nét vẽ sau cùng nhưng quan trọng nhất để tạo nên sự hoàn mỹ. Với thiết kế độ dốc nhẹ và mở rộng ra các hướng, hệ mái không chỉ mang lại vẻ ngoài cân đối, hài hòa mà còn giúp ngôi nhà cấp 4 trở nên thanh thoát hơn hẳn so với các kiểu mái truyền thống. Lớp ngói màu xanh thẫm được lựa chọn kỹ lưỡng đã tạo nên sự tương phản ấn tượng trên nền tường trắng tinh khôi rất vững chãi, bảo vệ tổ ấm an yên đồng thời mang đến cảm giác mát mẻ, dễ chịu cho gia chủ suốt bốn mùa.

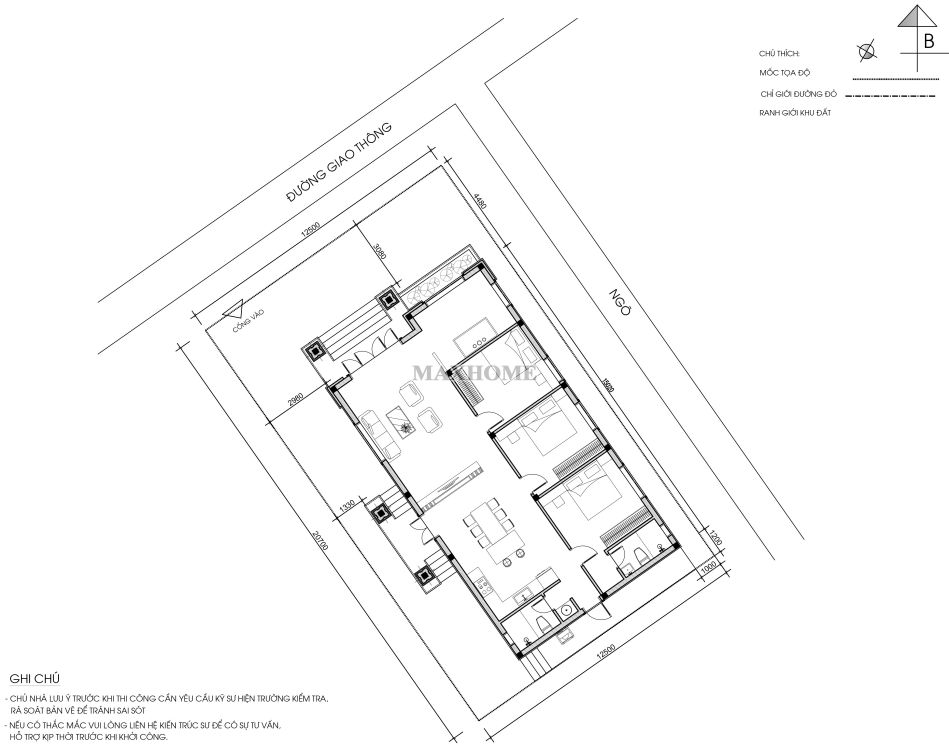
Dù mang diện mạo của một ngôi nhà cấp 4 đơn giản nhưng bên trong lại là một kịch bản sống vô cùng khoa học và tiện nghi. Các kiến trúc sư Maxhome đã khéo léo phân chia mặt bằng công năng để vừa đảm bảo sự riêng tư cho từng thành viên vừa tạo ra những khoảng không gian chung ấm cúng. Phòng khách được đặt tại vị trí trung tâm với diện tích 28m2 rộng rãi, đón nhận luồng khí thịnh vượng. Tiếp nối là khu vực bếp ăn thông thoáng 25m2 để những bữa cơm gia đình luôn ngập tràn niềm vui.

Phòng thờ 10,5m2 đặt ở vị trí trang trọng hướng ra mặt tiền, phía sau là 3 phòng ngủ được xếp thẳng hàng, mỗi phòng đều có những ô cửa sổ lấy thoáng và sáng. Cuối cùng là hai nhà vệ sinh, 1 nhà vệ sinh để bên trong phòng ngủ 03 và 1 nhà vệ sinh đặt ở phía bên ngoài để mọi người thuận tiện sử dụng khi sinh hoạt ở mẫu nhà cấp 4 đẹp này.











