Mẫu thiết kế nhà cấp 4 tách riêng bếp đáp ứng nhu cầu của gia chủ | MH06066
| Chủ đầu tư: Anh Nguyễn Văn Dum | Số tầng: 1 |
| Địa chỉ: Đông An A, Đại Thành, Cần Thơ | Diện tích xây dựng: 9,9 x 19,1m |
| Loại hình: Nhà mái Nhật hiện đại | Tổng diện tích: 157m2 |
| Công năng:
Phòng khách + thờ, phòng bếp, 4 phòng ngủ, 2 wc, 1 phòng tắm |
|
Khu vực miền Tây sông nước đang có sự chuyển dịch thú vị về xu hướng xây dựng nhà vườn ở nông thôn. Nhiều gia chủ ưu tiên không gian sống mở, gần gũi với thiên nhiên và vẫn phải giữ được nét sinh hoạt truyền thống. Tiêu biểu cho phong cách này chính là mẫu nhà cấp 4 tách riêng bếp của gia đình anh Dum tại Cần Thơ với kích thước xây dựng rộng rãi 9,9×19,1m, công trình là niềm tự hào và cũng là chốn dừng chân thanh bình sau những giờ lao động mệt mỏi.
Cái hay của ngôi nhà này chính là sự kết hợp nhuần nhuyễn giữa tư duy kiến trúc hiện đại và thói quen sinh hoạt đặc trưng của người dân Việt Nam. Bản vẽ nhà cấp 4 tách riêng bếp hiện lên đầy cá tính với phong cách hiện đại, khỏe khoắn nhưng không kém phần thanh thoát. Trên nền tường trắng tinh khôi chủ đạo, đội ngũ thiết kế Maxhome đã khéo léo điểm xuyết những đường chỉ âm có kích thước 30x20mm được sơn màu xanh dương đồng điệu với hệ mái.

Những đường nét chỉ âm tuy nhỏ nhưng lại đóng vai trò cực kỳ quan trọng trong việc phân chia tỉ lệ mảng khối giúp bức tường vốn dĩ đơn điệu trở nên có chiều sâu và sinh động hơn hẳn. Để tăng thêm phần ấn tượng, xung quanh các ô cửa sổ và cửa chính đều được bố trí thêm các đường phào lồi sơn trắng nổi bật giúp tạo nên sự chỉn chu và sắc nét trong từng chi tiết nhỏ nhất.

Một trong những điểm nhấn đắt giá giúp nâng tầm đẳng cấp cho ngôi nhà chính là khu vực sảnh chính. Tại đây, anh Dum đã mạnh tay lựa chọn loại đá Granite cao cấp để lát nền và ốp xung quanh các vị trí chân cột vuông vức ở hai bên. Sự xuất hiện của đá tự nhiên đã mang lại vẻ đẹp khang trang, sang trọng và còn đảm bảo độ bền vĩnh cửu trước tác động của thời tiết.

Với thiết kế bậc ngũ cấp giúp nền nhà cấp 4 được nâng cao lên tới 750mm so với mặt sân, bản vẽ nhà cấp 4 tách riêng bếp nhờ đó mà trông bề thế và cao ráo hơn hẳn. Phần chân đế này cũng được ốp đá màu xám đen chắc chắn tạo cảm giác kiên cố và vững chãi như một lời khẳng định về sự thịnh vượng của gia đình. Ngay phía trước mặt tiền, một bồn hoa nhỏ được thiết kế tinh tế để trồng các loại cây tiểu cảnh và hoa lá không chỉ làm đẹp không gian mà còn giúp tăng trưởng sinh khí, mang lại cảm giác thư thái mỗi khi bước chân về nhà.

Hệ thống cửa của ngôi nhà cũng là một điểm cộng lớn khi toàn bộ đều sử dụng khung nhôm kính xingfa chắc chắn. Việc sử dụng kính cường lực bản lớn giúp tối ưu hóa nguồn ánh sáng tự nhiên vào bên trong tạo sự thông thoáng và giúp các bác ngồi trong nhà vẫn có thể dễ dàng ngắm nhìn khung cảnh sân vườn xanh mát bên ngoài.

Đặc biệt, khi quan sát từ trên cao, chúng ta mới thấy rõ được giải pháp kiến trúc thông minh mà anh Dum đã lựa chọn chính là kiểu nhà cấp 4 tách riêng bếp. Đây là phương án vô cùng thực tế cho các gia đình ở quê, nơi thường xuyên có những bữa cơm sum họp đông đúc hay nấu nướng các món ăn truyền thống có mùi. Khu vực bếp được bố trí tách biệt nhưng vẫn đảm bảo sự liền kề với ngôi nhà chính thông qua một lối đi bên trong cực kỳ tiện lợi. Để tối ưu chi phí và công năng, phần nhà bếp được lợp mái tôn chống nóng hiện đại, trong khi ngôi nhà chính lại được đầu tư hệ mái Nhật lợp ngói màu xanh đậm sang trọng. Sự phân cấp về vật liệu mái này không chỉ giúp phân định rõ không gian chức năng mà còn tạo nên một tổng thể kiến trúc vô cùng hài hòa và bắt mắt.


Nhìn vào mặt bằng định vị công trình, ta có thể thấy ngôi nhà của anh Dum được đặt trên một khuôn viên đất cực kỳ rộng rãi và vuông vắn với chiều ngang mặt sau lên đến 20m. Công trình chính được tính toán đặt lùi về phía sau khu đất để tạo ra một khoảng sân trước vô cùng thông thoáng với chiều sâu từ cổng vào nhà dao động khoảng 30m. Hai bên hông nhà cũng được chừa lại các khoảng không gian từ 1m đến hơn 3m giúp ngôi nhà cấp 4 tách riêng bếp luôn đón được gió mát và ánh sáng tự nhiên từ mọi phía, đảm bảo sự thông thoáng tuyệt đối cho một mẫu nhà vườn đúng nghĩa.

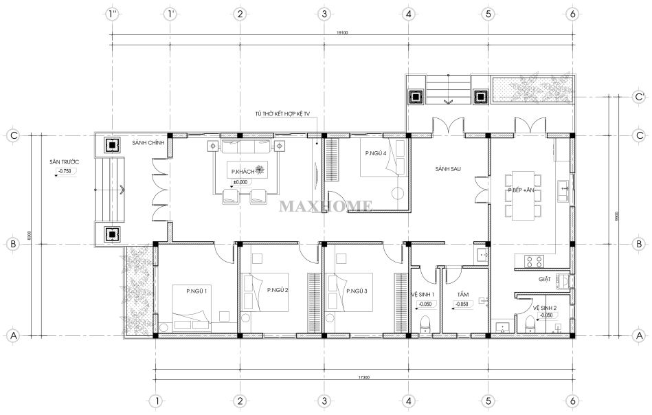
Đi sâu vào chi tiết mặt bằng công năng, ngôi nhà cấp 4 được thiết kế vô cùng khoa học và tối ưu hóa mọi diện tích sử dụng. Từ sảnh chính bước vào là không gian phòng khách rộng rãi được khéo léo bố trí hệ tủ thờ kết hợp kệ TV trang trọng ngay trung tâm. Điểm đặc biệt của ngôi nhà này là có tới 4 phòng ngủ được sắp xếp thông minh với 3 phòng ngủ đặt dọc theo một trục hành lang để tạo sự riêng tư, trong khi phòng ngủ 04 nằm đối diện để tận dụng góc nhìn ra sân vườn. Khu vực sảnh sau đóng vai trò là nút giao kết nối nhà chính với khu vực bếp và phòng ăn tách biệt rộng rãi giúp việc nấu nướng không bị ám mùi vào không gian nghỉ ngơi. Hệ thống vệ sinh và khu vực giặt phơi được gom về cuối nhà để đảm bảo tính thẩm mỹ và sự tiện lợi tối đa cho sinh hoạt hàng ngày của gia đình anh Dum.











