Mẫu thiết kế nhà mái bằng hiện đại sở hữu diện tích 200m2 ở Hải Phòng | MH05510
| Chủ đầu tư: Anh Trương Văn Toạ | Số tầng: 2 |
| Địa chỉ: An Dương, Hải Phòng | Diện tích xây dựng: 9 x 12,7m |
| Loại hình: Nhà mái bằng hiện đại | Tổng diện tích: 200m2 |
Công năng:
|
|
Một trong những công trình mái bằng nổi bật trong mẫu nhà đẹp Maxhome có thể kể đến là mẫu nhà mái bằng hiện đại của anh Toạ tại Hải Phòng, đây là công trình hội tụ đầy đủ những yếu tố nổi bật của một ngôi nhà hiện đại với kiến trúc vuông vức, sang trọng, tiện nghi và gần gũi với thiên nhiên. Cùng chúng tôi khám phá thêm chi tiết bản vẽ trong bài viết này nhé!
Ấn tượng đầu tiên khi nhìn vào ngôi nhà mái bằng hiện đại này chính là dáng vẻ khỏe khoắn, vững chãi của kiến trúc hình khối vuông vức. Công trình không sử dụng những chi tiết cầu kỳ như hoa văn hay phào chỉ mà mang đến một diện mạo tối giản nhưng cực kỳ tinh tế. Các mảng tường phẳng được bố cục hợp lý kết hợp với hệ cửa kính khung nhôm lớn giúp ánh sáng tự nhiên luôn tràn ngập bên trong không gian sống. Chính sự đơn giản này lại tạo ra sự hiện đại và phù hợp với lối sống năng động của gia đình anh Toạ.

Khác với mái Thái hay mái Nhật thường thấy, công trình của anh Toạ sử dụng mái bằng sở hữu nét đặc trưng của kiến trúc hiện đại. Mái bằng không chỉ giúp tổng thể gọn gàng, vuông vắn mà còn mang đến lợi ích thực tế như chống thấm tốt, dễ dàng lắp đặt hệ thống năng lượng mặt trời, bồn nước hay bố trí sân thượng. Ngoài ra, cũng nhờ mái bằng mà ngôi nhà 2 tầng càng giữ được vẻ đẹp tối giản, đồng thời mở ra tiềm năng sử dụng linh hoạt cho gia chủ trong tương lai.

Màu sơn ngoại thất là yếu tố quan trọng góp phần tạo nên vẻ đẹp cho công trình nhà 2 tầng mái bằng. Maxhome đã lựa chọn bảng màu trắng và xám than làm chủ đạo với dòng sơn do chính Maxhome sản xuất. Sắc trắng đóng vai trò nền tảng giúp ngôi nhà trở nên sáng sủa và rộng rãi hơn. Trong khi đó, gam màu xám than được sử dụng để nhấn mạnh các khối kiến trúc, tạo chiều sâu và sự vững chãi. Đây là sự kết hợp kinh điển trong kiến trúc hiện đại giúp mang lại cảm giác vừa thanh lịch vừa sang trọng và bền màu theo thời gian.

Để tôn lên vẻ đẹp của công trình vào ban đêm, Maxhome đã bố trí hệ đèn downlight âm trần tại ban công và khu vực mái hiên. Ánh sáng vàng dịu kết hợp với gam màu trắng và xám của tường sẽ tạo nên không gian ấm áp, sang trọng, biến ngôi nhà mái bằng 2 tầng của anh Toạ trở thành điểm sáng nổi bật khi màn đêm buông xuống.

Một điểm nhấn quan trọng trong thiết kế của mẫu nhà đẹp này là hệ cửa nhôm kính xingfa chạy xuyên suốt cả 2 tầng. Cửa kính cỡ lớn không chỉ giúp lấy sáng tối đa mà còn mở rộng tầm nhìn và kết nối không gian bên trong với thiên nhiên bên ngoài. Khi về đêm, ánh sáng từ bên trong hắt ra ngoài qua lớp kính sẽ tạo nên vẻ đẹp lung linh khiến ngôi nhà trở thành một điểm nhấn nổi bật trong khu phố.


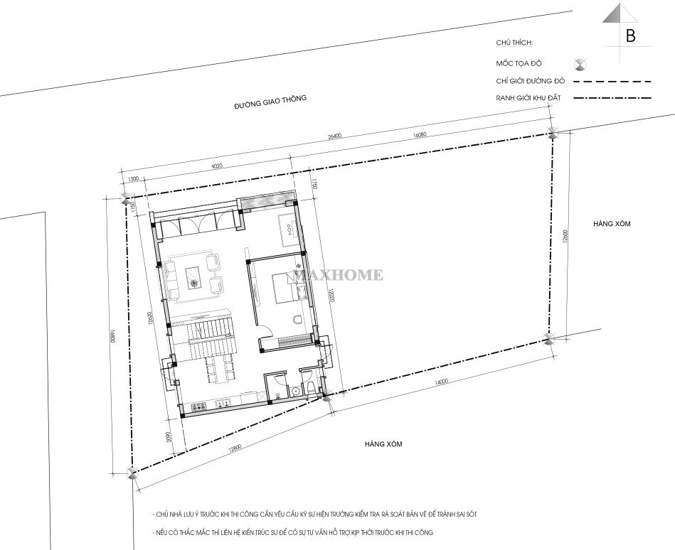
Gia đình anh Toạ sở hữu mảnh đất lớn 365m2, ngôi nhà mái bằng hiện đại được xây gọn ở bên trong và tạo khoảng trống sân bên cạnh rất rộng, thoải mái để tạo sân chơi cũng như nơi để xe. Tường bao trắng sẽ được xây xung quanh để bảo vệ không gian sinh sống của mọi người nhưng vẫn sẽ được cách điệu nhẹ nhàng ở phần mặt tiền để không bị quá đơn điệu.

Bậc thềm 3 bước có khoảng đệm nhỏ dẫn vào phòng khách, nơi tiếp đón và cũng là nơi gia đình anh Toạ quây quần thư giãn cùng nhau. Gần đó là phòng thờ nhỏ gọn được lắp một vách ngăn gỗ nhỏ khéo léo tạo không gian trang nghiêm cho nơi thờ cúng. Tầng 1 còn có thêm một phòng bếp có hệ tủ bếp chữ I lắp đặt sát vách tường phía sau nhà. Phòng ngủ 01 tiện nghi cũng được bố trí gần với cầu thang và khu vực vệ sinh chung giúp cho việc sinh hoạt được thuận tiện nhất.


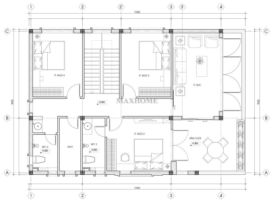
Tiến tới tầng 2 có riêng một không gian sinh hoạt chung có vách cửa ngăn kín đáo để không gian thư giãn này được riêng tư và thoải mái, phía trước phòng sinh hoạt chung còn có ban công rộng lớn trải dài hết mặt tiền căn nhà rất ấn tượng. Phía sau là 3 phòng ngủ, mỗi phòng đều có những cô cửa sổ lấy thoáng và bố trí đầy đủ nội thất tiện nghi. Khu vực vệ sinh chung nằm cuối dãy cạnh một phòng kho nhỏ để gia đình anh Toạ có thêm không gian chứa đồ.












