Mua bản vẽ nhà 2 tầng mái Nhật tân cổ điển đẹp chuẩn phong thủy | MH05681
| Chủ đầu tư: Chú Đào Văn Phăng | Số tầng: 2 |
| Địa chỉ: An Quang, Hải Phòng | Diện tích xây dựng: 7,9 x 13,9m |
| Loại hình: Nhà mái Nhật tân cổ điển | Tổng diện tích: 276m2 |
Công năng:
|
|
Bạn đang tìm kiếm một mẫu nhà vừa sang trọng, vừa tiện nghi và có tính ứng dụng cao? Mẫu nhà 2 tầng mái Nhật tân cổ điển chính là lựa chọn lý tưởng dành cho bạn. Với thiết kế tinh tế kết hợp giữa nét đẹp mềm mại của phong cách tân cổ điển và sự hài hòa của mái Nhật, bản vẽ này không chỉ tối ưu công năng sử dụng mà còn tôn lên đẳng cấp sống cho gia chủ. Hãy cùng Maxhome khám phá chi tiết mẫu nhà đẹp này để hiểu vì sao nó được nhiều khách hàng tin chọn và tìm mua trong thời gian qua.
Dựa trên quá trình khảo sát thực tế kết hợp với mong muốn và phong cách sống của gia chủ, đội ngũ kiến trúc sư giàu kinh nghiệm của Maxhome đã khéo léo phân chia diện tích khu đất một cách hợp lý. Thay vì tận dụng toàn bộ để xây dựng nhà ở, kiến trúc sư chỉ bố trí một phần diện tích cho công trình chính, phần còn lại được quy hoạch làm khu sân vườn xanh mát. Thiết kế này không chỉ giúp tăng tính thẩm mỹ tổng thể, mà còn tạo nên không gian thư giãn, gần gũi với thiên nhiên, mang lại cuộc sống thoải mái và cân bằng cho gia chủ.

Nhìn tổng thể, mẫu nhà vườn 2 tầng mái Nhật được thiết kế theo phong cách tân cổ điển nhẹ nhàng, tinh tế nhưng vẫn toát lên vẻ sang trọng đặc trưng. Các chi tiết trang trí được tiết chế vừa đủ, tránh cảm giác rườm rà hay nặng nề thường thấy ở lối thiết kế cổ điển truyền thống. Kiến trúc sư đã khéo léo kết hợp hệ thống phào chỉ, cột trụ và hoa văn tinh xảo một cách hài hòa, giúp ngôi nhà trở nên thanh thoát, đẳng cấp và mang đậm dấu ấn thẩm mỹ thời thượng.

Gam màu trắng được lựa chọn làm tông chủ đạo cho toàn bộ công trình nhà 2 tầng mái Nhật phong cách tân cổ điển, mang đến vẻ đẹp tinh khôi và trang nhã. Màu trắng không chỉ giúp làm nổi bật các đường nét kiến trúc, mà còn tạo cảm giác rộng rãi, thông thoáng cho tổng thể ngôi nhà. Bên cạnh đó, việc kết hợp mái ngói màu xanh than sang trọng tạo nên điểm nhấn ấn tượng, giúp công trình trở nên nổi bật và cuốn hút hơn giữa không gian xung quanh.

Thiết kế bậc thềm của ngôi nhà 2 tầng mái Nhật tân cổ điển được bố trí cao với 5 bậc tam cấp ốp đá sang trọng, tạo điểm nhấn vững chãi và thu hút ngay từ mặt tiền. Hệ cột trụ vuông vức ở tầng 1 được thiết kế to bản, thể hiện sự bề thế và kiên cố cho tổng thể công trình. Trong khi đó, những cột tròn mềm mại ở tầng 2 lại mang đến cảm giác thanh thoát, tượng trưng cho sự hài hòa “trời tròn – đất vuông”, tạo nên nét cân đối và tinh tế đặc trưng của phong cách tân cổ điển.

Toàn bộ không gian xung quanh ngôi nhà được bố trí nhiều ô cửa sổ lớn nhỏ giúp tăng khả năng lấy sáng và đón gió tự nhiên, mang đến bầu không khí thoáng đãng, dễ chịu cho các phòng chức năng. Từ góc nhìn này, ta có thể thấy các khung sắt được thiết kế chắc chắn và khoa học, đóng vai trò là khu vực phơi đồ tiện lợi, đồng thời vẫn đảm bảo yếu tố thẩm mỹ và an toàn cho tổng thể kiến trúc.

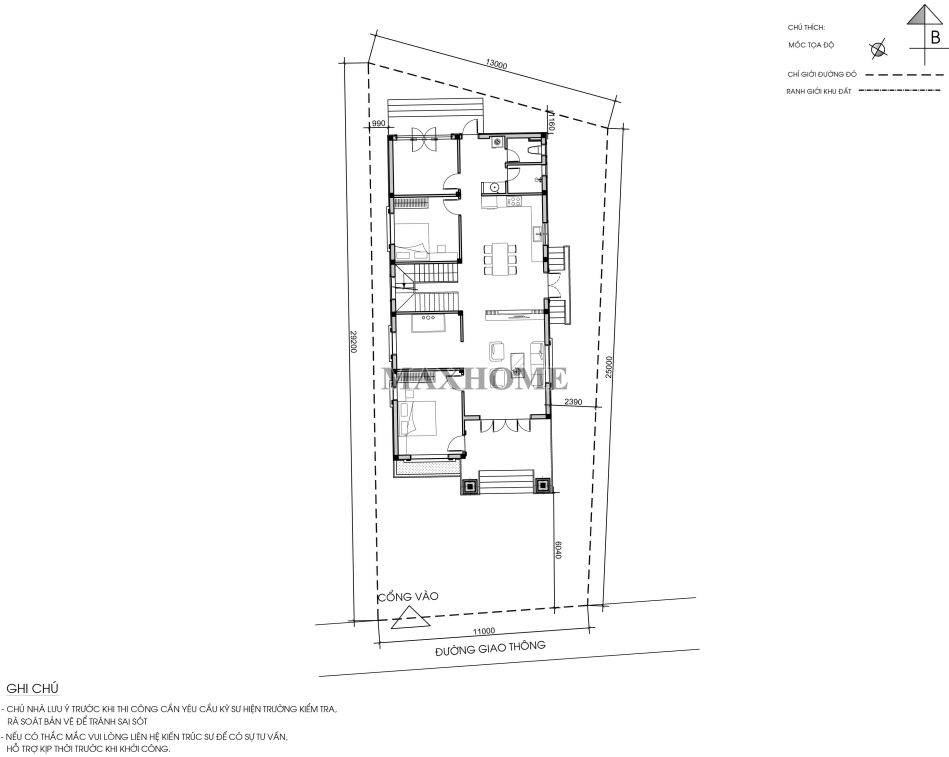
Quan sát bản vẽ mặt bằng định vị, ta có thể thấy ngôi nhà được bố trí theo hướng Tây Nam, phù hợp với phong thủy và điều kiện khí hậu nhiệt đới tại Việt Nam. Công trình có kích thước xây dựng 7,9 x 13,9m, được quy hoạch khoa học và hợp lý trên tổng diện tích sử dụng khoảng 276m², đảm bảo không gian sống tiện nghi, thông thoáng và tối ưu công năng cho gia đình.

Từ sảnh chính bước vào là không gian phòng khách rộng rãi, sang trọng, được bố trí khoa học tạo cảm giác thông thoáng và dễ chịu. Kế tiếp là khu vực phòng thờ được thiết kế riêng biệt, trang nghiêm, phù hợp với phong tục thờ cúng của người Việt. Phòng bếp và khu vực ăn uống được bố trí hợp lý, có lối đi phụ ra bên hông nhà, giúp việc di chuyển và thoát mùi nấu nướng thuận tiện hơn. Ngoài ra, ngôi nhà còn có 2 phòng ngủ riêng tư, cùng phòng kho tiện dụng và khu vực nhà vệ sinh, phòng tắm đặt cuối nhà, đảm bảo sự gọn gàng, kín đáo và tiện nghi trong sinh hoạt hằng ngày.


Tầng 2 được bố trí khoa học và tiện nghi, gồm phòng sinh hoạt chung rộng rãi – nơi các thành viên trong gia đình có thể thư giãn, trò chuyện và gắn kết sau những giờ làm việc, học tập. Ba phòng ngủ được sắp xếp hợp lý, đảm bảo sự riêng tư và thoải mái cho từng thành viên. Ngoài ra, tầng này còn có phòng kho nhỏ tiện lợi, khu vực sân phơi thoáng đãng giúp quần áo nhanh khô và đón nắng tự nhiên. Nhà vệ sinh và phòng tắm chung đặt ở cuối hành lang, vừa tối ưu diện tích, vừa đảm bảo tính kín đáo và thuận tiện trong quá trình sử dụng.













