Mua thiết kế giá rẻ nhà 2 tầng 5 phòng ngủ mái Nhật hiện đại, sang trọng | MH05626
| Chủ đầu tư: Anh Nguyễn Trọng Vinh | Số tầng: 2 |
| Địa chỉ: Tam Hưng, Hà Nội | Diện tích xây dựng: 9,2 x 14,2m |
| Loại hình: Nhà mái Nhật hiện đại | Tổng diện tích: 195m2 |
Công năng:
|
|
Giữa lòng Hà Nội, một tuyệt tác kiến trúc đã được Maxhome kiến tạo dành riêng cho gia đình anh Vinh – ngôi nhà 2 tầng mái Nhật bề thế, khoáng đạt và sang trọng. Thiết kế nổi bật với không gian xanh mát bao quanh và hệ thống 5 phòng ngủ tiện nghi, hòa quyện khéo léo giữa tinh thần hiện đại và những chuẩn mực thẩm mỹ tinh xảo. Đây thực sự là một tuyệt phẩm hội tụ trọn vẹn vẻ đẹp tinh tế và công năng hoàn hảo, mời quý bạn đọc cùng chiêm ngưỡng.
Mẫu nhà 2 tầng 5 phòng ngủ mái Nhật mang phong cách hiện đại gây ấn tượng mạnh mẽ nhờ sự hòa quyện tinh tế giữa giá trị thẩm mỹ và công năng sử dụng tối ưu. Công trình nổi bật với hình khối khỏe khoắn và bố cục linh hoạt, kết hợp mái Nhật cao ráo uy nghi cùng những chi tiết trang trí được chăm chút tỉ mỉ. Tất cả hòa thành một tổng thể sang trọng và đầy sức hút.

Mặt tiền thoáng rộng nổi bật với hệ trụ cột vuông vức được bố trí theo nhịp chuẩn, tạo cảm giác bề thế và phóng khoáng, trong khi phần chân cột ốp đá đen tăng vẻ sang trọng và độ vững chắc.
Các mảng khối kiến trúc được tính toán khéo léo, từ độ đua mái đến khoảng lùi mặt tường, giúp công trình giữ được sự cân đối hài hòa mà vẫn tạo lối giao thông nội – ngoại thất rõ ràng và thuận tiện. Bên cạnh đó, những khoảng mở lớn như hiên, sảnh và ban công được bố trí hợp lý, tăng khả năng đón sáng và lưu thông gió tự nhiên.


Màu sắc tổng thể của ngôi nhà mái Nhật 2 tầng hiện đại được phối một cách tinh tế, tạo nên cảm giác hài hòa ngay từ ánh nhìn đầu tiên. Gam trắng chủ đạo bao phủ ngoại thất, giúp kiến trúc trở nên thanh lịch và làm nổi bật từng chi tiết trang trí mang sắc vàng đồng và đường nét bo cong mềm.
Những mảng tường ghi xám cùng đá chẻ và hệ mái Nhật tạo điểm nhấn mạnh mẽ, mang lại vẻ khỏe khoắn và chiều sâu cho toàn bộ công trình. Sự kết hợp chuẩn xác này giúp ngôi nhà vừa hiện đại, vừa ấm áp và giàu tính thẩm mỹ, tạo nên hiệu ứng thị giác cuốn hút.

Điểm nhấn ấn tượng của ngôi nhà mái Nhật 2 tầng này chính là thiết kế hệ thống cửa kính bao trọn cả tầng 1 và tầng 2, mang đến hiệu ứng thị giác mở rộng không gian và kết nối liền mạch với cảnh quan bên ngoài.
Hệ cửa kính khung nhôm Xingfa cao cấp kết hợp ban công kính cường lực trong suốt giúp đón trọn vẹn ánh sáng tự nhiên, đồng thời tối ưu tầm nhìn rộng mở. Nhờ đó, mỗi khoảnh khắc sinh hoạt đều trở nên thi vị, chan hòa cùng sắc xanh của vườn cây và sắc trời, mang đến cảm giác thư thái, tinh tế và tràn đầy sức sống.

Sự chỉn chu của kiến trúc sư Maxhome thể hiện rõ rệt trong từng chi tiết nhỏ. Từ bậc tam cấp ốp đá granite sang trọng, vừa sạch sẽ vừa chống trơn trượt, cho đến hệ thống đèn tường được bố trí khoa học, tạo hiệu ứng lung linh khi màn đêm buông xuống. Từng góc cạnh, từng đường nét đều được nghiên cứu tỉ mỉ, đảm bảo vừa thẩm mỹ vừa tiện dụng.
Không gian ngoại thất còn được tôn lên bởi hàng rào bao quanh kiên cố nhưng thanh thoát, vừa đảm bảo an toàn, vừa giữ được sự thoáng đãng. Sân lát gạch xám sạch sẽ, rộng rãi, thuận tiện cho sinh hoạt, đồng thời tăng thêm tính thẩm mỹ cho toàn cảnh công trình.

Mái Nhật – linh hồn của ngôi nhà 2 tầng 5 phòng ngủ được thiết kế với độ dốc vừa phải, xếp lớp cân đối, màu ngói xám tro vừa sang trọng vừa bền vững với thời gian.
Đây không chỉ là lựa chọn mang giá trị thẩm mỹ cao mà còn giúp công trình thích nghi tốt với khí hậu nhiệt đới ẩm gió mùa ở Việt Nam. Mái dốc thoát nước nhanh, chống nóng, chống ẩm hiệu quả, đảm bảo không gian nội thất bên trong luôn thoáng mát và bền bỉ qua năm tháng.

Về vị trí, ngôi nhà mái Nhật 2 tầng 5 phòng ngủ được xây dựng trên khu đất hướng Đông Bắc, mang lại nhiều lợi thế về phong thủy như đón gió mát và ánh sáng dịu nhẹ quanh năm.
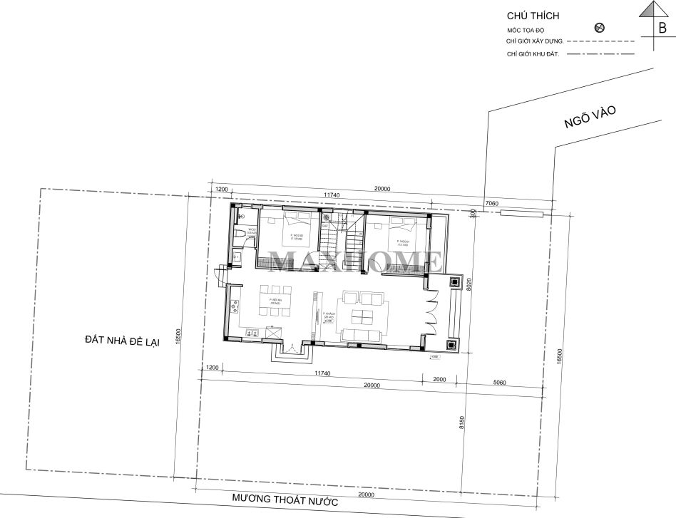
Công trình có kích thước xây dựng 9,2 x 14,2m, tổng diện tích sử dụng khoảng 202m², được quy hoạch công năng hợp lý giữa các khu vực chung và riêng, tạo sự liên kết chặt chẽ mà vẫn đảm bảo tính riêng tư.

Bước vào từ sảnh chính, bạn sẽ bắt gặp không gian phòng khách rộng rãi, thoáng mát và đầy tinh tế – nơi thể hiện rõ gu thẩm mỹ cũng như sự hiếu khách của gia chủ. Phòng khách được đặt tại vị trí trung tâm, thiết kế sang trọng với nội thất hài hòa, là điểm nhấn nổi bật của toàn bộ tầng 1.
Kế tiếp là khu bếp ăn ấm cúng, thiết kế mở ra sảnh phụ, giúp luồng không khí luôn lưu thông, mang đến sự thoáng đãng và dễ chịu. Ngoài ra, tầng 1 còn được bố trí 2 phòng ngủ tiện nghi, phù hợp cho ông bà hoặc khách lưu trú cùng 1 nhà vệ sinh chung đảm bảo sự thuận tiện trong sinh hoạt.

Không gian thờ cúng trang nghiêm cùng phòng sinh hoạt chung được bố trí trên tầng 2, kết hợp ban công đón gió mát giúp tăng sinh khí và thu hút tài lộc cho gia chủ. Ban công cũng được tận dụng làm góc thư giãn yên tĩnh, nơi gia chủ có thể ngồi thưởng trà, ngắm cảnh và tận hưởng không khí trong lành. Tầng 2 còn có 3 phòng ngủ cùng 1 nhà vệ sinh chung đáp ứng đầy đủ nhu cầu sinh hoạt của gia đình một cách tiện nghi và thoải mái.











