Ngắm là mê nhà 2 tầng mái Nhật 4 phòng ngủ ngói nâu cực sang | MH05874

Chủ đầu tư: Anh Nguyễn Trung Thắng Số tầng: 2
Địa chỉ: Ân Thi, Hưng Yên Diện tích xây dựng: 8,5 x 14,9m
Loại hình: Nhà mái Nhật hiện đại Tổng diện tích: 210m2
Công năng:
  • Tầng 1: Phòng khách, phòng bếp ăn, 1 phòng ngủ, 2 wc
  • Tầng 2: Phòng thờ, 3 phòng ngủ, 2 wc, sân phơi

Nhà 2 tầng mái Nhật 4 phòng ngủ ngói nâu đang trở thành lựa chọn được nhiều gia đình yêu thích nhờ sự kết hợp hài hòa giữa tính thẩm mỹ, công năng và độ bền theo thời gian. Với thiết kế mái Nhật thanh thoát, gam ngói nâu ấm áp cùng bố cục không gian khoa học, mẫu nhà này không chỉ mang đến vẻ đẹp sang trọng, hiện đại mà còn đáp ứng trọn vẹn nhu cầu sinh hoạt của gia đình đông thành viên.

Việc lựa chọn phong cách kiến trúc và kiểu mái nhà đóng vai trò vô cùng quan trọng, là yếu tố nền tảng quyết định diện mạo tổng thể của công trình. Ngay từ khâu thiết kế, gia chủ đã định hướng rõ ràng phong cách hiện đại kết hợp với hệ mái Nhật, mang đến vẻ đẹp tinh tế, cân đối và phù hợp với xu hướng kiến trúc hiện nay. Sự lựa chọn này không chỉ đảm bảo giá trị thẩm mỹ mà còn giúp công trình tối ưu công năng sử dụng, khả năng chống nóng, thoát nước hiệu quả và bền vững theo thời gian.

Màu sắc là yếu tố then chốt góp phần tạo nên vẻ đẹp tổng thể cho mẫu nhà 2 tầng mái Nhật. Công trình sử dụng gam màu trắng làm chủ đạo, kết hợp hài hòa với sắc nâu làm điểm nhấn theo tỷ lệ phối màu 70 – 30, giúp tổng thể trở nên cân đối và sang trọng. Bên cạnh đó, việc bố trí thêm gạch thẻ ốp tại các mảng tường giáp khu vực cửa sổ không chỉ tăng chiều sâu thẩm mỹ cho mặt đứng mà còn tạo điểm nhấn tinh tế, giúp công trình thêm nổi bật, hiện đại và bền đẹp theo thời gian.

Nhà 2 tầng mái Nhật được thiết kế theo phong cách hiện đại nên sở hữu các đường nét kiến trúc vuông vắn, gọn gàng và dứt khoát, tạo cảm giác khỏe khoắn, trẻ trung cho tổng thể công trình. So với phong cách tân cổ điển, thiết kế hiện đại lược bỏ các chi tiết trang trí cầu kỳ, nhờ đó quá trình thi công trở nên đơn giản hơn, rút ngắn thời gian xây dựng và tối ưu chi phí, đồng thời vẫn đảm bảo tính thẩm mỹ, công năng và độ bền lâu dài cho ngôi nhà.

Quan sát nhà 2 tầng mái Nhật từ góc nhìn trên cao có thể thấy rõ khu vực sảnh phụ được bố trí gọn gàng bên hông công trình. Dù không thiết kế quá hoành tráng, không gian này vẫn đảm bảo độ thoáng cần thiết, thuận tiện cho việc đi lại và lưu thông không khí. Toàn bộ hệ cửa sử dụng kính cường lực kết hợp với khung nhôm hệ Xingfa cao cấp, giúp tăng khả năng lấy sáng tự nhiên, tạo cảm giác mở rộng không gian, đồng thời đảm bảo độ bền, an toàn và tính thẩm mỹ hiện đại cho ngôi nhà.

Hệ mái Nhật được thiết kế đua rộng ra các hướng, giúp tăng khả năng che chắn và đảm bảo thoát nước mưa nhanh chóng, hạn chế tình trạng ứ đọng, thấm dột. Gia chủ lựa chọn gam màu nâu thanh lịch cho phần mái, tạo sự hài hòa với tổng thể kiến trúc và mang lại cảm giác ấm áp, sang trọng. Bên cạnh đó, khu vực cuối nhà được chừa khoảng không hợp lý để bố trí téc nước và hệ thống thái dương năng, vừa đảm bảo tính thẩm mỹ, vừa đáp ứng tốt nhu cầu sử dụng lâu dài và tiết kiệm năng lượng cho gia đình.

Khi thiết kế nhà tại Maxhome, chúng tôi luôn chú trọng bố trí đồng bộ hệ thống cổng và tường bao nhằm hoàn thiện tổng thể kiến trúc cho công trình. Cổng chính được sử dụng chất liệu sắt sơn tĩnh điện cao cấp, vừa đảm bảo độ chắc chắn, an toàn, vừa mang lại giá trị thẩm mỹ lâu dài. Phần tường bao được thi công bằng bê tông kết hợp các nan sắt sơn tĩnh điện đan xen, tạo sự thông thoáng, hiện đại, đồng thời giúp công trình trở nên hài hòa, bền đẹp và tiện dụng trong quá trình sử dụng.

Công trình nhà 2 tầng mái Nhật được xây dựng trên khuôn viên đất có diện tích vừa vặn, tiếp giáp trực tiếp với mặt đường giao thông chính, thuận tiện cho việc di chuyển và sinh hoạt hằng ngày. Ngôi nhà có kích thước xây dựng 8,5 x 14,9m, được bố trí không gian khoa học và hợp lý, đảm bảo sự thông thoáng cũng như tính tiện nghi trong quá trình sử dụng. Tổng diện tích sử dụng của công trình ước tính khoảng 210m², đáp ứng tốt nhu cầu sinh hoạt cho gia đình nhiều thế hệ.

Mặt bằng định vị công trình

Tầng 1 của ngôi nhà được bố trí với sảnh đệm ngay lối vào, tạo khoảng chuyển tiếp hợp lý trước khi bước vào không gian phòng khách rộng rãi và thoáng sáng. Đi qua khu vực cầu thang là khu bếp kết hợp phòng ăn, được sắp xếp gọn gàng, thuận tiện cho sinh hoạt hằng ngày. Cuối nhà bố trí một phòng ngủ yên tĩnh, đi kèm nhà vệ sinh khép kín bên trong, phù hợp cho người lớn tuổi hoặc khách lưu trú. Ngoài ra, một nhà vệ sinh chung được đặt đối diện cầu thang, đảm bảo sự thuận tiện trong quá trình sử dụng và lưu thông không gian.

Mặt bằng bố trí công năng tầng 1

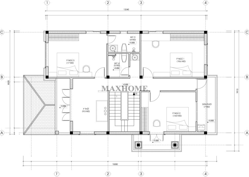
Tầng 2 được bố trí phòng thờ trang nghiêm, đặt ở vị trí yên tĩnh và thông thoáng, phù hợp cho sinh hoạt tâm linh của gia đình. Bao quanh khu vực này là 3 phòng ngủ được sắp xếp khoa học, đảm bảo sự riêng tư và tiện nghi trong quá trình sử dụng. Trong đó, phòng ngủ số 01 được thiết kế nhà vệ sinh khép kín bên trong, mang lại sự thoải mái tối đa, hai phòng ngủ còn lại cùng sử dụng một nhà vệ sinh chung được bố trí hợp lý. Cuối nhà là khu vực sân phơi rộng rãi, thông thoáng, thuận tiện cho việc giặt giũ và phơi đồ.

Mặt bằng bố trí công năng tầng 2

Yêu cầu tư vấn

    *Vui lòng để lại thông tin, nhân viên tư vấn sẽ liên hệ lại quý khách trong thời gian sớm nhất