Ngắm nhìn nhà vườn mái Thái chữ L thanh lịch giữa thiên nhiên Lâm Đồng | MH05937
| Chủ đầu tư: Chị Nguyễn Thị Hường | Số tầng: 2 |
| Địa chỉ: Đức Trọng, Lâm Đồng | Diện tích xây dựng: 9 x 12,7m |
| Loại hình: Nhà mái Thái chữ L | Tổng diện tích: 144m2 |
Công năng:
|
|
Nhà vườn mái Thái chữ L tại Lâm Đồng gây ấn tượng với thiết kế thanh lịch, không gian sống tiện nghi và sự hài hòa với thiên nhiên. Kiến trúc mái Thái cao ráo kết hợp bố cục chữ L giúp ngôi nhà luôn thông thoáng, tận dụng tối đa ánh sáng và khoảng sân vườn, mang đến môi trường sống thoải mái, phù hợp với khí hậu mát mẻ đặc trưng của địa phương.
Ngôi nhà 2 tầng mái Thái chữ L được Maxhome thiết kế riêng cho chị Hường tại Lâm Đồng, nổi bật với bố cục kiến trúc chữ L độc đáo, tạo khoảng mở thông thoáng và tăng sự kết nối với không gian sân vườn xung quanh. Dưới bàn tay giàu kinh nghiệm của đội ngũ kiến trúc sư Maxhome, công trình được nghiên cứu kỹ lưỡng từ công năng, thẩm mỹ đến điều kiện khí hậu địa phương, qua đó mang lại không gian sống tiện nghi, hài hòa và đáp ứng trọn vẹn mong muốn của chủ đầu tư, đồng thời đảm bảo giá trị sử dụng bền vững theo thời gian.

Tổng thể nhà vườn mái Thái chữ L sử dụng gam màu trắng tinh tế làm tông màu chủ đạo, mang đến vẻ đẹp thanh lịch, sang trọng và cảm giác rộng rãi, thoáng đãng cho công trình. Điểm nhấn nổi bật nằm ở lan can ban công màu đen được thiết kế gọn gàng, tạo sự tương phản hài hòa với nền trắng, giúp hình khối kiến trúc trở nên rõ nét và cuốn hút hơn. Sự phối hợp màu sắc tinh giản nhưng hiệu quả này không chỉ làm tôn lên vẻ đẹp của ngôi nhà vườn mà còn phù hợp với cảnh quan xanh mát xung quanh, tạo nên tổng thể hài hòa và bền vững theo thời gian.

Mặc dù sở hữu khuôn viên đất rộng rãi, gia chủ vẫn lựa chọn phương án thiết kế nhà vườn mái Thái chữ L bởi những ưu điểm vượt trội mà kiểu dáng này mang lại. Bố cục chữ L giúp khai thác hiệu quả các góc đất, hạn chế diện tích thừa, đồng thời tạo nên những khoảng không gian mở lý tưởng như sân vườn, lối dạo hay khu vực thư giãn ngoài trời. Không chỉ tối ưu công năng, thiết kế này còn tăng khả năng lấy sáng, đón gió tự nhiên, mang đến môi trường sống thông thoáng, gần gũi với thiên nhiên và phù hợp với nhu cầu sinh hoạt lâu dài của gia đình.

Bên cạnh yếu tố thẩm mỹ, hệ mái Thái của công trình được thi công với kết cấu cột – kèo chắc chắn, đổ bê tông kiên cố và hoàn thiện bằng lớp ngói lợp thoáng khí, giúp tăng khả năng chống nóng, thoát nước hiệu quả và nâng cao độ bền theo thời gian. Ngói màu ghi đậm được lựa chọn nhằm làm nổi bật phần mái, tạo điểm nhấn rõ nét và tôn lên vẻ đẹp tổng thể của ngôi nhà vườn mái Thái chữ L. Đồng thời, hệ tường rào bao quanh được thiết kế theo phong cách đơn giản, hài hòa với kiến trúc chung, vừa đảm bảo an toàn, riêng tư, vừa góp phần hoàn thiện không gian sống yên bình và tiện nghi bên trong khuôn viên.

Trong quá trình thiết kế các mẫu nhà đẹp, Maxhome luôn chú trọng xây dựng đầy đủ các góc nhìn và phối cảnh 3D chi tiết, giúp khách hàng dễ dàng hình dung tổng thể công trình trước khi thi công. Thông qua phối cảnh này, có thể quan sát rõ khu vực cổng chính được bố trí hài hòa với kiến trúc chung, đảm bảo tính thẩm mỹ, công năng sử dụng và sự thuận tiện trong quá trình di chuyển, đồng thời góp phần hoàn thiện diện mạo tổng thể của ngôi nhà ngay từ cái nhìn đầu tiên.

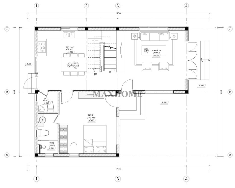
Mặc dù sở hữu khuôn viên đất rộng rãi, công trình nhà vườn mái Thái chữ L được lựa chọn phương án xây dựng gọn gàng với kích thước 9 x 12,7m, nhằm tối ưu không gian sân vườn và tạo sự thông thoáng cho tổng thể khu đất. Với cách bố trí hợp lý, tổng diện tích sử dụng của ngôi nhà ước khoảng 144m², đáp ứng đầy đủ nhu cầu sinh hoạt tiện nghi của gia đình, đồng thời vẫn đảm bảo sự cân đối giữa không gian ở và cảnh quan xanh xung quanh.

Bước từ cửa chính vào là không gian phòng khách được bố trí với diện tích vừa phải, đủ rộng rãi để tiếp đón những vị khách thân thiết trong không khí ấm cúng và trang trọng. Tiếp nối qua khu vực cầu thang là khu bếp và phòng ăn, được thiết kế với hệ tủ bếp chữ L khoa học, giúp tối ưu diện tích sử dụng và tạo sự thuận tiện trong quá trình nấu nướng, sinh hoạt. Tại tầng 1, ngôi nhà còn bố trí một phòng ngủ có nhà vệ sinh khép kín bên trong, phù hợp cho người lớn tuổi hoặc khách lưu trú. Ngoài ra, cuối nhà được sắp xếp thêm nhà vệ sinh chung, đáp ứng nhu cầu sử dụng linh hoạt và đảm bảo sự tiện nghi cho toàn bộ không gian sinh hoạt.

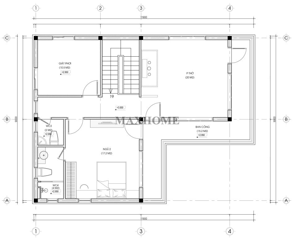
Không gian tầng 2 được bố trí hợp lý, đảm bảo sự riêng tư và yên tĩnh cho các thành viên trong gia đình. Phòng thờ được thiết kế trang nghiêm, đặt ở vị trí đẹp và hướng ra ban công, giúp không gian luôn thông thoáng, đón ánh sáng và gió tự nhiên, đồng thời phù hợp với yếu tố phong thủy. Bên cạnh đó là một phòng ngủ được trang bị nhà vệ sinh khép kín, mang lại sự tiện nghi và riêng tư khi sử dụng. Khu vực giặt – phơi được bố trí ở cuối nhà, tách biệt với không gian sinh hoạt chính, đi kèm một nhà vệ sinh chung, đáp ứng đầy đủ nhu cầu sử dụng và tối ưu công năng cho toàn bộ tầng.












