Ngỡ là biệt thự triệu đô ai ngờ là nhà 2 tầng tân cổ siêu đẹp ở quê | MH05477
| Chủ đầu tư: Anh Cà Văn Xuân | Số tầng: 2 |
| Địa chỉ: Chiềng Ngần, Sơn La | Diện tích xây dựng: 7,8 x 11,6m |
| Loại hình: Nhà mái Nhật tân cổ điển | Tổng diện tích: 166m2 |
Công năng:
|
|
Giữa khung cảnh bình yên của vùng đất Sơn La, sự xuất hiện của mẫu nhà 2 tầng tân cổ thuộc sở hữu của gia đình anh Xuân đã thực sự trở thành tâm điểm thu hút mọi ánh nhìn khiến bất cứ ai đi ngang qua cũng phải trầm trồ ngỡ như đang lạc bước trước một dinh thự triệu đô. Đây cũng là một trong những công trình được khách hàng Maxhome hỏi tham khảo rất nhiều, mời bạn xem cùng nhé!
Nhìn từ xa, mẫu nhà 2 tầng tân cổ hiện lên với sắc trắng sứ chủ đạo tinh khôi nổi bật trên nền xanh của cây cối và bầu trời rất thanh lịch và vô cùng trang nhã. Đi sâu vào chi tiết kiến trúc, bạn mới thấy hết sự kỳ công trong việc tính toán tỉ lệ của các kiến trúc sư Maxhome khi từng đường phào chỉ, hoa văn đều được chăm chút tỉ mỉ. Mặt đứng chính diện của căn nhà gây ấn tượng mạnh với hệ cột trụ vuông tròn đan xen tạo thế vững chãi, uy nghi và mang lại nét mềm mại, uyển chuyển.

Đặc biệt, khu vực sảnh chính được thiết kế vòm bán nguyệt cao ráo kết hợp với bộ cửa gỗ đại hội chạm khắc tinh xảo mang đậm hơi hướng quý tộc. Theo bản vẽ kỹ thuật, mặt tiền ngôi nhà 2 tầng tân cổ rộng 7,8m được phân chia bố cục đối xứng hoàn hảo giúp tối ưu hóa diện tích và tạo nên sự cân bằng thị giác tuyệt đối. Những đường chỉ âm tường chạy ngang bao quanh diện tường tầng 1 và tầng 2 sẽ giúp xóa bỏ sự đơn điệu của những mảng tường phẳng và tạo hiệu ứng phân tầng rõ rệt khiến ngôi nhà trông cao ráo và sang trọng hơn hẳn so với những mẫu nhà dân dụng thông thường.

Với chiều cao cốt nền được đôn cao 750mm so với mặt sân thông qua hệ bậc tam cấp 5 bậc ốp đá sang trọng, ngôi nhà như một thực thể bừng sáng giữa không gian làng quê, minh chứng cho gu thẩm mỹ tinh tế và vị thế của anh Xuân. Thực tế đã chứng minh rằng, không cần phải là một tòa lâu đài nguy nga mà chính sự tỉ mỉ trong thiết kế và tâm huyết trong việc chọn lọc chất liệu đã biến ngôi nhà 2 tầng này trở thành một hình mẫu lý tưởng cho xu hướng kiến trúc tân cổ điển hiện nay.

Không chỉ dừng lại ở mặt tiền, các mặt bên của căn nhà 2 tầng của anh Xuân cũng được chăm chút kỹ lưỡng với hệ thống cửa sổ khung nhôm kính xingfa cao cấp được phân bổ dày đặc. Việc sử dụng chất liệu kính hiện đại trong một cấu trúc tân cổ điển là một sự tính toán thông minh giúp đón trọn ánh sáng tự nhiên vào không gian nội thất, đồng thời mở ra những tầm nhìn khoáng đạt ra sân vườn bên ngoài. Phía ban công tầng 2, hệ lan can sắt nghệ thuật với những đường cong uốn lượn sơn tĩnh điện màu vàng giúp đảm bảo an toàn và còn là điểm nhấn thẩm mỹ đắt giá, tạo nên sự quyền quý cho gia chủ.


Với góc nhìn từ trên cao, hệ mái Nhật màu xanh than được ứng dụng cho mẫu thiết kế nhà 2 tầng tân cổ đẹp này. Gia đình anh Xuân cũng đã tham khảo rất nhiều bản vẽ và lựa chọn hệ mái Nhật phù hợp với sở thích của mình nhất. Thiết kế hệ mái cao 2,7m giúp thoát nước nhanh, chống nóng tốt và hoàn hảo tôn lên chiều cao tổng thể hơn 10m của công trình, mang lại vẻ ngoài bề thế nhưng vẫn rất thanh thoát.


Bản vẽ tổng mặt bằng cho thấy sự tính toán kỹ lưỡng trong việc đặt định vị công trình trên khuôn viên đất rộng lớn. Mặt tiền mẫu nhà 2 tầng tân cổ có chiều rộng tổng thể khoảng 7,8m, phần diện tích còn lại xung quanh nhà được quy hoạch làm sân vườn và lối đi với chiều sâu đất lên đến hơn 45m, gia đình anh Xuân sở hữu một không gian sống xanh mát, biệt lập và thoáng đãng đúng chất biệt thự nhà vườn.


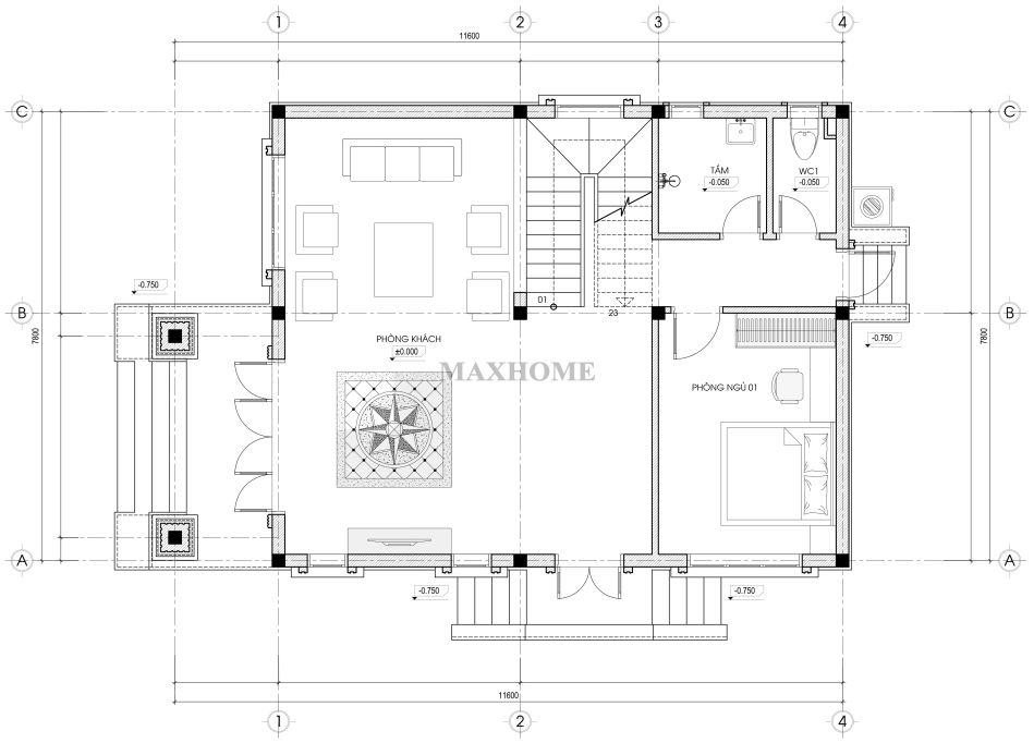
Mặt bằng nội thất tầng 1 được thiết kế tập trung vào tính kết nối và sự tiện nghi trong sinh hoạt chung. Bước qua sảnh chính là không gian phòng khách rộng lớn tạo điểm nhấn bởi một mảng gạch thảm trang trí tinh xảo ngay chính giữa. Tầng này bố trí 1 phòng ngủ kín đáo ở phía góc phù hợp cho người lớn tuổi để không phải di chuyển lên tầng nhiều. Hệ thống giao thông đứng là cầu thang bộ được đặt ở trung tâm nhà, cạnh đó là khu vực vệ sinh chung và phòng tắm được phân tách riêng biệt để tối ưu hóa công năng sử dụng.


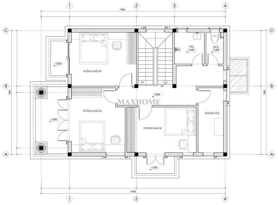
Lên đến tầng 2, mặt bằng này gồm 3 phòng ngủ được sắp xếp khoa học xung quanh sảnh thang. Đặc biệt, phòng thờ được đặt ở vị trí trang trọng hướng ra phía mặt tiền để đảm bảo tính phong thủy và sự yên tĩnh. Điểm đắt giá của tầng 2 chính là hệ thống ban công rộng mở tại các phòng ngủ phía trước giúp tăng cường khả năng đối lưu không khí và ánh sáng. Tương tự như tầng 1, khu vực vệ sinh và phòng tắm tại tầng 2 cũng được bố trí đồng trục để thuận tiện cho việc lắp đặt hệ thống kỹ thuật điện nước.












