Ngôi nhà 2 tầng 1 tum có thiết kế hiện đại, sang trọng và giá cả hợp lý | MH05508

Chủ đầu tư: Cô Nguyễn Thị Phú Số tầng: 2 tầng 1 tum
Địa chỉ: Buôn Ma Thuột, Đắk Lắk Diện tích xây dựng: 10 x 19,8m
Loại hình: Nhà mái bằng hiện đại Tổng diện tích: 415m2
Công năng:
  • Tầng 1: Gara ô tô, phòng khách, phòng bếp, 1 phòng ngủ, 1 wc, sân ướt
  • Tầng 2: Phòng sinh hoạt chung, 3 phòng ngủ, 3 wc, sân chơi, sân ướt
  • Tầng tum: Phòng thờ, phòng kho, 1 phòng ngủ, 1 wc

(Công trình có sử dụng thang máy)

Một tuyệt phẩm kiến trúc hiện đại vừa được Maxhome trình làng thuộc sở hữu của gia đình cô Phú tại Đắk Lắk. Ngôi nhà 2 tầng 1 tum này là sự kết tinh giữa tư duy thẩm mỹ thời thượng và giải pháp kiến trúc thông minh, mở ra một không gian sống đẳng cấp dành cho những gia chủ yêu thích sự tinh tế. Với sự tính toán kỹ lưỡng về chi phí và công năng ngoại thất, Maxhome đã kiến tạo nên một biểu tượng mới cho phong cách sống hiện đại và hứa hẹn sẽ trở thành xu hướng dẫn đầu trong những năm tới.

Căn nhà 2 tầng 1 tum gây ấn tượng mạnh mẽ bởi những đường nét hình khối dứt khoát và khỏe khoắn, đây chính là đặc trưng tiêu biểu của phong cách kiến trúc hiện đại mà công trình đang theo đuổi. Thay vì sử dụng những chi tiết phào chỉ cầu kỳ hay hoa văn rườm rà của phong cách cổ điển, mẫu nhà đẹp này đã ưu tiên sự sắp đặt tinh tế của các khối vuông vức giúp tạo nên một diện mạo tổng thể kiên cố, vững chãi nhưng vẫn giữ được nét thanh thoát và nhẹ nhàng.

ngoi-nha-2-tang-1-tum-co-thiet-ke-hien-dai-sang-trong-va-gia-ca-hop-ly-1

Sự sang trọng của ngôi nhà còn đến từ tỉ lệ vàng trong thiết kế mặt tiền giúp tạo nên sự cân đối tuyệt đối giữa các tầng. Việc khéo léo lồng ghép thêm phần tum không chỉ là giải pháp mở rộng không gian sử dụng hiệu quả mà còn là đòn bẩy thị giác giúp công trình trông cao ráo và bề thế hơn hẳn so với những mẫu nhà tầng truyền thống. Sự kết hợp giữa các mảng đặc của tường và khoảng hở của ban công tạo nên một nhịp điệu kiến trúc đầy lôi cuốn khiến bất cứ ai đi ngang qua cũng phải trầm trồ khen ngợi.

ngoi-nha-2-tang-1-tum-co-thiet-ke-hien-dai-sang-trong-va-gia-ca-hop-ly-14

Để tôn vinh vẻ đẹp hiện đại, Maxhome đã lựa chọn bảng màu trung tính đầy quyền năng với tông trắng sứ chủ đạo. Sắc trắng tinh khôi đóng vai trò là lớp nền hoàn hảo làm nổi bật các mảng tường ốp đá vân mây Granite xám ghi và những chi tiết nhựa giả gỗ trang trí màu nâu trầm ấm dưới mái. Sự đan xen giữa các loại vật liệu cao cấp này không chỉ giúp bảo vệ công trình bền bỉ trước sự khắc nghiệt của thời tiết Đắk Lắk mà còn tạo nên một hiệu ứng thẩm mỹ đa tầng và đậm chất nghệ thuật.

ngoi-nha-2-tang-1-tum-co-thiet-ke-hien-dai-sang-trong-va-gia-ca-hop-ly-15

Hệ thống cửa sổ và cửa chính được thiết kế đồng bộ bằng nhôm hệ xingfa kết hợp cùng kính cường lực diện tích lớn. Lựa chọn vật liệu này giúp mang lại vẻ hiện đại và làm cho căn nhà 2 tầng 1 tum luôn tràn ngập ánh sáng tự nhiên, xóa nhòa khoảng cách giữa không gian sống và thiên nhiên bên ngoài. Đặc biệt, việc sử dụng lan can kính trong suốt cho các ban công đã tạo nên một tầm nhìn không giới hạn để gia chủ có thể tận hưởng trọn vẹn không gian thoáng đãng của vùng đất Tây Nguyên ngay tại nhà mình.

ngoi-nha-2-tang-1-tum-co-thiet-ke-hien-dai-sang-trong-va-gia-ca-hop-ly-16

Điểm nhấn đắt giá nhất về hình khối chính là hệ mái Nhật màu xanh than lịch lãm bao phủ phía trên với độ dốc được tính toán khoa học, hệ mái này đảm bảo khả năng thoát nước nhanh, chống nóng vượt trội và còn tạo nên một diện mạo hài hòa, giao thoa giữa nét sang trọng Châu Âu và sự gần gũi của văn hóa Á Đông. Phần tum được thiết kế ẩn hiện dưới mái Nhật một cách khéo léo, đây cũng là nơi lý tưởng để gia đình cô Phú có thể bố trí các tiểu cảnh xanh, góp phần điều hòa không khí và mang lại sức sống xanh mát cho toàn bộ công trình.

ngoi-nha-2-tang-1-tum-co-thiet-ke-hien-dai-sang-trong-va-gia-ca-hop-ly-13

Khi màn đêm buông xuống, ngôi nhà 2 tầng 1 tum lại khoác lên mình một diện mạo lung linh và lộng lẫy như một khách sạn hạng sang. Hệ thống đèn LED âm trần và đèn tường được bố trí thông minh tỏa ra ánh sáng vàng ấm áp hắt lên các mảng tường đá và trần gỗ giúp tạo nên một không gian sống đầy cảm xúc và đẳng cấp. Sự kết hợp hoàn hảo giữa ánh sáng, vật liệu và cây xanh tại các ban công đã thực sự biến nơi đây thành một tổ ấm lý tưởng, nơi mỗi thành viên trong gia đình đều cảm thấy tự hào khi trở về.

ngoi-nha-2-tang-1-tum-co-thiet-ke-hien-dai-sang-trong-va-gia-ca-hop-ly-17

ngoi-nha-2-tang-1-tum-co-thiet-ke-hien-dai-sang-trong-va-gia-ca-hop-ly-18

Mặt bằng định vị thể hiện ngôi nhà 2 tầng 1 tum được xây dựng trên một khuôn viên đất hình chữ nhật có kích thước khá vuông vắn và lợi thế về chiều dài. Công trình được đặt lùi vào một khoảng so với chỉ giới đường đỏ tạo nên một khoảng đệm sân trước rộng rãi khoảng 5,9m giúp cách âm, giảm bụi từ trục đường giao thông chính và tạo không gian đỗ xe thuận tiện. Ranh giới khu đất được xác định rõ ràng bởi các mốc tọa độ, trong đó ngôi nhà được xây dựng sát về phía tường rào bên phải để tối ưu hóa diện tích sân vườn và lối đi bên hông trái. Sự phân định rạch ròi giữa diện tích xây dựng và khoảng lùi không chỉ tuân thủ quy định quy hoạch mà còn tạo ra sự thông thoáng giúp ngôi nhà dễ dàng đón gió và ánh sáng tự nhiên từ nhiều phía.

ngoi-nha-2-tang-1-tum-co-thiet-ke-hien-dai-sang-trong-va-gia-ca-hop-ly-28
Mặt bằng định vị công trình

Mặt bằng tầng 1 được thiết kế tối ưu với phòng khách rộng rãi 29m2 rất sang trọng và bề thế cho ngôi nhà. Phía đối diện qua sảnh phụ là khu vực gara ô tô biệt lập, đảm bảo vệ sinh và an toàn. Tâm điểm của tầng này là không gian bếp và phòng ăn kết thông với nhau 27m2 tạo ra sự thông thoáng tối đa. Ngoài ra, tầng 1 còn bố trí 1 phòng ngủ ấm cúng 26m2 có cửa sổ lớn và 1 nhà vệ sinh chung tiện lợi. Đặc biệt, khu vực sân ướt phía sau giúp hỗ trợ đắc lực cho việc sơ chế thực phẩm và giữ cho không gian bếp luôn sạch sẽ.

ngoi-nha-2-tang-1-tum-co-thiet-ke-hien-dai-sang-trong-va-gia-ca-hop-ly-29
Mặt bằng bố trí công năng tầng 1

ngoi-nha-2-tang-1-tum-co-thiet-ke-hien-dai-sang-trong-va-gia-ca-hop-ly-19

Tầng 2 là khu vực riêng tư dành cho các thành viên trong gia đình với cấu trúc đa năng với phòng sinh hoạt chung 27m2 nằm ở vị trí trung tâm, đây cũng là nơi gắn kết tình cảm gia đình cô Phú trước khi đi ngủ. Tầng này sở hữu hai phòng ngủ lớn, phòng ngủ 02 rộng 24m2 có ban công hướng ra mặt tiền và phòng ngủ 03 rộng 23m2 có nhà vệ sinh riêng bên trong. Điểm nhấn của tầng 2 chính là khoảng sân chơi ngoài trời rộng rãi, mang lại không gian thư giãn lý tưởng, nơi gia chủ có thể trồng cây hoặc đặt bàn trà. Sự bố trí thông minh với 3 nhà vệ sinh giúp đảm bảo tính riêng tư tối đa cho từng phòng chức năng.

ngoi-nha-2-tang-1-tum-co-thiet-ngoi-nha-2-tang-1-tum-co-thiet-ke-hien-dai-sang-trong-va-gia-ca-hop-ly-30ke-hien-dai-sang-trong-va-gia-ca-hop-ly-30
Mặt bằng bố trí công năng tầng 2

ngoi-nha-2-tang-1-tum-co-thiet-ke-hien-dai-sang-trong-va-gia-ca-hop-ly-20

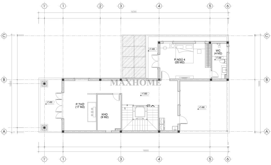
Tầng 3 được dành riêng cho các nhu cầu đặc thù và không gian yên tĩnh, phòng thờ có diện tích 17m2 được đặt ở vị trí trang trọng nhất phía trước, có cửa mở ra ban công thoáng đãng đảm bảo yếu tố phong thủy và sự tôn nghiêm. Cạnh đó là một phòng kho 9m2 giúp gia đình cô Phú sắp xếp đồ đạc ngăn nắp. Phía sau là phòng ngủ 04 20m2 đầy đủ tiện nghi với vệ sinh riêng, phù hợp làm phòng ngủ cho khách hoặc thành viên cần sự yên tĩnh tuyệt đối. Hệ thống thang máy và thang bộ xuyên suốt giúp việc di chuyển lên không gian cao nhất của ngôi nhà 2 tầng 1 tum trở nên dễ dàng và thuận tiện.

ngoi-nha-2-tang-1-tum-co-thiet-ke-hien-dai-sang-trong-va-gia-ca-hop-ly-31
Mặt bằng bố trí công năng tầng tum

ngoi-nha-2-tang-1-tum-co-thiet-ke-hien-dai-sang-trong-va-gia-ca-hop-ly-21

Yêu cầu tư vấn

    *Vui lòng để lại thông tin, nhân viên tư vấn sẽ liên hệ lại quý khách trong thời gian sớm nhất