Ngôi nhà 2 tầng hiện đại có giá 1,4 tỷ sở hữu tiện nghi và rộng rãi | MH05476
| Chủ đầu tư: Anh Nguyễn Viết Hùng | Số tầng: 2 |
| Địa chỉ: Thụy Xuân, Thái Thụy, Thái Bình | Diện tích xây dựng: 7,7 x 12,1m |
| Loại hình: Nhà mái Nhật hiện đại | Tổng diện tích: 160m2 |
Công năng:
|
|
Ngôi nhà 2 tầng hiện đại của anh Hùng xuất hiện nổi bật như một dấu ấn kiến trúc mới tại tỉnh Thái Bình. Công trình sở hữu một vẻ đẹp sang trọng, tinh tế và tiện nghi, hòa quyện trong một tổng thể hài hòa khiến nhiều người mơ ước sở hữu. Với mức đầu tư chỉ khoảng 1,4 tỷ đồng, công trình mang đến không gian sống rộng rãi, hiện đại và thể hiện gu thẩm mỹ đẳng cấp của gia chủ.
Tổng thể mẫu nhà 2 tầng hiện đại của anh Hùng được xây dựng với kích thước 7,7×12,1m vừa đủ để tạo nên một ngôi nhà bề thế, cân đối và phù hợp với nhu cầu sinh hoạt của gia đình 4 đến 6 thành viên. Ngay từ cái nhìn đầu tiên, mẫu nhà đẹp này đã gây ấn tượng mạnh bởi hình khối kiến trúc rõ ràng, vững chãi nhưng vẫn giữ được nét mềm mại nhờ sự kết hợp khéo léo giữa màu sắc, vật liệu và chi tiết trang trí tinh tế.

Điểm nhấn đầu tiên của ngôi nhà 2 tầng hiện đại này nằm ở phần mặt tiền được bố cục mạch lạc, khoa học. Các khối tường được chia theo phương ngang giúp mở rộng cảm giác không gian khiến căn nhà 2 tầng trông lớn hơn thực tế. Tông màu sơn chủ đạo xanh xám và trắng tạo nên sự trẻ trung, tinh tế và hợp thời. Xen kẽ trong đó là mảng tường ốp gạch giả đá màu vàng vừa có tác dụng chống bám bẩn vừa mang lại chiều sâu thẩm mỹ.

Phần sảnh chính rộng 4m2 của ngôi nhà anh Hùng được Maxhome thiết kế ấn tượng với mái hiên nhỏ lợp ngói cùng hai cột trụ vuông vững chãi tạo cảm giác trang trọng và chào đón. Cửa chính bằng gỗ tự nhiên có họa tiết tinh xảo giúp tôn lên vẻ sang trọng đồng thời là điểm nhấn ấm áp cho toàn bộ mặt tiền.
Bên cạnh đó, hệ cửa sổ nhôm kính hiện đại được bố trí hợp lý giúp tận dụng tối đa ánh sáng tự nhiên mang đến cảm giác thông thoáng cho không gian bên trong. Sự phối hợp giữa vật liệu kính và gỗ mang đến vẻ cân bằng giữa truyền thống và hiện đại rất hot xu hướng nhiều năm trở lại đây.


Lan can tầng 2 được sơn màu vàng đồng ánh kim tạo điểm nhấn tinh tế và mang hơi hướng tân cổ điển nhẹ. Nhờ đó giúp cho ngôi nhà 2 tầng hiện đại giữ được vẻ hiện đại năng động và toát lên sự sang trọng, đẳng cấp của gia chủ. Nếu bạn muốn phong cách trẻ trung hơn, lan can này hoàn toàn có thể thay bằng kính cường lực để tôn thêm nét thanh thoát cho thiết kế.

Một yếu tố khiến ngôi nhà 2 tầng hiện đại của anh Hùng thêm phần hoàn hảo chính là sự kết hợp hài hòa với cảnh quan xung quanh. Khoảng sân lát gạch sạch sẽ, tinh tế giúp ngôi nhà trở nên gần gũi, mát mẻ và thân thiện với môi trường. Hàng rào trắng bao quanh kết hợp với nền tường xanh xám giúp tạo nên cảm giác an toàn đồng thời vẫn giữ được nét mềm mại, dễ chịu cho người nhìn.

Mặt bằng định vị được đội ngũ kỹ thuật Maxhome trực tiếp đến khu đất nhà anh Hùng để ghi lại hình ảnh thực trạng khu đất như nào, đồng thời đo đạc chuẩn trước khi tiến hành thiết kế và xây dựng nhà 2 tầng hiện đại cho gia đình anh. Nhà anh Hùng ở gần ngay đoạn đường rộng rãi, thoải mái nên việc vận chuyển vật tư xây dựng sau này sẽ rất dễ dàng.


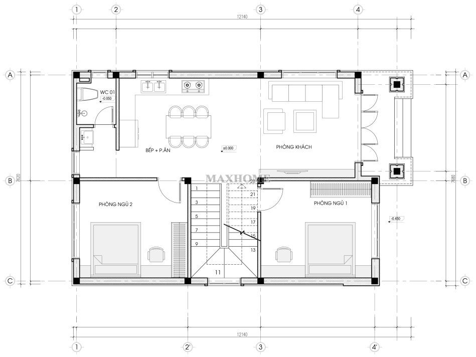
Từ sảnh chính bước vào là phòng khách sang trọng với bộ sofa gỗ cùng bàn trà kính tinh tế. Sau đó là khu vực bếp lắp đặt hệ tủ chữ L rộng rãi, có ô riêng cho tủ lạnh để tổng thể nội thất căn bếp được hài hoà. Ngoài ra, tầng 1 còn có 2 phòng ngủ có diện tích gần tương đương nhau đặt ở hai bên cầu thang và đều sử dụng chung nhà vệ sinh ở cuối nhà.


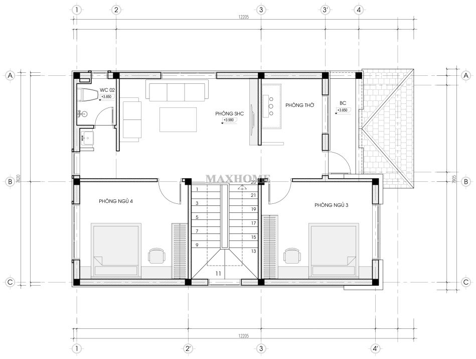
Tiến lên tầng 2 cần bước qua 23 bậc thang chữ U sang trọng, tiếp nối tới thẳng phòng sinh hoạt chung, nơi sinh hoạt và giải trí riêng tư của gia đình anh Hùng. Sau bức tường nhỏ là phòng thờ trang nghiêm sở hữu cửa sổ nhìn ra ban công sáng và thoáng phía trước. Các phòng ngủ và nhà vệ sinh trên tầng 2 đều được thiết kế đồng trục giúp cho đường đi điện, nước sau này dễ thi công và sửa chữa hơn.












