Ngôi nhà 2 tầng mái Nhật tân cổ điển với 4 phòng ngủ lý tưởng | MH05548
| Chủ đầu tư: Chú Nguyễn Tài Chút | Số tầng: 2 |
| Địa chỉ: Chi Lăng, Bắc Ninh | Diện tích xây dựng: 11,3 x 15,9m |
| Loại hình: Nhà mái Nhật tân cổ điển | Tổng diện tích: 322m2 |
Công năng:
|
|
Những năm gần đây, nhà 2 tầng mái Nhật tân cổ điển đang trở thành xu hướng thiết kế được nhiều gia đình Việt lựa chọn. Với sự kết hợp hài hòa giữa nét sang trọng của kiến trúc cổ điển và sự tinh gọn, tiện nghi của phong cách hiện đại, mẫu nhà đẹp dưới đây không chỉ mang đến vẻ đẹp bề thế mà còn đảm bảo tối ưu công năng sử dụng. Đây chính là lựa chọn hoàn hảo cho những gia đình yêu thích không gian sống tiện nghi, ấm cúng nhưng vẫn toát lên phong thái đẳng cấp.
Mẫu nhà 2 tầng mái Nhật dưới đây được thiết kế theo phong cách tân cổ điển sang trọng, vừa toát lên vẻ đẹp tinh tế vừa thể hiện gu thẩm mỹ riêng của gia chủ. Kiểu mái Nhật linh hoạt có thể kết hợp hài hòa với nhiều phong cách kiến trúc khác nhau, từ hiện đại trẻ trung đến cổ điển quý phái, mang đến không gian sống vừa tiện nghi vừa đẳng cấp.

Các chi tiết trong mẫu nhà 2 tầng mái Nhật tân cổ điển được nhấn mạnh bởi hệ vòm cong mềm mại tại sảnh chính, tạo cảm giác bề thế ngay từ cái nhìn đầu tiên. Bên cạnh đó, những đường phào chỉ tinh xảo bằng chất liệu thạch cao cao cấp hoặc phào chỉ PU chống ẩm mốc được bố trí chạy dọc khắp mặt tiền, nổi bật trên gam màu trắng trang nhã. Sự kết hợp hài hòa này không chỉ mang đến vẻ đẹp sang trọng, tinh tế mà còn giúp công trình bền vững theo thời gian, giữ được giá trị thẩm mỹ lâu dài.

Hệ sảnh phụ cũng được thiết kế nổi bật không kém sảnh chính, tạo nên sự cân đối và hài hòa cho tổng thể kiến trúc. Điểm nhấn đặc trưng là phần mái vòm mềm mại kết hợp tinh tế với hệ cột trụ, tầng 1 sử dụng cột vuông chắc chắn, thể hiện sự vững chãi, trong khi tầng 2 là hệ cột tròn uyển chuyển, mang lại nét thanh thoát và sang trọng. Sự kết hợp khéo léo này không chỉ tăng tính thẩm mỹ mà còn giúp công trình toát lên vẻ bề thế, tinh tế của phong cách tân cổ điển.

Trong mẫu nhà 2 tầng mái Nhật tân cổ điển, cửa chính và cửa tại sảnh phụ được lựa chọn loại cửa thép vân gỗ cao cấp, vừa đảm bảo độ an toàn, chắc chắn vừa mang lại vẻ đẹp sang trọng, gần gũi như gỗ tự nhiên. Các hệ cửa còn lại sử dụng nhôm Xingfa kết hợp kính cường lực dày dặn, giúp không gian nội thất luôn tràn ngập ánh sáng tự nhiên, đồng thời tăng khả năng cách âm, cách nhiệt hiệu quả. Sự phối hợp giữa các chất liệu hiện đại này không chỉ nâng cao tính thẩm mỹ mà còn đáp ứng tối ưu công năng sử dụng cho gia đình.

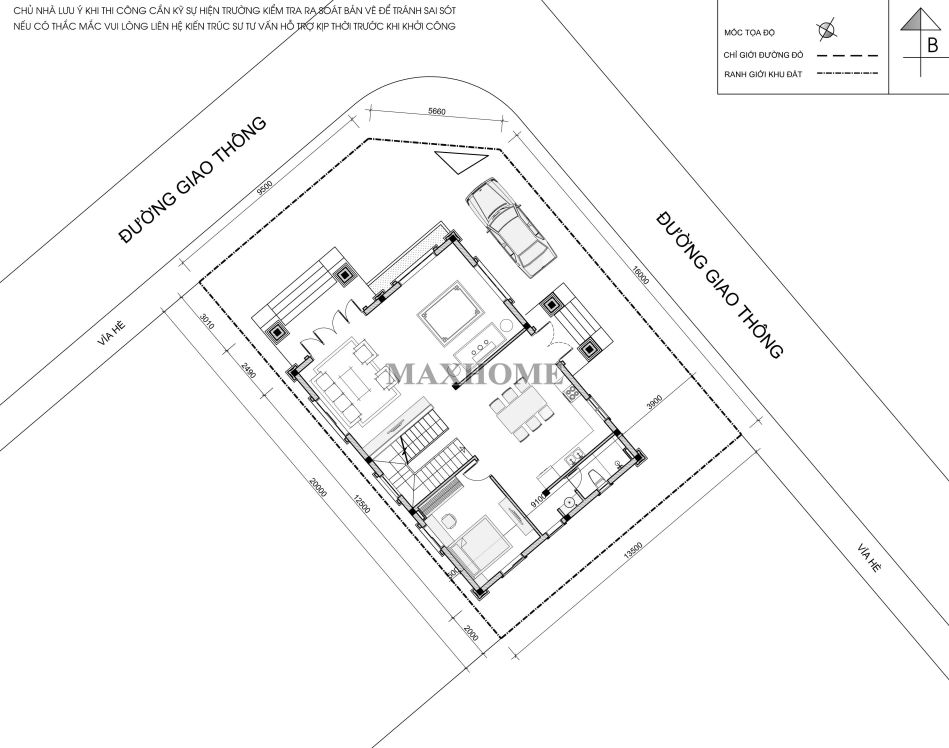
Quan sát từ trên cao, toàn bộ khuôn viên sân vườn hiện lên xanh mát với cách bố trí gọn gàng và khoa học, mang lại cảm giác thư thái cho gia chủ. Đặc biệt, hệ thống cổng chính được thiết kế lệch so với cửa chính thay vì đặt thẳng hàng, nhằm đảm bảo yếu tố phong thủy. Cách bố trí này không chỉ giúp dòng khí lưu thông hài hòa, tránh thất thoát tài lộc mà còn tạo điểm nhấn độc đáo cho tổng thể kiến trúc ngoại thất.

Công trình nhà 2 tầng được định hướng xây dựng theo trục Tây Bắc, phù hợp với nhu cầu cũng như phong thủy của gia chủ. Ngôi nhà có kích thước tổng thể 11,3 x 15,9m, tạo nên hình khối cân đối và bề thế. Với cách bố trí mặt bằng khoa học tổng diện tích sử dụng của công trình đạt khoảng 322m², đảm bảo không gian sinh hoạt rộng rãi, tiện nghi cho cả gia đình đồng thời mang đến sự thông thoáng và tính thẩm mỹ cao trong thiết kế.

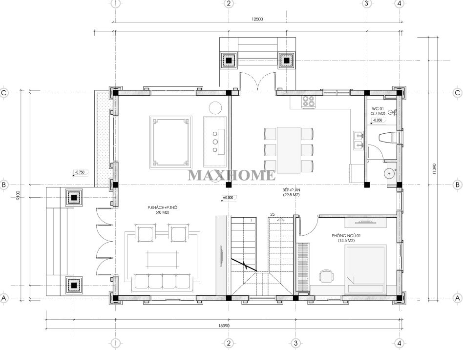
Bước qua sảnh chính, không gian đầu tiên bạn bắt gặp là phòng khách kết hợp phòng thờ tại tầng 1, vừa tiện lợi trong sinh hoạt vừa giữ được sự trang nghiêm cho ngôi nhà. Khu vực bếp ăn được bố trí liền với sảnh phụ, giúp tăng khả năng lưu thông không khí, mang lại sự thoáng đãng và hạn chế ám mùi cho không gian sinh hoạt. Bên cạnh đó, tầng 1 còn có một phòng ngủ riêng tư phù hợp cho ông bà hoặc khách đến thăm, cùng với một nhà vệ sinh chung đặt ở cuối nhà, tạo sự thuận tiện trong quá trình sử dụng mà vẫn đảm bảo tính khoa học trong thiết kế.

Tầng 2 được bố trí 3 phòng ngủ, tất cả đều có lối ra ban công rộng rãi và thoáng mát, mang đến không gian nghỉ ngơi dễ chịu cho các thành viên trong gia đình. Trong đó, phòng ngủ số 02 được thiết kế đặc biệt với không gian thay đồ riêng và nhà vệ sinh khép kín, đảm bảo sự tiện nghi và tính riêng tư cao. Ngoài ra, tầng này còn có một nhà vệ sinh chung phục vụ cho các phòng còn lại cùng khu vực sân phơi rộng ở cuối nhà, thuận tiện cho sinh hoạt hằng ngày và giúp ngôi nhà luôn gọn gàng, thoáng đãng.












