Ngôi nhà 2 tầng mái Nhật thiết kế đẹp, giá thiết kế ưu đãi hấp dẫn | MH05749
| Chủ đầu tư: Anh Trần Ngọc Nam | Số tầng: 2 |
| Địa chỉ: Long Hưng, Hưng Yên | Diện tích xây dựng: 10,5 x 14,2m |
| Loại hình: Nhà mái Nhật hiện đại | Tổng diện tích: 288m2 |
Công năng:
|
|
Bạn đang tìm kiếm một ngôi nhà 2 tầng hiện đại với thiết kế tinh tế, vừa đẹp mắt vừa tiện nghi? Ngôi nhà 2 tầng mái Nhật chính là lựa chọn hoàn hảo dành cho bạn. Với thiết kế đẹp, tối ưu công năng, kết hợp giá thiết kế ưu đãi hấp dẫn, ngôi nhà không chỉ mang đến không gian sống sang trọng mà còn giúp bạn tiết kiệm chi phí xây dựng. Hãy cùng khám phá chi tiết để sở hữu ngay không gian sống lý tưởng này!
Đây là một trong những mẫu nhà đẹp đang được đông đảo khách hàng của Maxhome tin chọn. Mỗi công trình đều sở hữu dấu ấn riêng thông qua cách phối màu, phong cách kiến trúc và cách bố trí công năng, thể hiện rõ ý tưởng cũng như nhu cầu của từng chủ đầu tư. Đối với mẫu nhà này, kiến trúc sư đã kiến tạo nên một ngôi nhà 2 tầng mái Nhật mang phong cách hiện đại, chú trọng sự tinh giản nhưng vẫn đầy đủ tiện nghi. Từng chi tiết được chăm chút kỹ lưỡng, giúp tổng thể công trình toát lên vẻ sang trọng, thanh lịch.

Diện tường của ngôi nhà 2 tầng mái Nhật được thiết kế theo phong cách tối giản, với mặt tiền thoáng đãng tạo cảm giác rộng rãi và sáng sủa. Gam màu trắng chủ đạo được kết hợp hài hòa cùng màu ghi, mang đến vẻ hiện đại, thanh lịch. Ngoài ra, các chi tiết trang trí tinh tế từ vật liệu như gạch granit màu đen và gạch thẻ không chỉ tăng tính thẩm mỹ mà còn làm nổi bật các đường nét kiến trúc, tạo điểm nhấn thu hút cho toàn bộ công trình.

Sự kết hợp hài hòa giữa vật liệu trang trí và màu sắc giúp mẫu nhà 2 tầng mái Nhật trở nên nổi bật và mang dấu ấn riêng. Khác với phong cách tân cổ điển thường sử dụng nhiều phào chỉ và hoa văn cầu kỳ, kiến trúc mái Nhật hướng đến sự tinh gọn, hiện đại và gần gũi. Nhờ đó, các vật liệu như đá ốp, gỗ nhựa, kính cường lực hay lan can kim loại khi phối hợp hợp lý sẽ tôn lên vẻ đẹp thanh lịch, đồng thời tạo chiều sâu và tăng điểm nhấn cho tổng thể công trình.

Bên cạnh đó, mẫu nhà 2 tầng mái Nhật còn sở hữu khoảng ban công rộng rãi, rất lý tưởng cho những buổi thưởng trà chiều hoặc thư giãn cùng gia đình. Tại đây, gia chủ có thể bố trí thêm cây xanh, tiểu cảnh hoặc các chậu hoa để tạo không gian gần gũi với thiên nhiên. Lan can ban công được làm từ sắt sơn tĩnh điện, đảm bảo độ bền, khả năng chống gỉ sét và góp phần tăng tính thẩm mỹ cho tổng thể công trình.

Khu vực sảnh chính và sảnh phụ đều được thiết kế với 5 bậc tam cấp, mang ý nghĩa phong thuỷ tốt lành, giúp thu hút vượng khí cho gia chủ. Toàn bộ bậc thềm được ốp đá granite màu đen, không chỉ tạo vẻ sang trọng mà còn dễ vệ sinh và có độ bền cao trước tác động của thời tiết.
Sảnh phụ cũng được đầu tư thiết kế tinh tế, không hề kém cạnh sảnh chính. Với kinh nghiệm của Maxhome, chúng tôi luôn chú trọng phân chia không gian khoa học và thông thoáng, đảm bảo mỗi khu vực đều được tận dụng tối đa ánh sáng tự nhiên và gió trời, mang đến cảm giác thoải mái cho các thành viên trong gia đình.

Khu vực cổng được thiết kế theo phong cách hiện đại, sử dụng cửa cổng bằng sắt hộp sơn tĩnh điện, tạo độ chắc chắn, bền màu và chống gỉ sét hiệu quả. Hệ tường bao xung quanh được xây bằng bê tông kiên cố, bố trí các khoảng hở nhằm tạo sự thông thoáng và giảm cảm giác nặng nề cho tổng thể công trình. Phần chân tường được ốp đá tự nhiên, giúp hạn chế rong rêu, tăng độ bền và mang lại vẻ đẹp tinh tế cho không gian ngoại thất.

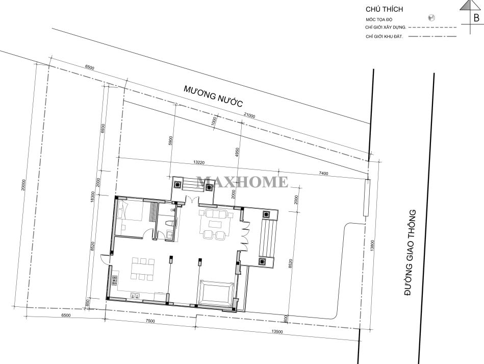
Công trình được xây dựng theo hướng Đông, sở hữu kích thước 10,5 x 14,2m, tạo nên một hình khối cân đối và phù hợp với nhiều khu đất hiện nay. Tổng diện tích sử dụng của ngôi nhà đạt khoảng 288m², bao gồm đầy đủ các không gian sinh hoạt cần thiết cho gia đình. Với quy mô này, kiến trúc sư dễ dàng bố trí công năng khoa học, mang lại sự tiện nghi và thoải mái trong quá trình sử dụng.

Phòng khách được bố trí ở vị trí trung tâm, kết nối trực tiếp với cả sảnh chính lẫn sảnh phụ, giúp không gian luôn thông thoáng và đón được nhiều ánh sáng tự nhiên. Đối diện khu vực tiếp khách là tấm phản gỗ, tạo điểm nhấn và mang lại nét truyền thống cho ngôi nhà.
Tiến về phía sau là phòng bếp ăn được thiết kế rộng rãi, thuận tiện cho sinh hoạt gia đình. Đối diện khu vực bếp là phòng ngủ, đảm bảo sự riêng tư mà vẫn dễ dàng di chuyển. Kế bên đó là nhà vệ sinh chung, được bố trí hợp lý để phục vụ nhu cầu sử dụng cho toàn bộ tầng.

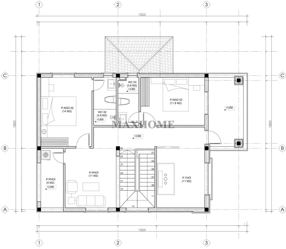
Tầng 2 được bố trí phòng thờ và phòng sinh hoạt chung rộng rãi, tạo không gian sum họp và thư giãn cho các thành viên trong gia đình. Khu vực này còn có 2 phòng ngủ, mỗi phòng đều được thiết kế nhà vệ sinh khép kín nhằm đảm bảo sự riêng tư và tiện nghi trong quá trình sử dụng. Cuối nhà là một sân phơi nhỏ được bố trí hợp lý, phục vụ nhu cầu giặt giũ và phơi đồ hằng ngày.












