Ngôi nhà phố 2 tầng 1 tum độc đáo và sáng tạo trên từng nét thiết kế | MH05485
| Chủ đầu tư: Anh Lê Tuấn Anh | Số tầng: 2 tầng 1 tum |
| Địa chỉ: Xuân Hoà, Phú Thọ | Diện tích xây dựng: 6,2 x 17,1m |
| Loại hình: Nhà phố hiện đại | Tổng diện tích: 264m2 |
Công năng:
|
|
Ngôi nhà phố 2 tầng 1 tum độc đáo và sáng tạo trên từng nét thiết kế không chỉ gợi tò mò ngay từ tên gọi mà còn tạo ấn tượng mạnh khi ngắm nhìn toàn bộ hình khối ngoại thất. Đây là công trình của anh Tuấn Anh ở Vĩnh Phúc được đội ngũ Maxhome thiết kế theo phong cách hiện đại giàu cảm hứng.
Mẫu nhà phố 2 tầng 1 tum này ghi điểm nhờ cách xử lý hình khối gọn mà mềm mại nhờ các đường cong, ngoài ra công trình còn kết hợp tinh tế giữa sự tối giản và những điểm nhấn tinh xảo để tạo nên vẻ ngoài vừa trẻ trung vừa sang trọng. Chỉ cần nhìn qua, bạn có thể cảm nhận được tinh thần sáng tạo và sự đầu tư nghiêm túc của đội ngũ thiết kế Maxhome trong từng chi tiết của công trình.

Tổng thể kiến trúc của ngôi nhà anh Tuấn Anh mang hơi hướng hiện đại với các mảng khối rõ ràng và mạnh mẽ. Maxhome đã tận dụng lợi thế mặt tiền hẹp 6,2m nhưng chiều sâu lớn để tạo ra một bố cục hài hòa, cân đối và thoáng mắt. Các khối nhà được xếp lớp hợp lý giúp tạo hiệu ứng đổ bóng đẹp và làm nổi bật chiều cao của nhà phố 2 tầng 1 tum. Nhìn từ xa, công trình hiện lên rất thanh thoát, không rườm rà mà vẫn đủ sức tạo dấu ấn riêng nhờ ngôn ngữ kiến trúc mạch lạc và sự tinh gọn trong từng đường nét.

Màu sơn trắng ngoại thất là một trong những yếu tố khiến mẫu nhà đẹp trở nên hút mắt hơn. Những đường viền màu tối ở hệ cửa và lan can được dùng đúng chỗ tạo nên độ tương phản mạnh giúp hình khối rõ ràng và ấn tượng hơn. Ngoài ra, nền trắng kết hợp điểm nhấn đen luôn là công thức an toàn nhưng rất sang trọng, đặc biệt ở mẫu nhà phố 2 tầng 1 tum này, Maxhome đã vận dụng rất khéo léo để tôn lên vẻ hiện đại, tinh tế mà không gây cảm giác lạnh hay đơn điệu.

Hệ cửa kính khung đen là một nét đặc trưng của thiết kế hiện đại. Nhìn vào mặt tiền, bạn sẽ thấy các ô cửa được bố trí có chủ đích để đảm bảo ánh sáng tự nhiên tràn vào nhà và tạo tính nhịp điệu cho toàn bộ kiến trúc. Những ô cửa lớn giúp ngôi nhà trông rộng và thoáng hơn nhiều so với diện tích thực tế, đồng thời mang đến cảm giác gần gũi khi ánh sáng vàng từ bên trong phản chiếu ra ngoài lúc trời tối.

Không thể bỏ qua phần ban công với thiết kế mềm mại, thú vị cho các mảng tường thẳng và vuông. Lan can hoa văn kim loại được xử lý tinh tế và không quá cầu kỳ nhưng đủ để tạo sức hút. Những chậu cây nhỏ bố trí trước các ô cửa và bên ban công làm dịu lại các khối hình cứng tạo cảm giác tươi và có sức sống cho ngôi nhà. Phía sau công trình có hàng rào sắt hộp 10x10mm cách đều 100mm được sơn tĩnh điện đen, chắc chắn để có một không gian phơi đồ thoáng mát và sạch sẽ.

Trên tầng tum, khoảng sân thượng rộng được mở ra như một không gian thư giãn lý tưởng và xây tường bao an toàn cao 900mm. Đây cũng là yếu tố giúp công trình đúng chuẩn một nhà phố 2 tầng 1 tum thực thụ khi vừa bổ sung diện tích sử dụng vừa tạo khoảng thở cho toàn bộ ngôi nhà. Khu vực này có thể trồng cây, làm góc nghỉ hoặc tổ chức những buổi sum họp nhỏ. Ngay cả bồn nước và khu kỹ thuật cũng được đặt gọn gàng ở phía trên để bảo đảm thẩm mỹ mà vẫn thuận tiện cho sinh hoạt.

Thực tế khi nhìn vào hình ảnh vào mặt bằng định vị công trình sẽ thấy rõ trước cổng nhà chỉ rộng 5m và mở rộng dần về phía sau, ngay vị trí mặt tiền ngôi nhà được xây dựng kích thước mặt tiền 6,2m và chừa ra khoảng nhỏ để gió lưu thông không khí. Phía sau nhà cũng có cửa đi nhỏ giúp không khí trong nhà phố 2 tầng 1 tum này luôn trao đổi được tốt, không gây bí bách như các công trình nhà phố khác.


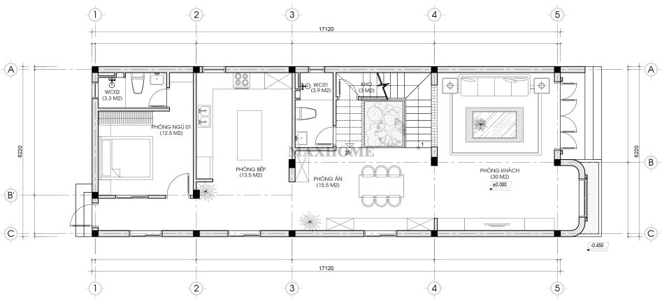
Tầng 1 bước vào là phòng khách 30m2 nằm ở vị trí đầu tiên để thuận tiện đón tiếp và kết nối trực tiếp với các không gian sinh hoạt phía sau. Phòng ăn được đặt liền sau đó để tối ưu tiện nghi và tạo sự ấm cúng trong mỗi bữa cơm, các món ăn sẽ được mang từ phòng bếp 13,5m2 qua đây bài trí rất tiện. Cuối nhà là phòng ngủ nhỏ 12,5m2 có nhà vệ sinh riêng bên trong để đảm bảo sự riêng tư cho người dùng. Ngoài ra, nhà vệ sinh chung đã được bố trí ngay cạnh cầu thang và gần khu vực phòng ăn giúp đáp ứng nhu cầu sinh hoạt hằng ngày mà không ảnh hưởng đến sự thông thoáng chung của tầng.

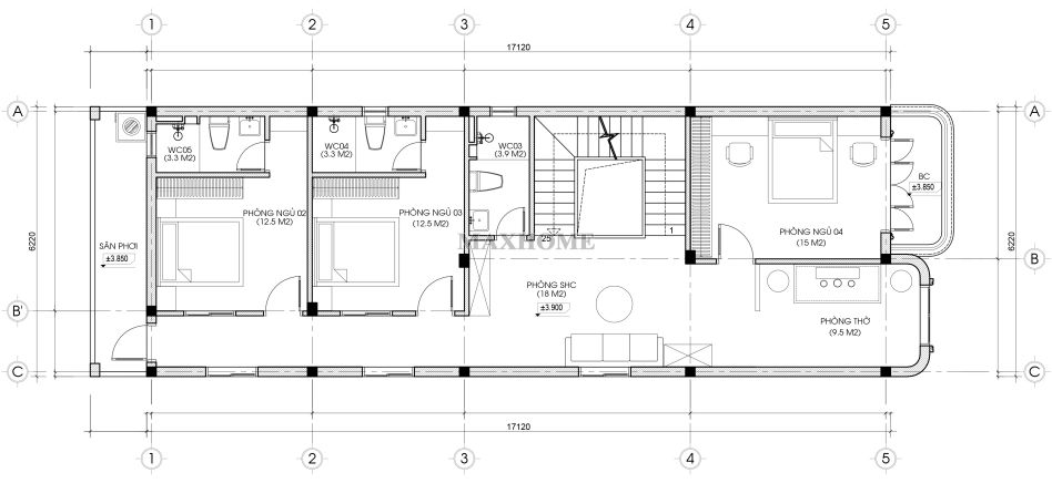
Tầng 2 đóng vai trò là không gian sinh hoạt chính của gia đình anh Tuấn Anh với sự phân chia hài hòa giữa chức năng và sự thoải mái. Phòng thờ 9,5m2 được đặt ở vị trí trang trọng, tách biệt vừa đủ để giữ sự yên tĩnh và trang nghiêm. Phòng sinh hoạt chung nằm ở trung tâm tầng để cả nhà có thể sum họp, trò chuyện hoặc thư giãn sau một ngày làm việc. Ba phòng ngủ được bố trí hợp lý và khoa học để đảm bảo ánh sáng tự nhiên, sự thông thoáng và độ riêng tư cần thiết. Ba nhà vệ sinh được phân bổ khoa học giúp việc sinh hoạt trở nên thuận tiện và chủ động hơn cho mọi người.

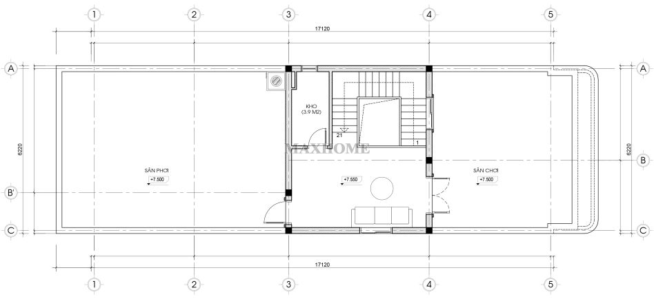
Tầng tum được thiết kế đa năng với sự thoáng đãng và rộng mở. Phòng kho nhỏ 3,9m2 nằm gọn một góc cạnh cầu giúp gia đình sắp xếp đồ đạc ít dùng tới mà không chiếm diện tích sinh hoạt. Phần còn lại là sân chơi rộng rãi, nơi lý tưởng cho trẻ nhỏ vui đùa hoặc các hoạt động thư giãn ngoài trời. Không gian tầng tum vừa thực tế vừa thoáng mát giúp mang đến sự cân bằng giữa công năng và chất lượng sống cho toàn bộ ngôi nhà.
Với tất cả những điểm nhấn trên, mẫu nhà phố 2 tầng 1 tum của anh Tuấn Anh ở Vĩnh Phúc là một trong những thiết kế thể hiện rõ phong cách sáng tạo và khả năng xử lý không gian thông minh của Maxhome. Ngôi nhà không cố phô trương mà chọn cách đẹp bằng sự tinh gọn và chỉn chu. Đây sẽ là mẫu nhà lý tưởng cho những ai yêu thích sự đơn giản nhưng vẫn muốn có một không gian sống đậm chất riêng.











