Ngôi nhà vườn cấp 4 tân cổ tinh gọn, tiện nghi cho gia đình 2 thế hệ | MH05527

Chủ đầu tư: Anh Bùi Mạnh Thăng Số tầng: 1
Địa chỉ: Gia Lâm, Ninh Bình Diện tích xây dựng: 12,4 x 16,4m
Loại hình: Nhà mái Nhật tân cổ điển Tổng diện tích: 130m2
Công năng:

Phòng khách, phòng thờ, phòng bếp, phòng ăn, 3 phòng ngủ, 2 wc

Giữa nhu cầu tìm một không gian sống đẹp, thoải mái và phù hợp nhiều độ tuổi, mẫu nhà vườn cấp 4 tân cổ điển tinh gọn này trở thành lựa chọn lý tưởng cho gia đình hai thế hệ. Thiết kế Maxhome giữ được sự sang trọng của kiến trúc cổ điển nhưng lược bỏ mọi chi tiết rườm rà đã mang đến một ngôi nhà vừa thanh lịch vừa thực tế.

Với mặt tiền 12,4m thoáng đãng, đường nét gọn gàng và cảm giác ấm áp ngay từ cái nhìn đầu tiên, mẫu nhà vườn cấp 4 tân cổ đã mang đến không gian sống yên bình, tiện nghi và bền vững cho gia đình anh Thắng.

Tổng thể kiến trúc được xây dựng hài hòa giữa vẻ đẹp cổ điển và phong cách hiện đại. Nhờ vậy, ngôi nhà vừa giữ được sự tinh tế của những đường nét truyền thống vừa đáp ứng đúng thẩm mỹ của đời sống ngày nay.

ngoi-nha-vuon-cap-4-tan-co-tinh-gon-tien-nghi-cho-gia-dinh-2-the-he-1

Điểm nhận diện mạnh nhất của mẫu thiết kế là hệ mái Nhật giật cấp, mái có độ dốc vừa phải, xếp lớp khéo léo nên tạo chiều sâu và khiến ngôi nhà cấp 4 trông cao ráo hơn dù chỉ xây một tầng. Màu ngói xanh dương đậm tạo sự tương phản dịu với tông tường trắng. Nhìn từ xa, từng mảng mái gấp khúc lên xuống rất rõ nhịp cho thấy sự tính toán kỹ lưỡng của đội ngũ thiết kế Maxhome. Thêm vào đó, những chi tiết chóp trang trí trên các đỉnh mái giúp ngôi nhà thêm thanh thoát mà không bị cầu kỳ quá mức.

ngoi-nha-vuon-cap-4-tan-co-tinh-gon-tien-nghi-cho-gia-dinh-2-the-he-13

Phần mặt tiền được xử lý đầy tính thẩm mỹ với hệ cột vuông được bố trí cân đối, đặt dưới sảnh vòm cao rộng rất trang trọng. Thân cột có các đường chỉ chạy dọc tạo chiều sâu và cảm giác chắc chắn. Dù là tân cổ điển nhưng cấu trúc mặt tiền giữ sự gọn gàng, không sử dụng quá nhiều hoa văn phức tạp để giúp công trình có sức sống lâu dài mà không bị lỗi thời.

ngoi-nha-vuon-cap-4-tan-co-tinh-gon-tien-nghi-cho-gia-dinh-2-the-he-10

Căn nhà cấp 4 tân cổ của anh Thăng sử dụng gam màu trắng giúp không gian sáng, sạch và dễ phối hợp. Trong nắng sớm hay chiều muộn, bề mặt tường trắng phản chiếu ánh sáng nhẹ mang đến sự thư thái cho toàn bộ khuôn viên. Để cân bằng sắc thái, phần chân tường ốp đá tối màu giúp tăng độ bền cho khu vực tiếp xúc nhiều với bụi đất và nước mưa. Ngoài ra, sự đối lập giữa tường trắng và đá tối tạo hiệu ứng thị giác chắc chắn và sang trọng.

ngoi-nha-vuon-cap-4-tan-co-tinh-gon-tien-nghi-cho-gia-dinh-2-the-he-11

Một yếu tố tạo ấn tượng mạnh là hệ cửa nhôm sơn giả gỗ đặt tại mặt tiền giúp cánh cửa trở thành điểm nhấn đặc biệt. Bên cạnh đó, cửa sổ cũng dùng khung nhôm kính hiện đại để mở rộng tầm nhìn và tăng khả năng lấy sáng. Sự kết hợp giữa màu nâu giả gỗ và cửa kính khiến tổng thể nhà cân bằng giữa truyền thống và hiện đại.

ngoi-nha-vuon-cap-4-tan-co-tinh-gon-tien-nghi-cho-gia-dinh-2-the-he-12

Tiếp đến là hệ tường rào và cổng cũng được Maxhome chăm chút kỹ. Tường rào không xây kín hoàn toàn mà chừa các khe thoáng bằng lan sắt giúp giữ được sự thông gió cho sân vườn và vẫn đảm bảo an ninh. Chân rào ốp đá đồng bộ với chân tường nhà tạo một chỉnh thể được gắn kết chặt chẽ, cổng thì sử dụng vật liệu thép đơn giản nhưng rất vững.

ngoi-nha-vuon-cap-4-tan-co-tinh-gon-tien-nghi-cho-gia-dinh-2-the-he-14
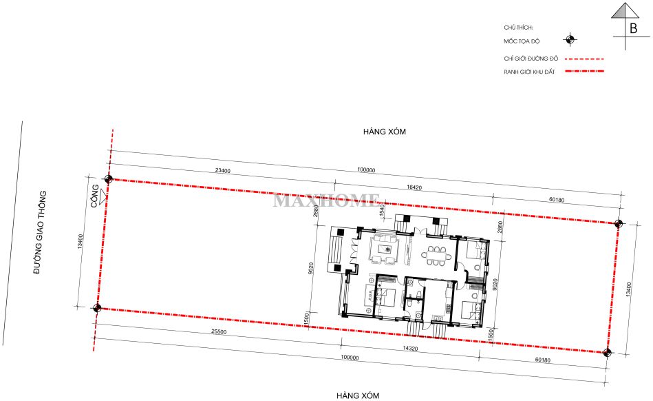
Mặt bằng định vị công trình

Dựa vào mặt bằng định vị công trình có thể thấy rõ khuôn viên khu đất nhà anh Thăng rất rộng rãi, ngôi nhà vườn cấp 4 tân cổ được đặt ở giữa nhưng vẫn sở hữu được hai khoảng sân trước và sau rất rộng rãi, thoáng mát.

ngoi-nha-vuon-cap-4-tan-co-tinh-gon-tien-nghi-cho-gia-dinh-2-the-he-15
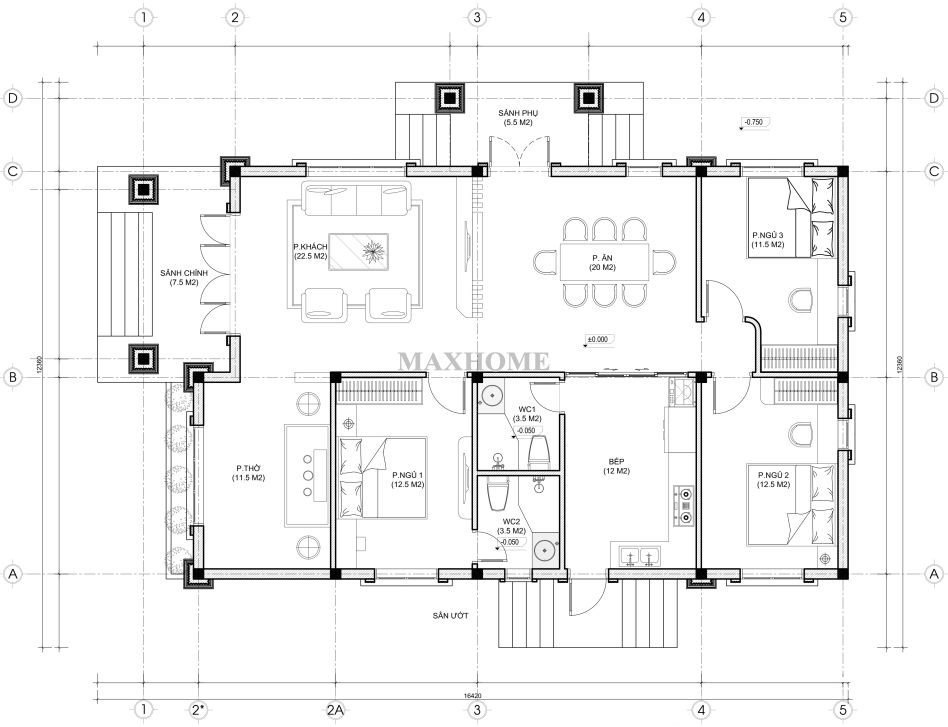
Mặt bằng bố trí công năng nhà cấp 4 tân cổ

Bên trong ngôi nhà được sắp xếp công năng gọn và hợp lý để đáp ứng nhu cầu sinh hoạt của gia đình hai thế hệ. Từ cửa chính bước vào là phòng khách, ngay cạnh đó là phòng thờ đặt ở vị trí trang nghiêm, tách nhẹ bằng vách ngăn gỗ nhưng vẫn thuận tiện cho việc hương khói.

Khu vực bếp và phòng ăn được bố trí cạnh nhau để gia đình dễ dàng quây quần trong các bữa cơm. Bếp có không gian riêng và lắp cửa kính để tránh ám mùi nấu nướng trong nhà. Ngoài ra, căn nhà còn có ba phòng ngủ được chia đều để phù hợp cho gia đình hai thế hệ cùng sinh sống. Hai nhà vệ sinh cũng được bố trí thuận tiện cho cả khu sinh hoạt chung và phòng ngủ 01 để giúp việc sử dụng hàng ngày không bị chồng chéo.

Yêu cầu tư vấn

    *Vui lòng để lại thông tin, nhân viên tư vấn sẽ liên hệ lại quý khách trong thời gian sớm nhất