Nhà 2 tầng mái bằng tân cổ điển độc đáo nằm giữa thủ đô | MH05634

Chủ đầu tư: Cô Bùi Thị Thư Số tầng: 2
Địa chỉ: Thuỵ Lâm, Đông Anh, Hà Nội Diện tích xây dựng: 11,4 x 9,2m
Loại hình: Nhà mái bằng tân cổ điển Tổng diện tích: 210m2
Công năng:
  • Tầng 1: Phòng khách, phòng bếp, phòng ăn, 1 phòng ngủ, 1 wc
  • Tầng 2: Phòng thờ, 3 phòng ngủ, 2 wc

(Công trình có sử dụng thang máy)

Dưới đây là mẫu nhà 2 tầng mái bằng tân cổ của anh cô Thư do Maxhome thiết kế gợi lên cảm giác hài hòa giữa nét cổ điển mềm mại và kiểu dáng gọn gàng của kiến trúc mới. Đứng trước công trình, người xem dễ dàng cảm nhận được sự chỉn chu, tinh tế và cách Maxhome xử lý những chi tiết ngoại thất sao cho vừa bắt mắt vừa bền theo thời gian.

Ngay từ phần mặt tiền, mẫu nhà 2 tầng mái bằng tân cổ này đã tạo dấu ấn mạnh mẽ nhờ hệ cửa vòm đặc trưng. Những đường cong mềm được kéo dài trước mặt tiền rồi tiếp tục xuất hiện ở mặt sau tạo nhịp điệu cho toàn bộ kiến trúc. Hai bên nhà bố trí các ô cửa được làm vuông vức và bổ trợ cho nhau để tổng thể không bị rườm rà. Tất cả cửa đều được sử dụng khung nhôm kính cường lực mang lại cảm giác hiện đại, dễ lau chùi và bền trước thời tiết khắc nghiệt của thủ đô. Trên mỗi ô cửa, phào trắng nổi được bo cong theo đường vòm giúp các mảng tường trở nên có chiều sâu hơn và giữ đúng tinh thần tân cổ điển mà gia chủ yêu thích.

nha-2-tang-mai-bang-tan-co-dien-doc-dao-nam-giua-thu-do-1

Dù chỉ sử dụng một tông màu trắng duy nhất nhưng ngôi nhà 2 tầng mái bằng này không hề đơn điệu. Trái lại, màu trắng giúp làm nổi bật từng chi tiết nhỏ như khung cửa, lan can hay phần thềm nhà. Khi bước gần hơn, bạn sẽ dễ thấy bộ lan can sắt lập là dày 5mm được bố trí ở tầng hai vừa tạo điểm nhấn vừa đảm bảo độ an toàn với chiều cao 650mm. Kiểu lan can này khi đặt trên nền trắng càng rõ nét hơn khiến tầng 2 như được mở rộng tầm nhìn và trở nên thanh thoát.

nha-2-tang-mai-bang-tan-co-dien-doc-dao-nam-giua-thu-do-8

Sàn hiên của ngôi nhà được nâng cos 450mm tạo thành ba bậc thềm dẫn lối vào cửa chính, cách xử lý này giúp mặt tiền mẫu nhà đẹp có chiều cao vừa đẹp vừa tạo cảm giác sang trọng. Phần chân tường được ốp gạch giả đá tối màu để tăng độ vững chãi và giúp ngôi nhà 2 tầng của cô Thư sạch sẽ hơn trong quá trình sử dụng. Nhờ màu gạch tối giúp cho sự tương phản rõ nét hơn với mảng tường trắng phía trên để tạo sự cân bằng, khiến toàn bộ công trình đứng vững và chắc chắn trong cảm nhận của người nhìn.

nha-2-tang-mai-bang-tan-co-dien-doc-dao-nam-giua-thu-do-10

Cửa chính rộng 3,6m mang lại vẻ bề thế và thoáng đãng, hai bên cửa được đặt hai trụ nhỏ xinh giống như điểm nhấn nhẹ nhàng làm khung cho lối vào. Không chỉ có mặt tiền được chăm chút, phần phía sau của mẫu nhà 2 tầng mái bằng tân cổ này cũng được thiết kế tỉ mỉ, hai lối đi phụ được đặt tại mặt sau giúp gia chủ thuận tiện trong sinh hoạt hàng ngày. Dù chỉ là lối phụ, cách hoàn thiện cửa, thềm và các chi tiết trang trí vẫn đẹp và hài hòa như mặt trước, điều này phản ánh đúng phong cách thiết kế đồng nhất của Maxhome.

nha-2-tang-mai-bang-tan-co-dien-doc-dao-nam-giua-thu-do-9

nha-2-tang-mai-bang-tan-co-dien-doc-dao-nam-giua-thu-do-11

Để có được bản thiết kế chuẩn chỉnh như vậy, đội ngũ kỹ thuật Maxhome đã trực tiếp đến khảo sát thực địa tại nhà anh cô Thư ở Hà Nội. Từ đo đạc, kiểm tra mặt bằng đến trao đổi nhu cầu chi tiết với gia chủ và mọi bước đều được thực hiện cẩn thận. Nhờ đó, bản vẽ định vị và kích thước công trình đạt độ chính xác cao để giúp quá trình thi công diễn ra thuận lợi và đảm bảo đúng ý tưởng ban đầu.

nha-2-tang-mai-bang-tan-co-dien-doc-dao-nam-giua-thu-do-12
Mặt bằng định vị công trình

Với ba lối vào nhà rộng rãi và thoải mái như này, chắc chắn bên trong căn nhà 2 tầng mái bằng tân cổ của cô Thư rất thoáng mát vì đón nhận được nhiều gió và ánh sáng. Bên cạnh nhà cô Thư vẫn đang để một khoảng đất trống, khu vực này nếu chưa có mục đích sử dụng làm gì thì trước mắt sẽ trồng cây xanh, tạo không gian thiên nhiên ngay cạnh nhà rất thoải mái và thư giãn.

nha-2-tang-mai-bang-tan-co-dien-doc-dao-nam-giua-thu-do-13
Mặt bằng bố trí công năng tầng 1

Bước ngôi nhà, không gian đầu tiên là đại sảnh lớn có lát gạch hoa văn trang trí điểm nhấn ấn tượng, đi vào bên trong là phòng khách rộng rãi, đặt cạnh phòng ăn và phòng bếp giúp việc sinh hoạt, tiếp đón khách cũng dễ dàng hơn. Ngay phía bên phải cửa ra vào là một căn phòng ngủ nhỏ bố trí nội thất cơ bản để phục vụ cho việc nghỉ ngơi. Bên cạnh là nhà vệ sinh chung cho cả tầng. Ở giữa trung tâm giao thông là thang bộ và thang máy giúp việc di chuyển giữa các tầng nhẹ nhàng hơn, đặc biệt hữu ích cho gia đình nhiều thế hệ.

nha-2-tang-mai-bang-tan-co-dien-doc-dao-nam-giua-thu-do-14
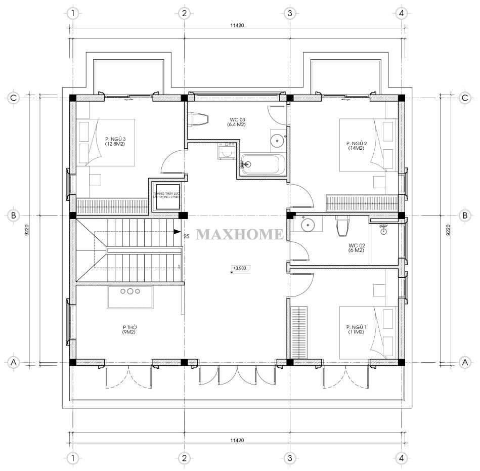
Mặt bằng bố trí công năng tầng 2

Phòng thờ trên tầng 2 đặt ở vị trí trang trọng, thoáng và tách biệt với khu vực nghỉ ngơi. Ba phòng ngủ nằm trải đều tạo không gian riêng cho từng thành viên nhưng vẫn dễ dàng kết nối khi cần. Riêng phòng ngủ 02 sở hữu riêng cho mình khu vực vệ sinh riêng, đây cũng là căn phòng ngủ master lớn nhất trong nhà. Nhà vệ sinh chung đặt ở bên ngoài, tại vị trí đồng trục với tầng 1 để mọi người tiện sử dụng và đi đường điện, nước cũng dễ dàng. Với kinh nghiệm của đơn vị thiết kế kiến trúc hàng đầu Việt Nam như Maxhome, ngôi nhà 2 tầng mái bằng tân cổ của cô Thư đã sở hữu một không gian sống hài hòa giữa thẩm mỹ và công năng, đồng thời thể hiện gu thẩm mỹ riêng của gia chủ ngay giữa lòng thủ đô.

Yêu cầu tư vấn

    *Vui lòng để lại thông tin, nhân viên tư vấn sẽ liên hệ lại quý khách trong thời gian sớm nhất