Nhà 2 tầng mái Nhật 176m² đẹp tinh tế giữa lòng Hà Tĩnh | MH05653
| Chủ đầu tư: Anh Sơn | Số tầng: 2 |
| Địa chỉ: Thành Sen, Hà Tĩnh | Diện tích xây dựng: 7,6 x 11,6m |
| Loại hình: Nhà mái Nhật hiện đại | Tổng diện tích: 176m2 |
Công năng:
|
|
Mẫu nhà 2 tầng mái Nhật 176m² do Maxhome thiết kế và thi công nổi bật với vẻ đẹp tinh tế, sang trọng và đậm chất hiện đại. Công trình không chỉ gây ấn tượng bởi kiến trúc hài hòa, đường nét mềm mại, mà còn thể hiện sự tiện nghi và khoa học trong từng không gian sống. Với phong cách mái Nhật thanh thoát kết hợp cùng tông màu trang nhã, ngôi nhà mang đến cảm giác gần gũi, ấm cúng nhưng vẫn toát lên vẻ sang trọng – đúng chuẩn không gian sống lý tưởng cho gia đình Việt.
Trong những năm gần đây, mẫu nhà 2 tầng mái Nhật ngày càng được nhiều gia chủ yêu thích và lựa chọn nhờ vẻ đẹp thanh thoát, sang trọng và bền vững theo thời gian. Kiến trúc mái Nhật không chỉ mang đậm dấu ấn tinh tế trong thiết kế mà còn đáp ứng hoàn hảo điều kiện khí hậu nhiệt đới ẩm của Việt Nam, giúp chống nóng hiệu quả vào mùa hè và thoát nước nhanh vào mùa mưa. Chính sự kết hợp hài hòa giữa thẩm mỹ, công năng và tính thích nghi cao đã khiến mẫu nhà này trở thành xu hướng xây dựng nổi bật trong những năm gần đây.

Maxhome xin giới thiệu đến quý khách hàng mẫu bản vẽ nhà 2 tầng mái Nhật được xây dựng trên lô đất góc đắc địa với hai mặt tiền thoáng đãng, mang lại lợi thế lớn về ánh sáng, gió tự nhiên và giá trị thẩm mỹ cao. Nhờ vị trí đặc biệt này, công trình không chỉ phô diễn trọn vẹn vẻ đẹp kiến trúc tinh tế mà còn trở thành tâm điểm nổi bật giữa khu phố. Ngôi nhà được khoác lên mình gam màu trắng trang nhã làm chủ đạo, kết hợp cùng những mảng tường phun đá nghệ thuật ở mặt tiền, tạo nên tổng thể hiện đại, sang trọng và cuốn hút từ mọi góc nhìn.

Ngôi nhà 2 tầng mái Nhật được thiết kế ấn tượng với những mảng tường giật cấp tinh tế, tạo nên hiệu ứng thị giác sinh động và khác biệt so với các công trình thông thường. Sự đua nhẹ của các khối kiến trúc không chỉ giúp tổng thể trở nên cuốn hút hơn mà còn góp phần tạo chiều sâu cho mặt tiền, mang đến vẻ đẹp vừa hiện đại vừa sang trọng. Phong cách mái Nhật với độ dốc nhẹ giúp thoát nước tốt, đồng thời tăng khả năng chống nóng, đảm bảo không gian sống luôn thoáng mát và bền bỉ theo thời gian.

Về màu sắc và phương án thiết kế, trong quá trình làm việc cùng Maxhome, quý gia chủ hoàn toàn có thể thoải mái trao đổi, lựa chọn và điều chỉnh theo sở thích cá nhân. Đội ngũ kiến trúc sư của chúng tôi luôn lắng nghe, tư vấn tận tâm và đưa ra những giải pháp tối ưu nhất, đảm bảo công trình vừa đáp ứng yếu tố thẩm mỹ, vừa phù hợp với phong thủy và nhu cầu sử dụng thực tế của từng gia đình.

Ngôi nhà 2 tầng mái Nhật được thiết kế với hệ bậc ngũ cấp chuẩn phong thủy, không chỉ mang ý nghĩa thu hút vượng khí, tài lộc cho gia chủ mà còn tạo cảm giác bề thế, sang trọng cho mặt tiền. Phần chân tường công trình được ốp đá chẻ tự nhiên, giúp tăng độ bền, dễ dàng vệ sinh và đặc biệt là chống thấm hiệu quả trong mùa mưa, góp phần bảo vệ kết cấu ngôi nhà luôn bền đẹp theo thời gian.

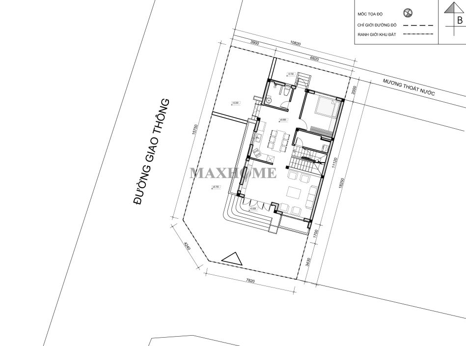
Mặt bằng định vị cho thấy ngôi nhà mái Nhật được xây dựng trên vị trí lô góc thoáng đãng, sở hữu lợi thế hai mặt tiền giúp đón gió và ánh sáng tự nhiên tối đa. Công trình có kích thước xây dựng 7,6 x 11,6m, với tổng diện tích sử dụng khoảng 176m². Thiết kế này không chỉ đảm bảo công năng tiện nghi mà còn mang đến một không gian sống rộng rãi, hài hòa giữa yếu tố thẩm mỹ và phong thủy.

Từ cửa chính bước vào là không gian phòng khách rộng 20,5m², được bố trí hợp lý với bộ sofa lớn tạo cảm giác sang trọng và thoải mái khi đón tiếp khách. Khu vực bếp và phòng ăn được thiết kế liền kề, thuận tiện cho sinh hoạt hàng ngày và đảm bảo sự kết nối giữa các thành viên trong gia đình. Cuối nhà là một phòng ngủ yên tĩnh, thích hợp cho người lớn tuổi hoặc làm phòng nghỉ cho khách. Ngoài ra, khu vực chân cầu thang được tận dụng thông minh để làm phòng kho và khu giặt sấy, giúp tối ưu không gian và tăng tính tiện nghi cho ngôi nhà. Nhà vệ sinh chung được bố trí khoa học, dễ dàng tiếp cận từ mọi khu vực, đảm bảo sự tiện lợi và riêng tư trong quá trình sử dụng.


Tầng 2 được bố trí phòng thờ trang nghiêm, hướng đặt bàn thờ được tính toán hợp phong thủy, thể hiện lòng hiếu kính của gia chủ đối với tổ tiên. Liền kề phòng thờ là phòng sinh hoạt chung, nơi các thành viên quây quần, trò chuyện và thư giãn sau những giờ làm việc căng thẳng. Không gian tầng 2 còn bao gồm hai phòng ngủ, trong đó có một phòng ngủ thường dành cho con cái hoặc khách đến chơi, và một phòng ngủ master rộng rãi được tích hợp nhà vệ sinh khép kín cùng logia riêng, mang đến sự riêng tư, tiện nghi và thoáng mát cho người sử dụng. Tổng thể tầng 2 được thiết kế khoa học, đảm bảo sự cân đối giữa tính thẩm mỹ và công năng sử dụng.













