Nhà 2 tầng mái Nhật siêu hiện đại và cá tính với hiệu ứng sơn tường bê tông | MH05460
| Chủ đầu tư: Anh Kiều Ngọc Anh | Số tầng: 2 |
| Địa chỉ: Thạch Hà, Hà Tĩnh | Diện tích xây dựng: 12,3 x 11,2m |
| Loại hình: Nhà mái Nhật hiện đại | Tổng diện tích: 192m2 |
Công năng:
|
|
Giới thiệu với bạn đọc mẫu nhà 2 tầng mái Nhật kết hợp hiệu ứng sơn tường bê tông độc đáo lần đầu xuất hiện tại Maxhome. Công trình tạo ấn tượng mạnh mẽ ngay từ cái nhìn đầu tiên nhờ sự kết hợp hài hòa giữa mái Nhật sang trọng và gam màu xám bê tông đầy mạnh mẽ. Ngôi nhà này cũng thuộc sở hữu của anh Ngọc Anh tại Thanh Hoá do Maxhome thiết kế và được cả gia đình anh ưng ý.
Khi nhắc đến nhà 2 tầng mái Nhật, nhiều người thường liên tưởng đến những công trình mang vẻ đẹp tinh tế, sang trọng nhưng vẫn gần gũi với lối sống hiện đại. Nhưng mẫu thiết kế nhà anh Ngọc Anh ở Thanh Hoá do Maxhome thực hiện dưới đây sẽ mở ra một sáng tạo mới cho phong cách kiến trúc thời thượng. Với điểm nhấn đặc biệt từ hiệu ứng sơn tường giả bê tông, ngôi nhà không chỉ nổi bật về tính thẩm mỹ mà còn thể hiện được cá tính mạnh mẽ và gu thẩm mỹ riêng biệt của gia chủ.

Trong thiết kế này, nhà 2 tầng mái Nhật được lựa chọn với hệ mái dốc nhẹ nhờ độ cao khiêm tốn 1,9m, các lớp mái ngói Maxhome cao cấp được xếp lớp tinh tế vừa đảm bảo khả năng thoát nước mưa tốt vừa mang lại sự cân đối cho tổng thể ngôi nhà. Tông màu mái xanh than trầm sang trọng tạo nên sự hài hòa cùng gam màu xám bê tông của tường giúp công trình toát lên thần thái vững chãi và bền bỉ. Đây cũng là điểm cộng lớn, bởi mái Nhật không chỉ bền đẹp theo thời gian mà còn phù hợp với điều kiện thời tiết khắc nghiệt ở miền Bắc.


Một trong những yếu tố giúp nhà 2 tầng mái Nhật của anh Ngọc Anh trở nên khác biệt chính là bề mặt tường được xử lý với hiệu ứng sơn giả bê tông. Thay vì những gam màu sơn truyền thống, bức tường xám bê tông mang lại cảm giác mạnh mẽ, chắc chắn và hiện đại. Khi ánh nắng chiếu vào, lớp sơn này tạo nên chiều sâu và hiệu ứng thị giác bắt mắt giúp công trình trở thành tâm điểm của mọi ánh nhìn. Đây chính là xu hướng được nhiều gia chủ trẻ yêu thích gần đây bởi nó thể hiện sự phóng khoáng, tinh thần hiện đại và không ngại khác biệt.


Một điểm nhấn đáng chú ý khác của ngôi nhà 2 tầng mái Nhật này chính là hệ thống cửa kính khung nhôm xingfa cao cấp được bố trí xung quanh nhà. Những ô cửa rộng không chỉ giúp lấy sáng tối đa, tiết kiệm năng lượng mà còn tạo cảm giác thông thoáng, mở rộng tầm nhìn ra không gian thiên nhiên xung quanh. Vào ban ngày, gia đình anh Ngọc Anh có thể tận hưởng ánh sáng tự nhiên tràn ngập; còn khi đêm xuống, ánh đèn từ trong nhà hắt ra tạo nên khung cảnh lung linh và hiện đại như một căn biệt thự nghỉ dưỡng cao cấp.


Thiết kế ban công kính cường lực trong mẫu nhà 2 tầng mái Nhật này chính là lựa chọn mang tính đột phá. Vì lớp kính cường lực vừa đảm bảo an toàn vừa giúp tôn lên sự sang trọng và hiện đại của ngôi nhà. Nhờ ban công rộng rãi trải dài full mặt tiền nên gia chủ có thể thoải mái bố trí cây xanh hoặc tiểu cảnh nhỏ giúp thư giãn tuyệt vời.

Từ phối cảnh ngoại thất đến từng chi tiết nhỏ, có thể khẳng định rằng mẫu nhà 2 tầng mái Nhật này đã thành công trong việc thể hiện phong cách sống hiện đại, cá tính và sang trọng. Hiệu ứng sơn bê tông độc đáo giúp mẫu nhà 2 tầng mái Nhật bền vững cùng hệ cửa kính sang trọng đã làm nên một công trình hoàn hảo, xứng đáng là mẫu tham khảo lý tưởng cho những ai đang tìm kiếm sự mới mẻ và khác biệt trong kiến trúc nhà ở.

Nhìn vào bản vẽ định vị có thể thấy công trình nhà 2 tầng mái Nhật của anh Ngọc Anh được bố trí vô cùng hợp lý trên khu đất có hình dáng khá đặc biệt. Đội ngũ kỹ thuật Maxhome đã khéo léo tận dụng mọi góc cạnh để vừa đảm bảo thẩm mỹ tổng thể vừa tối ưu công năng sử dụng. Ngôi nhà được đặt ở vị trí trung tâm, hơi lệch về phía trái so với khu đất nhằm tạo khoảng sân phía trước rộng rãi, thích hợp cho việc đỗ xe và tạo không gian mở thoáng mát.


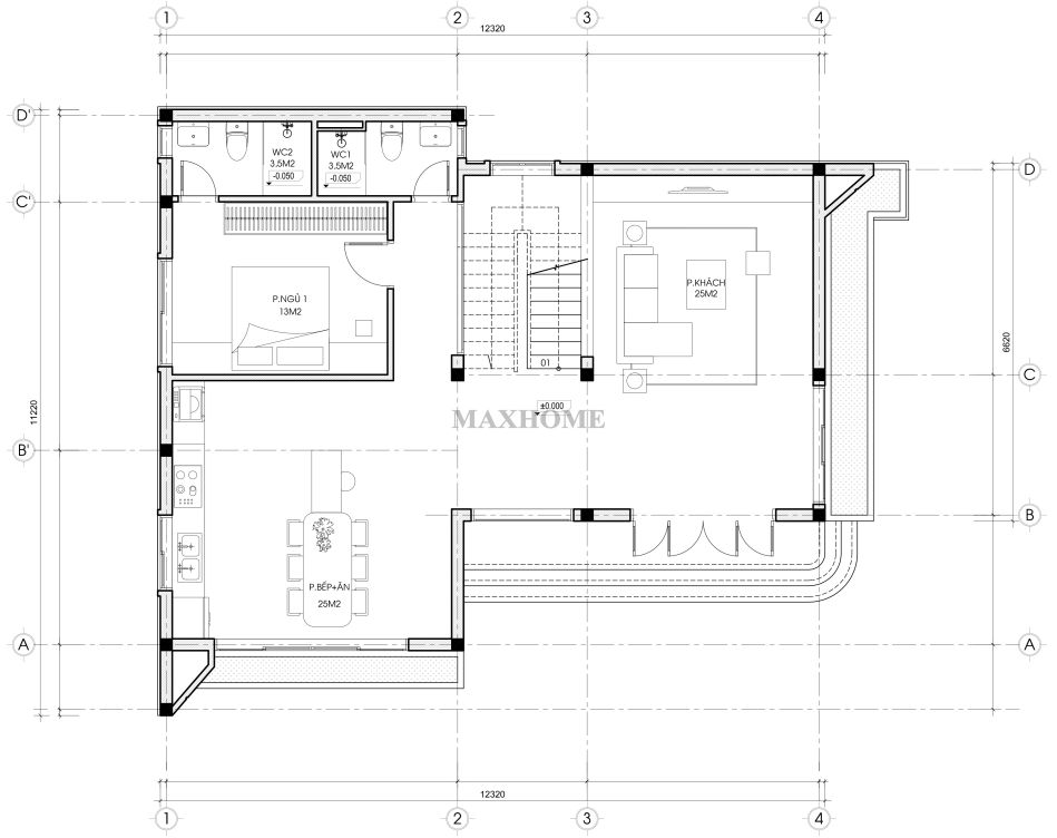
Bản vẽ công năng tầng 1 cho thấy bố cục ngôi nhà 2 tầng mái Nhật này đã được Maxhome sắp xếp cực kỳ hợp lý để đảm bảo sự tiện nghi trong sinh hoạt hằng ngày. Ngay từ cửa chính bước vào là phòng khách rộng 25m2 có ô cửa sổ lớn giúp không gian đón tiếp khác luôn tràn ngập ánh sáng tự nhiên và thoải mái. Phòng bếp và khu vực ăn 25m2 liền kề phía sau được thiết kế mở giúp các thành viên trong gia đình dễ dàng giao tiếp và kết nối khi sinh hoạt chung. Phòng ngủ 01 được đặt ở góc trái với diện tích 13m2 và sở hữu riêng nhà vệ sinh bên trong. Đặc biệt, tầng 1 còn có thêm 1 nhà vệ sinh chung bố trí gần đó giúp thuận tiện sử dụng mà vẫn đảm bảo sự riêng tư.

Tầng 2 của ngôi nhà 2 tầng mái Nhật tiếp tục duy trì bố cục cân đối và hợp lý. Khu vực này gồm 3 phòng ngủ, phòng thờ và 2 nhà vệ sinh để phục vụ tối đa nhu cầu của gia đình nhiều thế hệ. Phòng ngủ 02 và phòng ngủ 04 được bố trí cạnh nhau với diện tích lần lượt 18m2 và 16,7m2. Phòng ngủ 3 rộng 15,5m2 nằm ở phía sau phòng thờ có tầm nhìn hướng ra sân và đường chính. Phòng thờ 7m2 được đặt trang trọng ở hướng mặt tiền, một vị trí đẹp hợp phong thủy giúp thể hiện lòng thành kính của gia chủ.











