Nhà 2 tầng mái Nhật tân cổ điển 2 sảnh đẹp sang trọng| MH05610
| Chủ đầu tư: Anh Trần Đình Anh | Số tầng: 2 |
| Địa chỉ: Lê Lợi, Chí Minh, Hải Dương | Diện tích xây dựng: 11,3 x 15m |
| Loại hình: Nhà mái Nhật tân cổ điển | Tổng diện tích: 280m2 |
Công năng:
|
|
Ngôi nhà 2 tầng mái Nhật tân cổ điển đang trở thành xu hướng được nhiều gia chủ tại Hưng Yên yêu thích nhờ vẻ đẹp sang trọng, bề thế và công năng sử dụng tối ưu. Với thiết kế 2 sảnh cực kỳ ấn tượng, mẫu nhà này không chỉ tôn lên sự đẳng cấp của gia chủ mà còn giúp không gian sống luôn thông thoáng, đón gió và ánh sáng tự nhiên một cách hiệu quả. Đây chính là lựa chọn lý tưởng cho những ai đang tìm kiếm một không gian sống tiện nghi, bền vững và mang dấu ấn thẩm mỹ riêng biệt.
Sau quá trình làm việc kỹ lưỡng, hôm nay Maxhome đã chính thức bàn giao bộ hồ sơ thiết kế hoàn chỉnh cho gia đình anh Đình Anh tại Hưng Yên. Mẫu nhà 2 tầng mái Nhật phong cách tân cổ điển được triển khai lần này không chỉ toát lên vẻ sang trọng, bề thế mà còn thể hiện rõ gu thẩm mỹ tinh tế của gia chủ.

Nhà 2 tầng mái Nhật mang phong cách tân cổ điển được thể hiện rõ qua hệ phào chỉ đắp nổi tinh xảo, tạo nên những đường nét mềm mại và sang trọng cho tổng thể mặt tiền. Khu vực sảnh chính nổi bật với thiết kế vòm cong nhẹ, vừa tăng tính thẩm mỹ, vừa giúp công trình trở nên cân đối và thanh thoát hơn. So với những mẫu tân cổ điển truyền thống, công trình này được tiết chế bớt các chi tiết rườm rà, hướng đến vẻ đẹp tinh gọn, hiện đại nhưng vẫn giữ được sự bề thế đặc trưng của phong cách tân cổ điển.

Các công trình mang phong cách tân cổ điển thường ưu tiên gam màu trắng sứ làm chủ đạo nhằm tôn lên vẻ đẹp của những đường phào chỉ đắp nổi đầy tinh xảo. Khác với kiến trúc hiện đại, phong cách tân cổ điển hạn chế sử dụng quá nhiều vật liệu ốp lát trang trí, giúp tổng thể công trình giữ được nét thanh lịch và sang trọng đặc trưng.
Bên cạnh đó, hệ lan can ban công bằng sắt sơn mỹ thuật màu đen tạo nên điểm nhấn nổi bật, vừa mang tính thẩm mỹ cao vừa đảm bảo độ bền chắc theo thời gian. Sự kết hợp hài hòa giữa màu sắc và chi tiết trang trí đã góp phần làm tăng giá trị kiến trúc cho mẫu nhà 2 tầng mái Nhật tân cổ điển này.

Góc nhìn 3D này cho thấy khu vực sảnh phụ được thiết kế sang trọng không kém cạnh sảnh chính, tạo nên sự đồng bộ và hài hòa cho tổng thể mặt tiền. Hệ cửa tại sảnh chính và sảnh phụ đều sử dụng chất liệu thép vân gỗ cao cấp, mang đến vẻ đẹp ấm áp và sang trọng. Các hệ cửa còn lại dùng nhôm hệ Xingfa kết hợp kính cường lực – dòng vật liệu hiện đại được ưa chuộng nhờ độ bền cao, khả năng cách âm – cách nhiệt tốt và tính thẩm mỹ vượt trội.

Từ góc nhìn trên cao có thể thấy ngôi nhà 2 tầng mái Nhật tân cổ điển được thiết kế với hệ bậc tam cấp gồm 3 bậc, toàn bộ bậc đều được ốp đá granite màu đen sang trọng tạo nên phần đế nhà vững chãi và thẩm mỹ. Khu vực chân tường được đôn cao và ốp đá chẻ, vừa tăng độ bền khi sử dụng ngoài trời vừa mang lại vẻ đẹp gần gũi, tự nhiên cho tổng thể kiến trúc.

Từ kết cấu, kiến trúc đến ngoại thất và cả không gian sân vườn, mẫu nhà 2 tầng mái Nhật tân cổ điển đều được chăm chút tỉ mỉ trong từng chi tiết. Khu vực sân được lát bằng gạch ghi xám, đây là dòng gạch phổ biến nhờ khả năng chống trơn, độ bền cao và dễ vệ sinh. Tông màu ghi trung tính không chỉ mang lại sự sạch sẽ mà còn tạo cảm giác rộng thoáng, đồng thời giúp tổng thể công trình hài hòa hơn với cảnh quan xanh mát xung quanh. Nhờ đó, không gian sống trở nên sinh động, gần gũi và thể hiện rõ phong cách tinh tế của gia chủ.


Công trình nhà 2 tầng mái Nhật phong cách tân cổ điển được thiết kế theo hướng Đông, sở hữu kích thước 11,3 x 15m. Với quy mô rộng rãi cùng bố cục mặt bằng hợp lý, tổng diện tích sử dụng của ngôi nhà khoảng 280m², đáp ứng đầy đủ nhu cầu sinh hoạt và mang đến không gian sống tiện nghi cho gia đình.

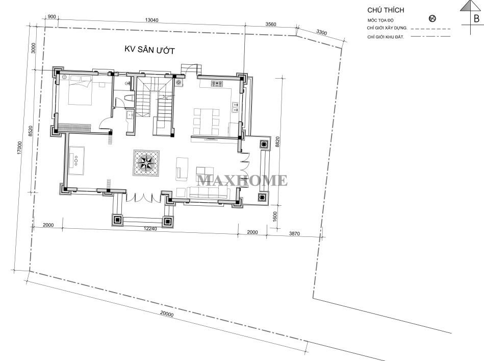
Từ sảnh chính bước vào là không gian phòng khách rộng rãi, được bố trí thêm khu vực đệm giúp tăng sự thoải mái và tạo điểm chuyển tiếp mềm mại vào bên trong. Kế đó là phòng thờ trang nghiêm, giữ trọn yếu tố phong thủy và sự tôn kính. Tiếp nối không gian chung là phòng bếp ăn thoáng đãng, có cửa hậu mở ra phía sau giúp lưu thông không khí tốt hơn. Tầng 1 còn được bố trí 1 phòng ngủ tiện nghi và 1 nhà vệ sinh chung đặt cạnh, thuận tiện cho quá trình sinh hoạt hằng ngày.

Tầng 2 được bố trí một phòng sinh hoạt chung rộng thoáng, kết nối trực tiếp với ban công và khu vực sân chơi, tạo không gian thư giãn lý tưởng cho cả gia đình. Bao quanh khu vực trung tâm là 3 phòng ngủ được sắp xếp khoa học, đáp ứng nhu cầu nghỉ ngơi của các thành viên. Cả tầng sử dụng chung một nhà vệ sinh, giúp tối ưu diện tích và thuận tiện trong sinh hoạt hằng ngày.












