Nhà 3 tầng mái Nhật sang, xịn, mịn nhất vùng Nam Lý, Ninh Bình | MH05985
| Chủ đầu tư: Chú Trần Sỹ Tuyên | Số tầng: 3 |
| Địa chỉ: Nam Lý, Ninh Bình | Diện tích xây dựng: 11,3 x 15,9m |
| Loại hình: Nhà mái Nhật hiện đại | Tổng diện tích: 345m2 |
Công năng:
(Công trình sử dụng thang máy) |
|
Ninh Bình vốn nổi tiếng với những nét đẹp văn hóa truyền thống và sự phát triển mạnh mẽ của kiến trúc nhà ở, công trình nhà 3 tầng mái Nhật của chú Tuyên nổi lên như một biểu tượng của sự sang trọng, tinh tế và đầy tân thời. Ngôi nhà đã chinh phục hoàn toàn thị giác bởi sự kết hợp hoàn mỹ giữa hệ mái Nhật thanh lịch và hình khối kiến trúc hiện đại, vững chãi.
Với tổng chiều cao công trình đạt mức 15m tính từ cốt sân, ngôi nhà của chú Tuyên thể hiện được vị thế của gia chủ và đồng thời minh chứng cho tư duy thẩm mỹ hiện đại, thoát ly khỏi những khuôn mẫu rườm rà để hướng tới sự tối giản nhưng cực kỳ sang, xịn, mịn. Mẫu nhà đẹp được thiết kế theo phong cách hiện đại với những mảng miếng hình khối rõ ràng, mạch lạc. Điểm nhấn ấn tượng nhất chính là hệ mái Nhật màu xanh than trầm ấm được thiết kế theo kiểu mái chồng mái đầy nghệ thuật.

Độ dốc vừa phải của mái Nhật không chỉ giúp thoát nước mưa nhanh chóng trong điều kiện thời tiết nóng ẩm tại Ninh Bình mà còn tạo nên một diện mạo thanh thoát, cân đối cho ngôi nhà. Các lớp mái đều được Maxhome tính toán tỉ mỉ về tỷ lệ, tạo ra những khoảng đua rộng vừa đủ để che chắn cho ban công và cửa sổ phía dưới, đồng thời mang lại chiều sâu không gian cho mặt đứng công trình.

Sự tinh tế của mẫu nhà này còn nằm ở bảng màu sắc được chọn lọc kỹ lưỡng, đội ngũ thiết kế phối hợp giữa tông màu trắng sứ chủ đạo và màu xanh ghi giúp tạo nên một hiệu ứng tương phản nhẹ nhàng nhưng vô cùng bền bỉ với thời gian. Tại các mảng tường trang trí giữa các tầng, kiến trúc sư đã khéo léo sử dụng các loại gạch ốp đá vân mây và đá Việt Nhật với tông màu xám sẫm theo phối cảnh để tạo điểm nhấn về vật liệu.

Bên cạnh đó, những đường chỉ âm tường kích thước 20×60mm chạy ngang dọc trên các mảng tường còn giúp giảm bớt sự thô cứng của bê tông và tạo ra những nhịp điệu kiến trúc đầy lôi cuốn khiến diện mạo ngôi nhà 3 tầng mái Nhật trở nên thanh lịch hơn bao giờ hết.
Bước tới sảnh chính tầng 1, bạn sẽ bị ấn tượng bởi hệ cửa chính thép vân gỗ được tạo hoa văn tinh xảo thể hiện sự hiếu khách và bề thế của chú Tuyên. Hệ cột vuông vững chãi tại sảnh chính với kích thước lớn, phần chân cột được ốp đá tối màu có tác dụng chịu lực và mang tới cảm giác kiên cố cho toàn bộ công trình.

Lên đến tầng 2 và tầng 3, ngôi nhà chú Tuyên mở ra những không gian ban công rộng thoáng với hệ lan can kính cường lực hiện đại. Việc sử dụng kính không chỉ giúp tối ưu hóa tầm nhìn ra khung cảnh thiên nhiên vùng Nam Lý mà còn cho phép ánh sáng tự nhiên tràn ngập vào các phòng chức năng. Các vị trí bồn hoa được bố trí khéo léo tại ban công và các bệ cửa sổ mang đến mảng xanh tươi mát giúp ngôi nhà luôn tràn đầy sức sống và gần gũi với thiên nhiên.

Hệ thống cửa sổ và cửa đi ban công sử dụng nhôm hệ cao cấp kết hợp kính hộp cách âm, cách nhiệt để đảm bảo không gian sống yên tĩnh và tiết kiệm năng lượng cho gia đình. Đặc biệt, mặt đứng trục của ngôi nhà cho thấy sự tỉ mỉ trong việc phân chia tỉ lệ thông tầng. Các ô cửa sổ được bố trí đối xứng và khoa học giúp đảm bảo sự thông thoáng tuyệt đối cho các phòng ngủ và phòng sinh hoạt chung.

Ở tầng thượng, khoảng sân chơi được thiết kế thêm hệ lam bê tông sơn trắng trang nhã, chú Tuyên cũng có thể treo những giỏ hoa lan hay bố trí một bộ bàn trà để thư giãn vào mỗi buổi chiều tà để ngắm nhìn sự thanh bình của làng quê Ninh Bình từ trên cao.
Thêm vào đó, các đèn tường trang trí được bố trí dọc theo các hệ cột và các mảng tường chính giúp ngôi nhà 3 tầng trở nên lung linh, huyền ảo như một biệt thự phố thực thụ khi màn đêm buông xuống. Từng chi tiết nhỏ như các phào chỉ đơn giản, các ô văng che cửa sổ cho đến cách phối gạch ốp chân tường đều được chăm chút kỹ lưỡng, tạo nên một chỉnh thể thống nhất và đẳng cấp.

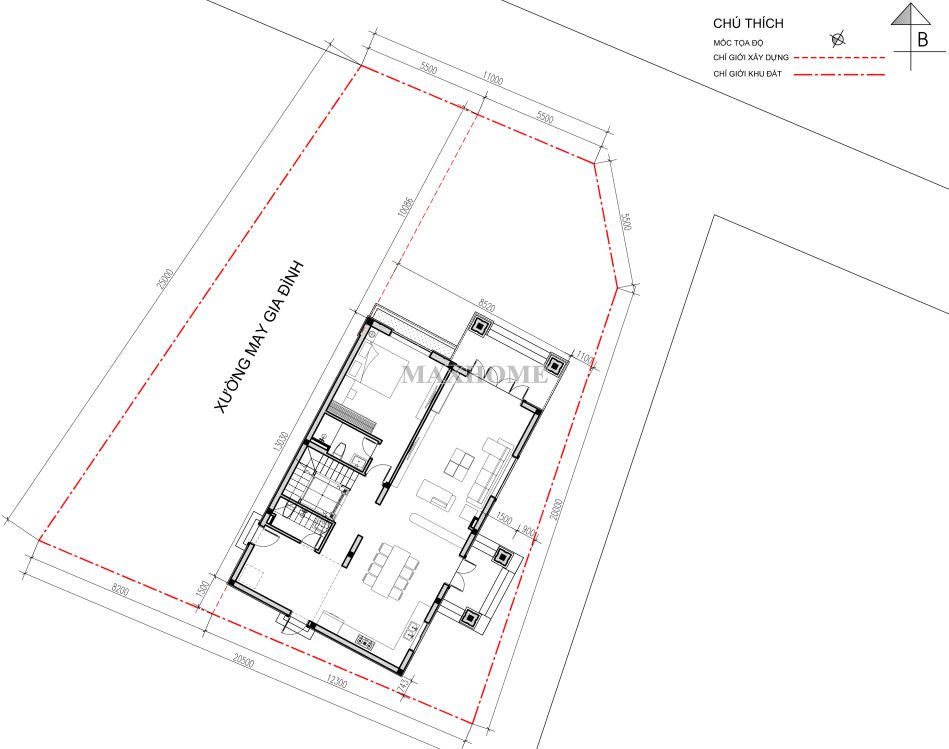
Ngôi nhà 3 tầng mái Nhật của chú Tuyên được đặt trọn vẹn trong một khuôn viên đất rộng lớn với tổng chiều dài khu đất lên tới 25m. Điểm đặc biệt trong quy hoạch chính là sự kết hợp khéo léo giữa không gian ở và khu vực xưởng may gia đình nằm ngay sát cạnh tạo nên một tổ hợp sống và làm việc tiện nghi. Công trình chính có kích thước mặt tiền rộng 11,3m được bao quanh bởi các khoảng lùi và chỉ giới xây dựng nghiêm ngặt, đảm bảo sự thông thoáng cho tất cả các mặt của ngôi nhà.

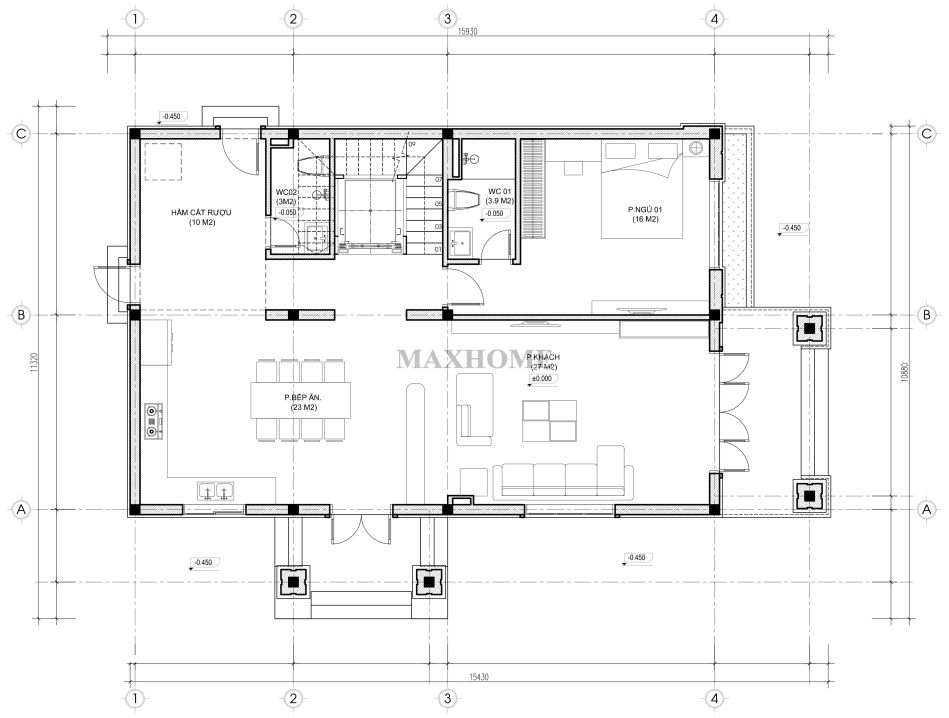
Ngay sau sảnh chính là phòng khách rộng 27m2 được thiết kế mở liên thông với khu vực phòng bếp và ăn có diện tích 23m2. Sự phân chia không gian thông minh qua vách ngăn tạo cảm giác thông thoáng nhưng vẫn giữ được sự ấm cúng. Đặc biệt, tầng 1 còn sở hữu hầm cất rượu rộng 10m2 nằm kín đáo phía sau cầu thang thang máy cùng với phòng ngủ 01 rộng 16m2 có nhà vệ sinh riêng biệt cực kỳ phù hợp cho người lớn tuổi trong gia đình. Hệ thống giao thông đứng bao gồm cả thang bộ và thang máy hiện đại được đặt tại trung tâm giúp việc di chuyển lên các tầng trên trở nên dễ dàng và đẳng cấp.

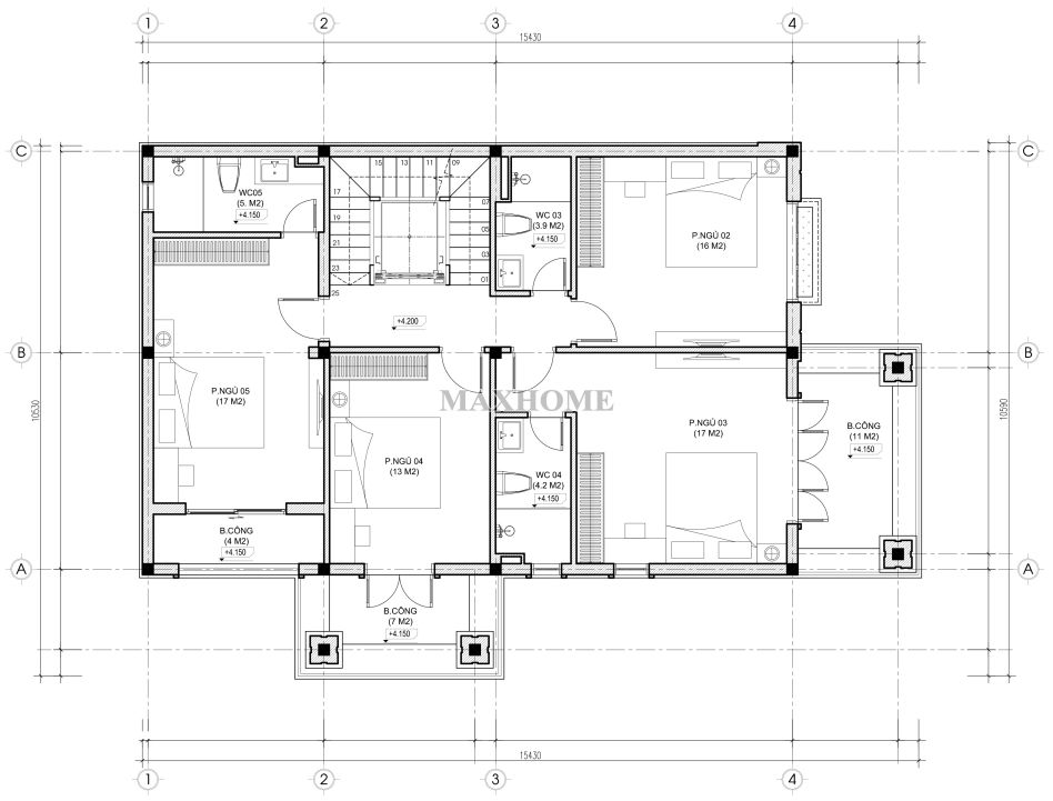
Di chuyển lên tầng 2, chúng ta bước vào khu vực nghỉ ngơi tĩnh lặng của gia đình với sự bố trí khoa học gồm 4 phòng ngủ. Các phòng ngủ có diện tích đa dạng từ 13m2 đến 17m2, mỗi phòng đều được tính toán để đón ánh sáng tự nhiên qua hệ thống cửa sổ và ban công riêng biệt. Trong đó, phòng ngủ 03 và 05 sở hữu những khoảng ban công rộng từ 4m2 đến 11m2. Việc bố trí 3 nhà vệ sinh nằm đan xen giữa các phòng ngủ không chỉ tối ưu hóa diện tích sử dụng mà còn đảm bảo sự tiện lợi tối đa trong sinh hoạt hàng ngày.

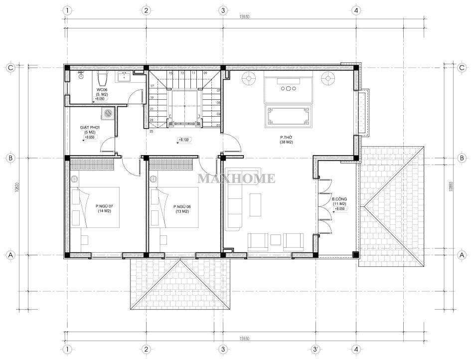
Tầng 3 của ngôi nhà mái Nhật là sự kết hợp hài hòa giữa yếu tố tâm linh và các tiện ích phụ trợ. Phòng thờ được ưu tiên đặt ở vị trí trang trọng nhất với diện tích lên tới 38m2 kết nối với phòng sinh hoạt chung và nhìn thẳng ra ban công lớn 11m2 phía trước, tạo nên sự uy nghiêm và thoáng đãng cho không gian thờ tự. Phía sau là khu vực nghỉ ngơi bổ sung với 2 phòng ngủ có diện tích lần lượt là 13m2 và 14m2. Để đảm bảo sự hoàn thiện về công năng, Maxhome đã khéo léo bố trí khu vực giặt phơi rộng 5m2 và nhà vệ sinh chung ngay cạnh sảnh thang.











