Nhà cấp 4 mái bằng nhỏ gọn dưới 100m2 cho bạn tham khảo | MH05833
| Chủ đầu tư: Chú Phạm Hoàng Ngọc | Số tầng: 1 |
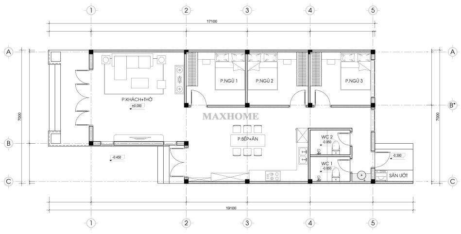
| Địa chỉ: An Hải, Phước Hải, TP Hồ Chí Minh | Diện tích xây dựng: 7 x 19,1m |
| Loại hình: Nhà mái bằng hiện đại | Tổng diện tích: 93m2 |
| Công năng:
Phòng khách + thờ, phòng bếp, 3 phòng ngủ, 2 wc, sân ướt |
|
Trong bài viết này, hãy cùng Maxhome tham khảo mẫu nhà cấp 4 mái bằng của nhà chú Ngọc ở TP Hồ Chí Minh, ngôi nhà gây ấn tượng ngay từ cái nhìn đầu tiên bởi hình khối vuông vức, đường nét rõ ràng và cách phối màu tinh tế, rất phù hợp với những gia đình yêu thích phong cách hiện đại, trẻ trung nhưng vẫn đề cao sự bền vững lâu dài.
Điểm nhấn nổi bật nhất của mẫu nhà cấp 4 mái bằng của chú Ngọc chính là hệ mái bằng được thiết kế đua dài ra tới 1,5m tạo cảm giác bề thế và che chắn rất tốt cho toàn bộ mặt tiền. Phần mái đua này không chỉ giúp hạn chế nắng mưa hắt trực tiếp vào cửa nhà mà còn góp phần bảo vệ tường, cửa kính giúp công trình luôn bền đẹp theo thời gian.

Đặc biệt, trần mái được lắp đặt dải đèn led trắng âm trần, khi trời tối ánh sáng hắt xuống nhẹ nhàng sẽ làm nổi bật các mảng tường và khối kiến trúc bên dưới. Chính chi tiết này giúp ngôi nhà cấp 4 mái bằng của chú Ngọc trở nên lung linh và sang trọng hơn vào buổi tối dù diện tích xây dựng không quá lớn.

Không chỉ đẹp về hình thức, ngôi nhà còn ghi điểm nhờ chiều cao thông thuỷ lên tới 4m mang lại cảm giác không gian rất thoáng đãng. Riêng khoảng cách từ mái che tới cửa nhà đạt 1,2m đã tạo nên một khoảng cao tầng lý tưởng giúp không khí lưu thông tốt hơn, hạn chế cảm giác bí bách thường gặp ở những mẫu nhà thấp tầng. Nhờ chiều cao hợp lý này mà ánh sáng tự nhiên dễ dàng tràn vào bên trong qua các ô cửa kính giúp ngôi nhà cấp 4 mái bằng luôn sáng sủa và dễ chịu.

Một ưu điểm lớn khác của ngoại thất công trình là mặt tiền được ốp đá màu trắng vân mây xám nhẹ tạo hiệu ứng thị giác rất sang và sạch sẽ. Gam màu đá sáng giúp ngôi nhà như bừng lên giữa không gian xung quanh đồng thời mang lại cảm giác mát mẻ và hiện đại. Phía trên, đội ngũ thiết kế Maxhome cũng khéo léo sử dụng thêm màu xanh dương nhẹ cho mảng tường để tạo sự tương phản vừa đủ mà không gây rối mắt. Cách phối màu này khiến tổng thể nhà cấp 4 mái bằng trở nên hài hòa, trẻ trung nhưng vẫn giữ được vẻ tinh tế, đúng với tinh thần thiết kế hiện đại mà mẫu nhà đẹp này đang hướng tới.

Toàn bộ hệ cửa của nhà chú Ngọc đều sử dụng cửa kính khung nhôm giúp mở rộng tầm nhìn và tăng khả năng lấy sáng tự nhiên. Việc dùng kính cho các ô cửa còn giúp kết nối không gian bên trong với sân vườn bên ngoài mang lại cảm giác gần gũi với thiên nhiên. Riêng cửa chính được nhấn nhá thêm chi tiết nan hoa đồng ở giữa để tạo điểm nhấn sang trọng cho mặt tiền và thể hiện sự chỉn chu trong từng chi tiết thiết kế. Đây là một lựa chọn rất đáng tham khảo cho những ai đang tìm kiếm mẫu nhà cấp 4 mái bằng đẹp, hiện đại nhưng không quá cầu kỳ.

Bên cạnh sảnh chính, sảnh phụ của ngôi nhà được xây lùi lại với lối đi rộng 2m dẫn thẳng vào khu vực phòng bếp. Cách bố trí này giúp giao thông trong nhà trở nên linh hoạt và thuận tiện hơn trong sinh hoạt hằng ngày. Ngoài ra, còn có thêm lối đi phụ phía sau nhà dẫn ra sân ướt góp phần tăng khả năng lưu thông không khí. Nhờ đó, không gian sống bên trong luôn thoáng mát và dễ chịu, đặc biệt là vào những ngày nắng nóng. Đây cũng là một giải pháp thông minh thường thấy trong các mẫu nhà cấp 4 mái bằng hiện đại do Maxhome thiết kế.

Cuối cùng, không thể không nhắc đến ưu điểm về chi phí và khả năng nâng cấp của mái bằng. Kiểu mái này giúp gia đình chú Ngọc tiết kiệm đáng kể chi phí xây dựng so với các dạng mái phức tạp khác, đồng thời vẫn đảm bảo tính thẩm mỹ và độ bền cao. Quan trọng hơn, trong tương lai nếu gia đình có nhu cầu cải tạo, nâng thêm tầng thì việc thi công trên nền nhà cấp 4 mái bằng cũng trở nên dễ dàng và thuận lợi hơn rất nhiều. Chính vì vậy, mẫu nhà của chú Ngọc tại TP Hồ Chí Minh thực sự là một gợi ý đáng cân nhắc cho những ai đang tìm kiếm một không gian sống hiện đại, gọn gàng và linh hoạt lâu dài.

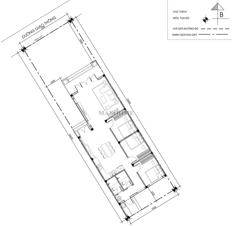
Kích thước khuôn đất nhà chú Ngọc là 7x25m, công trình được xây dựng gọn ở phía trong giúp tạo ra được khoảng sân nhỏ phía trước, tạo ra một khoảng đệm trước khi vào nhà rất tinh tế. Hướng nhà Tây Bắc được xây theo khuôn đất đã định sẵn trước đó vì đất ở TP Hồ Chí Minh rất đắt đỏ để có thể sở hữu được mảnh đất rộng.

Với diện tích sử dụng 93m2, công năng của ngôi nhà cấp 4 mái bằng có không gian phòng khách kết hợp khéo léo với khu vực thờ, đặt ở vị trí trang trọng ngay gần cửa chính vừa thuận tiện tiếp khách vừa đảm bảo yếu tố phong thuỷ và sự yên tĩnh cần thiết. Khu vực bếp được sắp xếp gần đó cũng có lối đi thuận tiện và kết nối tốt với sảnh phụ để giúp việc nấu nướng và sinh hoạt hằng ngày diễn ra thoải mái, không bị bí mùi hay nóng bức.

Không gian nghỉ ngơi của gia đình được bố trí gồm 3 phòng ngủ, phân chia hợp lý để đảm bảo sự riêng tư cho từng thành viên nhưng vẫn giữ được sự kết nối chung. Hai khu vệ sinh được bố trí riêng, tránh chồng chéo khi gia đình đông người sử dụng và đặt cuối nhà rất gọn gàng. Ngoài ra, sân ướt phía sau nhà là một điểm cộng lớn giúp phục vụ các hoạt động giặt giũ, sơ chế, góp phần tạo nên một tổng thể công năng hài hoà, tiện nghi và rất thực tế.











