Nhà cấp 4 mái Nhật 3 phòng ngủ hiện đại đang trở thành lựa chọn hàng đầu của nhiều gia đình Việt nhờ thiết kế tinh tế, công năng tối ưu và chi phí xây dựng hợp lý. Tại Lâm Đồng, Maxhome đã mang đến cho gia đình anh Cọn một mẫu nhà đẹp chuẩn xu hướng, kết hợp hài hòa giữa phong cách kiến trúc Nhật Bản và nét hiện đại tối giản. Đây chính là gợi ý hoàn hảo cho những ai đang tìm kiếm một không gian sống tiện nghi, sang trọng mà vẫn đảm bảo tính kinh tế.
Ngay từ cái nhìn đầu tiên, mẫu nhà cấp 4 mái Nhật 3 phòng ngủ ghi điểm với hình khối vững chãi, bố cục cân đối và đường nét sắc sảo, thể hiện tư duy thẩm mỹ chuẩn mực cùng tay nghề thiết kế chuyên nghiệp của đội ngũ Maxhome. Từng chi tiết nhỏ đều được tính toán kỹ lưỡng để mang lại một tổng thể hài hòa, tôn lên vẻ đẹp thanh lịch nhưng vẫn gần gũi, ấm cúng, đúng tinh thần của một ngôi nhà Việt đương đại.
Phần mặt tiền của ngôi nhà là sự kết hợp hoàn hảo giữa màu sắc, vật liệu và ánh sáng tự nhiên. Gam trắng chủ đạo làm nền cho những mảng tường ốp lam nhựa giả gỗ và chân tường ốp đá tối màu, tạo nên điểm nhấn tinh tế mà không quá phô trương.
Chất liệu đá ốp granite được sử dụng ở chân cột và bậc tam cấp giúp tăng độ bền, đồng thời làm nổi bật nét sang trọng và vững chắc cho ngôi nhà cấp 4 mái Nhật. Cửa chính gỗ kết hợp kính cường lực mang đến cảm giác ấm áp nhưng vẫn hiện đại, cho phép ánh sáng tràn ngập không gian nội thất, giúp ngôi nhà luôn sáng sủa và thoáng đãng.
Hệ cột vuông lớn ở sảnh chính được thiết kế cân xứng, tạo cảm giác bề thế và đẳng cấp. Việc phối hợp hài hòa giữa màu trắng tinh tế và sắc đen của chân cột mang lại hiệu ứng thị giác mạnh mẽ, thể hiện rõ sự chỉn chu trong tư duy thiết kế. Các chi tiết phào chỉ được tiết chế vừa đủ, tạo điểm nhấn tinh gọn mà không làm rối mắt, tôn lên vẻ đẹp hiện đại hợp xu hướng.
Bên cạnh đó, hệ cửa sổ kính khung nhôm cao cấp được bố trí đều quanh nhà, giúp tận dụng tối đa ánh sáng và gió trời, mang đến sự kết nối giữa không gian bên trong và khung cảnh tự nhiên bên ngoài. Các ô cửa lớn không chỉ mở rộng tầm nhìn mà còn góp phần tiết kiệm năng lượng, tạo cảm giác gần gũi, thân thiện với thiên nhiên.
Không thể không nhắc đến yếu tố cảnh quan xanh được Maxhome bố trí tinh tế xung quanh ngôi nhà. Từ bồn cây nhỏ trước hiên đến những khóm xanh dọc lối đi đều góp phần làm mềm mại hóa hình khối kiến trúc, mang đến cảm giác thư giãn và dễ chịu. Sự kết hợp giữa kiến trúc hiện đại và thiên nhiên là một trong những điểm khiến mẫu nhà cấp 4 mái Nhật 3 phòng ngủ này trở nên đặc biệt được yêu thích.
Tổng thể kiến trúc gây ấn tượng với hệ mái Nhật đăng đối, tạo nên vẻ đẹp tinh tế và trang nhã. Mái có độ dốc vừa phải, các tầng mái được xếp lớp nhẹ nhàng, không chỉ giúp công trình toát lên sự thanh thoát mà còn tối ưu khả năng thoát nước, che nắng, chống ẩm mốc hiệu quả, phù hợp với khí hậu đặc trưng của vùng cao nguyên Lâm Đồng. Màu mái xanh than được lựa chọn khéo léo, vừa sang trọng, vừa tạo chiều sâu thị giác, giúp công trình nổi bật giữa không gian xanh mướt xung quanh.
Từ góc nhìn trên cao xuống, công trình toát lên vẻ đẹp hài hòa giữa tỷ lệ, màu sắc và không gian. Từng khối kiến trúc được bố trí có chủ đích, đảm bảo tính thẩm mỹ lẫn công năng sử dụng.
Mái đua rộng tạo khoảng hiên che mưa nắng, vừa giúp công trình bền vững theo thời gian, vừa tăng cảm giác sang trọng, tinh tế. Toàn bộ sân được lát gạch chống trơn, màu xám nhạt đồng bộ với màu mái, mang đến tổng thể thống nhất và hiện đại.
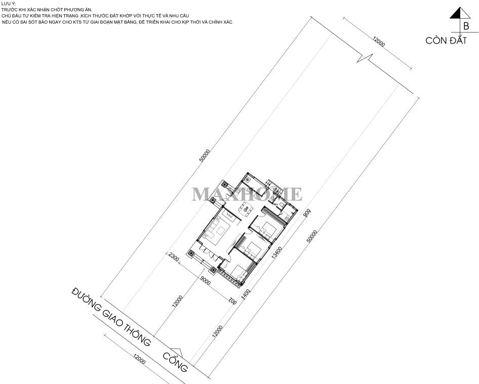
Nhìn vào mặt bằng định vị công trình, ta có thể thấy rõ khuôn viên tổng thể được quy hoạch gọn gàng và hợp lý. Ngôi nhà tọa lạc theo hướng Nam, sở hữu kích thước 11,3 x 15,7m, mang đến diện tích sử dụng khoảng 110m². Từng không gian được bố trí khoa học, đảm bảo sự tiện nghi, thông thoáng và thuận lợi trong sinh hoạt hàng ngày.
Mặt bằng định vị công trình
Từ sảnh chính bước vào là không gian phòng khách rộng thoáng, nội thất được thiết kế tinh tế, toát lên vẻ sang trọng và gu thẩm mỹ tinh nhã của gia chủ. Bàn thờ được bố trí khéo léo ngay tại phòng khách vừa đảm bảo sự tôn kính, trang nghiêm vừa thuận tiện cho việc thờ cúng của gia chủ.
Sau phòng khách là khu vực bếp ăn được thiết kế mở tiếp nối sảnh phụ, hướng ra sân vườn, mang đến cảm giác thoáng đãng và gần gũi với thiên nhiên. Ba phòng ngủ được sắp xếp gọn gàng liền kề nhau tạo sự ấm cúng. Cuối nhà bố trí 1 phòng tắm, 1 nhà vệ sinh chung và sân ướt đảm bảo tiện nghi và thuận tiện trong sinh hoạt hằng ngày.