Nhà cấp 4 mái Nhật đẹp, đơn giản, chi phí rẻ bất ngờ | MH05607
| Chủ đầu tư: Cô Trương Thị Điệp | Số tầng: 1 |
| Địa chỉ: Mường Động, Phú Thọ | Diện tích xây dựng: 11 x 16,7m |
| Loại hình: Nhà mái Nhật hiện đại | Tổng diện tích: 160m2 |
| Công năng:
Phòng khách, phòng thờ, phòng bếp ăn, 3 phòng ngủ, 2 wc |
|
Mẫu nhà cấp 4 mái Nhật là lựa chọn lý tưởng dành cho những gia đình mong muốn sở hữu một không gian sống đẹp – tiện nghi – chi phí rẻ. Với thiết kế đơn giản nhưng tinh tế, mái Nhật thanh thoát cùng bố cục công năng tối ưu, ngôi nhà mang đến cảm giác thoáng mát, hiện đại và phù hợp với mọi gia đình Việt. Nếu bạn đang tìm một mẫu nhà giá mềm nhưng vẫn đảm bảo thẩm mỹ, đây chắc chắn là phương án đáng để tham khảo.
Mẫu nhà cấp 4 mái Nhật được thiết kế theo phong cách hiện đại, sử dụng các hình khối vuông vắn, mạch lạc thể hiện rõ sự cá tính và tinh tế trong từng đường nét kiến trúc. Kiểu dáng đơn giản nhưng dứt khoát giúp tổng thể ngôi nhà trở nên vững chãi, hài hòa và phù hợp với xu hướng thẩm mỹ của nhiều gia đình hiện nay. Đây chính là điểm nhấn tạo nên vẻ đẹp thanh thoát, sang trọng cho công trình.

Mẫu nhà cấp 4 mái Nhật sử dụng tông trắng làm màu chủ đạo, tạo cảm giác sáng sủa và hiện đại cho tổng thể công trình. Điểm nhấn nổi bật nằm ở diện tường chính sơn màu nâu trầm, giúp cân bằng màu sắc và tăng chiều sâu thẩm mỹ. Bên cạnh đó, ngôi nhà còn được kết hợp thêm gạch Inax ốp trang trí và đá chẻ ốp chân tường, vừa mang lại vẻ đẹp tự nhiên, sang trọng, vừa giúp bảo vệ công trình khỏi tác động của thời tiết, đảm bảo độ bền lâu dài. Tổng thể mang đến một diện mạo hài hòa, ấn tượng và đầy tính ứng dụng.

Ngôi nhà sử dụng hệ bậc tam cấp cao ráo, giúp tôn nền và tạo cảm giác bề thế ngay từ lối vào. Mỗi bậc được ốp đá lên cao đến 750mm, kết hợp với mặt bậc lát đá granite bền chắc, mang lại sự sang trọng và dễ dàng vệ sinh. Cách xử lý chất liệu này không chỉ nâng cao tính thẩm mỹ mà còn góp phần tăng độ bền và khả năng chống bám bẩn, phù hợp với điều kiện thời tiết tại Việt Nam.

Phía sau của ngôi nhà cấp 4 mái Nhật được bố trí một khoảng sân phụ thoáng mát, thuận tiện cho các hoạt động sinh hoạt hằng ngày như giặt giũ, phơi đồ hoặc trồng thêm cây xanh. Khu vực này được che chắn bởi mái hiên làm từ khung sắt sơn tĩnh điện, giúp đảm bảo độ bền, chống gỉ sét và giữ được tính thẩm mỹ lâu dài. Thiết kế này vừa tiện ích, vừa góp phần tạo nên một không gian sinh hoạt gọn gàng, sạch sẽ và bền vững theo thời gian.

Từ góc nhìn trên cao, khu sân vườn của nhà cấp 4 mái Nhật hiện lên rộng rãi, thoáng đãng và được quy hoạch khoa học. Khu vực sân trước không chỉ tạo lối đi thuận tiện mà còn bố trí một khoảng riêng để đỗ xe ô tô an toàn. Ngoài ra, gia chủ còn thiết kế thêm nhiều bồn hoa, tiểu cảnh xanh mát, góp phần mang lại sự sinh động, tươi mới và tăng tính thẩm mỹ cho toàn bộ khuôn viên, đồng thời tạo cảm giác gần gũi với thiên nhiên cho không gian sống.

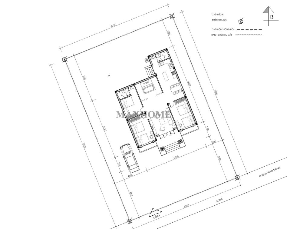
Công trình được triển khai trên khuôn viên đất rộng rãi, có kích thước 11 x 16,7m, mang lại không gian thoáng đãng và dễ dàng bố trí các hạng mục chức năng. Với tổng diện tích sử dụng khoảng 160m², ngôi nhà đảm bảo công năng sinh hoạt đầy đủ, tiện nghi cho gia đình, đồng thời vẫn giữ được khoảng sân vườn xanh mát, thông thoáng, tạo nên một tổng thể hài hòa, cân đối và thẩm mỹ.

Từ cửa chính bước vào là không gian phòng khách rộng rãi, được thiết kế thông thoáng, liền kề với phòng thờ trang nghiêm mang đậm nét truyền thống. Khu vực bếp được bố trí tách biệt nhằm hạn chế tối đa mùi thức ăn lan sang các không gian khác, đồng thời đảm bảo sự riêng tư khi sinh hoạt. Ngôi nhà có 1 nhà vệ sinh chung phục vụ tiện lợi cho các thành viên. Bên cạnh đó, công trình được thiết kế 3 phòng ngủ, trong đó phòng ngủ số 03 được ưu tiên trang bị nhà vệ sinh khép kín, mang lại sự tiện nghi và thoải mái hơn cho người sử dụng.












