Tóm tắt nội dung
Trong bối cảnh đô thị ngày càng đông đúc, nhà ống 2 tầng 5x17m đang trở thành xu hướng được nhiều gia chủ lựa chọn nhờ khả năng tận dụng hiệu quả quỹ đất phố. Trong bài viết này, Maxhome chia sẻ bộ sưu tập 25+ mẫu nhà ống 2 tầng 5x17m đẹp hiện đại, được đội ngũ kiến trúc sư của chúng tôi trực tiếp thiết kế. Mỗi phương án đều hướng đến giải quyết nỗi lo thường gặp của gia chủ như nhà hẹp, thiếu sáng, bí bách, đồng thời mang lại không gian sống tiện nghi, thẩm mỹ và phù hợp ngân sách.
Vì sao nhà ống 2 tầng 5x17m được nhiều gia chủ lựa chọn?
Phù hợp quỹ đất phố phổ biến hiện nay
Trong bối cảnh quỹ đất đô thị ngày càng hạn chế, kích thước 5x17m được xem là tỷ lệ “vàng” của nhà phố hiện nay. Mặt tiền 5m đủ để tạo hình kiến trúc đẹp, thông thoáng, trong khi chiều sâu 17m cho phép bố trí công năng hợp lý mà không gây cảm giác chật chội. Chính sự phù hợp này giúp nhà ống 2 tầng 5x17m dễ áp dụng ở nhiều khu dân cư, từ nội thành đến khu đô thị mới.

Chi phí xây dựng hợp lý, dễ kiểm soát ngân sách
So với các loại hình nhà ở quy mô lớn, nhà ống 2 tầng 5x17m có tổng diện tích xây dựng vừa phải, giúp gia chủ dễ dàng dự trù và kiểm soát chi phí. Thiết kế gọn gàng, kết cấu đơn giản nhưng vẫn đảm bảo thẩm mỹ và công năng giúp tối ưu vật liệu, hạn chế phát sinh trong quá trình thi công. Đây là lựa chọn phù hợp với nhiều gia đình mong muốn một không gian sống chất lượng mà vẫn cân đối được tài chính.

Đáp ứng tốt nhu cầu gia đình 3–5 người
Với cách bố trí khoa học, nhà ống 2 tầng 5x17m hoàn toàn đáp ứng tốt nhu cầu sinh hoạt của gia đình từ 3 đến 5 thành viên. Không gian thường được phân chia rõ ràng giữa khu vực sinh hoạt chung và không gian riêng tư, đảm bảo sự tiện nghi và thoải mái trong quá trình sử dụng. Dù diện tích không quá lớn, nhưng nếu thiết kế hợp lý, ngôi nhà vẫn mang lại cảm giác rộng rãi và dễ chịu.

Dễ linh hoạt phong cách thiết kế
Một ưu điểm lớn của nhà ống 2 tầng 5x17m là tính linh hoạt trong phong cách thiết kế. Gia chủ có thể lựa chọn phong cách hiện đại, tối giản, bổ sung gara ô tô, sân trước hoặc ban công xanh tùy theo nhu cầu sử dụng và gu thẩm mỹ. Nhờ đó, mỗi ngôi nhà đều mang dấu ấn riêng, vừa đáp ứng công năng thực tế, vừa thể hiện rõ cá tính và phong cách sống của gia chủ.

Đặc điểm kiến trúc nổi bật của nhà ống 2 tầng 5x17m hiện đại
Hình khối và mặt tiền
Với đặc trưng chiều ngang chỉ 5m, nhà ống 2 tầng 5x17m được thiết kế tập trung tối ưu mặt tiền thông qua cách tổ chức mảng khối rõ ràng, có điểm nhấn. Các chi tiết như ban công vươn ra, lam che nắng, khung bao mặt tiền hay mảng tường giật cấp được sử dụng linh hoạt nhằm tạo chiều sâu thị giác, giúp ngôi nhà trông rộng và thoáng hơn so với kích thước thực tế. Nhờ cách xử lý khéo léo này, mặt tiền không còn đơn điệu mà trở nên sinh động, hiện đại và cuốn hút hơn.
Bên cạnh đó, việc đưa các đường cong mềm mại hoặc giật cấp tinh tế vào thiết kế cũng là giải pháp hiệu quả để phá vỡ cảm giác cứng nhắc thường thấy ở nhà ống. Những chi tiết cong tại ban công, khung cửa hay mảng tường nhấn giúp tổng thể kiến trúc trở nên nhẹ nhàng, thanh thoát, đồng thời tạo hiệu ứng mở rộng không gian, mang lại cảm giác dễ chịu ngay từ cái nhìn đầu tiên.

Giải pháp lấy sáng và thông gió
Ánh sáng và thông gió luôn là bài toán quan trọng trong thiết kế nhà ống, đặc biệt với nhà ống 2 tầng 5x17m. Để khắc phục nhược điểm bí bách, kiến trúc sư thường ưu tiên sử dụng hệ cửa kính lớn, kết hợp ban công và các khoảng mở hợp lý nhằm đưa ánh sáng tự nhiên vào sâu bên trong ngôi nhà. Giải pháp này không chỉ giúp không gian luôn sáng sủa mà còn tiết kiệm năng lượng trong quá trình sử dụng.
Ngoài ra, giếng trời được xem là “trái tim” của ngôi nhà ống, đóng vai trò quan trọng trong việc lưu thông không khí và điều hòa vi khí hậu. Khi kết hợp giếng trời với ban công xanh và cửa sổ thông gió, không gian sống trở nên thông thoáng, mát mẻ hơn đáng kể. Nhờ đó, những hạn chế cố hữu của nhà ống như thiếu sáng, ngột ngạt được giải quyết triệt để, mang lại cảm giác thoải mái và dễ chịu cho gia đình trong sinh hoạt hằng ngày.

25+ Mẫu nhà ống 2 tầng 5x17m đẹp hiện đại, tối ưu không gian sống
Mẫu nhà ống 2 tầng 5x17m hiện đại
Nhà ống 2 tầng 5x17m phong cách hiện đại được ưa chuộng nhờ hình khối gọn gàng, đường nét dứt khoát và khả năng tối ưu không gian hiệu quả. Mặt tiền thường sử dụng các mảng khối giật cấp, ban công, lam che nắng và hệ cửa kính lớn nhằm tạo cảm giác rộng rãi, thông thoáng hơn cho chiều ngang 5m. Bên trong, công năng được bố trí linh hoạt, ưu tiên không gian mở để kết nối phòng khách – bếp, giúp sinh hoạt gia đình trở nên tiện nghi và thoải mái. Phong cách này đặc biệt phù hợp với gia chủ trẻ yêu thích lối sống năng động, hiện đại.



















Mẫu nhà ống 2 tầng 5x17m tân cổ điển
Mẫu nhà ống 2 tầng tân cổ điển 5x17m mang đến vẻ đẹp sang trọng, tinh tế nhưng vẫn giữ được sự cân đối, hài hòa. Kiến trúc thường nhấn mạnh vào các chi tiết phào chỉ nhẹ nhàng, cột trang trí và tỷ lệ mặt tiền cân xứng, giúp ngôi nhà toát lên nét bề thế dù diện tích không quá lớn. Gam màu trung tính như trắng, kem kết hợp vật liệu cao cấp tạo cảm giác trang nhã, đẳng cấp. Đây là lựa chọn lý tưởng cho những gia chủ yêu thích vẻ đẹp truyền thống pha chút hiện đại, bền vững theo thời gian.















Mẫu nhà ống 2 tầng 5x17m có ban công xanh
Nhà ống 2 tầng 5x17m có ban công xanh là giải pháp hoàn hảo để đưa thiên nhiên vào không gian sống đô thị. Ban công được thiết kế rộng rãi, bố trí cây xanh, tiểu cảnh hoặc giàn hoa, giúp làm mềm kiến trúc và giảm cảm giác khô cứng của nhà ống. Không gian xanh này không chỉ tăng tính thẩm mỹ cho mặt tiền mà còn góp phần điều hòa không khí, mang lại cảm giác thư thái, dễ chịu cho gia đình. Mẫu nhà này đặc biệt phù hợp với những gia chủ yêu thích lối sống xanh, đề cao sự cân bằng giữa kiến trúc và thiên nhiên.










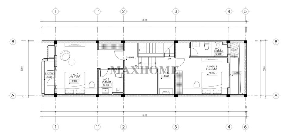
Gợi ý bố trí công năng tối ưu cho nhà ống 2 tầng 5x17m
Mặt bằng công năng nhà ống 2 tầng 5x17m đóng vai trò rất quan trọng trong việc đảm bảo sự tiện nghi và thoải mái cho quá trình sinh hoạt hằng ngày. Việc bố trí công năng khoa học, hợp lý sẽ giúp các không gian vừa đảm bảo riêng tư vừa thuận tiện trong di chuyển và sử dụng. Dưới đây, Maxhome chia sẻ một số gợi ý bố trí mặt bằng nhà phố 2 tầng ngủ tối ưu, dễ ứng dụng và phù hợp cho nhu cầu ở lâu dài.

Tầng 1: gồm sân trước tạo khoảng đệm thoáng đãng, vừa để xe vừa giúp giảm bụi và tiếng ồn từ bên ngoài. Không gian phòng khách được bố trí ngay sau cửa chính, liên kết mạch lạc với khu vực bếp ăn phía trong, tạo sự liền mạch và thuận tiện khi sinh hoạt. Cuối nhà là một phòng ngủ phù hợp cho người lớn tuổi hoặc khách, kết hợp nhà vệ sinh chung và sân ướt, đảm bảo sự riêng tư và tiện nghi trong sử dụng hằng ngày.

Tầng 2 là khu vực nghỉ ngơi và không gian tâm linh của gia đình, với phòng thờ được bố trí ở vị trí trang trọng, yên tĩnh, đảm bảo yếu tố phong thủy. Hai phòng ngủ được sắp xếp hợp lý, mỗi phòng đều có nhà vệ sinh riêng, mang lại sự thoải mái và riêng tư cho từng thành viên. Cách bố trí này giúp tối ưu diện tích sử dụng, đồng thời tạo nên không gian sống gọn gàng, tiện nghi và dễ chịu lâu dài.

Những lưu ý khi thiết kế nhà ống 2 tầng 5x17m
-
Tối ưu mặt tiền và hình khối kiến trúc: Với chiều ngang 5m, mặt tiền cần được xử lý khéo léo bằng mảng khối, ban công, lam che nắng hoặc giật cấp để tạo chiều sâu và cảm giác rộng rãi hơn. Tránh thiết kế quá phẳng hoặc quá nhiều chi tiết rườm rà khiến ngôi nhà trở nên nặng nề, bí bách.
-
Ưu tiên giải pháp lấy sáng và thông gió tự nhiên: Nhà ống 2 tầng 5x17m rất dễ gặp tình trạng thiếu sáng nếu không có giải pháp phù hợp. Việc bố trí cửa kính lớn, ban công, ô thông tầng hoặc giếng trời là yếu tố quan trọng giúp không gian luôn thông thoáng, giảm phụ thuộc vào ánh sáng nhân tạo và nâng cao chất lượng sống.
-
Bố trí công năng khoa học, phù hợp nhu cầu sử dụng: Cần xác định rõ số lượng thành viên, thói quen sinh hoạt để sắp xếp phòng khách, bếp, phòng ngủ, vệ sinh hợp lý ngay từ đầu. Công năng nên gọn gàng, mạch lạc, hạn chế không gian thừa hoặc lối đi rườm rà để tận dụng tối đa diện tích 5x17m.
-
Lựa chọn phong cách thiết kế phù hợp và bền vững: Phong cách hiện đại, tối giản hoặc có điểm nhấn xanh thường rất phù hợp với nhà ống. Nên ưu tiên thiết kế đơn giản, tinh tế, tránh chạy theo xu hướng quá ngắn hạn để ngôi nhà luôn đẹp và không lỗi thời theo thời gian.
-
Chú trọng vật liệu và chi phí đầu tư: Việc lựa chọn vật liệu hoàn thiện cần cân đối giữa thẩm mỹ, độ bền và ngân sách. Sử dụng vật liệu dễ thi công, dễ bảo trì sẽ giúp tiết kiệm chi phí lâu dài và hạn chế phát sinh trong quá trình xây dựng.
-
Kết hợp yếu tố phong thủy hợp lý: Hướng nhà, vị trí cầu thang, phòng thờ, bếp và phòng ngủ nên được tính toán hài hòa phong thủy để mang lại cảm giác an tâm, thuận lợi trong sinh hoạt. Khi phong thủy và công năng được kết hợp hợp lý, ngôi nhà sẽ trở thành không gian sống thoải mái và bền vững cho gia đình.

Maxhome báo giá thiết kế mới nhất 2026
Maxhome báo giá trọn gói minh bạch, cạnh tranh và hợp lý nhất thị trường – vừa giúp gia chủ tiết kiệm tối đa, vừa đảm bảo chất lượng công trình ở mức cao nhất. Đặc biệt, Maxhome mang đến mức giá độc quyền chỉ 100.000 VNĐ/m² cho thiết kế kiến trúc, một ưu đãi hiếm có mà ít đơn vị có thể đáp ứng. Bởi chúng tôi hiểu rằng, một ngôi nhà hoàn hảo không chỉ cần bản thiết kế tinh tế và thi công chuẩn mực, mà quan trọng hơn là phải phù hợp với ngân sách và mong muốn thực tế của khách hàng.
Hiện nay có rất nhiều đơn vị cung cấp dịch vụ thiết kế, thi công trọn gói với mức giá khác nhau. Tuy nhiên, tại Maxhome, khách hàng luôn yên tâm bởi:
-
Giá thiết kế hợp lý, minh bạch
-
Bản vẽ chuyên nghiệp, chi tiết
-
Dịch vụ hỗ trợ tận tâm từ A – Z
Chương trình khuyến mại Tết Maxhome (9/2025 – 3/2026):
-
Thiết kế kiến trúc: 100.000đ/m² (tối thiểu 18 triệu)
-
Thiết kế nội thất: 150.000đ/m² (tối thiểu 20 triệu)
-
Tư vấn phong thủy: 250.000đ/m² (tối thiểu 30 triệu)













