Nhà phố 2 tầng 1 tum màu trắng: đơn giản mà sang trọng | MH05955

Chủ đầu tư: Anh Lê Văn Hùng Số tầng: 2 tầng 1 tum
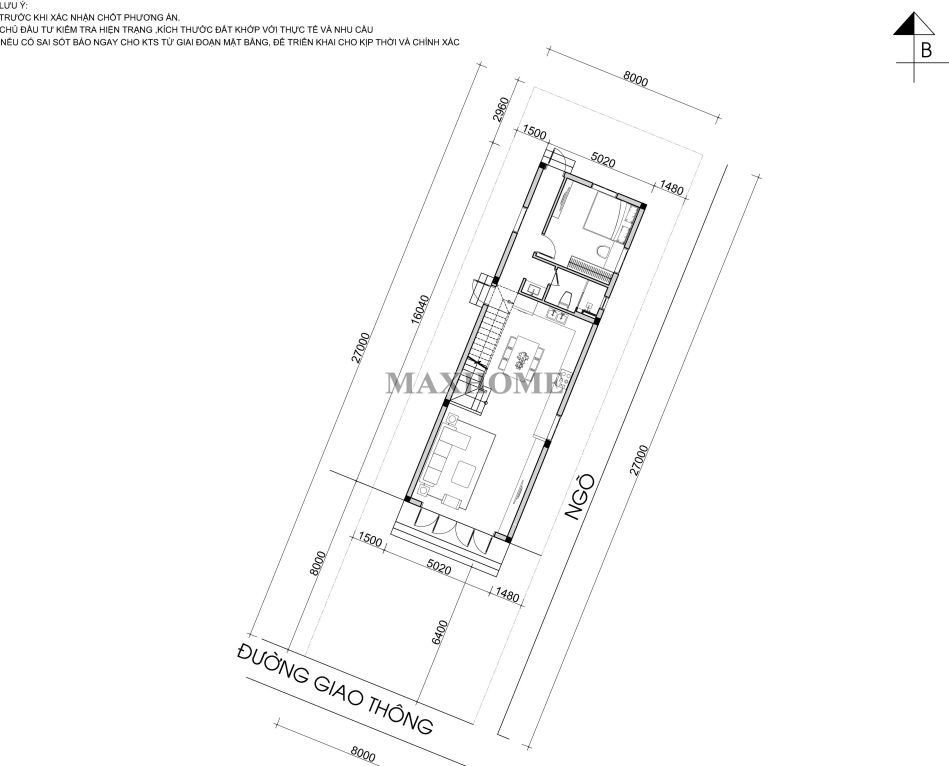
Địa chỉ: Nam Sơn, Hưng Yên Diện tích xây dựng: 5 x 18m
Loại hình: Nhà lô phố hiện đại Tổng diện tích: 200m2
Công năng:
  • Tầng 1: Phòng khách, phòng bếp ăn, 1 phòng ngủ, 1 wc
  • Tầng 2: 3 phòng ngủ, 1 wc
  • Tầng tum: Phòng thờ, sân chơi, sân phơi

Nhà phố 2 tầng 1 tum màu trắng đang trở thành xu hướng được nhiều gia đình lựa chọn nhờ vẻ đẹp hiện đại, tinh tế và khả năng thích ứng linh hoạt với không gian đô thị. Gam màu trắng chủ đạo không chỉ giúp công trình trông thanh thoát, sang trọng hơn mà còn tạo cảm giác rộng rãi, thoáng đãng, đặc biệt phù hợp với những lô đất có mặt tiền hạn chế.

Kiến trúc phong cách hiện đại từ lâu đã trở thành lựa chọn hàng đầu trong các mẫu nhà lô phố nhờ tính thẩm mỹ cao và khả năng ứng dụng linh hoạt. Ở mẫu nhà phố 2 tầng 1 tum này, các khối hình kiến trúc được sắp xếp theo bố cục hình học rõ ràng, lấy hình khối vuông làm chủ đạo nhằm tôn lên vẻ đẹp khỏe khoắn, vững chãi và đầy cá tính. Đặc biệt, kiến trúc sư đã khéo léo kết hợp những đường bo cong mềm mại tại các góc cạnh, giúp công trình tránh cảm giác thô cứng thường thấy, đồng thời tạo điểm nhấn tinh tế, mang đến sự hài hòa giữa nét mạnh mẽ và sự uyển chuyển trong tổng thể thiết kế.

Màu sắc công trình được phối hợp hài hòa, phù hợp với bản mệnh của gia chủ, trong đó gam màu trắng tinh khôi được lựa chọn làm tông màu chủ đạo. Tùy theo sở thích và yếu tố phong thủy của từng gia đình, màu sắc có thể được điều chỉnh linh hoạt thông qua cách phối hợp với các gam màu nhấn cũng như vật liệu hoàn thiện, nhằm tạo nên tổng thể kiến trúc vừa thẩm mỹ, vừa mang ý nghĩa may mắn và bền vững theo thời gian.

Kính cường lực là vật liệu được ứng dụng rộng rãi trong kiến trúc hiện đại nhờ khả năng chống thấm nước, hạn chế nấm mốc, chịu nhiệt tốt và đảm bảo an toàn khi sử dụng. Với mẫu nhà phố 2 tầng, hệ cửa kính cường lực khung vân giả gỗ được lựa chọn nhằm tăng tính thẩm mỹ, vừa giữ được nét ấm áp của vật liệu gỗ, vừa đảm bảo độ bền theo thời gian. Bên cạnh đó, lan can sắt sơn tĩnh điện màu đen tạo điểm nhấn mạnh mẽ, giúp làm nổi bật gam màu trắng chủ đạo của công trình, mang đến tổng thể kiến trúc hiện đại, tinh tế và hài hòa.

Ngoài ra, tầng tum được bố trí khu sân chơi rộng rãi phía trước, mang đến không gian thư giãn lý tưởng cho các hoạt động sinh hoạt ngoài trời của gia đình. Khu vực này được thiết kế mái kính polycarbonate kết hợp khung sắt sơn tĩnh điện, cho phép lấy ánh sáng tự nhiên hiệu quả đồng thời che chắn tốt khi trời mưa hoặc nắng gắt. Giải pháp thiết kế này không chỉ nâng cao tính tiện nghi mà còn góp phần hoàn thiện vẻ đẹp hiện đại, thoáng đãng cho tổng thể ngôi nhà.

Hệ mái bằng của mẫu nhà phố 2 tầng 1 tum được thiết kế với độ dốc thoát nước nhẹ, bề mặt phía trên được ốp gạch hoàn thiện, giúp hạn chế thấm nước và tăng độ bền cho công trình. So với các loại mái như mái Nhật hay mái Thái, mái bằng mang lại cảm giác gọn gàng, thanh thoát, phù hợp với phong cách kiến trúc hiện đại. Đồng thời, giải pháp mái này còn giúp tối ưu chi phí xây dựng, rút ngắn thời gian thi công và thuận tiện cho việc bảo trì, cải tạo hoặc tận dụng làm sân thượng trong tương lai.

Hệ thống cổng của nhà phố 2 tầng 1 tum được thiết kế bằng sắt sơn tĩnh điện, đảm bảo độ bền cao, khả năng chống gỉ sét và an toàn trong quá trình sử dụng. Phần tường bao xây dựng bằng bê tông chắc chắn, kết hợp khéo léo với chi tiết vòm cong mềm mại tại khu vực cổng, tạo điểm nhấn cách tân tinh tế. Sự kết hợp giữa vật liệu hiện đại và đường nét uyển chuyển không chỉ giúp tổng thể trở nên hài hòa, thẩm mỹ hơn mà còn góp phần tôn lên vẻ đẹp thanh lịch, đồng bộ với kiến trúc ngôi nhà.

Công trình nhà phố 2 tầng 1 tum được xây dựng trên khuôn viên đất nằm gần trục đường giao thông, thuận tiện cho việc di chuyển và sinh hoạt hằng ngày. Khu đất có kích thước 5 x 18m, phù hợp với đặc trưng nhà lô phố tại khu vực đô thị. Với cách bố trí công năng hợp lý qua các tầng, tổng diện tích sử dụng của ngôi nhà đạt khoảng 200m², đáp ứng đầy đủ nhu cầu sinh hoạt, nghỉ ngơi và thư giãn cho gia đình nhiều thế hệ.

Mặt bằng định vị công trình

Bước từ cửa chính vào là không gian phòng khách được bố trí thông thoáng, liên thông trực tiếp với khu vực bếp và phòng ăn nhằm tạo cảm giác rộng rãi và thuận tiện trong sinh hoạt hằng ngày. Khu bếp được thiết kế hệ tủ chữ L khoa học, tối ưu diện tích sử dụng và tăng tính tiện nghi. Phía cuối ngôi nhà là phòng ngủ số 01, đảm bảo sự riêng tư và yên tĩnh; bên cạnh là khu vực vệ sinh chung được sắp xếp hợp lý, đáp ứng đầy đủ nhu cầu sinh hoạt của gia đình.

Mặt bằng bố trí công năng tầng 1

Không gian tầng 2 được bố trí gồm 3 phòng ngủ, đáp ứng đầy đủ nhu cầu nghỉ ngơi cho các thành viên trong gia đình. Các phòng đều được thiết kế thông thoáng, tận dụng ánh sáng và gió tự nhiên. Khu vực nhà vệ sinh chung được sắp xếp ở vị trí trung tâm, thuận tiện cho việc sử dụng, đồng thời đảm bảo sự gọn gàng và tối ưu diện tích sinh hoạt chung của tầng.

Mặt bằng bố trí công năng tầng 2

Tầng tum được bố trí hợp lý với phòng thờ thiết kế trang nghiêm, yên tĩnh, đảm bảo yếu tố phong thủy và sự tôn nghiêm trong không gian thờ cúng. Bên cạnh đó là khu vực sân thượng rộng rãi, phù hợp để thư giãn, trồng cây xanh hoặc làm không gian sinh hoạt ngoài trời. Khu vực giặt và sân phơi được sắp xếp khoa học, tách biệt, giúp quá trình sinh hoạt hằng ngày thuận tiện và giữ cho tổng thể ngôi nhà luôn gọn gàng, thông thoáng.

Mặt bằng bố trí công năng tầng tum

Yêu cầu tư vấn

    *Vui lòng để lại thông tin, nhân viên tư vấn sẽ liên hệ lại quý khách trong thời gian sớm nhất