Nhà phố 2 tầng mặt tiền 5m – giải pháp hoàn hảo cho đất hẹp | MH05944
| Chủ đầu tư: Anh Long | Số tầng: 2 |
| Địa chỉ: Thanh Hoá | Diện tích xây dựng: 5 x 17m |
| Loại hình: Nhà lô phố hiện đại | Tổng diện tích: 170m2 |
Công năng:
|
|
Trong bối cảnh quỹ đất đô thị ngày càng hạn hẹp, nhà phố 2 tầng mặt tiền 5m trở thành lựa chọn lý tưởng của nhiều gia đình Việt. Với lợi thế chiều ngang vừa phải, mẫu nhà này đòi hỏi phương án thiết kế khoa học để vừa đảm bảo tính thẩm mỹ, vừa tối ưu công năng sử dụng. Nhờ sự kết hợp hài hòa giữa kiến trúc hiện đại, bố cục không gian thông minh và giải pháp lấy sáng hiệu quả, nhà phố 2 tầng mặt tiền 5m không chỉ đáp ứng nhu cầu sinh hoạt tiện nghi mà còn mang đến diện mạo khang trang, phù hợp với nhịp sống đô thị hiện đại.
Trong bối cảnh quỹ đất đô thị ngày càng hạn hẹp, nhà phố 2 tầng mặt tiền 5m trở thành lựa chọn lý tưởng của nhiều gia đình Việt. Với lợi thế chiều ngang vừa phải, mẫu nhà này đòi hỏi phương án thiết kế khoa học để vừa đảm bảo tính thẩm mỹ, vừa tối ưu công năng sử dụng. Nhờ sự kết hợp hài hòa giữa kiến trúc hiện đại, bố cục không gian thông minh và giải pháp lấy sáng hiệu quả, nhà phố 2 tầng mặt tiền 5m không chỉ đáp ứng nhu cầu sinh hoạt tiện nghi mà còn mang đến diện mạo khang trang, phù hợp với nhịp sống đô thị hiện đại.

Mẫu nhà phố 2 tầng gây ấn tượng với gam màu trắng chủ đạo, mang đến cảm giác tinh tế, hiện đại và giúp mặt tiền luôn sáng thoáng. Để tránh sự đơn điệu, kiến trúc sư khéo léo kết hợp màu ghi làm điểm nhấn, tạo chiều sâu và tăng tính thẩm mỹ cho tổng thể công trình. Khu vực tầng 2 được bố trí bồn hoa sử dụng vật liệu gỗ nhựa, vừa bền đẹp theo thời gian vừa góp phần mang mảng xanh vào không gian sống. Phía sau nhà được ốp gạch giả đá, không chỉ nâng cao giá trị thẩm mỹ mà còn giúp bảo vệ tường, hạn chế bám bẩn và tăng độ bền cho công trình trong điều kiện khí hậu Việt Nam.

Công trình được thiết kế theo ngôn ngữ hình khối vuông vức, rõ ràng và mạch lạc, phản ánh trọn vẹn tinh thần của kiến trúc hiện đại. Phong cách này mang đến diện mạo khỏe khoắn, trẻ trung, đồng thời giúp tổng thể công trình trở nên gọn gàng, cân đối và dễ dàng tổ chức không gian. Việc lược bỏ các chi tiết trang trí cầu kỳ không chỉ thuận lợi cho quá trình thi công, kiểm soát chi phí hiệu quả mà còn nâng cao tính ứng dụng, đáp ứng tốt nhu cầu sinh hoạt thực tế của các gia đình sinh sống tại đô thị.

Điểm nhấn độc đáo của mẫu nhà phố 2 tầng này nằm ở giải pháp tối ưu ánh sáng tự nhiên thông qua việc khai thác hiệu quả hệ thống cửa và các lối mở xung quanh công trình. Khu vực bên hông được bố trí một cửa sổ lớn, giúp đón sáng tối đa, tăng cường khả năng thông gió và tạo sự kết nối hài hòa giữa không gian bên trong với khu sân vườn bên ngoài. Nhờ đó, ngôi nhà luôn thông thoáng, hạn chế cảm giác bí bách thường gặp ở nhà phố, đồng thời mang đến môi trường sống gần gũi với thiên nhiên và tiết kiệm năng lượng chiếu sáng ban ngày.

Ngôi nhà phố được thiết kế lùi vào so với ranh đất khoảng 3m, tạo khoảng đệm phía trước để bố trí sân sinh hoạt tiện lợi. Khu vực sân được che mái nhằm tăng tính linh hoạt trong quá trình sử dụng, vừa có thể làm nơi để xe, vừa phù hợp cho các hoạt động ngoài trời của gia đình. Phần mái che có thể sử dụng vật liệu nhựa polycarbonate hoặc tấm bê tông nhẹ, giúp lấy sáng tốt, giảm hấp thụ nhiệt, đồng thời đảm bảo độ bền, tính thẩm mỹ và tối ưu chi phí thi công.

Cổng nhà phố 2 tầng được thiết kế theo phong cách hiện đại, sử dụng sắt hộp sơn tĩnh điện làm vật liệu chủ đạo, đảm bảo độ bền cao, khả năng chống gỉ sét và tính an toàn trong quá trình sử dụng. Phần tường bao xây bê tông chắc chắn, kết hợp hài hòa với thiết kế cổng, góp phần tôn lên vẻ đẹp khỏe khoắn, tối giản và đồng bộ với tổng thể kiến trúc. Giải pháp này không chỉ nâng cao giá trị thẩm mỹ mà còn đáp ứng tốt yêu cầu về an ninh, phù hợp với xu hướng nhà ở đô thị hiện nay.

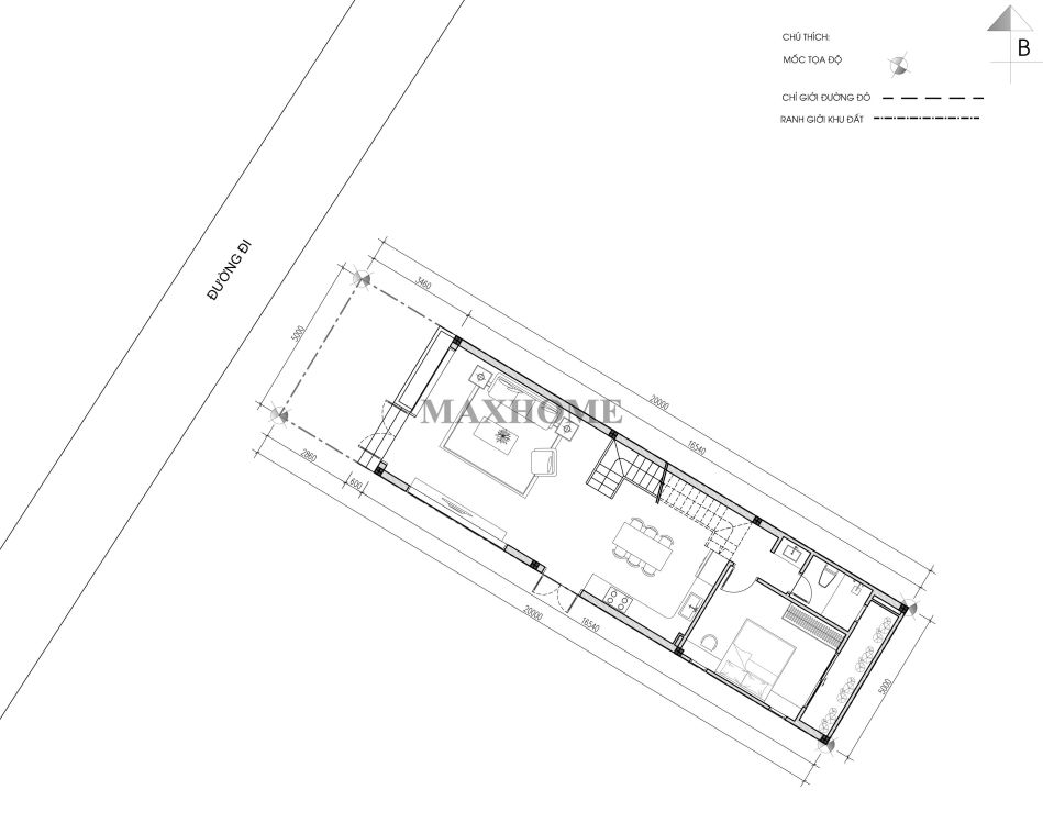
Mặt bằng định vị công trình cho thấy khu đất có vị trí thuận lợi, nằm gần mặt đường giao thông, giúp việc tiếp cận và sinh hoạt hằng ngày trở nên thuận tiện. Mẫu nhà phố 2 tầng được xây dựng với kích thước 5 × 17m, bố cục không gian được tính toán khoa học, đáp ứng tốt nhu cầu sử dụng của gia đình. Tổng diện tích sử dụng khoảng 170m², đủ để bố trí các không gian chức năng cơ bản như phòng khách, bếp – ăn, phòng ngủ và khu sinh hoạt chung, đảm bảo sự tiện nghi, thông thoáng và phù hợp với đặc điểm nhà phố đô thị.

Mặt bằng tầng 1 được bố trí theo hướng khoa học và tiện nghi. Từ sảnh chính bước vào là không gian phòng khách rộng rãi, đóng vai trò trung tâm tiếp đón và sinh hoạt chung của gia đình. Tiếp nối phía sau là khu vực bếp kết hợp phòng ăn, được thiết kế liên thông giúp không gian trở nên thông thoáng, đồng thời có lối cửa phụ mở ra bên hông nhà, hỗ trợ lấy sáng, thông gió và thuận tiện trong quá trình sử dụng. Cuối nhà bố trí một phòng ngủ riêng tư, phù hợp cho người lớn tuổi hoặc khách, bên cạnh là nhà vệ sinh chung được sắp xếp hợp lý, đảm bảo sự thuận tiện và kín đáo trong sinh hoạt hằng ngày.

Mặt bằng tầng 2 được bố trí hợp lý, đáp ứng đầy đủ nhu cầu sinh hoạt và không gian tâm linh của gia đình. Khu vực phòng thờ được thiết kế trang nghiêm, đặt tại vị trí yên tĩnh, đảm bảo sự tôn kính và hợp phong thủy. Tầng này bố trí hai phòng ngủ có diện tích vừa vặn, trong đó phòng ngủ số 03 được thiết kế nhà vệ sinh khép kín, mang lại sự riêng tư và tiện nghi cho người sử dụng. Ngoài ra, tầng 2 còn có khu vực sân phơi thông thoáng cùng một nhà vệ sinh chung, được sắp xếp khoa học, thuận tiện cho sinh hoạt hằng ngày của cả gia đình.












