Nhà phố 3 tầng 1 tum đẳng cấp và cực kỳ hiện đại, quá tiện nghi | MH05437
| Chủ đầu tư: Chị Nguyễn Thị Kim Anh | Số tầng: 3 tầng 1 tum |
| Địa chỉ: Krông Pắc, Đắk Lắk | Diện tích xây dựng: 6 x 23m |
| Loại hình: Nhà lô phố hiện đại | Tổng diện tích: 385m2 |
Công năng:
|
|
Có những ngôi nhà chỉ cần nhìn thoáng qua là biết ngay chủ nhân của nó yêu thích sự chỉn chu và muốn sở hữu một không gian sống thật chất lượng. Mẫu nhà phố 3 tầng 1 tum của chị Kim Anh ở Đắk Lắk là một công trình điển hình, ngôi nhà mang diện mạo mạnh mẽ, trẻ trung và toát lên cảm giác sang trọng ngay từ mặt tiền.
Tầng 1 căn nhà phố 3 tầng 1 tum tạo ấn tượng nhờ khu vực mái che thép hộp đặt ngay phía trước cổng rộng và hiện đại. Phần cửa cổng được xử lý bằng khung thép hộp sơn tĩnh điện, cửa chính ngôi nhà bên trong sử dụng cửa kính khung nhôm kính cường lực 4 cánh mở xoay rất thoáng và cao ráo giúp không gian bên trong nhận được nhiều ánh sáng.

Màu sơn chủ đạo mà Maxhome sử dụng cho căn nhà phố của chị Kim Anh là màu trắng kết hợp xám vừa bền màu vừa tôn được vẻ tinh tế của mặt tiền. Hai gam màu này khi đặt cạnh nhau làm mặt đứng thêm sạch sẽ, trẻ trung và rất phù hợp với công trình có chiều cao lớn. Nhờ cách phân chia mảng khối hợp lý mà khu vực tầng 1 dù đơn giản vẫn toát lên cảm giác chắc chắn và thu hút.
Ngôi nhà có kích thước xây dựng 6×20,3m khá lý tưởng cho khu vực đô thị, đội ngũ thiết kế Maxhome tạo hình khối vuông vức, xử lý gọn gàng mặt đứng giúp phân tầng rõ rệt để mang tới cảm giác ngôi nhà cao thoáng và có chiều sâu. Điểm nhấn mạnh nhất chính là bố cục mặt tiền theo hướng mở, sử dụng nhiều gạch ốp cũng như vật liệu kính cường lực cho cửa và ban công để đón sáng tự nhiên, làm cho công trình bừng lên vẻ hiện đại, sang trọng.

Hình khối căn nhà phố trở nên mềm mại hơn ở tầng 2 nhờ cửa chớp lam tôn giúp giảm nhiệt độ, tăng tính thẩm mỹ cho công trình, đảm bảo an toàn và tiết kiệm chi phí vận hành. Bên cạnh đó, Maxhome khéo léo bố trí bồn cây xanh giúp không gian tầng 2 trông gần gũi thiên nhiên đồng thời tạo điểm nhấn khác biệt so với những mẫu nhà phố thường thấy. Khi nhìn ở góc nghiêng, sự liên kết giữa từng tầng tạo nên cảm giác chuyển động nhịp nhàng, đặc biệt phù hợp với công trình mang phong cách hiện đại. Đây là một đặc điểm nổi bật giúp mẫu nhà phố 3 tầng 1 tum này đáp ứng tốt cả về thẩm mỹ và tính ứng dụng.

Khi kết hợp cùng hệ lam nhựa giả gỗ ốp trang trí trần ngoài trời và mảng xanh ở ban công, kiến trúc trở nên mềm mại hơn mà vẫn giữ được tinh thần của một mẫu nhà phố 3 tầng 1 tum chuẩn phong cách mới.
Từ trên cao nhìn xuống, tổng thể mẫu nhà phố là sự kết hợp hài hòa giữa kiến trúc, màu sắc, ánh sáng và vật liệu. Phần mái tum được thiết kế lùi vào so với mặt đứng kết hợp mái che hiện đại giúp tạo một khoảng sân rộng thoáng. Nhờ thiết kế mở mà ánh sáng và gió tự nhiên luôn được lưu thông tối ưu giúp căn nhà tiết kiệm năng lượng và tạo cảm giác sống thoáng mát hơn.

Từng tầng được liên kết bằng những đường thẳng mạnh mẽ nhưng không hề khô cứng, mảng xanh và vật liệu giả gỗ điểm xuyết giúp tổng thể trở nên thân thiện và ấm cúng. Maxhome đã tạo ra một thiết kế cân bằng giữa thẩm mỹ và công năng, phù hợp với nhu cầu của gia đình trẻ tại Đắk Lắk. Thiết kế do Maxhome thực hiện đã thể hiện đúng tinh thần của một gia đình muốn sở hữu không gian sống hiện đại, tiện nghi và có sự khác biệt so với các mẫu nhà phố quen thuộc.


Tầng 1 căn nhà phố 3 tầng 1 tum của chị Kim Anh được bố trí làm khu vực kinh doanh nên không gian khá thoáng, sạch sẽ và được sắp xếp sao cho việc đi lại và giao dịch luôn tiện nhất. Nhờ mặt tiền rộng 6m và lắp cửa kính nên khu vực này nhận được nhiều ánh sáng tự nhiên, thoải mái cho cả chủ nhà và khách ghé qua. Bên cạnh đó, 1 nhà vệ sinh được đặt gọn ở phía sau để hỗ trợ sinh hoạt mà vẫn giữ được sự riêng tư và ngăn nắp cho toàn bộ tầng.


Tầng 2 là nơi sinh hoạt chung của gia đình nên được bố trí rất ấm cúng. Phòng khách nằm ở vị trí đẹp, hướng ra mặt tiền sáng sủa và dễ kết nối với bếp nhờ bố cục mở để giúp các thành viên dễ trò chuyện và quây quần. Khu vực bếp rộng rãi, có thêm một góc trồng cây xanh mát mẻ, đem thiên nhiên vào nhà rất hợp cho những bữa ăn đầm ấm. Một phòng ngủ nhỏ được bố trí gọn gàng phía sau, trong phòng có cửa sổ lớn lấy thoáng từ khoảng thông tầng của ngôi nhà. Bên cạnh đó là khu vực vệ sinh chung để mọi hoạt động sinh hoạt trên tầng 2 này đều thuận tiện.


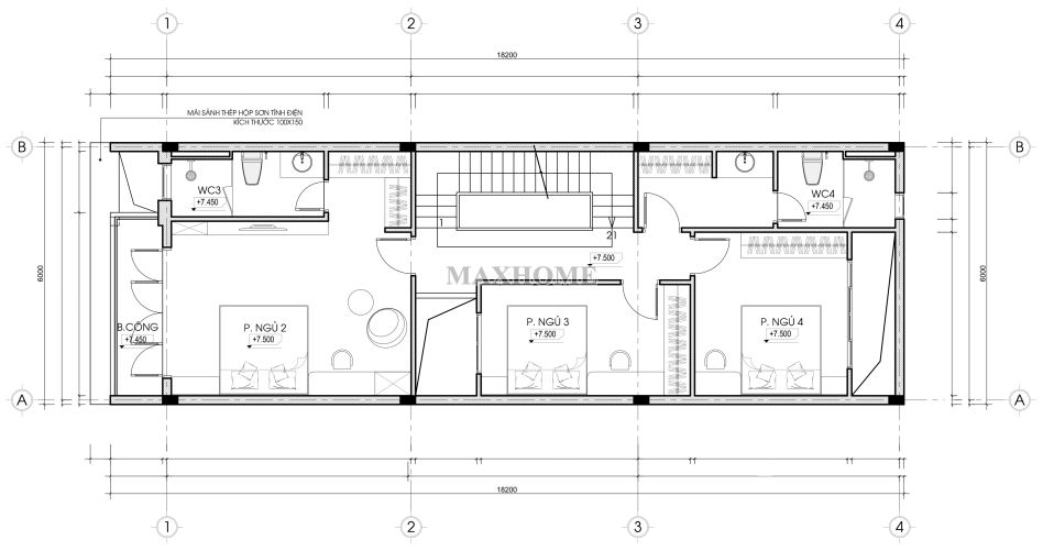
Tầng 3 là không gian nghỉ ngơi chính với 3 phòng ngủ được bố trí hợp lý để ai cũng có được sự riêng tư và thoải mái. Phòng ngủ 03 sẽ có diện tích nhỏ hơn do đặt đối diện cầu thang và phải để chừa khoảng hành lang đi lại, tuy nhiên căn phòng này vẫn có khoảng thông gió nhờ khoảng thông tầng nhỏ bên cạnh. Hai nhà vệ sinh được chia tách hợp lý để việc sử dụng vào giờ cao điểm buổi sáng hay buổi tối vẫn diễn ra thuận lợi mà không gây bất tiện cho các thành viên trong gia đình.


Phòng thờ được đặt ở vị trí trang trọng, yên tĩnh và luôn đón được ánh sáng dịu nhẹ nhờ được đặt trên tầng tum cao nhất của ngôi nhà. Không gian sân chơi rộng rãi phía trước lại càng thêm lý tưởng để gia đình trồng cây, đặt bộ bàn nhỏ uống trà hoặc dành chỗ cho trẻ nhỏ vui đùa, thư giãn mà ai trong nhà cũng yêu thích. Phía sau nhà là khu sân phơi tiện lợi và thoáng gió giúp quần áo nhanh khô.












