Nhà phố 3 tầng đẹp hiện đại đầy đủ công năng chi phí hợp túi tiền | MH05551
| Chủ đầu tư: Anh Phan Trúc Định | Số tầng: 3 |
| Địa chỉ: Thanh Ấm, Vân Đình, Hà Nội | Diện tích xây dựng: 3,8 x 15,7m |
| Loại hình: Nhà lô phố hiện đại | Tổng diện tích: 153m2 |
Công năng:
|
|
Bạn đang tìm kiếm một mẫu nhà phố 3 tầng hiện đại vừa đẹp, vừa tối ưu công năng mà chi phí lại hợp lý? Mẫu nhà đẹp này chắc chắn sẽ là lựa chọn hoàn hảo dành cho bạn. Với lối kiến trúc tinh gọn, đường nét khỏe khoắn và không gian được bố trí khoa học, ngôi nhà không chỉ mang đến vẻ ngoài sang trọng mà còn đảm bảo sự tiện nghi trong sinh hoạt hằng ngày. Đây chính là giải pháp lý tưởng cho những gia đình yêu thích phong cách sống hiện đại, muốn sở hữu một tổ ấm vừa thẩm mỹ vừa tiết kiệm chi phí xây dựng.
Mẫu nhà phố 3 tầng hiện đại này gây ấn tượng mạnh ngay từ cái nhìn đầu tiên nhờ sự kết hợp khéo léo giữa các mảng tường mặt tiền. Ở tầng 1, khu vực cửa chính được ốp đá Granite sang trọng, tạo cảm giác chắc chắn và bền vững. Sang đến tầng 2, các kiến trúc sư sử dụng gạch thẻ ốp tường, vừa tăng tính thẩm mỹ vừa mang lại chiều sâu cho công trình. Cách xử lý vật liệu xen kẽ giữa kính cường lực, sơn trắng và gam màu trung tính của gạch, đá đã giúp tổng thể mặt tiền trở nên hài hòa, nổi bật mà vẫn giữ được sự tinh tế đặc trưng của phong cách hiện đại.

Ngoại thất của mẫu nhà phố 3 tầng hiện đại thể hiện rõ dấu ấn sáng tạo của đội ngũ kiến trúc sư, với bố cục mạch lạc, mạnh mẽ và dứt khoát. Sự cân đối trong tỷ lệ giữa màu sơn chủ đạo và các vật liệu trang trí như đá granite, gạch thẻ hay kính cường lực đã tạo nên một tổng thể hài hòa, bắt mắt. Không chỉ mang tính thẩm mỹ cao, cách phối hợp này còn giúp công trình trở nên bền vững, phù hợp với xu hướng thiết kế hiện nay và giữ được vẻ đẹp lâu dài theo thời gian.

Lan can ban công của nhà phố 3 tầng được thiết kế bằng chất liệu sắt sơn tĩnh điện bền chắc, đảm bảo an toàn và độ bền trước tác động của thời tiết. Ngoài ra, gia chủ cũng có thể lựa chọn kính cường lực kết hợp khung nhôm để mang lại vẻ sang trọng, hiện đại và tạo cảm giác không gian mở thoáng đãng hơn. Việc đa dạng chất liệu không chỉ giúp nâng cao tính thẩm mỹ mà còn đem lại sự linh hoạt trong việc lựa chọn phong cách phù hợp với tổng thể kiến trúc ngôi nhà.

Phần mái được thiết kế mái bằng, bố trí hệ thống bồn nước, máy năng lượng mặt trời và một khoảng sân thượng có mái che bằng khung sắt hộp kết hợp kính cường lực, vừa đảm bảo độ bền vừa mang đến sự sang trọng, hiện đại. Đây là khoảng không gian lý tưởng để gia chủ tận dụng làm khu vực giặt phơi hoặc trồng cây xanh, tạo thêm mảng thiên nhiên cho ngôi nhà.
Từ góc nhìn này có thể thấy ngôi nhà được đặt sát mặt đường, thuận tiện cho việc giao thông và sinh hoạt. Với cách bố trí mặt bằng thông minh, công trình không chỉ đẹp về thẩm mỹ mà còn tối ưu về công năng sử dụng.

Phần cổng của ngôi nhà 3 tầng hiện đại được thiết kế tuân thủ đúng quy định xây dựng, với khoảng lùi hợp lý so với nhà chính, vừa đảm bảo an toàn vừa tạo khoảng đệm thoáng đãng cho mặt tiền. Cánh cổng được gia công bằng công nghệ cắt CNC hiện đại, khung bo tròn mềm mại kết hợp cùng các họa tiết hoa lá tinh xảo. Sự kết hợp này không chỉ mang lại nét đẹp thẩm mỹ ấn tượng mà còn thể hiện gu thẩm mỹ tinh tế của gia chủ, góp phần nâng cao giá trị tổng thể kiến trúc công trình.

Công trình nhà phố 3 tầng được xây dựng theo hướng Đông, đón nguồn ánh sáng tự nhiên buổi sáng dịu nhẹ, mang lại sự thông thoáng và hợp phong thủy. Ngôi nhà có kích thước 3,8 x 15,7m, với tổng diện tích sử dụng khoảng 153m², được bố trí công năng khoa học, tối ưu cho sinh hoạt gia đình. Với diện tích này, công trình không chỉ đáp ứng nhu cầu về không gian sống tiện nghi mà còn đảm bảo tính thẩm mỹ hiện đại, phù hợp cho các gia đình trẻ ở khu vực thành thị.

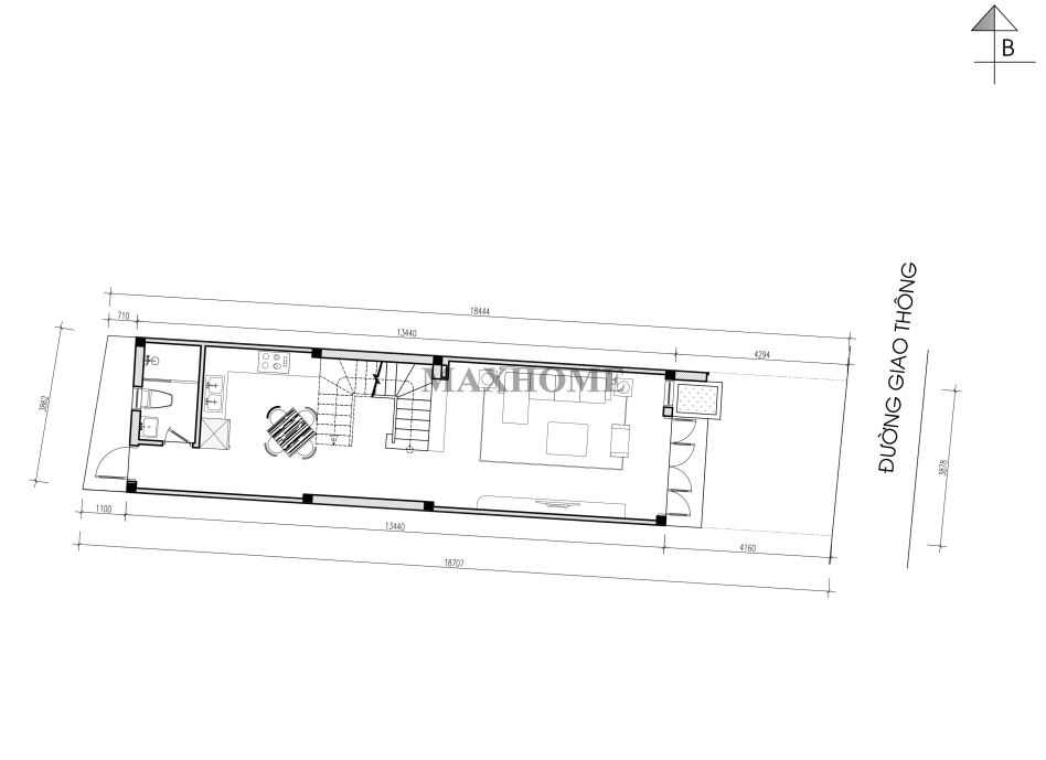
Từ cửa chính bước vào là khu vực phòng khách rộng 20,5m², được thiết kế thoáng đãng, thích hợp làm không gian sinh hoạt và tiếp khách sang trọng. Tiếp nối sau khu vực cầu thang là phòng bếp kết hợp phòng ăn, bố trí gọn gàng ở cuối nhà, tạo sự riêng tư và thuận tiện cho việc nấu nướng. Bên cạnh đó, tầng này còn có một nhà vệ sinh chung đặt cạnh khu vực bếp để phục vụ nhu cầu sinh hoạt hằng ngày. Đặc biệt, phía cuối nhà được bố trí cửa hậu dẫn ra sân ướt, giúp thông gió, lấy sáng tự nhiên và hỗ trợ tối ưu cho việc giặt giũ, nấu nướng, cũng như giữ cho không gian bên trong luôn sạch sẽ, khô ráo.

Tầng 2 được bố trí 2 phòng ngủ với diện tích hợp lý, đảm bảo sự riêng tư và tiện nghi cho các thành viên trong gia đình, sử dụng chung một nhà vệ sinh, được đặt ở vị trí trung tâm, thuận tiện cho việc di chuyển và sử dụng. Cách sắp xếp khoa học này không chỉ giúp tối ưu diện tích mà còn mang đến sự gọn gàng, thoáng đãng cho không gian sinh hoạt chung.

Tầng 3 được bố trí phòng thờ trang nghiêm, đặt ở vị trí hướng ra sân thượng, vừa tạo không gian thoáng đãng, vừa đảm bảo yếu tố phong thủy, mang lại sự bình an và may mắn cho gia đình. Ngoài ra, tầng này còn có một phòng ngủ phụ, thích hợp làm phòng nghỉ ngơi cho khách hoặc không gian riêng tư cho thành viên trong gia đình khi cần. Khu vực cuối nhà được sắp xếp hợp lý làm nơi giặt phơi, tận dụng tối đa ánh sáng và gió tự nhiên, giúp quần áo nhanh khô và giữ cho không gian trong nhà luôn gọn gàng, sạch sẽ.












