Nhà phố 3 tầng mặt tiền 6m lạ mắt đầy đủ công năng khiến chủ nhà hài lòng | MH05729
| Chủ đầu tư: Anh Hoàng Văn Minh | Số tầng: 3 |
| Địa chỉ: Thôn 18, Cư Yang, Đắk Lắk | Diện tích xây dựng: 6 x 12,1m |
| Loại hình: Nhà lô phố hiện đại | Tổng diện tích: 188m2 |
Công năng:
|
|
Nhà phố 3 tầng mặt tiền 6m đang trở thành lựa chọn hàng đầu của các gia đình trẻ muốn sở hữu không gian sống hiện đại, tiện nghi và sang trọng ngay giữa trung tâm thành phố. Với thiết kế thông minh, từng góc trong nhà đều được tận dụng tối đa để đảm bảo ánh sáng tự nhiên và luồng gió thoáng mát, mang đến cảm giác rộng rãi hơn so với diện tích thực. Không chỉ đẹp về kiến trúc, ngôi nhà còn chú trọng đến công năng sử dụng, tạo nên một không gian sống lý tưởng cho cả gia đình.
Sau quá trình tìm hiểu kỹ lưỡng và trao đổi chi tiết với kiến trúc sư, anh Đức – chủ đầu tư tại Đắk Lắk đã quyết định lựa chọn mẫu nhà phố 3 tầng hiện đại. Ngôi nhà được thiết kế với hình khối vuông vắn, đường nét tối giản nhưng tinh tế, thể hiện rõ tinh thần trẻ trung, năng động và bắt kịp xu hướng kiến trúc đương đại. Phong cách này không chỉ phù hợp với gu thẩm mỹ hiện nay mà còn mang đến không gian sống tiện nghi, sang trọng và đầy tính ứng dụng cho gia đình.

Ngôi nhà phố 3 tầng nổi bật với gam màu trắng chủ đạo, mang đến vẻ đẹp tinh khôi, sang trọng và hiện đại. Điểm nhấn của công trình nằm ở việc kết hợp khéo léo các vật liệu trang trí đang là xu hướng hot trend hiện nay. Tầng 1 được ốp gạch granite màu xám vân mây, giúp phần chân tường trở nên vững chắc và bền màu theo thời gian. Trong khi đó, tầng 2 được nhấn bằng gạch thẻ tại khu vực trồng cây, tạo mảng xanh tự nhiên và hài hòa với tổng thể. Ngoài ra, trần được ốp gỗ nhựa cao cấp, không chỉ tăng tính thẩm mỹ mà còn giúp công trình bền đẹp, chống ẩm mốc và chịu thời tiết tốt hơn.

Thông thường, những ngôi nhà phố hiện đại được thiết kế với xu hướng tối giản và đề cao tính thẩm mỹ, vì vậy vật liệu kính cường lực được sử dụng phổ biến cho hệ thống cửa và lan can. Loại kính này không chỉ giúp mở rộng tầm nhìn, tận dụng tối đa ánh sáng tự nhiên, mà còn mang lại cảm giác thông thoáng và sang trọng cho không gian sống. Khung cửa nhôm hệ Xingfa màu đen được lựa chọn để tạo điểm nhấn mạnh mẽ, đồng thời đảm bảo độ bền cao, khả năng chịu lực và chống oxy hóa tốt — một lựa chọn hoàn hảo cho phong cách nhà phố hiện đại ngày nay.

Quan sát từ góc nhìn này có thể thấy, phần mái che của ngôi nhà được thi công bằng chất liệu gỗ nhựa kết hợp với sắt hộp sơn tĩnh điện. Sự kết hợp này không chỉ tạo nên vẻ đẹp hiện đại và tinh tế mà còn đảm bảo độ bền bỉ, khả năng chống thấm, chống gỉ sét và chịu được tác động của thời tiết khắc nghiệt. Nhờ đó, khu vực sân chơi trên tầng 3 được bảo vệ hiệu quả, mang đến không gian sinh hoạt ngoài trời thoáng mát, tiện nghi và an toàn cho gia đình.

Ngôi nhà phố 3 tầng do đặc thù là nhà ống, nên hai mặt bên không thể bố trí cửa sổ theo đúng quy định của nhà nước nhằm đảm bảo an toàn và ranh giới giữa các công trình liền kề. Tuy nhiên, kiến trúc sư đã khéo léo thiết kế hệ thống cửa kính lớn ở mặt tiền, kết hợp cùng ban công thoáng và giếng trời bên trong, giúp tối ưu nguồn sáng tự nhiên và lưu thông không khí. Nhờ vậy, dù bị giới hạn không gian hai bên, ngôi nhà vẫn luôn thoáng đãng, mát mẻ và tràn đầy năng lượng tự nhiên.

Từ góc nhìn trên cao, có thể dễ dàng nhận thấy khoảng mái bằng được thi công kiên cố, chắc chắn, đảm bảo độ bền vững và an toàn cho toàn bộ công trình. Bề mặt mái được xử lý chống thấm kỹ lưỡng bằng các lớp vật liệu chuyên dụng, giúp ngăn ngừa tình trạng thấm dột và tăng tuổi thọ công trình. Ngoài ra, hệ thống ống thoát nước được bố trí hợp lý, giúp thoát nước nhanh chóng trong mùa mưa, giữ cho mái nhà luôn khô ráo, sạch sẽ và bền đẹp theo thời gian.

Công trình được xây dựng theo hướng Tây, sở hữu kích thước 6 x 12,1m, mang đến một tổng diện tích sử dụng khoảng 188m². Với lợi thế về chiều cao và mặt tiền rộng 6m, ngôi nhà được thiết kế tối ưu công năng, tận dụng tối đa ánh sáng tự nhiên và gió trời. Bên cạnh đó, hướng Tây tuy có phần nắng gắt vào buổi chiều, nhưng kiến trúc sư đã khéo léo xử lý bằng hệ lam che nắng, ban công cây xanh và vật liệu cách nhiệt, giúp ngôi nhà luôn mát mẻ, thoải mái quanh năm.

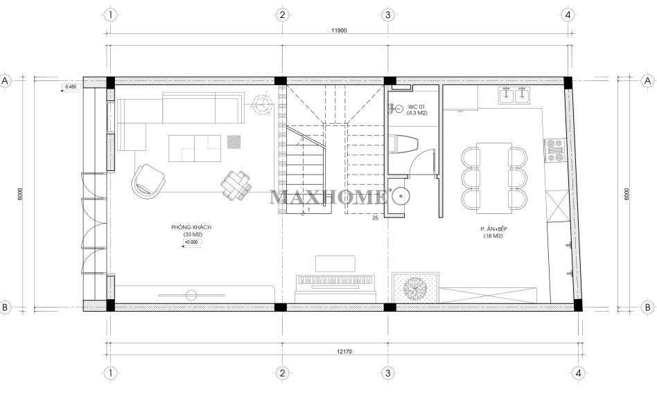
Từ cửa chính bước vào, ta sẽ bắt gặp phòng khách rộng rãi với diện tích lên đến 33m², được bố trí khoa học, thuận tiện cho việc tiếp khách và sinh hoạt gia đình. Tiếp nối không gian này là khu vực cầu thang được đặt ở vị trí trung tâm, giúp phân chia hợp lý giữa các khu chức năng. Phía sau là phòng bếp kết hợp phòng ăn, thiết kế thông thoáng, tiện nghi, tạo cảm giác ấm cúng cho mỗi bữa cơm gia đình. Bên cạnh đó, một nhà vệ sinh chung được bố trí gọn gàng ở khu vực gần bếp, thuận tiện cho sinh hoạt hằng ngày mà vẫn đảm bảo tính thẩm mỹ và sự riêng tư.

Tầng 2 được bố trí 2 phòng ngủ với diện tích hợp lý, đáp ứng đầy đủ nhu cầu nghỉ ngơi và sinh hoạt của các thành viên trong gia đình. Cả hai phòng đều sử dụng chung một nhà vệ sinh, được thiết kế tiện nghi, sạch sẽ và tối ưu diện tích sử dụng. Ngoài ra, kiến trúc sư còn khéo léo bố trí cửa sổ lớn và ban công hướng ra ngoài, giúp không gian tầng 2 luôn thông thoáng, đón được ánh sáng tự nhiên và gió trời, mang lại cảm giác dễ chịu và thư giãn tối đa.

Tầng 3 được thiết kế với không gian phòng thờ trang nghiêm, thể hiện lòng thành kính của gia chủ đối với tổ tiên. Bên cạnh đó là một phòng ngủ nhỏ, mang lại sự riêng tư và yên tĩnh, phù hợp cho khách hoặc thành viên trong gia đình nghỉ ngơi. Khu vực sân phơi được bố trí gọn gàng và tiện lợi, đáp ứng nhu cầu sinh hoạt hàng ngày. Đặc biệt, phía ngoài là sân chơi rộng rãi, nơi gia chủ có thể bố trí bàn trà, ghế thư giãn và trồng cây xanh xung quanh, tạo nên không gian mở lý tưởng để nghỉ ngơi, ngắm cảnh hoặc quây quần cùng gia đình vào mỗi buổi chiều.












