Nhà phố mặt tiền 4.3m bất ngờ với thiết kế 6 tầng tại Hà Nội | MH05504
| Chủ đầu tư: Anh Lê Văn Giang | Số tầng: 6 |
| Địa chỉ: Hà Đông, Hà Nội | Diện tích xây dựng: 4,3 x 9m |
| Loại hình: Nhà lô phố hiện đại | Tổng diện tích: 232m2 |
Công năng:
(Công trình có sử dụng thang máy) |
|
Một ngôi nhà phố mặt tiền 4.3m cao 6 tầng nhưng lại khiến bất kỳ ai đi ngang cũng phải ngước nhìn. Đó chính là công trình của gia đình anh Giang tại Hà Nội dù diện tích đất hạn chế nhưng không hề ngăn cản được sự sáng tạo trong kiến trúc. Nhờ bàn tay thiết kế tài hoa của Maxhome, ngôi nhà không chỉ giải quyết được bài toán không gian mà còn khẳng định phong cách sống hiện đại, sang trọng và đầy cá tính.
Với kích thước xây dựng 4.3x9m, công trình nhà phố mặt tiền 4.3m của anh Giang được Maxhome khai thác triệt để chiều cao để tạo nên một nhà phố cao 6 tầng vô cùng sang trọng. Ngay từ mặt tiền, sự cân đối và thanh thoát được thể hiện rõ rệt thông qua những đường nét vuông vức nhưng mềm mại nhờ hệ cửa sổ vòm kính. Từng tầng đều có chi tiết ốp gạch trang trí mang sắc vàng nâu dưới bệ cửa sổ giúp mặt tiền trở nên nổi bật hơn trên nền sơn trắng chủ đạo.

Một trong những thách thức lớn của những mẫu nhà phố mặt tiền 4.3m là làm sao vừa đảm bảo tính thẩm mỹ vừa mang lại sự tiện nghi. Maxhome đã khéo léo xử lý bằng cách phân chia mặt đứng với các ô cửa kính dọc theo chiều cao để tạo cảm giác công trình cao ráo và thanh mảnh hơn. Nhờ vậy, dù mặt tiền không rộng nhưng tổng thể ngôi nhà vẫn toát lên sự bề thế, cuốn hút và không hề bí bách.

Ở công trình nhà phố mặt tiền 4.3m này, Maxhome đã chú trọng vào việc sử dụng các loại sơn ngoại thất Maxhome cao cấp nhằm đảm bảo độ bền màu trước điều kiện thời tiết khắc nghiệt của Hà Nội. Gam màu trắng và vàng sáng được chọn làm tông nền chủ đạo, phối hợp hài hòa với gạch ốp tự nhiên tạo cảm giác sang trọng và hiện đại. Cách phối hợp tinh tế này không chỉ giúp công trình giữ được nét đẹp lâu dài mà còn dễ dàng hòa hợp với cảnh quan xung quanh.

Điểm nhấn độc đáo của công trình chính là khu vực tầng thượng, phần mái được thiết kế bằng hệ khung thép kết hợp kính cường lực hiện đại tạo khoảng không gian thư giãn lý tưởng cho gia đình. Đây không chỉ là nơi nghỉ ngơi, ngắm cảnh mà còn mang lại giá trị thẩm mỹ giúp ngôi nhà phố 6 tầng thêm phần khác biệt so với những mẫu nhà phố thông thường.


Ngoài ra, hệ cửa kính khung nhôm cao cấp cũng góp phần nâng tầm giá trị ngôi nhà phố, vật liệu này không chỉ cách âm, cách nhiệt tốt mà còn làm tăng tính thẩm mỹ mang lại diện mạo hiện đại, phóng khoáng. Đây là một lựa chọn hoàn hảo cho những công trình đô thị đòi hỏi sự tiện nghi và vẻ đẹp bền vững theo thời gian.
Dù sở hữu diện tích xây dựng khiêm tốn 4.3 x 9m nhưng nhờ thiết kế 6 tầng tối ưu, sự kết hợp tinh tế trong phối màu và lựa chọn vật liệu, ngôi nhà của anh Giang đã trở thành một biểu tượng của sự hiện đại và sang trọng giữa thủ đô Hà Nội.


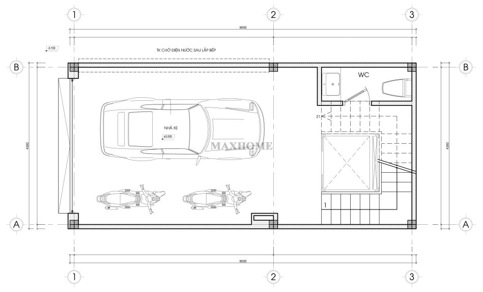
Ngay khi bước vào tầng 1 của ngôi nhà phố mặt tiền 4.3m, bạn sẽ dễ dàng nhận thấy sự hợp lý trong cách bố trí công năng. Toàn bộ diện tích tầng này được ưu tiên làm gara phục vụ nhu cầu để xe ô tô, xe máy và các phương tiện cá nhân của gia đình anh Giang. Với đặc thù nhà phố nằm trong khu vực đông đúc của Hà Nội, việc dành riêng một không gian để xe là vô cùng cần thiết.

Ngoài ra, tầng 1 còn được bố trí một nhà vệ sinh nhỏ gọn và tiện lợi cho việc sử dụng mà không ảnh hưởng đến không gian để xe. Sự kết hợp khoa học này giúp tầng 1 của căn nhà phố mặt tiền 4.3m vừa phát huy được tính thực dụng vừa giữ được sự thoáng đãng và ngăn nắp.

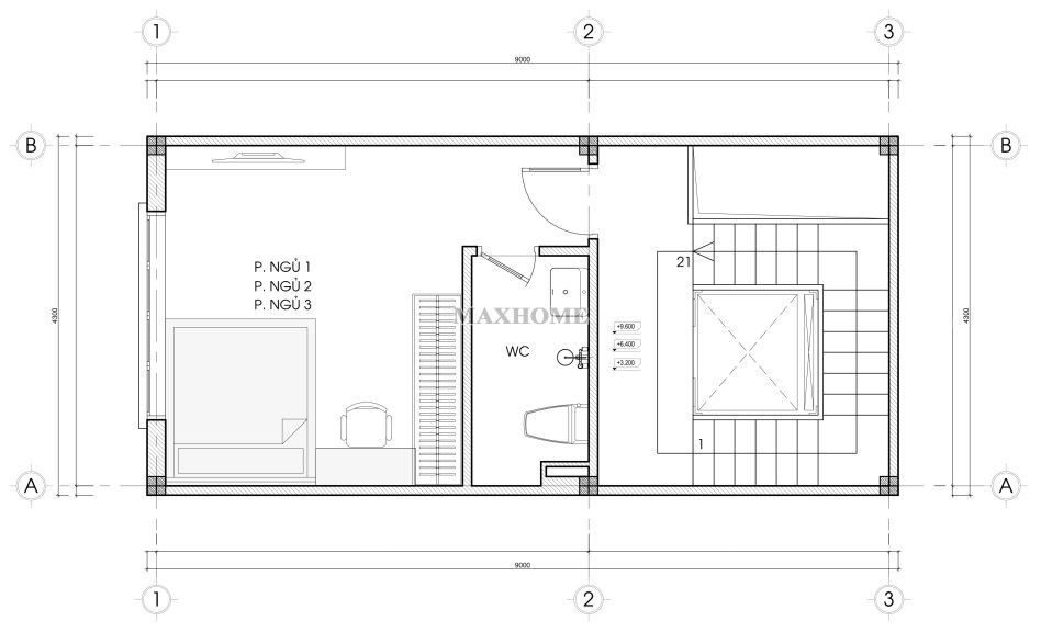
Tiếp nối không gian sinh hoạt, từ tầng 2 lên đến tầng 4 là nơi bố trí các phòng ngủ, mỗi tầng gồm 1 phòng ngủ và 1 nhà vệ sinh khép kín. Đây là một lựa chọn thông minh của Maxhome nhằm mang đến sự riêng tư tối đa cho từng thành viên trong gia đình. Phòng ngủ được thiết kế với diện tích vừa phải đủ để bố trí giường ngủ, tủ quần áo và các tiện nghi cần thiết. Hệ cửa sổ kính lớn giúp căn phòng luôn ngập tràn ánh sáng tự nhiên đồng thời tạo cảm giác rộng rãi hơn cho không gian. Nhà vệ sinh khép kín đặt ngay trong từng tầng mang lại sự thuận tiện, hạn chế việc phải di chuyển nhiều. Có thể nói, cả ba tầng này đã xây dựng nên một khu vực nghỉ ngơi yên tĩnh, riêng biệt và thoải mái, phù hợp với nhịp sống hiện đại của gia đình trẻ tại đô thị.

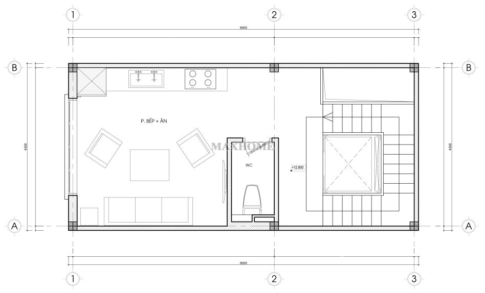
Khác biệt với nhiều công trình nhà phố, tầng 5 trong thiết kế của anh Giang được Maxhome bố trí làm không gian bếp và khu vực ăn uống. Cách sắp xếp này không chỉ giúp tách biệt mùi nấu nướng với các khu vực khác mà còn tạo ra một nơi sinh hoạt chung ấm cúng cho cả gia đình. Phòng bếp rộng rãi, thoáng đãng với hệ thống cửa kính mở ra ngoài giúp lấy sáng và tạo sự thông thoáng khi nấu nướng. Cùng với đó, một nhà vệ sinh chung được bố trí ở tầng này để phục vụ nhu cầu sử dụng của gia đình và khách đến chơi.

Tầng 6 của ngôi nhà phố mặt tiền 4.3m được dành cho phòng thờ và sân thượng thể hiện sự hài hòa giữa yếu tố tâm linh và không gian thư giãn. Phòng thờ được đặt ở vị trí cao nhất và tách biệt khỏi những sinh hoạt thường ngày giúp đảm bảo sự yên tĩnh đồng thời mang đến sự trang nghiêm, linh thiêng. Ngay bên cạnh, khoảng sân thượng rộng rãi được thiết kế với lan can an toàn và mái che hiện đại bằng kính tạo nên một nơi lý tưởng để gia đình trồng cây xanh, thư giãn.











