Nhà vườn 2 tầng hiện đại 18x16m tại Vĩnh Phúc sang trọng, có gara ô tô | MH05512
| Chủ đầu tư: Anh Bùi Quang Thịnh | Số tầng: 2 |
| Địa chỉ: Bình Xuyên, Vĩnh Phúc | Diện tích xây dựng: 16,3 x 18,3m |
| Loại hình: Nhà mái Nhật hiện đại | Tổng diện tích: 350m2 |
Công năng:
|
|
Mẫu nhà vườn 2 tầng hiện đại 18x16m tại Vĩnh Phúc là công trình được Maxhome thiết kế và thi công trọn gói, mang đến không gian sống sang trọng và tiện nghi cho gia chủ. Với phong cách kiến trúc hiện đại kết hợp cùng cảnh quan xanh mát, ngôi nhà không chỉ thể hiện gu thẩm mỹ tinh tế mà còn tối ưu công năng sử dụng. Đặc biệt, thiết kế có gara ô tô tiện lợi cùng hệ thống sân vườn rộng rãi, hứa hẹn mang đến cuộc sống an yên và đẳng cấp cho gia đình.
Ngôi nhà không chỉ đơn thuần là nơi an cư mà còn là chốn để tận hưởng những khoảnh khắc bình yên và hạnh phúc bên người thân. Sau nhiều năm nỗ lực và tích lũy, anh Thịnh tại Vĩnh Phúc đã tin tưởng lựa chọn Maxhome làm đơn vị thiết kế và thi công trọn gói cho mẫu nhà vườn 2 tầng hiện đại kích thước 18x16m. Công trình là sự kết hợp hài hòa giữa kiến trúc tinh tế, không gian tiện nghi và cảnh quan xanh mát, mang đến một tổ ấm đẳng cấp – nơi phong cách sống hiện đại được thể hiện trọn vẹn qua từng đường nét thiết kế.

Từ góc nhìn chính diện, ngôi nhà vườn 2 tầng hiện đại hiện lên vô cùng ấn tượng với hệ mái Nhật sang trọng và bố cục hình khối khỏe khoắn, tinh tế. Toàn bộ công trình sử dụng gam màu trắng làm chủ đạo, tạo cảm giác thanh lịch, trang nhã, đồng thời được nhấn nhá bằng các chi tiết ốp gỗ nhựa ở mặt tiền, giúp không gian thêm phần ấm áp và nổi bật. Sự kết hợp hài hòa giữa màu sắc, vật liệu và đường nét kiến trúc đã mang đến cho ngôi nhà vẻ đẹp hiện đại, đẳng cấp và đầy cuốn hút.

Ngoài ra, bên hông ngôi nhà mái Nhật được thiết kế vô cùng tinh tế khi sử dụng gạch bông gió thay cho những mảng tường kín thông thường. Chi tiết này không chỉ giúp tăng cường sự thông thoáng và ánh sáng tự nhiên cho khu vực gara ô tô bên trong, mà còn tạo điểm nhấn thẩm mỹ độc đáo cho tổng thể kiến trúc. Bên cạnh đó, một cầu thang phụ được bố trí ở hông nhà giúp thuận tiện cho việc di chuyển và sử dụng không gian, đồng thời góp phần làm cho thiết kế trở nên hài hòa, tiện nghi và mang đậm phong cách hiện đại.

Phần mặt bằng sân trước được lát gạch chống trơn, đủ không gian để bố trí bàn trà ngoài trời hoặc khu vực sinh hoạt chung cho gia đình. Bên trên, tầng 2 được tận dụng tối đa với khu ban công mở rộng có mái che kính – nơi lý tưởng để thư giãn, ngắm cảnh và đón gió tự nhiên. Toàn bộ hệ cửa kính cường lực kết hợp khung nhôm cao cấp giúp căn nhà luôn tràn ngập ánh sáng tự nhiên, đồng thời tăng sự kết nối giữa không gian trong – ngoài.

Khuôn viên công trình được bao quanh bởi hệ tường rào kiên cố, đảm bảo an ninh và tính thẩm mỹ cho tổng thể. Tuy nhiên, phần tường không xây kín hoàn toàn mà được chừa lại những khoảng hở hợp lý, giúp không gian trở nên thông thoáng và dễ lưu thông không khí hơn. Cách xử lý này không chỉ tạo cảm giác mở rộng diện tích sử dụng, mà còn giúp công trình đón sáng tự nhiên và tăng tính kết nối với khu vực sân vườn xung quanh. Tổng thể thiết kế vừa đảm bảo riêng tư cho gia chủ, vừa mang đến sự hài hòa giữa kiến trúc và cảnh quan thiên nhiên, đúng với tinh thần của một ngôi nhà vườn hiện đại tiện nghi.

Ngôi nhà vườn 2 tầng hiện đại được xây dựng trên khuôn viên đất rộng rãi, có địa hình hơi lồi lõm, mang đến những thách thức thú vị cho đội ngũ kiến trúc sư Maxhome trong việc lên ý tưởng và xử lý mặt bằng. Bằng kinh nghiệm và sự sáng tạo, KTS đã khéo léo tận dụng đặc điểm địa hình để tạo nên một công trình vừa vững chắc vừa đảm bảo yếu tố thẩm mỹ.
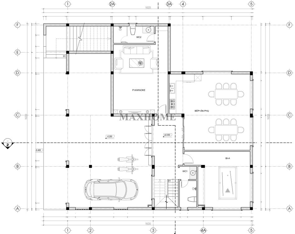
Ngôi nhà được định hướng về phía Tây Nam, phù hợp với phong thủy và tối ưu khả năng đón gió, lấy sáng tự nhiên. Công trình có kích thước 16,3 x 18,3m, với tổng diện tích sử dụng lên đến khoảng 350m², đáp ứng đầy đủ nhu cầu sinh hoạt và nghỉ dưỡng của gia đình.

Đầu tiên là khu vực gara ô tô được bố trí rộng rãi, thuận tiện cho việc di chuyển và đỗ xe của gia đình. Từ sảnh chính bước vào, không gian được liên kết hợp lý với phòng bếp ăn phụ, phục vụ cho những bữa ăn nhanh hoặc khi có tiệc tùng ngoài trời. Bên cạnh đó, tầng này còn được thiết kế phòng bi-a và phòng karaoke riêng biệt, tạo nên khu vực giải trí đa năng, giúp các thành viên thư giãn và gắn kết sau những giờ làm việc căng thẳng. Ngoài ra, 2 nhà vệ sinh chung được bố trí hợp lý, đảm bảo sự tiện nghi và riêng tư cho người sử dụng.

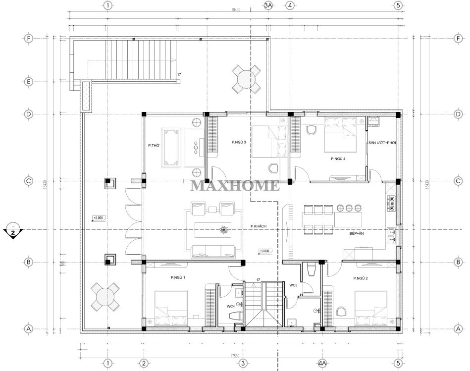
Tầng 2 được bố trí không gian sinh hoạt chính của gia đình, bao gồm phòng khách kết hợp phòng thờ được đặt ở vị trí trung tâm, vừa đảm bảo yếu tố phong thủy vừa mang lại sự trang nghiêm cho khu vực thờ tự. Kế đó là phòng bếp ăn rộng rãi, được thiết kế liên thông tạo cảm giác thoáng đãng và thuận tiện trong quá trình sinh hoạt.
Ngoài ra, tầng này còn có 4 phòng ngủ được bố trí khoa học xung quanh, giúp tối ưu diện tích sử dụng và đảm bảo sự riêng tư cho từng thành viên. Cuối cùng là khu vực sân ướt kết hợp phơi đồ đặt ở phía sau nhà, thuận tiện cho việc giặt giũ, phơi phóng mà vẫn giữ được tính thẩm mỹ chung của ngôi nhà.












