Sáng tạo với mẫu biệt thự mini tân cổ điển Á Đông kết hợp nhà thờ | MH05373
| Chủ đầu tư: Anh Nguyễn Ngọc Thọ | Số tầng: 3 |
| Địa chỉ: Đại Phúc, Bắc Ninh | Diện tích xây dựng: 9,2 x 12m |
| Loại hình: Biệt thự mini tân cổ điển Á Đông | Tổng diện tích: 242m2 |
Công năng:
|
|
Maxhome thiết kế mẫu biệt thự mini tân cổ điển của anh Thọ ở Bắc Ninh nổi bật lên như một dấu ấn riêng biệt, mang hơi thở Á Đông truyền thống mà vẫn giữ trọn vẻ sang trọng đậm chất châu Âu. Sự kết hợp giữa phong cách tân cổ điển với không gian nhà thờ trong cùng một tổng thể đã tạo nên một thiết kế hiếm có, rất trang nghiêm nhưng cũng rất mềm mại, toát lên nét thanh lịch chuẩn biệt thự đương đại.
Từ góc nhìn đầu tiên, căn biệt thự mini tân cổ điển này gây ấn tượng bởi mặt tiền 9,2m kiêu sa và bố cục cân đối. Hai hàng cột vuông vững chãi cao từ tầng 1 lên tầng 2 được trang trí bằng các đường gờ phào chỉ tinh tế giúp tạo nên cảm giác bề thế nhưng không phô trương. Kiến trúc sư Maxhome đã xử lý hình khối khéo léo để giữ được nét đặc trưng cổ điển nhưng vẫn mang hơi thở hiện đại, phù hợp với nhịp sống ngày nay.

Toàn bộ mặt tiền căn biệt thự của anh Thọ được sơn màu trắng chủ đạo từ dòng sơn Maxhome giúp tôn lên vẻ sang trọng, sạch sẽ và làm nổi bật các chi tiết trang trí. Màu trắng cũng phản chiếu ánh sáng tự nhiên khiến căn nhà luôn tươi mới và tràn đầy sinh khí.
Không gian trước nhà được bố trí hài hòa với sân lát gạch xám rộng rãi và cửa chính bằng gỗ tự nhiên có hoa văn chạm khắc tỉ mỉ cũng là một chi tiết thể hiện sự đầu tư tinh tế trong từng đường nét. Hoa văn tròn trung tâm cánh cửa không chỉ là yếu tố trang trí mà còn mang ý nghĩa phong thủy tượng trưng cho sự viên mãn và vững chắc.

Trên tầng ba, lan can con tiện trắng được thiết kế đồng nhất với cột trụ giúp giữ vững phong cách tân cổ điển xuyên suốt. Không gian ban công rộng mở mang lại cảm giác thoáng đãng, lý tưởng để gia chủ thư giãn, ngắm cảnh hoặc thưởng trà. Kiểu lan can con tiện này vốn bắt nguồn từ kiến trúc cổ điển châu Âu, nay được Maxhome cách điệu lại để phù hợp hơn với khí hậu và gu thẩm mỹ của người Việt. Chính sự giao thoa ấy đã làm nên sức hấp dẫn riêng biệt của biệt thự mini tân cổ điển mang phong cách Á Đông này.

Hệ thống cửa sổ được thiết kế theo phong cách mở rộng với khung kính lớn giúp tận dụng tối đa ánh sáng tự nhiên. Đây là một chi tiết thể hiện tư duy hiện đại trong kiến trúc tân cổ điển ngày nay, cửa kính phản chiếu cảnh quan xung quanh sẽ góp phần làm nổi bật sự hòa quyện giữa thiên nhiên và công trình. Bên cạnh đó, phần tường trên tầng 3 gian thờ được ốp gạch màu vàng cổ xưa, điểm nhấn đắt giá cho một nét đẹp cổ truyền khi nhìn từ phía sau.

Điểm nhấn tiếp theo không thể không nhắc đến chính là nhà thờ ba gian truyền thống với mái ngói màu đỏ đất đặc trưng. Phần mái nhà thờ vẫn giữ nguyên nét truyền thống với độ dốc cao và hoa văn chóp mái quen thuộc nhưng lại được kết hợp mượt mà cùng ngôn ngữ tân cổ điển của căn biệt thự. Chính sự giao thoa giữa hai nền văn hóa châu Âu cổ điển và Á Đông truyền thống đã khiến căn biệt thự của anh Thọ trở thành một biểu tượng của sự sáng tạo, đậm chất cá nhân mà vẫn giữ được hồn Việt.


Công trình biệt thự mini tân cổ điển của anh Thọ được định vị trên khu đất rất rộng rãi và ngay mặt tiền đường lớn. Đội ngũ thiết kế Maxhome đã khéo léo bố trí công trình lùi sâu vừa phải để tạo khoảng sân rộng phía trước đảm bảo không gian đón khách và khu vực đỗ xe thoải mái. Tổng thể công trình được thiết kế vuông vức, cân đối, tận dụng tối đa diện tích đất mà vẫn giữ được khoảng thông thoáng xung quanh giúp ngôi nhà luôn sáng sủa, thoáng mát.


Bước vào tầng 1 là khu vực phòng khách kết hợp không gian thưởng trà thể hiện sự sang trọng và tinh tế của phong cách tân cổ điển. Tiếp theo là phòng bếp và khu vực ăn uống được đặt gần cửa phụ dẫn ra sân giúp khu vực bếp luôn thông thoáng, tránh ám mùi khi nấu nướng. Hai phòng ngủ được sắp xếp đối xứng, đảm bảo sự riêng tư cho từng thành viên nhưng vẫn thuận tiện kết nối với khu vực chung. Ngoài ra, tầng 1 có 3 nhà vệ sinh bố trí khoa học, trong đó có 2 phòng khép kín trong các phòng ngủ và 1 phòng vệ sinh chung gần cầu thang, phục vụ khách hoặc sử dụng thuận tiện khi sinh hoạt.


Lên đến tầng 2 là không gian nghỉ ngơi yên tĩnh với 2 phòng ngủ rộng rãi. Mỗi phòng đều có cửa sổ lớn hướng ra ban công và khoảng sân thoáng để cho không khí lưu thông tốt, mang lại giấc ngủ dễ chịu cho các thành viên. Giữa hai phòng là 1 nhà vệ sinh chung được đặt ở vị trí trung tâm vừa thuận tiện vừa tiết kiệm diện tích. Điểm đặc biệt của tầng này là khoảng thông tầng lớn phía trước cũng như là một không gian đệm quan trọng giúp điều hòa ánh sáng và gió tự nhiên cho toàn bộ ngôi mẫu biệt thự mini tân cổ điển của anh Thọ.


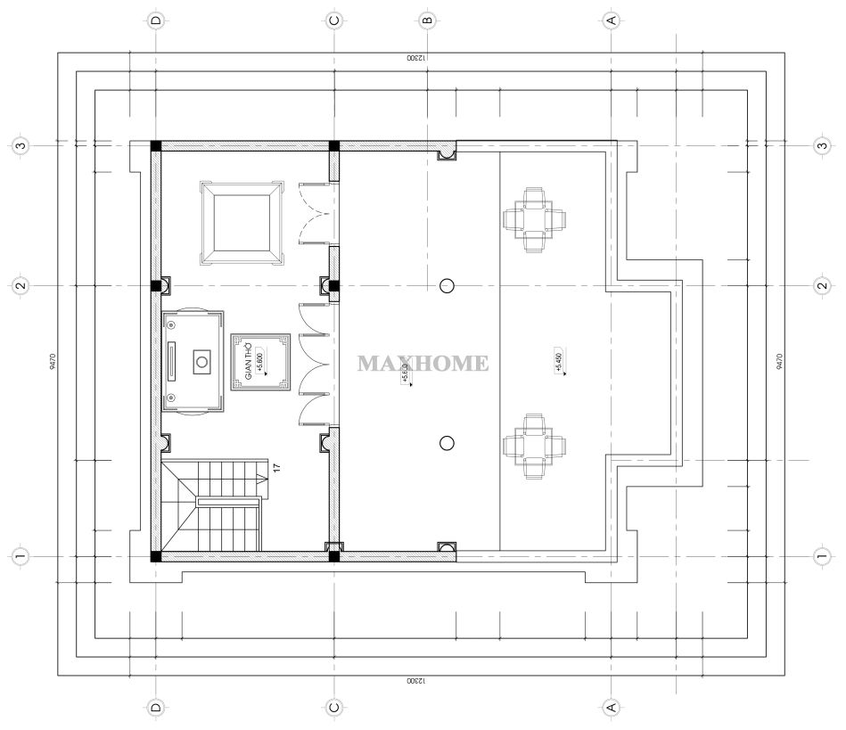
Tầng 3 được dành riêng cho phòng thờ gia tiên giúp thể hiện rõ tinh thần Á Đông trong mẫu biệt thự mini tân cổ điển này. Từ gian thờ có cửa mở ra sân thượng lớn phía bên ngoài, nơi có thể bố trí bàn trà, cây cảnh hoặc không gian nghỉ ngơi ngoài trời. Khu vực này không chỉ mang lại sự cân bằng về thẩm mỹ mà còn giúp căn biệt thự đón gió, lấy sáng tự nhiên và đảm bảo sự thông thoáng cho toàn bộ tầng trên.

Nếu bạn đang tìm kiếm cảm hứng cho ngôi nhà tương lai của mình, mẫu biệt thự mini tân cổ điển Á Đông kết hợp nhà thờ của Maxhome chắc chắn là gợi ý hoàn hảo. Công trình đã thể hiện trọn vẹn tinh thần “uống nước nhớ nguồn” trong hình hài một thiết kế kiến trúc đương đại, nơi truyền thống và hiện đại giao hòa trong từng chi tiết.











