Siêu phẩm mẫu nhà mái thái tân cổ sang trọng được yêu thích nhất 2026 | MH46423
| Chủ đầu tư: Anh Vũ Thế Nguyên | Số tầng: 2 |
| Địa chỉ: Thái Bình - Lạng Sơn | Diện tích xây dựng: 7,2 x 15,6m |
| Loại hình: Nhà mái Thái tân cổ điển | Tổng diện tích: 224m2 |
| Công năng:
|
|
Xu hướng thiết kế của năm 2026 mẫu nhà tân cổ điển. Mẫu nhà 2 tầng mái Thái Tân Cổ Điển của gia đình anh Nguyên là một biểu tượng về chất lượng sống và gu thẩm mỹ đỉnh cao tại Lạng Sơn. Công trình là sự kết hợp hoàn hảo giữa vẻ đẹp quý phái, sang trọng và giải pháp công năng tiện nghi, khoa học.

Điểm ấn tượng đầu tiên là hệ cửa chính được làm bằng chất liệu gỗ lim Nam Phi, kết hợp với hệ cửa sổ lớn, mọi không gian trong nhà đều nhận được ánh sáng tự nhiên và không khí lưu thông, giúp ngôi nhà luôn tươi mới và khỏe khoắn. Hệ cột sử dụng các trụ cột tròn/vuông lớn, chạm khắc phào chỉ tinh tế ở đầu và thân cột, tạo cảm giác bề thế và vững chãi cho khối sảnh chính.

Công trình sử dụng gam màu trắng làm màu sắc chủ đạo, phù hợp với tinh thần thanh lịch và sang trọng của phong cách tân cổ điển. Trên nền trắng trang nhã, tạo chiều sâu và tăng giá trị thẩm mỹ cho mặt tiền. Bên cạnh đó, chi tiết lan can ban công được chế tác từ những con tiện tiện bê tông và sắt mỹ thuật, sơn tĩnh điện màu vàng đồng tạo điểm nhấn cho khu vực ban công tầng 2, vừa đảm bảo độ bền theo thời gian vừa góp phần tôn lên vẻ đẹp nổi bật, đẳng cấp cho tổng thể biệt thự mái Thái

Khu vực tầng 1 được thiết kế với hệ bậc tam cấp, được ốp bằng đá đen rừng tự nhiên, chân tường và bồn hoa được ốp đá chẻ làm điểm nhấn tạo nên sự trang trọng cho khu vực tầng 1, ban công tầng 2 được kết hợp chiếc đèn chùm pha lê và hệ thống đèn tường mang hơi hướng châu Âu sang trọng quý phái, cung cấp ánh sáng lung linh cho căn nhà về đêm, bao quanh công trình là hệ thống cổng và tường rào hiện đại, kiên cố giúp bảo vệ không gian sống riêng tư cho gia đình.

Hệ thống mái Thái được thiết kế cao ráo, cân đối, đặc biệt phù hợp với phong cách tân cổ điển sang trọng và tinh tế,thanh thoát cho công trình mà còn phát huy hiệu quả trong việc thoát nước mưa, chống nóng và thích ứng tốt với điều kiện khí hậu tại khu vực miền bắc. Nhờ đó, biệt thự vừa đảm bảo giá trị thẩm mỹ lâu dài, vừa mang lại không gian sống mát mẻ và bền vững theo thời gian.

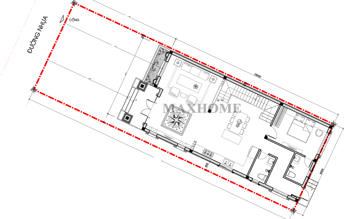
Mặt bằng định vị cho thấy mẫu biệt thự mái Thái tân cổ điển được xây dựng trên khuôn viên đất rộng rãi, thuận lợi cho việc bố trí công trình và cảnh quan xung quanh. Ngôi nhà có kích thước xây dựng khoảng 7 × 16m, hình khối cân đối, dễ tổ chức mặt bằng công năng khoa học, tiện nghi đáp ứng nhu cầu sử dụng thoải mái cho cả gia đình.

Mặt bằng định vị công trình
Từ cửa chính bước vào là không gian phòng khách rộng rãi, thoáng mát, được bố trí hợp lý để đón gió và ánh sáng tự nhiên. Liền kề với phòng khách là khu vực bếp kết hợp phòng ăn, thiết kế mở giúp không gian sinh hoạt chung trở nên rộng rãi và tiện nghi hơn, đồng thời cầu thang được thiết kế hợp lý, khu vực phía cuối nhà được bố trí 1 lối đi nhỏ, thuận tiện cho việc di chuyển sinh hoạt cho cả gia đình.

Mặt bằng bố trí công năng tầng 1
Tầng 2 được bố trí với không gian phòng thờ trang nghiêm, đặt ở vị trí yên tĩnh và hướng thẳng ra ban công, vừa đảm bảo yếu tố phong thủy vừa tạo sự thông thoáng. Phía sau là khu vực phòng ngủ và khu vực WC, mang lại không gian thoải mái, thư giãn. Bên cạnh đó tầng 2 còn có 3 phòng ngủ và khu vực ban công có lối đi riêng, trong đó có 1 phòng ngủ master được bố trí hợp lý nhằm đáp ứng nhu cầu sinh hoạt riêng tư và nâng cao tiện nghi cho gia đình.

Mặt bằng bố trí công năng tầng 2











