Siêu phẩm mẫu nhà 2 tầng mái nhật hiện đại tại Bắc Giang | MH46483
| Chủ đầu tư: Anh Giang | Số tầng: 2 |
| Địa chỉ: Bắc Giang | Diện tích xây dựng: 10,7 x 13,8 |
| Loại hình: Nhà mái nhật hiện đại | Tổng diện tích: 295m2 |
Công năng:
|
|
Trong những năm gần đây, mẫu nhà 2 tầng mái Nhật ngày càng được nhiều gia đình lựa chọn nhờ sự kết hợp hài hoà giữa kiến trúc hiện đại và nét đẹp tinh tế. Không chỉ gây ấn tượng bởi hình khối cân đối, công trình còn được bố trí công năng khoa học.
Sau khi nhận được phương án thiết kế, gia chủ là anh Giang tại Bắc Giang, rất hài lòng và đánh giá cao mẫu nhà mái nhật, từ ngoại thất cho tới bố trí công năng bên trong nhà. Công trình sử dụng tone màu lạnh và trung tính làm chủ đạo, tạo nên sự sang trọng cho tổng thể căn nhà. Công trình được sử dụng màu trắng sứ làm chủ đạo, kết hợp thêm màu xanh than làm điểm nhấn. Giúp công trình trông sáng sủa, rộng rãi và tôn lên các chi tiết trang trí.

Phối cảnh 3D mặt trước công trình
Mặt tiền được chia làm hai khối, tạo chiều sâu cho ngôi nhà. Ở phía sảnh chính đua ra phía trước với hệ mái hiên lớn che chắn, giúp căn nhà trông bề thế hơn. Trụ cột vuông ở phía sảnh chính kích thước lớn, mang lại cảm giác vững chãi. Phần thân cột được thiết kế đơn giản, trong khi phần chân và đầu cột được đắp nổi vuông vức. Phần chân cột sảnh và chân tường được ốp đá tự nhiên tối màu. Điều này không chỉ tăng tính thẩm mỹ, tạo nên sự vững chãi mà còn bảo vệ chân công trình khỏi rêu mốc, bụi bẩn.

Tầng 2 được bố trí ban công rộng rãi, với lan can được làm bằng sắt hộp sơn tĩnh điện đơn giản, an toàn, kết hợp cùng các chậu cây xanh giúp căn nhà trở nên thoáng mát hơn.
Từ góc nhìn này có thể thấy căn nhà này được bố trí nhiều ô cửa sổ xung quanh, giúp tăng khả năng lưu thông không khí và đón ánh sáng tự nhiên hiệu quả. Nhờ đó, không gian bên trong luôn thông thoáng, hạn chế cảm giác bí bách và tiết kiệm điện năng vào ban ngày.

Cửa chính Sử dụng gỗ tự nhiên màu nâu đỏ với các họa tiết chạm khắc hình tròn đồng tâm tinh xảo. Đây là chi tiết mang đậm nét truyền thống và sự sang trọng, Trong khi đó, toàn bộ hệ cửa còn lại được làm từ nhôm hệ Xingfa kết hợp kính cường lực, có khả năng cách âm, cách nhiệt tốt, chống cong vênh và chịu lực hiệu quả.

Ngôi nhà được sử dụng hệ mái Nhật lợp ngói màu xanh than cùng tone màu với màu sơn của tường. Mái có độ đua vừa phải, từ khối nhà chính cho đến các phần sảnh hiên tầng 1. Với độ dốc vừa phải, mái Nhật có khả năng thoát nước mưa nhanh chóng, hạn chế tình trạng ứ đọng gây thấm dột. Bên cạnh đó, cấu tạo mái nhiều lớp còn góp phần chống nóng hiệu quả, giảm tác động trực tiếp của thời tiết, từ đó nâng cao độ bền và tuổi thọ cho công trình. Các kim thu sét trên đỉnh mái được bố trí mang tính thẩm mỹ, an toàn.

Cổng và hàng rào được thiết kế theo phong cách hiện đại, tối giản, khớp với kiến trúc tổng thể của ngôi nhà hai tầng mái nhật hiện đại phía sau. Sử dụng các đường nét vuông vức, khỏe khoắn. Điều này tạo cảm giác không gian mở, thân thiện và tăng chiều sâu cho mặt tiền mà vẫn đảm bảo an ninh cho ngôi nhà.
Cổng chính là cửa hai cánh lớn, được làm từ các thanh dọc được đặt song song với nhau, bằng vật liệu giả gỗ màu nâu đỏ, các trụ cổng sơn màu xám, tạo cảm giác ấm cúng và sự vững chãi cho căn nhà.
Hệ thống hàng rào không chỉ là một bức tường bảo vệ mà là một phần trang trí ngoại thất quan trọng, nâng cao vẻ đẹp tổng thể, sang trọng, đồng bộ và chuyên nghiệp cho toàn bộ công trình.

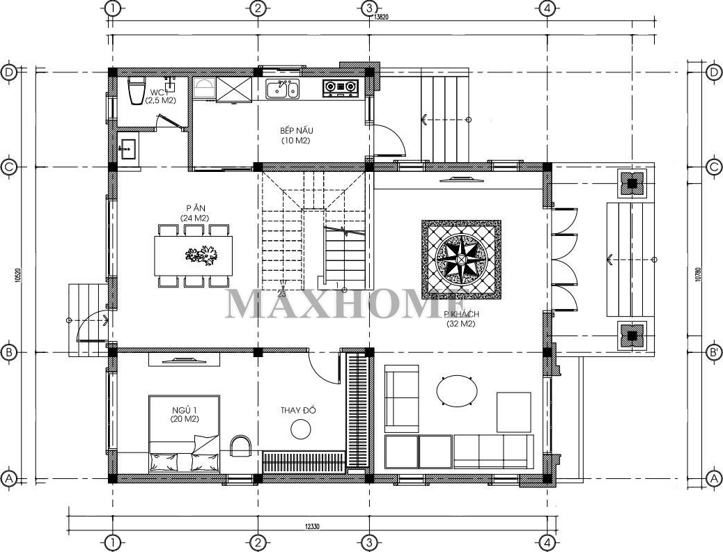
Mặt bằng công năng tầng 1 được bố trí hợp lý, Từ sân lên khu vực sảnh chính là hệ bậc ngũ cấp, là một khoảng sảnh rất rộng rãi, nổi bật với họa tiết hoa văn trang trí lớn trên sàn. Khu vực đón tiếp khách được bố trí gọn về một bên, tạo thành một góc trò chuyện ấm cúng, lịch sự mà không làm ảnh hưởng đến lối đi giao thông chính của căn nhà.
Khu vực bếp và phòng ăn được tách biệt, phòng bết được thiết kế với diện tích lớn 24m2 và có lối đi riêng ra sảnh phụ bên hông nhà. Điều này giúp đón ánh sáng, gió tự nhiên cho căn bếp, khu vực phòng ăn được thiết kế đẩy về phía cuối nhà ngăn cách giữ phòng khách là hệ thống cầu thang.Thiết kế dạng chữ L giúp tối ưu không gian, đồng thời có thêm cửa phụ phía sau và bên hông, giúp mùi thức ăn thoát ra ngoài dễ ràng, không bị ám ngược vào phòng khách.
Phòng ngủ được thiết kế rông rãi, được chia làm 2 khu vực rõ rệt là khu vực giường ngủ và khu vực phòng thay đồ riêng biệt. giúp căn phòng luôn gọn gàng và đẳng cấp.

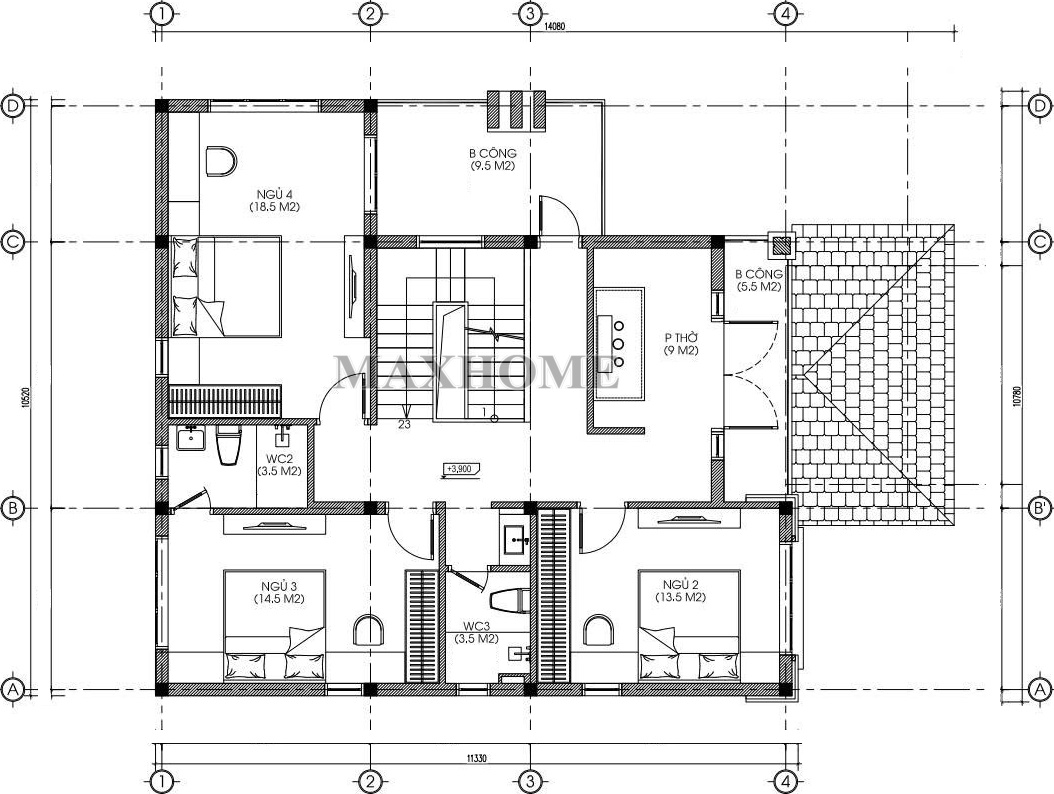
Từ mặt bằng công năng tầng 1, không gian mặt bằng tầng 2 được kết nối mạch lạc và khoa học. Khu vực phòng thờ được bố trí trang trọng, hướng thẳng ra mặt tiền chính của căn nhà, được kết hợp với một ban công riêng. Thiết kế này giúp khu vực thờ cúng luôn đón được vượng khí, ánh sáng tự nhiên và thoát mùi nhang khói rất tốt, giữ cho không gian luôn thanh tịnh.
Không gian nghỉ ngơi được bố trí với 3 phòng ngủ, phòng ngủ số 2 Nằm ở phía trước nhà, căn phòng này được thiết kế riêng biệt có lối đi ra khu vực ban công (diện tích 9,5m2) bên ngoài. Phòng ngủ số 3 và số 4 được bố chí nửa sau ngôi nhà mang lại sự yên tĩnh, phòng ngủ số 3 được thiết kế với diện tích 14,5m2 và được bố trí vệ sinh khép kín diện tích 3,5m2 bên trong. Phù hợp cho vợ chồng hoặc những thành viên có sự riêng tư. Đặt biệt phòng ngủ số 4 có diện tích rộng 18,5m2, gia chủ có thể thoải mái tích hợp thêm góc học tập, làm việc hoặc hệ tủ quần áo lớn. Tất cả các phòng đều có hệ của sổ lớn, sử dụng bằng chất liệu nhôm Xingfa hiện đại giúc các phòng luôn lấy được ánh sáng tự nhiên và có tầm nhìn thông thoáng.

Bản vẽ thiết kế công năng căn nhà 2 tầng mái nhật này được KTS MAXHOME tính toán vô cùng khoa học vào tính tinh tế, không gian sống sang trọng, hiện đại và tối ưu công năng sinh hoạt cho gia đình anh Giang. đây là một thiết kế mang tính ứng dụng cao, bố trí mặt bằng chặt chẽ, không có diện tích chết và khai thác triệt để được lợi thế của kiến trúc hiện đại.











