Siêu phẩm nhà 2 tầng 4 phòng ngủ rộng 230m2 ở Hà Nội | MH03371
| Chủ đầu tư: Chị Nguyễn Thị Vân Hà | Số tầng: 2 |
| Địa chỉ: Liên Bạt, Ứng Hòa, Hà Nội | Diện tích xây dựng: 10,3 x 13,5m |
| Loại hình: Nhà mái Nhật hiện đại | Tổng diện tích: 230m2 |
Công năng:
|
|
Mẫu nhà 2 tầng 4 phòng ngủ lần này Maxhome giới thiệu sở hữu diện tích lên tới 230m2 mang vẻ đẹp hiện đại, sang trọng nhưng vẫn giữ được sự tinh tế trong từng chi tiết. Từ màu sơn, vật liệu cho đến cách bố trí ngoại thất đều được đội ngũ thiết kế Maxhome nghiên cứu kỹ lưỡng để tạo nên một không gian sống lý tưởng và đáp ứng đầy đủ công năng cho gia đình nhiều thế hệ.
Thiết kế mẫu nhà 2 tầng 4 phòng ngủ nổi bật cửa thép sơn giả gỗ cao cấp mang lại vẻ đẹp ấm áp, sang trọng. Các mảng tường ốp gạch trang trí ngoại thất ở chân tường và cột sảnh chính giúp tăng tính thẩm mỹ và bảo vệ tường khỏi tác động của thời tiết. Ngoài ra, điểm đặc biệt là mẫu nhà đẹp này được sơn bằng dòng sơn Maxhome cao cấp mang lại độ bền màu vượt trội, chống bám bẩn và chống thấm hiệu quả. Màu sơn trắng tinh khôi kết hợp cùng xám đậm đã tạo nên sự hài hòa, tinh tế, sang trọng và hiện đại. Đây cũng chính là bí quyết giúp ngôi nhà chị Hà giữ được vẻ đẹp bền bỉ theo thời gian, bất chấp điều kiện thời tiết khắc nghiệt.

Ban công kính cường lực trong suốt ở tầng 2 không chỉ tạo cảm giác rộng mở mà còn mang đến tầm nhìn thoáng đãng, giúp gia đình chị Hà tận hưởng trọn vẹn không gian thiên nhiên bên ngoài. Chi tiết lam bê tông trắng cũng khá phổ biến và quen thuộc ở các mẫu thiết kế nhà Maxhome vì chính tại khu vực này nếu được bố trí cây cảnh, hoa lá sẽ làm tăng sinh khí của ngôi nhà lên rất tốt mà lại thẩm mỹ.

Phía sau ngôi nhà 2 tầng của chị Hà được thiết kế gọn gàng, cân đối và chắc chắn cho tổng thể công trình. Các mảng tường được xử lý bằng những đường kẻ chỉ ngang tinh tế kết hợp cùng màu sơn trắng chủ đạo và những ô cửa kính được bố trí đều đặn giúp không gian bên trong luôn sáng sủa, thoáng mát. Phần chân tường được ốp đá xám càng tạo điểm nhấn mạnh mẽ đồng thời giúp bảo vệ tường khỏi rêu mốc và tác động xấu từ môi trường.

Thêm nữa, ngôi nhà 2 tầng 4 phòng ngủ này được tạo hình khối kiến trúc vững chãi kết hợp cùng mái Nhật xanh than sang trọng. Kiểu mái này không chỉ mang đến tính thẩm mỹ cao mà còn giúp ngôi nhà chống nóng, chống thấm tốt, rất phù hợp với khí hậu miền Bắc ở Hà Nội. Màu trắng chủ đạo kết hợp cùng các đường kẻ chỉ ngang tinh tế và hệ khung cửa kính nhôm xingfa màu tối giúp tổng thể công trình thêm phần nổi bật và hiện đại, đồng thời tăng khả năng lấy sáng và lưu thông không khí trong nhà.

Một điểm đáng khen nữa trong thiết kế của nhà 2 tầng 4 phòng ngủ này chính là sự chú trọng đến không gian sinh hoạt ngoài trời. Khoảng sân rộng phía trước được lát gạch chống trơn, đảm bảo sự an toàn và sạch sẽ do loại gạch này rất dễ vệ sinh. Bên cạnh đó, hệ thống cổng và hàng rào bao quanh được thiết kế đồng bộ với kiến trúc nhà giúp đảm bảo cả yếu tố an toàn lẫn thẩm mỹ.

Không chỉ dừng lại ở phần kiến trúc bên ngoài, Maxhome còn tối ưu hóa từng chi tiết để mang đến sự tiện nghi và khoa học cho gia đình chị Hà. Với diện tích 230m2, nhà 2 tầng 4 phòng ngủ này đảm bảo không gian sinh hoạt riêng tư cho từng thành viên đồng thời vẫn có những khu vực sinh hoạt chung rộng rãi để gắn kết gia đình.


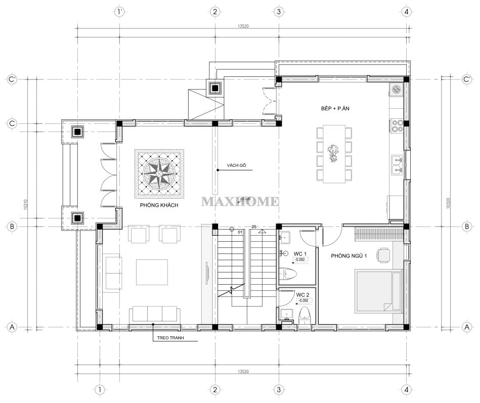
Về công năng, ngôi nhà 2 tầng 4 phòng ngủ rộng 230m2 của chị Hà được bố trí khoa học và tiện nghi, đáp ứng đầy đủ nhu cầu sinh hoạt của gia đình nhiều thế hệ. Tầng 1 gồm phòng khách rộng rãi đặt ở vị trí trung tâm gần với phòng bếp và khu vực ăn uống, tạo nên không gian sinh hoạt chung ấm cúng và thuận tiện cho gia đình. Cạnh cầu thang là 1 phòng ngủ riêng tư có nhà vệ sinh khép kín, bên cạnh đó là nhà vệ sinh chung để mọi người ở ngoài tiện sử dụng.


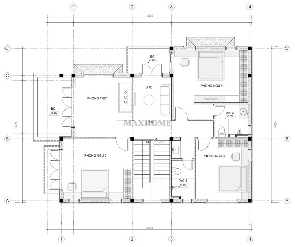
Bước lên tầng 2, không gian trở nên riêng tư và gắn kết hơn với phòng thờ trang nghiêm đặt ở vị trí yên tĩnh, phía sau là phòng sinh hoạt chung để cả gia đình quây quần cùng với 3 phòng ngủ được sắp xếp hợp lý, đảm bảo sự thoải mái và riêng tư cho từng thành viên. Bên cạnh đó, 2 nhà vệ sinh trên tầng cũng giúp việc sử dụng thuận tiện hơn, tránh tình trạng đợi chờ trong giờ cao điểm.












