Siêu phẩm nhà 2 tầng hiện đại với không gian sống cực kì tinh tế | MH05432
| Chủ đầu tư: Anh Lê Văn Pha | Số tầng: 2 |
| Địa chỉ: Kiến Thuỵ, Hải Phòng | Diện tích xây dựng: 8,8 x 13,4m |
| Loại hình: Nhà mái bằng hiện đại | Tổng diện tích: 202m2 |
Công năng:
|
|
Siêu phẩm nhà 2 tầng hiện đại với không gian sống cực kì tinh tế thật sự được thể hiện trọn vẹn trong mẫu thiết kế của gia đình anh Pha ở Hải Phòng do Maxhome thực hiện. Ngay từ cái nhìn đầu tiên, ngôi nhà đã tạo được thiện cảm mạnh nhờ kiểu dáng tối giản mà sang trọng, đường nét rõ ràng, cân bằng và dễ chịu. Sự kết hợp giữa bố cục mặt tiền chỉn chu và cách xử lý màu sắc thông minh đã khiến cả công trình toát lên vẻ tinh tế, thân thiện với người nhìn nhưng vẫn giữ được nét riêng mà không hề trộn lẫn.
Mặt tiền căn nhà rộng 8,8m và được chia bố cục gần như đăng đối hai bên giúp tổng thể trở nên cân bằng và hài hòa hơn. Tuy vậy, để ngôi nhà có điểm nhấn tự nhiên và tạo được sự thu hút ngay từ cổng bước vào, sảnh chính vẫn được ưu ái rộng rãi hơn. Với kiểu bố trí này, không gian đón khách trở nên thoáng và sang hơn, đồng thời khi nhìn vào mặt đứng tổng thể thì mọi chi tiết đều liên kết với nhau một cách trơn tru hơn. Đây chính là điều mà nhiều gia đình lựa chọn khi xây dựng nhà 2 tầng hiện đại vì vừa đảm bảo tính thẩm mỹ vừa thuận tiện cho sinh hoạt.

Một trong những điểm làm nên sức hút mạnh mẽ của ngoại thất nhà anh Pha nằm ở sự phối hợp tinh tế giữa vật liệu và màu sắc. Thay vì sử dụng hoàn toàn sơn nước như nhiều mẫu nhà khác, Maxhome đã lựa chọn ốp nhựa giả gỗ ngoài trời màu nâu cho mặt tiền, chất liệu này vừa mang lại nét ấm áp tự nhiên vừa tạo chiều sâu cho công trình. Sắc nâu nổi bật nhưng không gắt kết hợp cùng những mảng tường sáng màu tạo nên hiệu ứng thị giác rất dễ chịu. Xung quanh còn được tô điểm bằng lớp sơn giả đá đen cá tính giúp tổng thể trở nên chắc chắn và mạnh mẽ hơn. Sự đối lập giữa màu nâu ấm và màu đen ấn tượng khiến ngôi nhà 2 tầng hiện đại này thêm phần trẻ trung và sang trọng mà không hề phô trương.

Dưới chân tường và dưới bồn hoa, Maxhome sử dụng gạch thẻ ốp toàn bộ để tăng tính thẩm mỹ và giúp bảo vệ khu vực tiếp xúc nhiều với nước mưa cũng như bụi bẩn. Gạch thẻ có ưu điểm là dễ vệ sinh, độ bền cao và không bị bay màu sau thời gian dài sử dụng nên rất phù hợp với khí hậu miền Bắc. Khi kết hợp cùng hệ cây xanh xung quanh thì những mảng gạch thẻ này còn giúp công trình trông sạch sẽ và gọn gàng hơn hẳn.

Dù là mẫu nhà 2 tầng hiện đại mái bằng và không có mái ngói đua ra để che chắn nhưng đội ngũ thiết kế Maxhome vẫn xử lý rất khéo phần sàn mái phía trên. Phần sàn được thiết kế nhô ra nhẹ đóng vai trò như một lớp đệm giúp hạn chế nước mưa hắt trực tiếp vào tường và cửa. Nhờ đó mà độ bền của công trình được tăng lên đáng kể, phù hợp khí hậu và rất đáng học hỏi cho những gia đình đang dự định xây nhà mái bằng.

Toàn bộ hệ cửa của ngôi nhà đều dùng khung nhôm kính cường lực rất phù hợp với xu hướng hiện nay vì giúp tối ưu ánh sáng tự nhiên, tạo cảm giác không gian mở rộng và thoáng hơn. Nhờ ánh sáng xuyên qua các mảng kính lớn, ngoại thất và nội thất như được kết nối liền mạch giúp mẫu nhà đẹp lúc nào cũng tràn đầy năng lượng. Với những ai yêu thích phong cách sống hiện đại thì việc sử dụng hệ cửa này gần như là lựa chọn hàng đầu.

Một tiện ích nhỏ nhưng mang lại giá trị sử dụng rất lớn là mái che bên hông nhà. Mái được lợp bằng nhựa dẻo trong giúp xe cộ đậu gọn gàng và được bảo vệ khỏi nắng mưa. Khu vực này cũng được bố trí cạnh một khoảng đất nhỏ đủ để gia đình anh Pha trồng cây hoặc tạo góc xanh thư giãn. Tuy chỉ là chi tiết bên hông nhưng lại giúp ngôi nhà thêm phần tiện nghi và có chiều sâu trong thiết kế. Đây là điểm cộng lớn khiến mẫu nhà này càng trở thành lựa chọn đáng tham khảo khi xây dựng nhà 2 tầng hiện đại phù hợp gia đình trẻ.


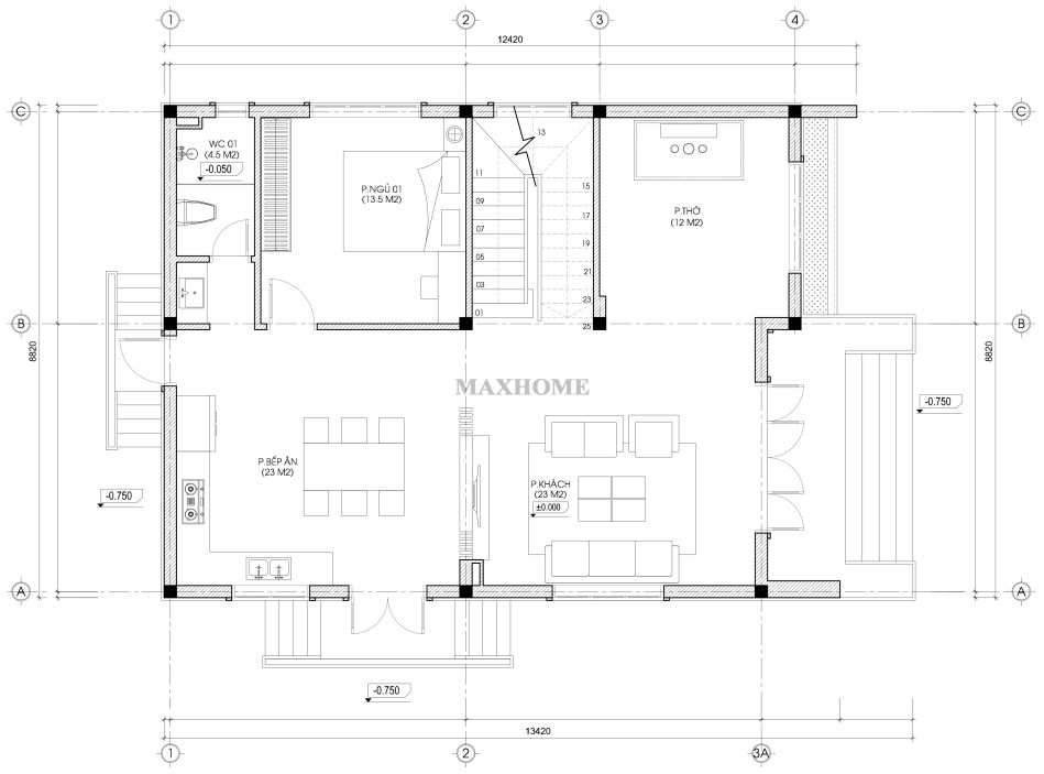
Ngay từ khi bước vào, phòng khách rộng 23m2 mang lại cảm giác thoáng mát và thân thiện để đón tiếp họ hàng, bạn bè hoặc đơn giản là nơi cả gia đình quây quần trò chuyện. Kế bên đó, phòng thờ 12m2 được đặt ở vị trí trang trọng, yên tĩnh mà vẫn đảm bảo sự tôn nghiêm cần có trong đời sống tinh thần của gia đình anh Pha. Khu bếp được thiết kế ấm cúng, liên kết nhịp nhàng với sảnh phụ để việc di chuyển và sinh hoạt trở nên thuận tiện hơn. Một phòng ngủ ở tầng 1 là lựa chọn rất hợp lý cho người lớn tuổi vì không phải di chuyển nhiều. Thêm vào đó, 1 nhà vệ sinh chung được bố trí gọn gàng, dễ sử dụng giúp tầng 1 hoàn chỉnh về công năng mà không hề bị rối mắt hay chật chội.


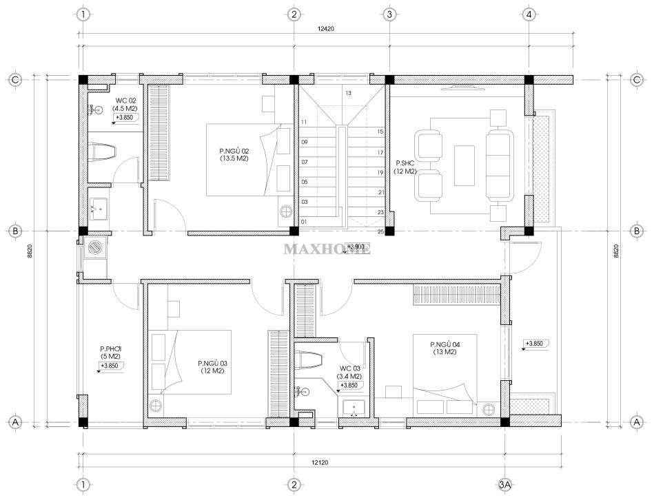
Tầng 2 là nơi dành cho sự riêng tư và thư giãn nhiều hơn với phòng sinh hoạt chung 12m2 sáng thoáng nằm ở vị trí trung tâm. Đây là nơi các thành viên có thể xem phim, đọc sách hoặc trò chuyện trước khi bước về phòng riêng của mình. Ba phòng ngủ được bố trí khoa học, mỗi phòng đều có diện tích hợp lý để mang lại cảm giác thoải mái cho từng thành viên và đồng thời vẫn đảm bảo sự thông thoáng nhờ hệ cửa kính lấy sáng đặc trưng của mẫu nhà 2 tầng hiện đại.

Hai nhà vệ sinh cũng giúp sinh hoạt trên tầng 2 diễn ra thuận lợi hơn, tránh tình trạng chờ đợi vào giờ cao điểm. Cuối cùng, khu sân phơi 5m2 được đặt phía sau, tách biệt khỏi không gian nghỉ ngơi để đảm bảo thẩm mỹ và tạo sự gọn gàng cho toàn bộ tầng trên.











