Siêu phẩm nhà 3 tầng hiện đại với diện tích cực rộng và công năng tối ưu | MH05259
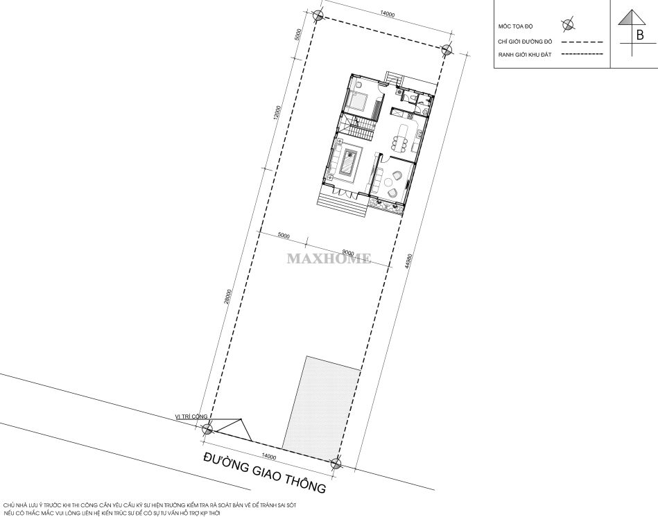
| Chủ đầu tư: Anh Phạm Quang Trung | Số tầng: 3 |
| Địa chỉ: Bình Trung, Châu Đức, Bà Rịa - Vũng Tàu | Diện tích xây dựng: 9 x 15,4m |
| Loại hình: Nhà mái bằng hiện đại | Tổng diện tích: 253m2 |
Công năng:
|
|
Mời các bạn ghé thăm vùng đất nắng gió Bà Rịa – Vũng Tàu để chiêm ngưỡng một siêu phẩm kiến trúc vừa mới hoàn thiện của Maxhome dành cho gia đình anh Trung. Đây không chỉ đơn thuần là một công trình để ở mà thực sự là một tác phẩm nghệ thuật đại diện cho xu hướng nhà 3 tầng hiện đại đang dẫn đầu thị trường kiến trúc năm nay.
Ngay từ cái nhìn đầu tiên, ngôi nhà đã gây ấn tượng mạnh bởi sự bề thế, vững chãi nhưng lại cực kỳ thanh thoát nhờ cách phối kết hợp các vật liệu xây dựng thế hệ mới. Tổng thể ngôi nhà là sự giao thoa hoàn hảo giữa các khối hình học dứt khoát và những gam màu tinh tế giúp tạo nên một diện mạo sang trọng, bền bỉ với thời gian bất chấp sự khắc nghiệt của khí hậu miền biển.

Ngôi nhà 3 tầng hiện đại này được gia đình anh Trung đầu tư khá bài bản vào vật liệu ốp lát. Phần chân tường được Maxhome tư vấn thiết kế tỉ mỉ bao phủ bằng lớp gạch giả đá tối màu với bề mặt nhám để giúp tạo nên một bệ đỡ thị giác cực kỳ kiên cố và đồng thời bảo vệ cấu trúc tường khỏi tình trạng rêu mốc hay nồm ẩm. Bên cạnh đó, hệ bậc tam cấp được sử dụng đá Granite có độ cứng cao và khả năng chống trầy xước tuyệt vời, dẫn lối khách quý đi qua cửa chính làm từ gỗ tự nhiên cao cấp với những đường vân sắc nét.

Để tối ưu hóa nguồn ánh sáng tự nhiên, Maxhome đã sử dụng hệ thống cửa sổ khung nhôm Xingfa kết hợp cùng kính cường lực dày dặn. Loại vật liệu này không chỉ giúp cách âm, cách nhiệt hiệu quả mà còn mở ra tầm nhìn rộng lớn giúp gia chủ có thể kết nối không gian bên trong với khoảng sân vườn xanh mát bên ngoài một cách trọn vẹn nhất. Riêng khung cửa chính của mặt tiền nhà được sử dụng chất liệu thép vân gỗ để tăng tính sang trọng hơn cho vị trí này.


Tiến lên các tầng cao hơn, linh hồn của ngôi nhà 3 tầng mái bằng càng được khẳng định rõ nét qua cách sử dụng gạch ốp trang trí và vật liệu trang trí ngoại thất. Tại mặt tiền tầng 2, Maxhome đã khéo léo đan xen những mảng tường ốp gạch inax cao cấp với tông màu xám tạo nên những đường kẻ chỉ tinh tế và chiều sâu cho diện mạo ngôi nhà. Đặc biệt, khu vực ban công được trang bị hệ lan can sắt sơn tĩnh điện màu đen mờ truyền thống nhưng không hề cũ kỹ. Bên cạnh đó còn có những mảng màu vàng kem của sơn ngoại thất cao cấp được kết hợp hài hòa với màu xám ghi của các khối bê tông để tạo nên một sự tương phản nhẹ nhàng nhưng đầy cuốn hút.

Khép lại vẻ đẹp hoàn mỹ của thiết kế nhà 3 tầng hiện đại này chính là không gian tầng thượng đầy thư thái với sự xuất hiện của vật liệu gỗ nhựa ngoài trời. Hệ lam trang trí phía trên sân thượng được làm từ thép hộp kết hợp với các tấm gỗ nhựa mang nét mộc mạc của gỗ tự nhiên có độ bền cực cao, không lo cong vênh hay mối mọt dưới nắng mưa. Phần trần ban công và sảnh mái cũng được ốp gỗ nhựa cao cấp, tích hợp hệ thống đèn LED âm trần hiện đại tạo nên một không gian lung linh, ấm cúng vào buổi đêm. Phía trên mái bằng, hệ thống bồn nước và năng lượng mặt trời được lắp đặt gọn gàng trên nền sơn chống thấm chuyên dụng giúp đảm bảo tính thẩm mỹ lẫn công năng sử dụng.


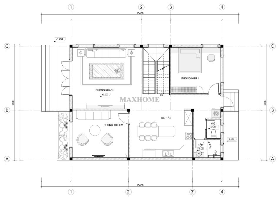
Bước qua cánh cửa thép giả gỗ của tầng 1, bạn sẽ choáng ngợp trước không gian phòng khách rộng rãi được bài trí nội thất hiện đại và sang trọng. Tiếp nối với phòng khách là khu vực bếp ăn ấm cúng lắp đặt hệ tủ bếp chữ L tối ưu hoá công năng và diện tích.

Điểm đặc biệt ở tầng này chính là việc bố trí 1 phòng ngủ yên tĩnh và 1 phòng sinh hoạt dành riêng cho trẻ em với màu sắc sinh động để tạo không gian vui chơi và học tập lý tưởng cho các bạn nhỏ. Để tối ưu diện tích và tăng tính tiện nghi, Maxhome đã khéo léo tách biệt khu vực vệ sinh và phòng tắm thành hai không gian riêng giúp việc sinh hoạt của đại gia đình trở nên thuận tiện hơn bao giờ hết.

Di chuyển theo hệ cầu thang lát đá sang trọng lên tầng 2 sẽ bước vào không gian nghỉ ngơi riêng tư của gia đình anh Trung với sự xuất hiện của 4 phòng ngủ được phân bổ khoa học tại các góc nhà. Việc tập trung nhiều phòng ngủ trên một mặt sàn không chỉ giúp gắn kết tình cảm giữa các thành viên mà còn tạo sự thuận tiện trong việc chăm sóc lẫn nhau. Tương tự như tầng 1, hệ thống vệ sinh và phòng tắm tại tầng 2 cũng được thiết kế tách rời, sử dụng các thiết bị vệ sinh cao cấp và gạch lát chống trơn trượt, sự sạch sẽ và thoải mái.

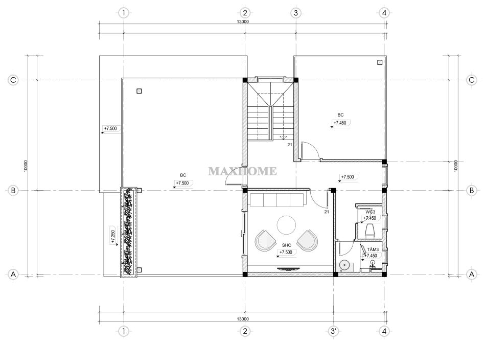
Tầng 3 của ngôi nhà 3 tầng hiện đại này được dành riêng cho các hoạt động gắn kết và giải trí ngoài trời với một phòng sinh hoạt chung rộng lớn ở vị trí trung tâm. Đây là nơi cả nhà có thể cùng nhau xem phim, đọc sách hoặc đơn giản là quây quần trò chuyện sau một ngày làm việc căng thẳng.











