Siêu phẩm nhà vườn 2 tầng tân cổ sang trọng và vô cùng tinh tế | MH05600
| Chủ đầu tư: Anh Nguyễn Thanh Hùng | Số tầng: 2 |
| Địa chỉ: Tân Phú, Đồng Nai | Diện tích xây dựng: 10,9 x 14,5m |
| Loại hình: Nhà mái Nhật tân cổ điển | Tổng diện tích: 248m2 |
Công năng:
|
|
Trong kiến trúc, phong cách tân cổ điển luôn là biểu tượng của sự giao thoa hoàn hảo giữa nét hoài cổ quý tộc và hơi thở hiện đại phóng khoáng. Maxhome cũng vừa mới hoàn thiện hồ sơ thiết kế cho một siêu phẩm nhà vườn 2 tầng tân cổ dành riêng cho gia đình anh Hùng tại Đồng Nai với công năng tiện nghi và bố trí khoa học cho đại gia đình cùng sinh sống.
Ngắm nhìn chính diện ngôi nhà 2 tầng tân cổ của anh Hùng, ấn tượng đầu tiên chính là màu sơn trắng duy nhất được sử dụng cho toàn bộ diện tường công trình. Chính sự tối giản này đã tạo nên một nền tranh hoàn hảo giúp mọi chi tiết trang trí ngoại thất trở nên nổi bật và sắc nét hơn bao giờ hết. Dưới ánh nắng ban mai, sắc trắng ấy càng làm cho ngôi nhà vườn 2 tầng tân cổ thêm phần lung linh và kiêu sa giữa khuôn viên xanh mát.

Điểm nhấn kiến trúc của ngôi nhà 2 tầng tập trung vào hệ cột sảnh vuông vức, mạnh mẽ cùng những đường phào chỉ dọc đứng chạy suốt thân cột không chỉ làm giảm bớt sự thô cứng của bê tông mà còn tạo hiệu ứng thị giác giúp mẫu nhà đẹp trông cao ráo, thanh thoát hơn. Sự đồng điệu còn được thể hiện qua các đường phào chỉ bao quanh hệ thống cửa đi và cửa sổ, tạo nên những đường nét duyên dáng và tỉ mỉ đặc trưng của phong cách tân cổ điển.

Nếu tầng 1 mang vẻ vững chãi với chân cột hình vuông thì tầng 2 lại khéo léo chuyển mình với hệ cột ban công trụ tròn mềm mại. Sự kết hợp giữa vuông và tròn, giữa khỏe khoắn và dịu dàng đã tạo nên một tổng thể hài hòa, thuận mắt. Đặc biệt, khu vực ban công là sự kết hợp thú vị giữa hình khối, ở vị trí mặt tiền sở hữu ban công bán nguyệt đầy nghệ thuật và bên hông lại là ban công hình chữ nhật rộng rãi, đáp ứng đa dạng nhu cầu thư giãn của các thành viên.


Với yêu cầu ngôi nhà vườn 2 tầng tân cổ luôn tràn ngập ánh sáng tự nhiên, Maxhome đã ưu tiên sử dụng hệ cửa kính khung nhôm cao cấp cho toàn bộ ngôi nhà. Những ô kính lớn không chỉ mở ra tầm nhìn khoáng đạt ra khu vườn bên ngoài mà còn tạo nên nét hiện đại, thời thượng.
Ngoài ra, để tăng thêm phần quý tộc, hệ lan can nhôm đúc với những hoa văn uốn lượn tinh xảo được mạ vàng đồng đã trở thành điểm nhấn đắt giá. Tại mặt tiền tầng 2, một mái kính che cửa sổ nhỏ nhắn, thanh lịch không chỉ có tác dụng che mưa nắng mà còn là chi tiết trang trí điểm xuyết cho sự mềm mại của công trình.

Hoàn thiện cho vẻ đẹp sang trọng này là hệ mái Nhật màu xanh than lịch lãm với độ cao 2,9m, mái Nhật có độ dốc vừa phải giúp thoát nước nhanh và chống nóng hiệu quả. Từng lớp ngói được lợp đều tăm tắp, ôm trọn lấy khối nhà, điểm nhấn đặc biệt nhất trên hệ mái chính là ô cửa sổ nhỏ xinh tạo nên nét chấm phá độc đáo và mang lại vẻ đẹp cổ điển đầy lôi cuốn.


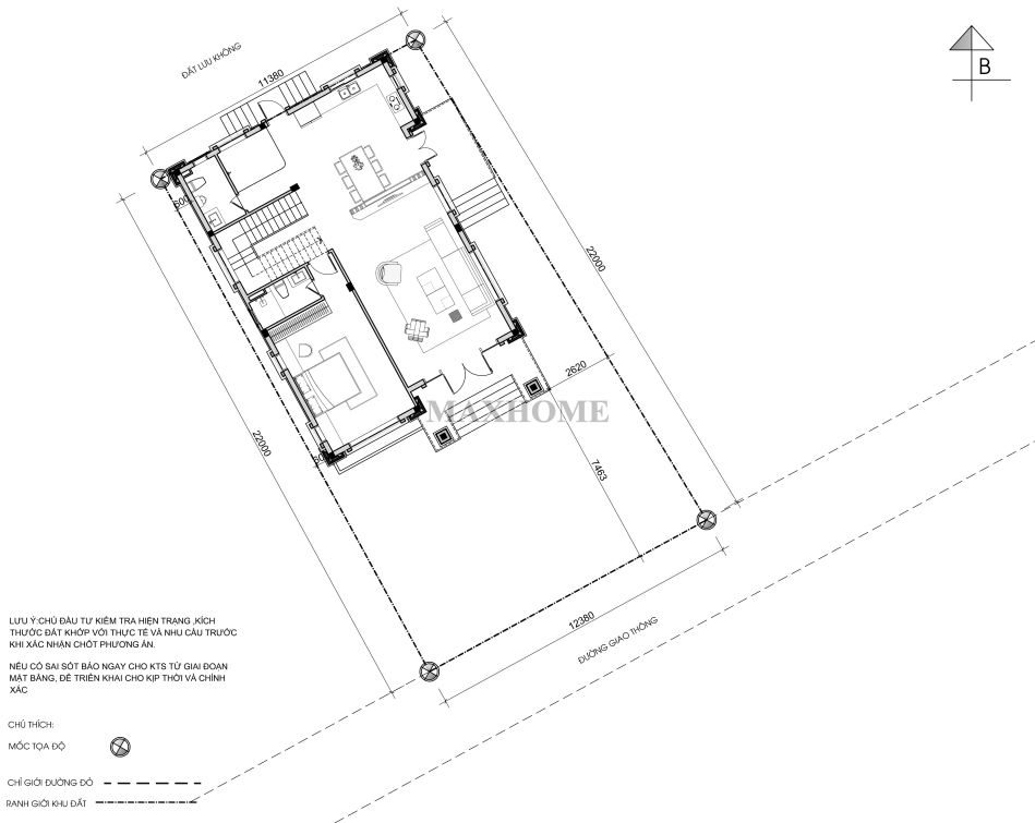
Ngôi nhà vườn 2 tầng tân cổ của gia đình chú Toàn được quy hoạch vô cùng bài bản trên một khuôn viên đất rộng rãi với ranh giới rõ ràng và khoảng lùi hợp lý để tạo không gian xanh bao quanh. Nhìn từ bản vẽ định vị, công trình được đặt ở vị trí trung tâm, cách đường giao thông khoảng 7,5m tạo ra sân trước thoáng đãng. Hệ thống mốc tọa độ và các chỉ giới đường đỏ được tính toán chuẩn xác cho thấy sự chuyên nghiệp của Maxhome trong việc tối ưu hóa diện tích sử dụng nhưng vẫn giữ được sự kết nối hài hòa với cảnh quan thiên nhiên xung quanh.


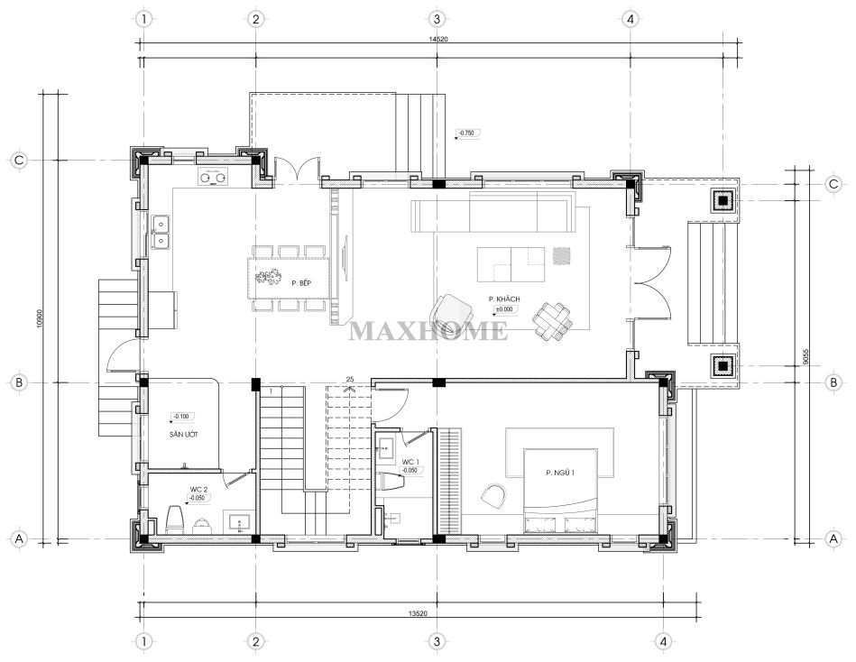
Bước vào không gian tầng 1 của ngôi nhà vườn 2 tầng tân cổ, ngay lập tức bạn sẽ cảm nhận được sự thoáng đạt nhờ cách bố trí các khu vực chức năng hợp lý và khoa học. Sảnh chính rộng lớn dẫn trực tiếp vào phòng khách sang trọng, nơi được coi là trái tim của ngôi nhà với tầm nhìn mở rộng ra các ô cửa kính lớn. Ngăn cách nhẹ nhàng với phòng khách là khu vực bếp và phòng ăn ấm cúng được thiết kế tiện nghi với lối tiếp cận ra sân ướt phía sau giúp việc nội trợ trở nên thuận tiện và giữ cho không gian luôn thông thoáng. Một phòng ngủ lớn được đặt khéo léo tại tầng 1 với hệ cửa sổ đón sáng, đi kèm với nhà vệ sinh riêng biệt và khu vực cầu thang bộ được tính toán kỹ từng bậc đã tạo nên một tổng thể công năng hoàn hảo và tiện dụng cho mọi thành viên.

Không gian tầng 2 là nơi ưu tiên cho sự riêng tư và tâm linh với cách phân chia mặt bằng cực kỳ tinh tế. Phòng thờ được đặt tại vị trí trang trọng nhất, có cửa mở ra ban công rộng lớn để đón sinh khí và ánh sáng tự nhiên. Đi sâu vào bên trong là 2 phòng ngủ Master được thiết kế tối ưu, mang lại trải nghiệm nghỉ dưỡng ngay tại gia. Điểm đặc biệt của tầng này chính là sự kết nối linh hoạt giữa các phòng chức năng với hệ ban công đa dạng, từ ban công hình chữ nhật mạnh mẽ đến ban công bán nguyệt duyên dáng. Phía sau nhà là khu vực giặt phơi được bố trí kín đáo nhưng vẫn đảm bảo độ thông thoáng cần thiết cho sinh hoạt hằng ngày.











