Sở hữu bản vẽ nhà phố hiện đại 2 tầng sang trọng, alo ship tận tay | MH05556

Chủ đầu tư: Chị Nguyễn Thị Huyền Số tầng: 2
Địa chỉ: Bắc Thuỵ Anh, Hưng Yên Diện tích xây dựng: 9,5 x 12,3m
Loại hình: Nhà mái bằng hiện đại Tổng diện tích: 187m2
Công năng:
  • Tầng 1: Phòng khách + thờ, phòng bếp, 1 phòng ngủ, 1 wc
  • Tầng 2: Phòng sinh hoạt chung, 3 phòng ngủ, 1 wc

Với ngôn ngữ kiến trúc sắc sảo, tối giản mà đẳng cấp, bản vẽ nhà phố 2 tầng hiện đại dưới đây đã đáp ứng tốt về thẩm mỹ và còn chuẩn xác trong từng thông số kỹ thuật. Đặc biệt, chỉ cần một cuộc gọi từ bạn, toàn bộ bản vẽ kỹ thuật chi tiết của siêu phẩm này sẽ được chúng tôi gửi đến tận tay bạn để giúp hiện thực hóa không gian sống mơ ước một cách dễ dàng và tiết kiệm nhất.

Cùng Maxhome khám phá bản vẽ, điểm ấn tượng đầu tiên chính là sự kết hợp tinh tế giữa hai tông màu chủ đạo trắng sứ và xám ghi. Đây là những gam màu trung tính bền bỉ với thời gian tạo nên cảm giác sạch sẽ và thanh lịch cho công trình nhà phố hiện đại 2 tầng.

Đội ngũ thiết kế Maxhome đã khéo léo bố trí một cột tường giả ngay tại vị trí trung tâm mặt tiền để phá vỡ sự đơn điệu của những mảng tường phẳng. Chi tiết này được ốp hoàn toàn bằng gạch inax cao cấp chạy dọc xuyên suốt từ tầng 1 lên đến tầng 2 tạo ra một trục đứng vững chãi và là điểm nhấn thị giác quan trọng giúp ngôi nhà trông cao ráo, thanh thoát hơn hẳn so với những công trình lân cận.

so-huu-ban-ve-nha-pho-hien-dai-2-tang-sang-trong-alo-ship-tan-tay-1

Sự tỉ mỉ trong kỹ thuật xây dựng còn được thể hiện qua chi tiết bậc thềm và chân tường. Hệ bậc thềm được ốp gạch đồng màu với gạch ốp chân tường tạo nên một sự nhất quán về màu sắc và khối tích. Với chiều cao tiêu chuẩn 450mm, phần chân tường không chỉ có tác dụng thẩm mỹ mà còn bảo vệ lớp kết cấu bên trong khỏi tác động của độ ẩm và bụi bẩn từ mặt đất. Đặc biệt, khu vực tiểu cảnh tại bồn cây mặt tiền sẽ được thi công đặc biệt chú trọng khâu chống thấm. Bằng việc sử dụng các màng chống thấm chuyên dụng và kỹ thuật đổ bê tông ngăn nước tối ưu, gia chủ có thể hoàn toàn yên tâm trồng các loại cây xanh yêu thích ngay sát vách tường mà không lo ngại vấn đề thấm ngược hay ố mốc qua thời gian, giúp ngôi nhà luôn xanh mát và bền đẹp.

so-huu-ban-ve-nha-pho-hien-dai-2-tang-sang-trong-alo-ship-tan-tay-9

so-huu-ban-ve-nha-pho-hien-dai-2-tang-sang-trong-alo-ship-tan-tay-10

Khi màn đêm buông xuống, mẫu thiết kế nhà chị Huyền lại khoác lên mình một diện mạo hoàn toàn khác biệt, rực rỡ và ấm cúng hơn bao giờ hết. Hệ thống đèn ngoại thất được bố trí khoa học tại các vị trí chiến lược như dưới mái hiên, dọc theo cột tường giả và khu vực bồn hoa. Ánh sáng vàng dịu nhẹ hắt lên những mảng tường xám và gạch Inax tạo nên những hiệu ứng đổ bóng đầy tính nghệ thuật. Nhìn từ xa, sự tương phản giữa bóng tối của bầu trời và ánh đèn ấm áp tỏa ra từ các ô cửa kính cường lực tạo nên một không gian sống đầy lôi cuốn khiến bất cứ ai đi ngang qua cũng phải trầm trồ khen ngợi.

so-huu-ban-ve-nha-pho-hien-dai-2-tang-sang-trong-alo-ship-tan-tay-12

so-huu-ban-ve-nha-pho-hien-dai-2-tang-sang-trong-alo-ship-tan-tay-13

Một ngôi nhà đẹp không thể thiếu đi sự kết nối giữa không gian bên trong và bên ngoài. Tại công trình nhà phố hiện đại 2 tầng này, hệ thống cửa được đầu tư bài bản cả về thẩm mỹ lẫn tính năng kỹ thuật. Cửa chính có kích thước đại cát 2,7×2,7m sử dụng chất liệu thép vân gỗ cao cấp mang lại vẻ ngoài sang trọng như gỗ tự nhiên nhưng lại sở hữu độ bền vượt trội, chống cong vênh, mối mọt. Đi kèm với đó là tay nắm cửa bằng inox sáng bóng và lớp kính cường lực dày 8.38mm. Loại kính này không chỉ đảm bảo an toàn tuyệt đối, cách âm hiệu quả mà còn giúp đón ánh sáng tự nhiên vào sảnh chính một cách tinh tế. Trong khi đó, hệ thống cửa sổ và cửa ban công lại ưu tiên sử dụng khung nhôm kính cường lực chất lượng cao giúp mở rộng tầm nhìn và tạo sự thông thoáng tối đa cho các phòng chức năng.

so-huu-ban-ve-nha-pho-hien-dai-2-tang-sang-trong-alo-ship-tan-tay-14

so-huu-ban-ve-nha-pho-hien-dai-2-tang-sang-trong-alo-ship-tan-tay-15

Phần mái của ngôi nhà phố được thiết kế theo kiểu mái bằng đổ bê tông cốt thép dày dặn. Đây là giải pháp kiến trúc tối ưu cho những mẫu nhà phố hiện đại 2 tầng bởi khả năng chống nóng cực tốt và độ bền vững trước các điều kiện thời tiết khắc nghiệt giúp. Ngoài ra, mặt sàn sân thượng cũng được tận dụng triệt để làm khu vực kỹ thuật để bố trí hệ thống pin năng lượng mặt trời hiện đại giúp tối ưu hóa điện năng tiêu thụ, phía sau là téc nước có dung tích lớn được bố trí gọn gàng, đảm bảo nguồn nước sinh hoạt luôn ổn định và sạch sẽ cho cả gia đình.

so-huu-ban-ve-nha-pho-hien-dai-2-tang-sang-trong-alo-ship-tan-tay-16
Mặt bằng định vị công trình

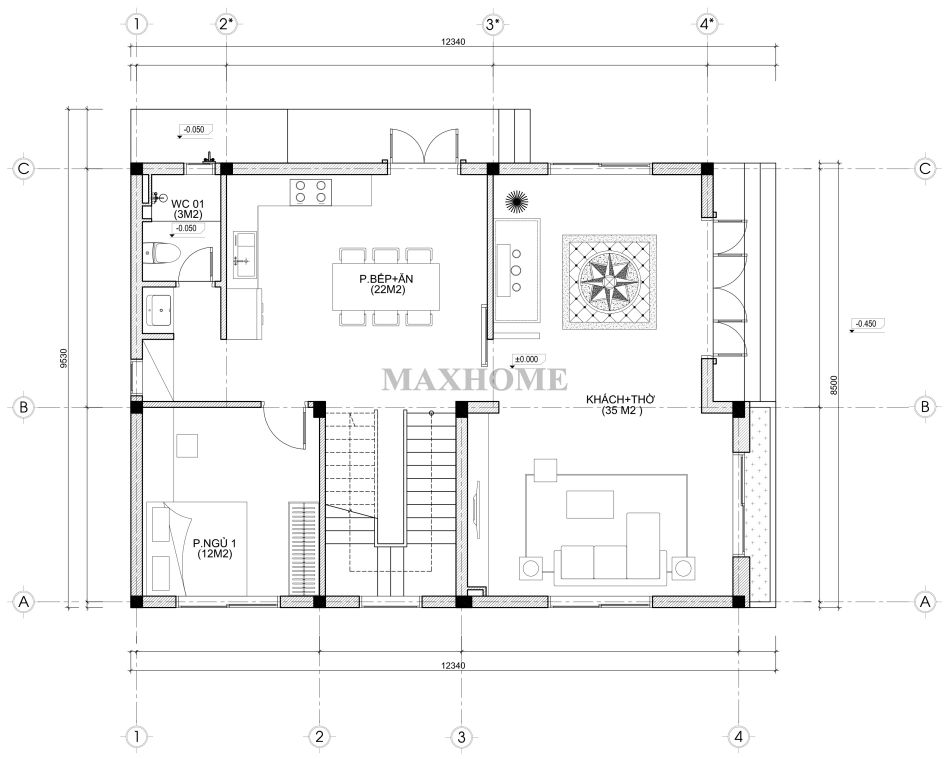
Từ sảnh chính bước vào căn nhà phố 2 tầng hiện đại của chị Huyền là không gian đa năng kết hợp giữa phòng khách và khu vực thờ tự linh thiêng 35m2 được bố trí khéo léo mà vẫn giữ được sự trang trọng, ấm cúng. Tiếp nối là khu vực bếp ăn 22m2 được thiết kế mở ra sảnh phụ bên cạnh giúp luân chuyển không khí tốt và tránh ám mùi khi nấu nướng.

so-huu-ban-ve-nha-pho-hien-dai-2-tang-sang-trong-alo-ship-tan-tay-17
Mặt bằng bố trí công năng tầng 1

Đặc biệt, tầng 1 còn được bố trí thêm 1 phòng ngủ 12m2 yên tĩnh cạnh cầu thang thuận tiện đi lại. Gần đó cũng có nhà vệ sinh chung 3m2 đặt ở vị trí kín đáo rất thuận tiện cho việc sinh hoạt thường ngày của cả gia đình.

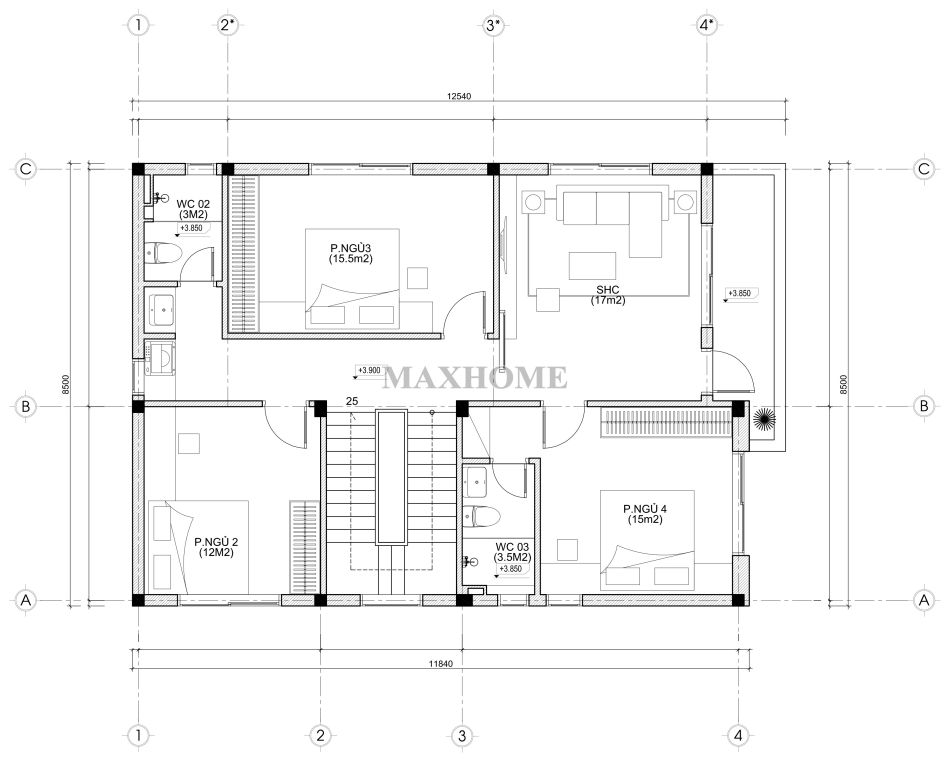
Tiến lên tầng 2, không gian hoàn toàn được ưu tiên cho sự riêng tư và nghỉ ngơi của các thành viên với tâm điểm của tầng là phòng sinh hoạt chung rộng 17m2 để gia đình chị Huyền có những buổi tối quây quần xem phim hay trò chuyện thân mật.

so-huu-ban-ve-nha-pho-hien-dai-2-tang-sang-trong-alo-ship-tan-tay-18
Mặt bằng bố trí công năng tầng 2

Bao quanh khu vực trung tâm là hệ thống 3 phòng ngủ được phân bổ diện tích hợp lý, mỗi phòng đều có cửa sổ đón ánh sáng tự nhiên tạo cảm giác thư thái và tái tạo năng lượng hiệu quả. Một nhà vệ sinh chung tiếp tục được bố trí tại đây với các thiết bị vệ sinh hiện đại, đảm bảo phục vụ tốt nhu cầu của các thành viên trên tầng mà vẫn tối ưu được chi phí lắp đặt hệ thống kỹ thuật dọc cho toàn bộ công trình nhà phố hiện đại 2 tầng này.

Yêu cầu tư vấn

    *Vui lòng để lại thông tin, nhân viên tư vấn sẽ liên hệ lại quý khách trong thời gian sớm nhất