Sở hữu ngay mẫu nhà 1 tầng mái Nhật siêu đẹp sở hữu sân vườn rộng lớn | MH06030
| Chủ đầu tư: Anh Nguyễn Chí An | Số tầng: 1 |
| Địa chỉ: Đức Hòa Đông, Đức An, Long An | Diện tích xây dựng: 11 x 20,9m |
| Loại hình: Nhà mái Nhật hiện đại | Tổng diện tích: 180m2 |
| Công năng:
Phòng khách, phòng thờ, phòng bếp, phòng ăn, 3 phòng ngủ, 1 phòng tắm, 3 wc, sân ướt |
|
Bạn có bao giờ mơ ước về một không gian sống mà chỉ cần mở cửa ra là cả một khoảng xanh mướt của cỏ cây và bầu trời cao rộng hiện ra trước mắt? Hãy để Maxhome giới thiệu tới bạn một mẫu nhà 1 tầng mái Nhật của gia đình anh An tại Long An, đây chính là câu trả lời hoàn hảo vì công trình mang kiến trúc hiện đại nhưng vẫn đậm hơi thở bình yên của vùng đất Nam Bộ.
Căn nhà 1 tầng mái Nhật dễ dàng đốn tim bất cứ ai bởi sự hài hòa tuyệt đối giữa những đường nét vuông vức, khỏe khoắn và hệ mái Nhật thanh lịch, một tổng thể kiến trúc điển hình mà nhiều người hằng mơ ước bấy lâu nay.
Đi sâu vào chi tiết kỹ thuật để thấy rõ sự bề thế, công trình của anh An không đi theo lối mòn của những mẫu nhà cấp 4 thông thường mà được tính toán tỷ lệ vàng trong xây dựng. Điểm ấn tượng nhất chính là chiều cao thông thủy lên tới 4,2m giúp không gian nội thất bên trong luôn đạt được độ thoáng đãng tối đa, xua tan cái nóng đặc trưng của khí hậu Long An.

Kết hợp với đó là hệ mái Nhật cao 3m được thiết kế theo dạng chồng lớp vô cùng ấn tượng. Những lớp mái xanh than lấp lánh dưới nắng không chỉ có tác dụng chống nóng, thoát nước nhanh mà còn tạo nên chiều sâu thẩm mỹ giúp ngôi nhà anh An trông cao ráo và uy nghi hơn. Đặc biệt, để đảm bảo an toàn tuyệt đối trong mùa mưa bão, đội ngũ kiến trúc sư Maxhome đã tinh tế lắp đặt hệ thống chống sét ngay tại các đỉnh mái vừa là chi tiết kỹ thuật bắt buộc vừa là điểm nhấn thanh mảnh cho phần chóp nhà.

Để tôn vinh dáng vẻ kiêu sa của công trình, phần nền nhà đã được chủ ý nâng cao lên 750mm so với mặt sân. Việc thiết kế 5 bậc thềm dẫn vào sảnh chính đã giúp ngôi nhà 1 tầng mái Nhật tránh được tình trạng ngập lụt hay bụi bẩn mà tạo ra một lối đi uyển chuyển, trang trọng. Các bậc thềm được ốp đá tự nhiên tối màu tương phản hoàn hảo với màu sơn trắng chủ đạo của tường nhà tạo nên một nhịp điệu màu sắc đầy lôi cuốn.

Bên cạnh đó, sự thống nhất trong chất liệu cũng được thể hiện rõ nét qua hệ cửa của ngôi nhà anh An. Toàn bộ cửa chính, cửa sổ và cửa phụ đều sử dụng chất liệu nhôm kính cường lực cao cấp trông giống như những bức tranh sống động thu trọn vẻ đẹp của sân vườn vào bên trong, đồng thời tận dụng tối đa nguồn ánh sáng tự nhiên giúp gia chủ tiết kiệm điện năng và luôn cảm thấy gần gũi với thiên nhiên.

Một điểm cộng lớn khiến mẫu nhà 1 tầng mái Nhật này trở nên khác biệt chính là sự linh hoạt trong giao thông và góc nhìn. Công trình sở hữu tới 3 lối ra vào riêng biệt với sảnh chính bề thế, sảnh phụ tinh tế và cửa hậu tiện lợi. Điều thú vị là sảnh phụ cũng được chăm chút kỹ lưỡng về mặt kiến trúc không kém gì sảnh chính với hệ cột trụ vững chãi và mái che đồng điệu giúp ngôi nhà có nhiều góc đẹp.

Khi hoàng hôn buông xuống, ngôi nhà vườn lại khoác lên mình một diện mạo hoàn toàn mới, lung linh và huyền ảo hơn bao giờ hết nhờ hệ thống đèn trang trí ngoại thất được bố trí thông minh dọc theo các diện tường và dưới mái hiên. Những luồng sáng vàng ấm áp hắt nhẹ lên các đường chỉ nổi trên tường tôn vinh các chi tiết kiến trúc và tạo nên một không gian sống vô cùng ấm cúng, sang trọng.

Bao quanh ngôi nhà là khoảng sân vườn rộng lớn để cả gia đình anh An có thể tổ chức những bữa tiệc ngoài trời hay đơn giản là ngồi thưởng trà dưới bóng cây sau một ngày làm việc mệt mỏi. Đây thực sự là một không gian sống lý tưởng mà kiến trúc và thiên nhiên giao hòa để viết nên bản giao hưởng về một cuộc sống an yên và hạnh phúc.

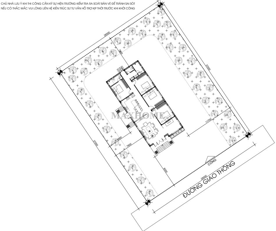
Nhìn vào bản vẽ tổng thể khuôn viên bạn mới thực sự choáng ngợp trước quy mô và sự bề thế của khu đất mà gia đình anh An sở hữu tại Long An. Ngôi nhà 1 tầng mái Nhật được đặt trịnh trọng ngay giữa một khuôn viên rộng lớn với chiều dài khu đất lên tới 37m và chiều rộng 28,5m. Chính sự hào phóng trong diện tích này đã cho phép một hệ sinh thái xanh bao quanh ngôi nhà với những hàng cây bóng mát chạy dọc theo tường rào, biến nơi đây thành một biệt thự nghỉ dưỡng mini tách biệt hoàn toàn với sự ồn ào của thế giới bên ngoài.

Bước vào bên trong, sự khoa học trong việc phân chia không gian trên kích thước xây dựng 11 x 20,9m đã tạo nên một tổ ấm vừa ấm cúng vừa đảm bảo sự riêng tư tuyệt đối. Trái tim của ngôi nhà là phòng khách rộng rãi 32m2 nằm ngay sảnh chính được ngăn cách nhẹ nhàng với khu vực bếp và phòng ăn rộng 28,5m2 bằng một hệ vách trang trí tinh tế. Đặc biệt, không gian tâm linh được ưu tiên đặt ở vị trí trang trọng nhất phía trước nhà với phòng thờ rộng 10,8m2.

Gia đình anh An có tới 4 phòng ngủ được bố trí thông minh, trong đó 3 phòng ngủ lớn có diện tích khoảng 15m2 và 1 phòng ngủ nhỏ hơn là 14,6m2. Mọi nhu cầu sinh hoạt đều được đáp ứng đầy đủ với khu vực giặt phơi, nhà tắm và 2 nhà vệ sinh được bố trí hợp lý ở phía cuối nhà giúp tối ưu hóa công năng và tạo sự thuận tiện trong giao thông nội bộ.











