Tham khảo nhà cấp 4 mái Nhật hiện đại sở hữu 4 phòng ngủ tiện nghi | MH05498
| Chủ đầu tư: Chú Bùi Doãn Bình | Số tầng: 1 |
| Địa chỉ: Thọ Phú, Thanh Hóa | Diện tích xây dựng: Thọ Phú, Thanh Hóa |
| Loại hình: Nhà mái Nhật hiện đại | Tổng diện tích: 169m2 |
| Công năng:
Phòng khách, phòng thờ, phòng bếp, 4 phòng ngủ, 1 phòng tắm, 2 wc |
|
Giữa vùng đất Thanh Hóa đầy nắng và gió, một công trình kiến trúc hiện đại vừa được hiện diện mang theo tâm huyết và sự kỳ vọng của chú Bình về một không gian sống lý tưởng cho gia đình đa thế hệ. Bản vẽ thiết kế nhà cấp 4 mái Nhật này là lời giải cho bài toán về công năng sử dụng và khẳng định về gu thẩm mỹ tinh tế của gia chủ. Với mong muốn sở hữu một tổ ấm vừa mang nét truyền thống, gần gũi với thiên nhiên lại vừa tiện nghi và bền bỉ trước khí hậu khắc nghiệt của miền Trung, chú Bình đã lựa chọn phong cách mái Nhật thanh lịch để làm điểm nhấn chủ đạo cho công trình của mình.
Về mặt kỹ thuật, ngôi nhà cấp 4 mái Nhật sở hữu kích thước mặt tiền ấn tượng lên đến 12,3m và chiều sâu 15,8m đã tạo ra một hình khối vuông vức và vững chãi. Cao độ từ cốt sân lên đỉnh mái là 7,1m, trong đó phần thân nhà cao 4,1m tạo nên một tỉ lệ hình khối cân đối, không quá cao nhưng đủ để tạo sự thông thoáng cho không gian bên trong.

Điểm nhấn đầu tiên khi tiếp cận ngôi nhà cấp 4 của chú Bình chính là hệ bậc tam cấp 5 bậc cao ráo được ốp đá tự nhiên tối màu và dẫn lối vào sảnh chính rộng rãi. Hệ cột trụ vuông vức tại sảnh chính được thiết kế tỉ mỉ với các đường chỉ âm trang trí 30x15mm, phần chân cột được ốp đá chẻ màu tối theo phối cảnh vừa bảo vệ công trình khỏi tác động của thời tiết vừa tạo cảm giác kiên cố, nâng đỡ toàn bộ hệ mái hiên phía trước.

Màu sắc chủ đạo của mẫu nhà đẹp này là sự phối hợp tinh tế giữa sắc trắng sứ và các mảng tường sơn màu xanh ghi làm điểm nhấn. Sự tương phản nhẹ nhàng này giúp tôn lên các đường phào chỉ đắp nổi kích thước 50x100mm chạy dọc quanh nhà. Đặc biệt, các mảng tường dưới cửa sổ và phần áp mái được ốp gạch thẻ và gạch giả đá tạo nên chiều sâu và sự đa dạng về vật liệu cho mặt đứng trục.


Hệ thống cửa chính và cửa sổ được sử dụng hoàn toàn bằng nhôm kính xingfa cao cấp với các ô kính lớn. Lựa chọn này không chỉ mang lại nét hiện đại mà còn giúp đón trọn ánh sáng tự nhiên vào từng ngóc ngách của căn nhà, xóa nhòa khoảng cách giữa không gian nội thất và sân vườn xanh mát bên ngoài.
Di chuyển ra phía sau và các mặt bên, ngôi nhà cấp 4 mái Nhật vẫn giữ được sự thống nhất trong ngôn ngữ thiết kế. Vị trí đặt tép nước được tính toán kỹ lưỡng trên mặt sàn bê tông áp mái giúp đảm bảo tính thẩm mỹ và áp lực nước cho sinh hoạt.


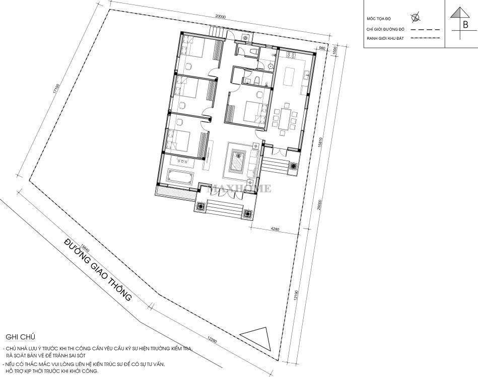
Nhìn vào bản vẽ tổng mặt bằng, ta có thể thấy ngôi nhà của chú Bình được đặt cực kỳ khéo léo trên một khuôn viên đất có hình dáng khá đặc thù và tiếp giáp trực tiếp với trục đường giao thông lớn. Maxhome đã tính toán khoảng lùi công trình hợp lý, tạo ra một khoảng sân phía trước và bên hông rộng rãi giúp tách biệt không gian sống khỏi tiếng ồn và khói bụi từ mặt đường. Ngôi nhà được định vị hướng về phía Đông để tận dụng tối đa luồng gió mát và ánh sáng tự nhiên.

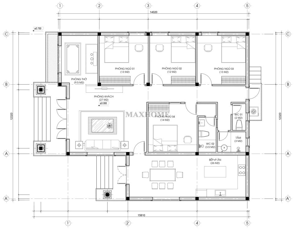
Đi sâu vào chi tiết công năng bên trong, bản vẽ mặt bằng cho thấy một sự sắp xếp khoa học trên tổng diện tích sàn ấn tượng 169m2. Từ sảnh chính bước vào là không gian phòng khách rộng 27m2 được đặt tại vị trí trung tâm kết nối trực tiếp với khu vực phòng thờ trang nghiêm rộng 9,5m2. Ngôi nhà được tối ưu hóa cho gia đình đông thành viên với hệ thống 4 phòng ngủ được bố trí dọc theo các mặt thoáng: phòng ngủ 01 và 03 cùng rộng 13m2, phòng ngủ 02 rộng 12m2 và đặc biệt phòng ngủ 04 có diện tích lớn nhất là 14m2. Khu vực bếp và phòng ăn rộng 26m2 được đặt phía cuối nhà thông ra sảnh phụ giúp việc nấu nướng trở nên thông thoáng, không bị ám mùi vào không gian nghỉ ngơi. Toàn bộ công trình được phục vụ bởi hệ thống vệ sinh tiện nghi gồm khu tắm 3m2 riêng biệt và nhà vệ sinh được đặt tại các vị trí chốt yếu, đảm bảo sự thuận tiện nhất trong sinh hoạt hằng ngày.











