Tham quan mẫu nhà cấp 4 122m2 phong cách tân cổ điển siêu đẹp | MH05992
| Chủ đầu tư: Anh Nguyễn Văn Ngọc | Số tầng: 1 |
| Địa chỉ: Kim Anh, Kim Thành, Hải Dương | Diện tích xây dựng: 10 x 17,4m |
| Loại hình: Nhà mái Nhật hiện đại | Tổng diện tích: 122m2 |
| Công năng:
Phòng khách, phòng thờ, phòng bếp, 3 phòng ngủ, 2 wc |
|
Dưới đây là một mẫu nhà cấp 4 122m2 hiện lên với vẻ đẹp đầy sức sống qua phong cách kiến trúc tân cổ điển tinh tế do Maxhome thiết kế cho anh Ngọc có địa chỉ ở Hải Dương. Một công trình khang trang và bề thế với sự đầu tư của cả một đội ngũ thiết kế, mời bạn đọc cùng tham khảo chi tiết bản vẽ nhà đẹp dưới đây nhé!
Nhờ bàn tay sáng tạo của kiến trúc sư Maxhome, đội ngũ thiết kế đã kết hợp khéo léo giữa các hình khối vuông vức, khỏe khoắn và những đường vòm bán nguyệt mềm mại ở sảnh chính đã tạo nên một diện mạo vừa kiên cố vừa thanh thoát. Bao phủ lên toàn bộ hình khối ấy là gam màu trắng sứ chủ đạo giúp ngôi nhà cấp 4 122m2 luôn nổi bật, mới mẻ và dễ dàng tôn vinh những chi tiết trang trí đi kèm.

Hai cột trụ bề thế ở sảnh chính to bản có chiều cao thân cột lên tới 3,4m, phần đầu và chân cột được đắp nổi phào chỉ chỉn chu theo phong cách cổ điển kết hợp với các đường kẻ chỉ âm tường chạy ngang diện tường giúp xóa bỏ sự đơn điệu, đồng thời tạo nên chiều sâu và sự kết nối chặt chẽ cho ngoại thất. Đặc biệt, khu vực sảnh chính và sảnh phụ được thiết kế bậc ngũ cấp cao 750mm so với mặt sân tạo nên một lối dẫn trang trọng và cao ráo cho ngôi nhà.

Để tối ưu hóa không gian sống, toàn bộ hệ thống cửa chính và cửa sổ đều sử dụng nhôm kính Xingfa cao cấp với diện tích mặt kính lớn. Hệ cửa này không chỉ mang lại nét hiện đại mà còn giúp nội thất luôn ngập tràn ánh sáng tự nhiên, mở ra tầm nhìn thoáng đãng ra sân vườn xanh mát. Phía dưới cùng, phần chân tường được ốp đá rối màu xám đen vừa tạo điểm nhấn tương phản về màu sắc vừa bảo vệ công trình khỏi rêu mốc và các tác động từ môi trường.


Ở góc nhìn này, công trình tiếp tục khẳng định vẻ đẹp tinh tế của kiến trúc tân cổ điển thông qua sự mạch lạc trong hình khối và chi tiết. Bao phủ diện tường là lớp sơn trắng sứ thanh lịch và điểm xuyết bởi các đường kẻ chỉ âm tường chạy ngang đều đặn, tạo nên nhịp điệu thị giác và chiều sâu cho các mảng tường lớn. Tại các góc nhà, hệ cột giả được đắp nổi với các đường rãnh dọc trang trọng giúp kết nối hài hòa giữa phần thân tường và hệ mái Nhật phía trên.

Hệ mái Nhật màu xanh ghi hiện đại với độ cao đỉnh mái cao 2,5m. Với độ dốc được tính toán khoa học, thiết kế mái chồng mái không chỉ giúp thoát nước mưa nhanh và chống nóng tối ưu mà còn tạo nên nhịp điệu kiến trúc đa tầng, đẹp mắt từ mọi góc nhìn. Các chi tiết kỹ thuật như kim thu sét và hệ thống bồn nước, thái dương năng đều được bố trí khéo léo trên các khoảng mái để đảm bảo tính công năng mà không làm ảnh hưởng đến thẩm mỹ tổng thể của tòa nhà.

Căn nhà cấp 4 122m2 được bố trí sát một bên khuôn đất, để chừa khoảng đất trống lại tạo ra sân vườn cho gia đình anh Ngọc. Phía trước nhà cũng có khoảng cách nhất định để từ cổng vào nhà không bị quá sát, xe cộ đi vào vẫn sẽ rất thuận tiện. Tiếp tục cùng Maxhome khám phá công năng bên trong mẫu nhà đẹp này nhé!


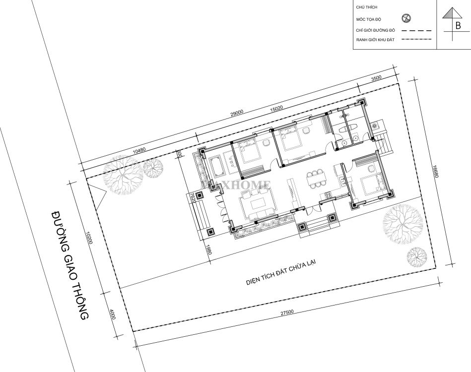
Mặt bằng định vị công trình cho thấy sự tối ưu hóa diện tích trên khu đất, từ sảnh chính bước vào là không gian phòng khách rộng 24m2 nằm tiếp giáp với khu vực phòng thờ 8m2 được đặt ở vị trí trang trọng nhất. Các không gian nghỉ ngơi bao gồm 3 phòng ngủ được bố trí mạch lạc, trong đó phòng ngủ 02 có diện tích lớn nhất với diện tích 16m2, đảm bảo sự riêng tư và thông thoáng nhờ hệ thống cửa sổ mở rộng nhìn ra sân vườn. Khu vực bếp và phòng ăn rộng 17.5m2 được đặt cạnh sảnh phụ giúp việc sinh hoạt và thoát mùi trở nên dễ dàng. Maxhome đã hoàn thiện một mẫu thiết kế nhà vườn không chỉ đẹp về hình khối mà còn tối ưu về công năng sử dụng.












